Neu­es En­sem­ble in Hutt­wil

Neubau Kindergarten Städtli

Die Entwürfe für den Neubau eines Kindergartens beim Schulhaus Städtli in Huttwil repräsentieren unterschiedliche Haltungen im Umgang mit der denkmalgeschützten Umgebung.

Publikationsdatum
15-11-2017
Revision
15-11-2017

Die Kleinstadt Huttwil ist im Bundesinventar der schützenswerten Ortsbilder der Schweiz von nationaler Bedeutung gelistet (ISOS). Um auf veränderte Bedürfnisse und Bestimmungen der Primarschule Städtli einzugehen, veranstaltete die Gemeinde einen offenen und anonymen Projektwettbewerb.

Das Schulhaus Städtli befindet sich im Bereich einer Ortserweiterung des frühen 20. Jahrhunderts, deren räumliche Struktur, samt Bauten und Freiräumen, gemäss ISOS zu erhalten ist. Drei denkmalgeschützte Solitärbauten prägen das Areal: die Turnhalle (1885) und das Schulhaus (1897) mit spätklassizistischem Aufbau sowie das an den Wettbewerbsperimeter angrenzende Pfarrhaus im Heimatstil (1913). Der historische Kontext bedingte, dass alle Projekte durch die Denkmalpflege des Kantons Bern vorgeprüft wurden.

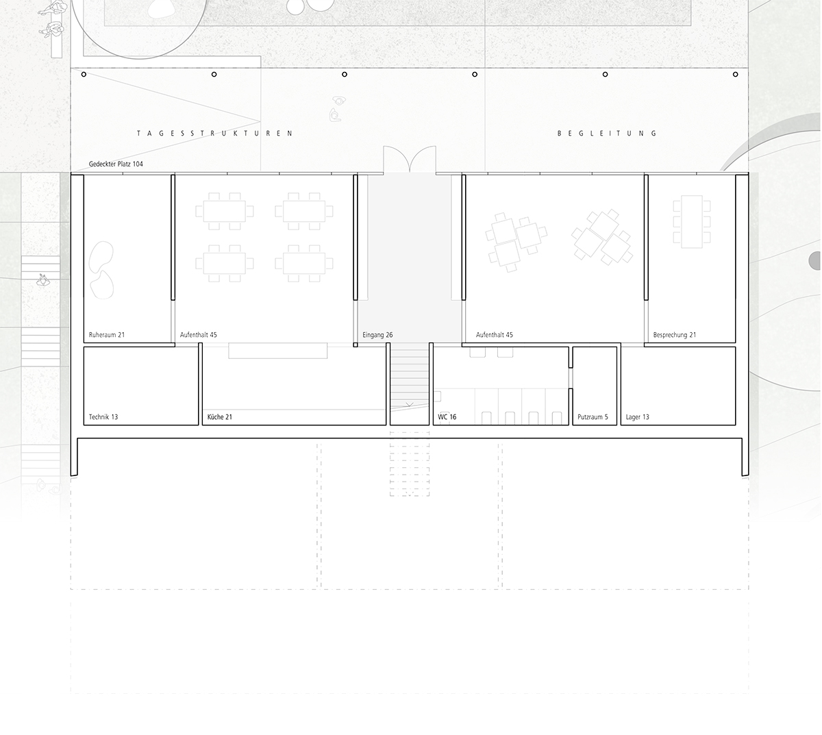
Das Wettbewerbsprogramm sieht Räume für einen Doppelkindergarten, einen Logopädie- und einen Malraum sowie einen Bereich für Lehrpersonen und einen Bereich für Tagesstrukturen mit Küche vor. Der Aussenraum soll einen öffentlichen Raum bilden, der die schulischen Nutzungen wie Pausenplatz, Schulgarten, Spiel- und Naturräume integriert. Aufgrund dieser Anforderungen galt das Zusammenwirken von Architektur und Landschaftsarchitektur für die Wettbewerbsbearbeitung als Voraussetzung.

Unterschiedliche Haltungen

In der städtebaulichen Setzung ähneln sich die sieben rangierten Projekte: entlang der Hangkante mit Abstand zum Dornackerweg wird ein Neubau platziert. Im Norden rahmt dieser eine Freifläche vor dem Schulhaus, gen Süden entstehen die Aussenräume des Kindergartens. Das Raumprogramm wird auf zwei Geschosse aufgeteilt. Neben diesen grundsätzlichen Gemeinsamkeiten können zwei entwurfsbestimmende Haltungen ausgemacht werden.

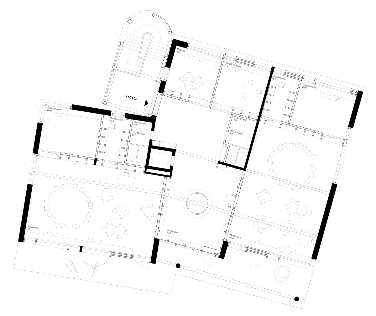
Das Siegerprojekt «Clematis» von AMREIN kunzarchitekten positioniert sich rechtwinklig und mit gebührendem Abstand zum Schulhaus, die rechtwinklig-axialsymmetrische Anlage mit klarer Nord-Süd-Ausrichtung verzahnt sich mit dem ansteigenden Terrain. Im Obergeschoss gliedern sich die beiden Einheiten des Kindergartens um den zentralen Erschliessungsraum mit Garderoben an, im Sockelgeschoss gruppieren sich die Lehrer- und Tagesstrukturen. Eine mittige Treppe verbindet die beiden Geschosse mit den nördlichen und südlichen Aussenräumen – der Übergang von Innen und Aussen erfolgt über weite Auskragungen, die als geschützte Pausenräume dienen.

Das drittrangierte Projekt «Dea Dia» von Castiglioni Zajmi Sawerschel Architekten schmiegt sich mit seinem asymmetrisch geformten Volumen in den Hang und bildet unterschiedliche Aussenräume und einen «Nebenpausenplatz» im Dreiklang mit Schulhaus und Turnhalle. Im Obergeschoss gliedern sich die beiden Kindergartenbereiche um eine zentrale Eingangshalle, über das nördliche Treppenhaus werden die Lehrer- und Tagesstrukturen erschlossen. Der offene Treppenturm bildet zugleich den neuen Zugang auf Ebene des Schulhauses. Eine Veranda verbindet die Kindergartenräume im Süden mit deren Aussenanlagen, im Norden dient eine Loggia als Pausenhalle und Übergang zum Freiraum.

Die beiden Projekte manifestieren verschiedenartige Bezüge zum denkmalgeschützten Ensemble. Während der Raum zwischen Turnhalle, Schulhaus und Neubau bei «Clematis» als geneigter Landschaftsraum behandelt wird, der den Durchblick gewährt, entsteht bei «Dea Dia» ein Ort der Kommunikation, der eine neue Adresse ausbildet. Die klare Aufteilung des Aussenraums bei «Clematis» (ASP Landschaftsarchitekten) steht den situativen Eingriffen bei «Dea Dia» (Sébastien Studer Landschaftsarchitekt) gegenüber. Im Gegensatz zur strengen Grundrissdisposition von «Clematis», die sich typologisch auf das Schulhaus bezieht, etabliert «Dea Dia» je nach Lage mehrseitig orientierte Räume, die in ihrer Ausformulierung der Sprache des Heimatstils verwandt sind und auf das benachbarte Pfarrhaus verweisen. Die Fassaden von «Clematis» kennzeichnet eine klare Trennung zwischen verglasten und geschlossenen Flächen. Die Stirnseiten nehmen ein Spalier für Waldreben (Clematis) auf, mit dem die Verfasser das Gebäude in das umgebende Grün integrieren. Die wechselnden Fensterformate von «Dea Dia» gliedern die Fassaden rhythmisch, die architektonischen Motive verankern das Gebäude allseitig mit der Umgebung.

Zurückhaltung als Dialog

Das historische Schulhaus erhält mit dem Siegerprojekt «Clematis» ein zurückhaltendes Nebengebäude; laut Jury handelt es sich «um ein sorgfältig und effizientes Projekt ohne Pathos». «Dea Dia» schafft ein artikuliertes Haus; doch ob «das Pathos der architektonischen Mittel der Aufgabe und dem Ort angemessen sind» bleibt in der Jury kontrovers. So entschied sich die Jury am Ende für den zurückhaltenden Dialog.

 

Verwandte Beiträge