Wei­ter so, bit­te

In einen Kleinbasler Hinterhof haben Felippi Wyssen Architekten ein Bauwerk gestellt, das man überall vermuten würde – nur nicht hier. Ein ganz eigenes Modell der Nachverdichtung, das nach Fortführung im grösseren Massstab ruft.

Publikationsdatum
18-01-2024

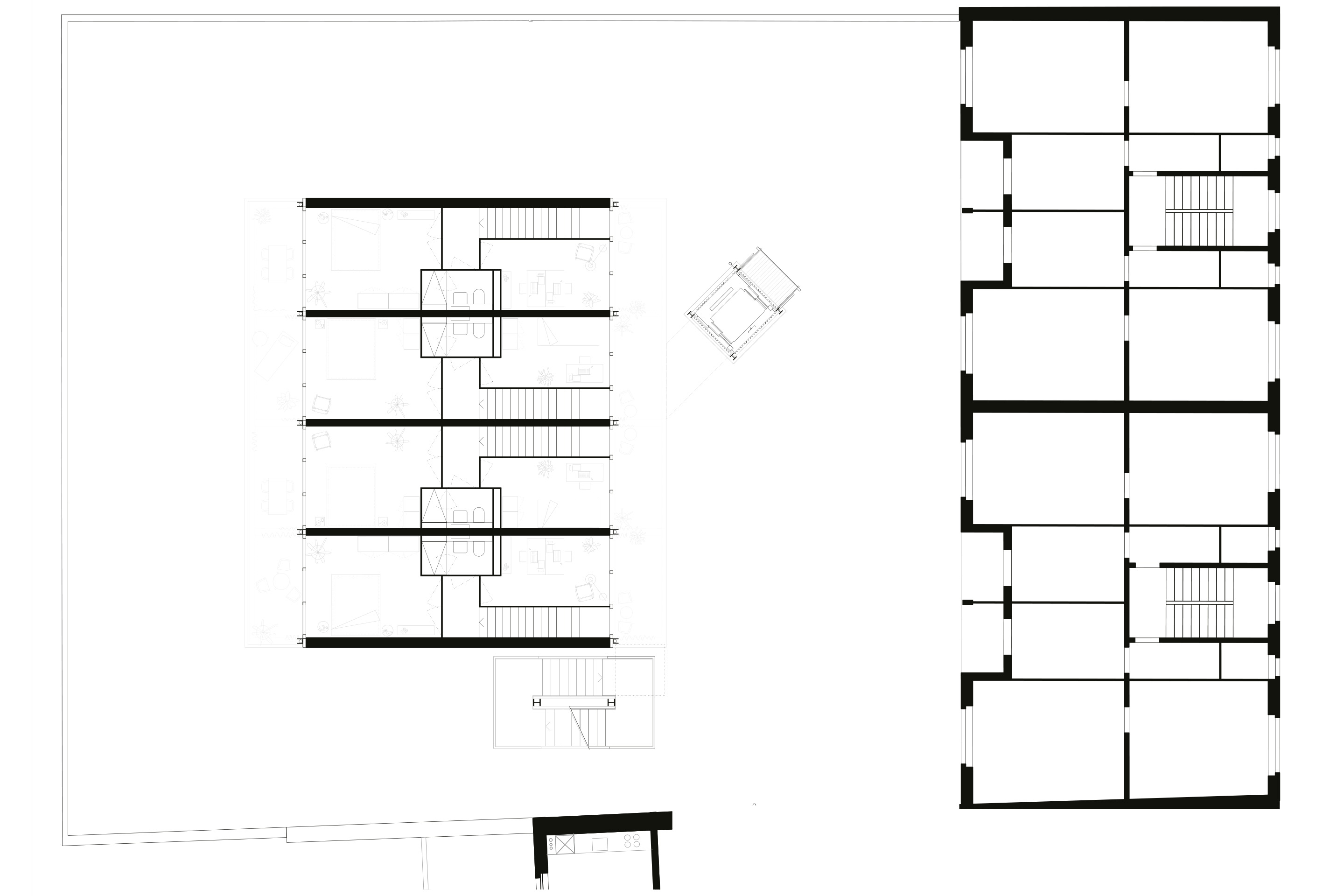
Als Beitrag zur Internationalen Bauausstellung 1957 in Berlin baute Oscar Niemeyer ein Wohnhaus, dessen Aufzug wie eine unabhängige Skulptur neben dem eigentlichen Gebäude steht; nur hier und da dockt er ans Bauwerk an, eine Art modernistischer Campanile mit technischem Innen­leben. Ein solcher unabhängiger Aufzugsturm ist auch das Erste, was man von einem neuen Wohnhaus in Basel erspäht, wenn sich eine plötzliche Lücke in der Blockrandbebauung der Oetlingerstrasse mitten im Kleinbasel auftut.

Die Referenz nicht unbedingt nur an Niemeyer, aber doch an die späte Moderne ist unübersehbar – und doch erstaunlich, betrachtet man den städtebaulichen Kontext. Denn 1957 in Berlin ging es um die Erfindung einer komplett neuen Stadt: Das Hansaviertel, einst ein dicht bebautes Quartier der Gründerzeit, wurde vom Bombenhagel des Zweiten Weltkriegs und modernistischem Aufbruchswillen gänzlich abgeräumt, um hier eine Stadt im Park entstehen zu lassen und damit im Verbund eine neue Gesellschaft. In Basel hingegen steht das Wohnhaus inmitten eines dicht bebauten Gründerzeitviertels, ohne dass dieses weichen musste.

Gartenmauern mit Geschichte

Aus dem Weg geräumt wurde nur eine Autowerkstatt, deren einstöckige Schuppen sich entlang der Aussenmauern des Hinterhofs lagerten. Und dass man hier sogar noch Sympathie bekundet für die Vergangenheit, zeigt sich an deren erhaltenen Spuren entlang dieser Umfassungsmauern: mal Kacheln, mal Farbreste, die nun einen offenen Gemeinschaftsgarten umschliessen. Dort hinein haben die Architekten ihren Neubau gestellt, der sich der Logik des gründerzeitlichen Stadtgrundrisses vollkommen entzieht und diesen doch treffsicher aus- und auffüllt.

Insgesamt acht kleine Wohnungen sind dabei entstanden: zwei Pakete aus je vier anei­nandergelagerten Maisonettes. Die untere Tranche erschliessen individuelle Eingänge über eine kleine vorgelagerte Holzterrasse, die obere ein wellblechüberdachter Laubengang im zweiten Stock, den man über eine neben das Gebäude gestellte Stahltreppe oder über den so prominent platzierten Aufzug erreicht.

Lesen Sie auch: «Ele­ganz durch Schlicht­heit»Erweiterungsbau Hauptsitz Christoph Merian Stiftung St. Alban-Vorstadt 12, Basel

Die Grundrisse der Wohnungen sind einfach, klar und immer gleich; einzige Varianz ist die Spiegelung entlang der Wohnungstrennwände. Die obere Reihe verfügt zudem über ein in die Horizontale knickendes Giebeldach – eine leicht augenzwinkernd fast-postmoderne Referenz an das «Haus», das man hier einem jeden Mieter zu versprechen scheint.

Wohnungsbau als Möbelbau

Die gerade einmal 60 m² Grundfläche jeder Maisonette sind mit Bedacht aufgeteilt, vor allem auf der unteren Etage mit der Sorgfalt eines Schreiners und Möbelbauers. Denn auch wenn sich das von aussen metallene Gebäude im Innern als Sichtbetonbau entpuppt, bestimmen Holzoberflächen den ersten Eindruck beim Betreten. Dreischichtplatten bilden nicht nur Wände, sondern eigentlich eher Möbel aus: Schon gegenüber der Eingangs­tür befindet sich ein in die Wand eingelassener Schrank, zu voller Entfaltung aber kommen die Fähigkeiten des Materials, der Planer und der Handwerker dann aber beim Toilettenraum im unteren Geschoss, dessen Wand sich zum Flur wie eine grosse, raumhohe Doppeltür vollkommen aufklappen lässt. Dann verdoppelt sich das kleine WC kurzerhand zu einem veritablen Badezimmer, das zugleich den Anforderungen an Barrierefreiheit gerecht wird.

Noch komplexer wird dieses Spiel zwischen Möbelbau und Architektur, wenn man feststellt, dass einer der Anschläge dieser Badezimmerdoppeltür auch als Griff des Kühlschranks in der benachbarten Küche dient. Dass hier wirklich kein Kubik­dezimeter Raum verschenkt wird, beweisen Stauflächen bis unter die letzte Stufe der nach oben führenden Treppe.

Weitere Artikel zum Thema Basel finden Sie in unserem E-Dossier.

Im rückwärtigen Teil öffnet sich der Wohnungsgrundriss auf die volle Weite, was freilich auch nur 3.2 m sind. Sichtbetonwände und -decken sowie ein geschliffener Hartbetonboden schaffen hier ein sehr nüchternes Interieur. Dessen Strenge mildert die Verlängerung des Raums über eine Glasfront hinaus ins Freie, im Erdgeschoss als Terrasse, oben als Balkon, wobei alle nachbarschaftlichen Freiräume aneinanderliegen wie sonst oft nur in Genossenschaftswohnsiedlungen.

Eher konventionell ist die Aufteilung des oberen Geschosses der Maisonettes in ein grosses und ein kleines Schlafzimmer mit einem dazwischenliegenden Bad. Ein hoher Luftraum über der beide Stockwerke verbindenden Treppe aber schafft eine angenehme Erfahrung der gesamten Höhe einer jeden Wohneinheit. Die obere Reihe von Wohnungen ist deutlich privilegiert durch den hölzern ausgekleideten Giebelraum, der die aussen suggerierte Heimeligkeit mit seiner Haubenform tatsächlich einlöst.

Die ausführliche Version dieses Artikels ist erschienen in TEC 21 1/2024 «Häuser im Hinterhof».

Passend zum Thema

 

Mit «Kosmos Hinterhof» wird ein Blick in Welten erlaubt, die zumeist nur Privatpersonen vorbehalten bleiben: in die Hinterhöfe Basler Blockrandbebauungen. Eine umfassende, mit vielen Plänen und Bildern versehene Analyse stellt fünf verschiedene Hoftypen vor.

  • Elias Aurel Rüedi (Hg.), Kosmos Hinterhof. Christoph Merian Verlag, Basel 2023. Broschiert, 144 Seiten, 106 Abbildungen, 21 × 28 cm, ISBN 978-3-85616-990-9, Fr. 39.–

Neubau Wohnhaus Oetlingerstrasse 49, Basel

 

Bauherrschaft
Pensimo Anlagestiftung, Zürich

 

Architektur
Felippi Wyssen Architekten, Basel

 

Tragkonstruktion
Konstruktiv, Gränichen

 

HLKS-Planung
Waldhauser + Hermann, Münchenstein

 

Elektroplaner
Ramseyer Elektro, Muttenz

 

Sanitärplaner
Swissplan Gebäudetechnik, Basel

 

Bauphysik
Ehrsam & Partner, Pratteln

 

Landschaftsarchitektur
META Landschaftsarchi­tektur, Basel

Verwandte Beiträge