Ele­ganz durch Schlicht­heit

Hauptsitz Christoph Merian Stiftung

Herzog & de Meuron haben für den Hauptsitz der Christoph Merian Stiftung einen Erweiterungsbau entworfen – einen feingliedrigen Holzbau, dessen Schönheit und Leichtigkeit den Hof aufwertet.

Publikationsdatum
17-01-2024
Gerhard Mack
Redaktor für Kunst und Architektur bei der «NZZ am Sonntag»

In ihrem Leitbild betont die Christoph Merian Stiftung (CMS) die Bedeutung der gesellschaftlichen und ökologischen Nachhaltigkeit für ihr Handeln: Sie «fördert den sozialen Zusammenhalt, die kulturelle Vielfalt und den sorgfältigen Umgang mit der Natur in der Stadt Basel.» Das liest sich so, wie es der Zeitgeist heute erfordert. Doch wie sieht es aus, wenn eine solche Verpflichtung konkret wird?

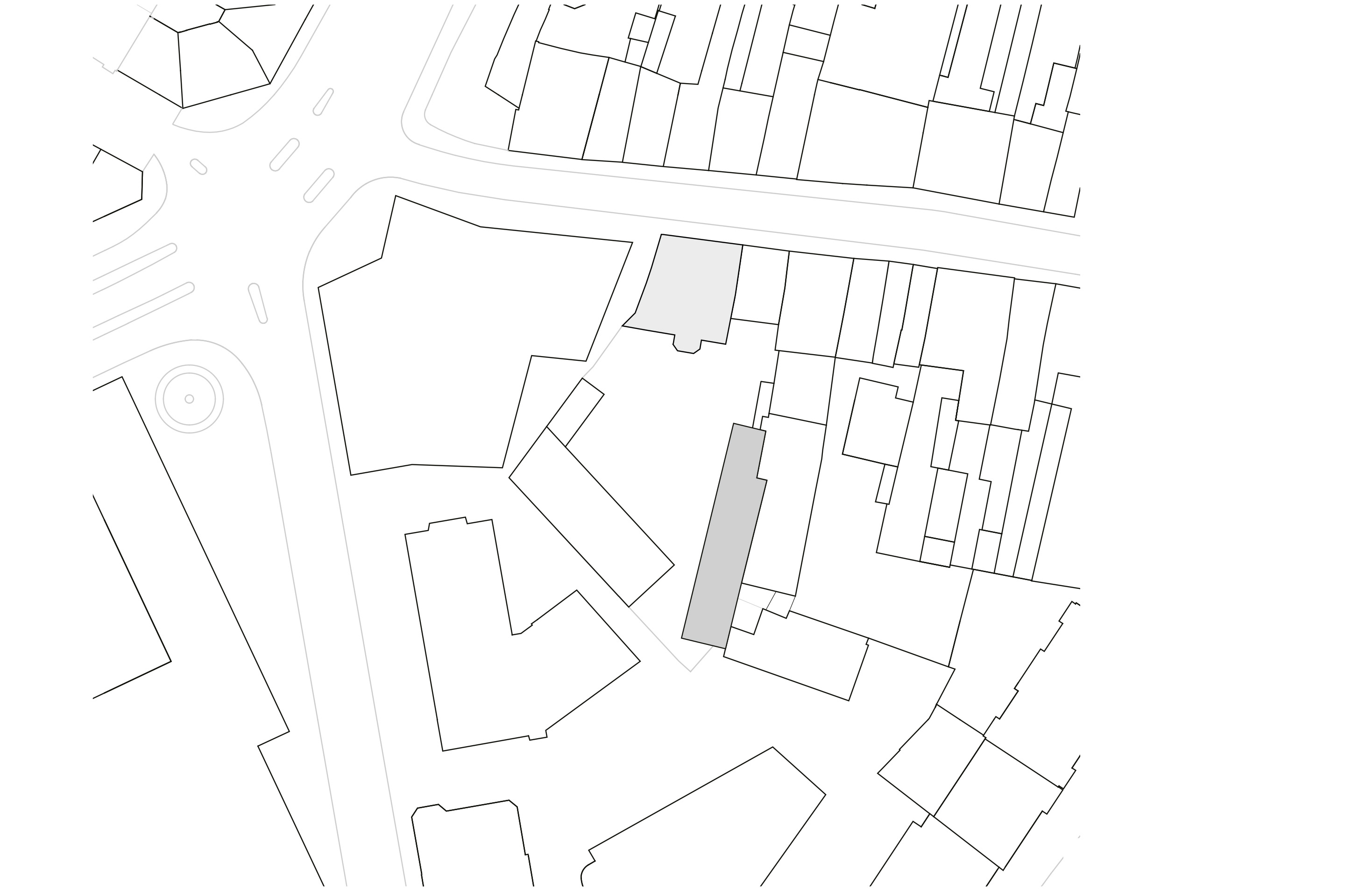
Dass sie es damit wirklich ernst meint, konnte die Stiftung 2023 mit dem Ergänzungsbau zu ihrem Hauptsitz an der St. Alban-Vorstadt 12 unter Beweis stellen. Im Hof hinter dem repräsentativen klassizistischen Steinbau von 1865, wo die ehemalige Schulzahnklinik und das Vorstadttheater standen, sollten die auf beiden Strassenseiten der St. Alban-Vorstadt liegenden Büros zusammengeführt werden.

Die Stiftung beauftragte Herzog & de Meuron 2018 mit einer Variantenstudie. Mit der «Vision Dreispitz» hatte das Büro bereits einen Masterplan für das Dreispitzareal im Besitz der Christoph Merian Stiftung vorgelegt und auch das Grossprojekt «Dreispitz Nord» stammt aus ihrer Feder. Mit der Bewirtschaftung des riesigen Geländes erzielt die Stiftung einen Grossteil ihrer Einkünfte. Nun sollte mit der Erweiterung des Hauptsitzes die Identitätskarte eine neue Facette erhalten.

Entgegen den Erwartungen, die man heute aufgrund der CO2-Diskussion hegen könnte, entschieden sich die Auftraggeberin und die Architekten nicht für die Erhaltung der Klinik, sondern für einen Neubau. Zwar hätte eine Wiederverwendung der Struktur nach allgemeiner Faustregel rund 40 % des CO2-Ausstosses beim Bau eingespart, doch erwies sie sich als ungeeignet, zeitgemässe Büros zu beherbergen: Das Gebäude verfügte über eine zu geringe Raumtiefe, die extrem kleinen Zimmer hätten sich nicht zu einer freien Bürolandschaft öffnen lassen, die Statik genügte nicht mehr den heutigen Anforderungen an die Erdbebensicherheit. Hinzu kam, dass der Bau von 1946 im Jahr 1969 um eine vierte Etage erweitert und im Innenausbau wie auch an der Fassade so stark verändert worden war, dass er nicht als schutzwürdig eingestuft werden konnte.

Mittelalterliche Hofsituation

Beim Ersatzbau für die ehemalige Schulzahnklinik galt es zunächst einmal, die städtebauliche Situation zu berücksichtigen: Die St. Alban-Vorstadt gehört zu den ersten mittelalterlichen Stadterweiterungen Basels und ist Teil der Stadt- und Dorfbild-Schutzzone mit besonderen denkmalpflegerischen Anforderungen. Der Katas­terplan weist für diese Zone tiefe Grundstücke und eine Bebauung mit repräsentativem Vorderhaus und rückliegenden, schuppenartigen Hofbauten aus, die tradi­tionell einfach und aus Holz ausgeführt waren und nicht mehr als drei Geschosse einnahmen.

An diesen ursprünglichen Charakter wollten Herzog & de Meuron mit ihrem Neubau anknüpfen. Eine schlichte Eleganz sollte sowohl Bescheidenheit als auch Selbstbewusstsein ausdrücken. Wer durch den Torbogen des Vorderhauses tritt, sieht einen Holzbau, dessen geschlossene Stirnseite begrünt wird und der sich vom Rand des Grundstücks aus mit einer Glasfassade und Laubengängen zum Innenhof hin öffnet.

Lesen Sie auch: «Wei­ter so, bit­te»Neubau Wohnhaus Oetlingerstrasse 49, Basel

Transparenz und eine Hinwendung zum Hofraum waren wichtige Ziele des Entwurfs. Sowohl die Auftraggeberin als auch die Architekten verstehen Nachhaltigkeit stets auch in ihrer gesellschaftlichen und sozialen Dimension; die Gestaltung als halböffentlicher Ort stand deshalb von Anfang an im Zentrum. Der Innenhof mit seinem schönen alten Baumbestand wurde aufgewertet.

Die Basler Landschaftsarchitekten Stauffenegger + Partner haben das alte Kopfsteinpflaster wiederverwendet und so verlegt, dass Regenwasser versickern kann. Die Architekten bauten einen späteren Anbau am Vorstadttheater zurück und erweiterten so den Durchgang zur dahinterliegenden Kirche von Otto Rudolf Salvisberg, die heute vom Sinfonieorchester ­Basel als Proberaum genutzt wird, zu einer Passage, die den Innenhof zu einem Teil des städtischen Wegenetzes macht und auch für Passanten erschliesst.

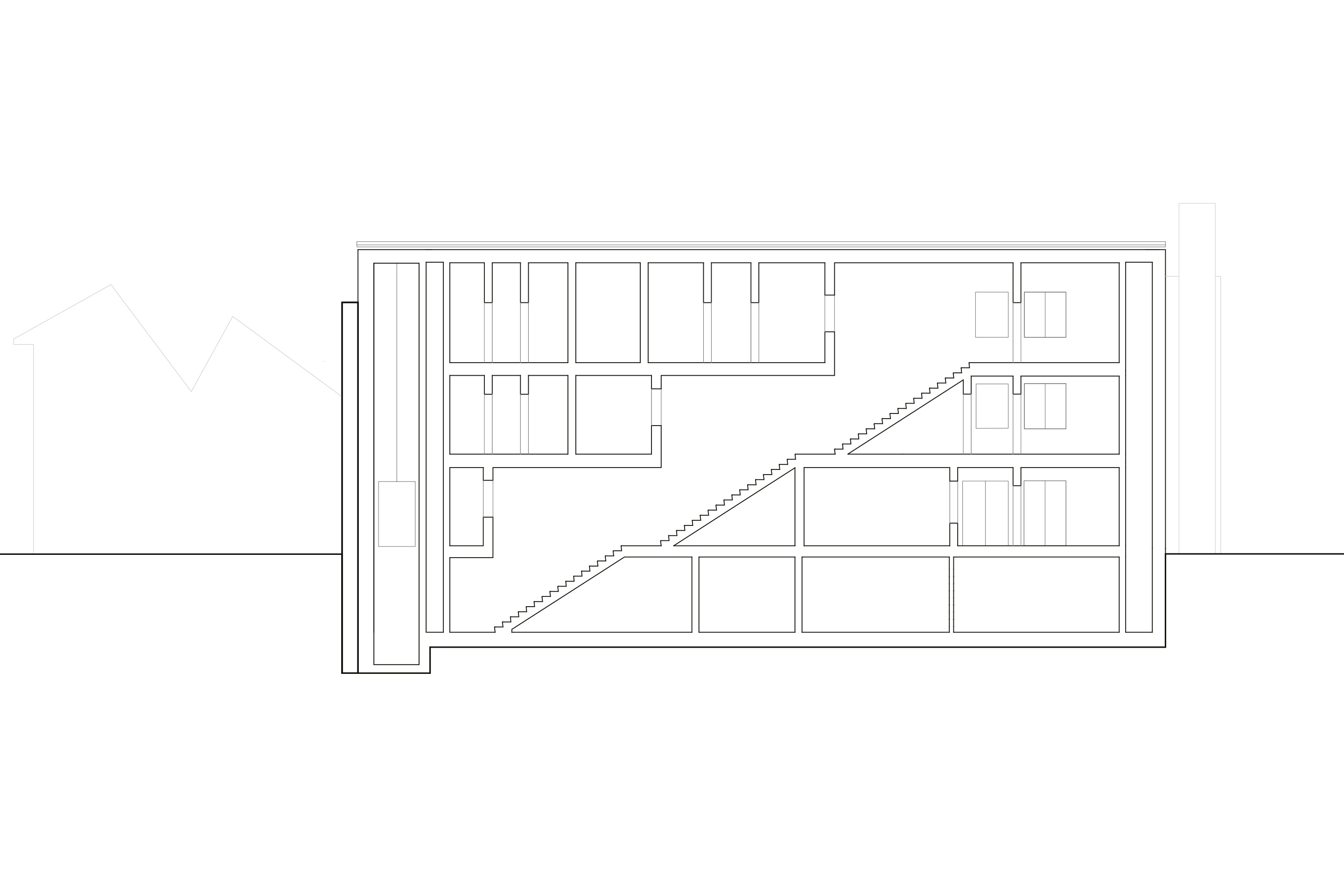
Lisenen und Brüstungen tragen mit

Der Neubau selbst ist strukturell in drei Schichten gegliedert. Durch die Lauben betritt man einen zentralen Eingang und findet sich in einem hölzernen Schrein wieder. Zu beiden Seiten liegen Büros, die durch Glaswände unterteilt sind. Dahinter führt eine durchgehende, geradläufige Treppe entlang der statisch ertüchtigten Brandmauer zu den beiden Obergeschossen. Hier finden sich auch Lift, Garderobennischen, Neben- und Serviceräume. Die beiden oberen Etagen bieten auf einer Länge von 36 m und einer Tiefe von 6 m offene, flexibel nutzbare Bürozonen an, in die Sitzungskuben aus Glas eingesetzt sind. Der obere Raum erhält durch die leichte Neigung des Pultdaches, das von dem Gebäude von 1946 aufgegriffen wurde, eine eigene Grosszügigkeit.

Weitere Artikel zum Thema Basel finden Sie in unserem E-Dossier.

Konstruktiv sind die Brandwand und die Kellerwanne mit Archiv, Kunstlager und Technikräumen in Stahlbeton ausgeführt. Die Brettstapeldecke wurde über die gesamte Gebäudetiefe von 10 m als Holz-­Betonverbunddecke realisiert. Davon abgesehen ist das neue Hofgebäude ein reiner Holzbau. Das Pultdach trägt Solarpanels, die Fussbodenheizung ist ans Fernwärmenetz angeschlossen. Der Luftwechsel erfolgt über Wärmeentzug, eine Klimatisierung gibt es nicht, Aussenluft wird mechanisch zugeführt.

Spezifische Details wie Verblechungen der äusseren Holzelemente und der Verzicht auf eine chemische oder farbliche Behandlung des Holzes fördern dessen lange Lebensdauer. Farbnuancen einer natürlichen Patina sind erwünscht. Die Lauben und Storenkästen für den textilen Sonnenschutz samt Wetterschutzblechen bieten zusätzliche Abschirmung. Der Materialeinsatz ist auf ein Minimum begrenzt. So übernehmen selbst die Stahlelemente der Laubenbrüstungen und die Holz­lisenen der Aluminiumrahmen statische Funktionen. Die Reliefierung der Deckenuntersicht und die Holzlattung der rückseitigen Saalwände tragen zu einer guten Raumakustik bei.

Die ausführliche Version dieses Artikels ist erschienen in TEC 21 1/2024 «Häuser im Hinterhof».

Erweiterungsbau Hauptsitz Christoph Merian Stiftung St. Alban-Vorstadt 12, Basel

 

Bauherrschaft
Christoph Merian Stiftung, Basel

 

Baumanagement
Dietziker Partner Bau­management, Basel

 

Architektur
Herzog & de Meuron, Basel

 

Tragkonstruktion
Schnetzer Puskas Ingenieure, Basel

 

Fassade
Christoph Etter Fassaden­planung, Basel

 

Landschaftsarchitektur
Stauffenegger + Partner, Basel

 

Gebäudetechnik
Kalt + Halbeisen Ingenieurbüro, Basel

 

Bauphysik
Kopitsis Bauphysik, Basel

 

Brandschutz
A. Aegerter  & Dr. O. Bosshardt, Basel

Verwendete Holzsorten

 

Stirnfassade
Weisstanne (Schweiz)

 

Balkon, Bodenbalken
Fichte/Tanne (Europa)

 

Balkon, Boden
Lärche (Europa)

 

Fassadenlisenen
Weisstanne (Schweiz)

 

Balkonkonsolen
Fichte/Tanne (Europa)

 

Brettstapeldecken
Fichte/Tanne (Europa)

 

Fassadenstützen innen
Stabbuche (Schweiz)

 

Wandverkleidungen innen
Fichte (Europa)

 

Parkett
Eiche (Europa)

Verwandte Beiträge