Nach oben ge­dacht

Umbau Schulhaus Pestalozzi Basel

Nach der Instandsetzung des Schulhauses St. Johann in Basel (2015/2016) und der Neugestaltung des dazugehörigen Platzes drei Jahre später kommen die Basler MET Architects erneut bei Umbauarbeiten auf dem Areal zum Zug: Aktuell wird das Dachgeschoss des Pestalozzi-Schulhauses ausgebaut und die Fassade saniert. Die geplanten Eingriffe überraschen vor allem bei Fragen des Denkmalschutzes und beim Umgang mit der Klimatisierung.

Publikationsdatum
21-09-2021
Tina Cieslik
Head of Multimedia | espazium digital lab; Korrespondentin Architektur/Innenarchitektur TEC21

Reportage Umbau Pestalozzi-Schulhaus
Wenn Architekturmedien über Gebautes berichten, ist die Arbeit meist schon getan. Wir machen es anders und nehmen Sie ein Jahr lang immer wieder mit auf die Baustelle des Pestalozzischulhauses in Basel. Dieser Artikel bildet den Auftakt zur Reihe.

Ende des 19. Jahrhunderts erlebte Basel einen Aufschwung: Innerhalb einer Generation verdoppelte sich die Bevölkerung von rund 27'000 Einwohnerinnen und Einwohnern im Jahr 1850 auf rund 60'000 im Jahr 1880. Grund dafür war die Industrialisierung. Die Betriebe siedelten sich vor allem im nordwestlichen Teil der Stadt, im Quartier St. Johann an – ein bis dato eher unwirtlicher Ort: im Mittelalter stand hier der städtische Galgen.

Das Bevölkerungswachstum brachte in St. Johann auch einen Ausbau der Infrastruktur und der öffentlichen Bauten mit sich. Ganz besonders galt das für die Schulhäuser. Von 1886 bis 1888 entstand hier mit dem Schulhaus St. Johann ein erster Bildungsbau, konzipiert vom damaligen Kantonsbaumeister Hermann Reese. Fünf Jahre später folgte auf dem gleichen Grundstück eine Sekundarschule für Knaben, das Pestalozzi-Schulhaus.

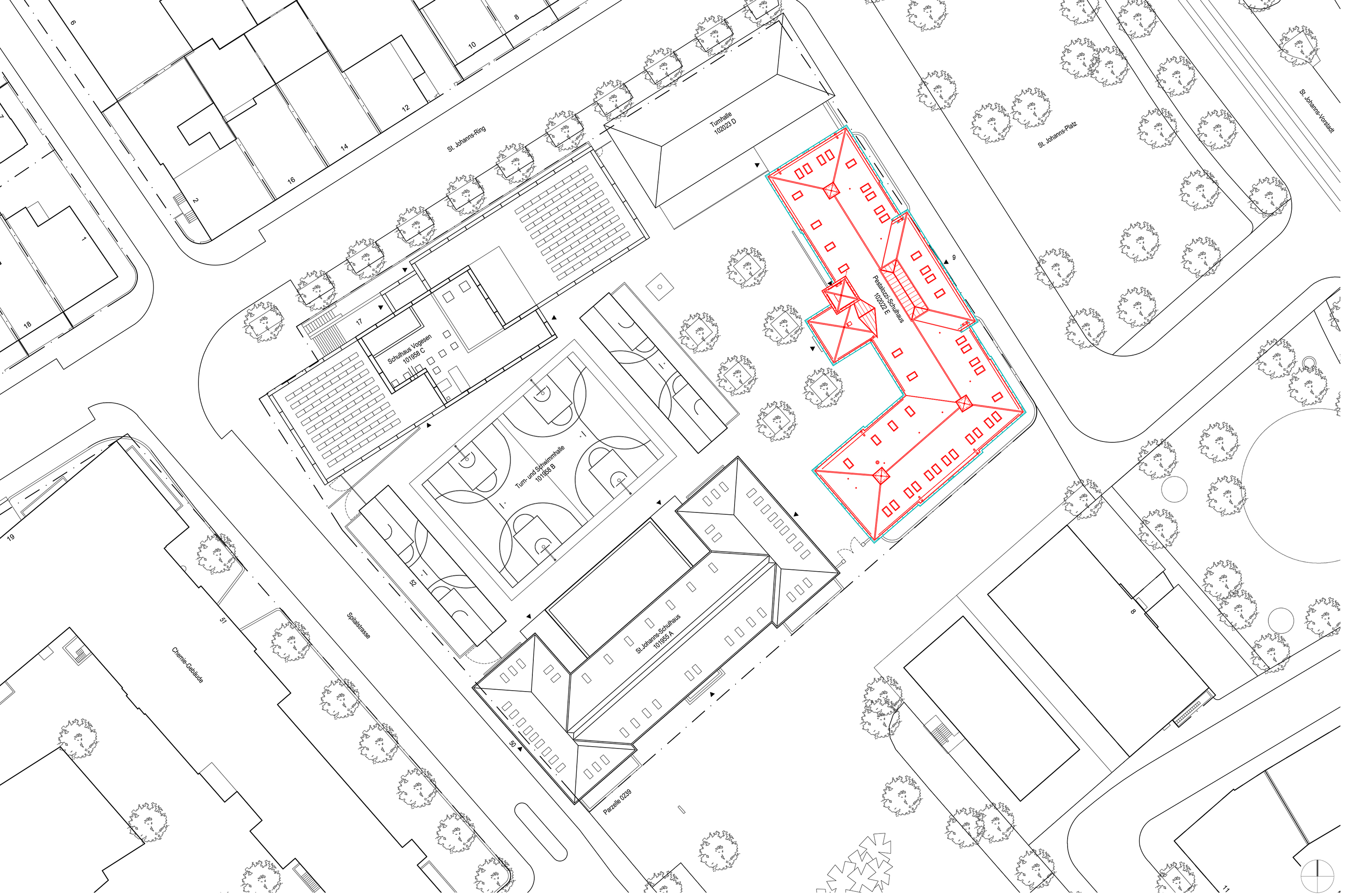
Der dreigeschossige, neobarocke Bau ist im Inventar schützenswerter Bauten verzeichnet und liegt im rechten Winkel zum Schulhaus St. Johann. Die Nordostfassade wendet sich dem Rhein zu, die repräsentative Südwestfassade dem Schulhausplatz. Reese, der allein in Basel zehn Schulhäuser realisierte, wendete bewährte Konzepte an: zentrale Erschliessung, ein geräumiger Korridor, hohe Räume, grosszügig belichtete und belüftete Klassenzimmer. Tatsächlich sind Konstruktion und Raumprogramm äusserst robust: Neben einigen kleineren Eingriffen, die letzten 2003 (Innensanierung; Diener & Diener Architekten) und 2017 (Erdbebensicherheit, Brandschutz; MET Architects), steht erst jetzt, rund 130 Jahre nach der Erbauung, eine grössere Renovation an.1

Luft nach oben

Das dafür vom Hochbauamt der Stadt Basel ausgeschriebene Planerwahlverfahren konnten 2019 MET Architects aus Basel für sich entscheiden. Ein glücklicher Zufall: Das Büro war bereits für die Instandsetzung des benachbarten Schulhauses St. Johann (2015/2016), für den Umbau des Schulhaus Vogesen (2016/2017) und für die Neugestaltung des Schulhausplatzes verantwortlich (2019).

Das Konzept für den Umbau und die Renovation sieht mehrere Schwerpunkte vor: Fenster und Sonnenschutz werden zur energetischen Verbesserung der Gebäudehülle ersetzt, die schadhaften Natursteinelemente repariert bzw. ausgetauscht und die Fassaden erhalten einen neuen Deckputz. Im Innern werden Beleuchtung und Akustik verbessert.

Ausschlaggebend für die aktuellen Arbeiten waren neben dem Instandsetzungsbedarf auch neue pädagogische Konzepte: Offene Lernateliers sollen die klassischen, auf Frontalunterricht ausgerichteten Klassenzimmer ergänzen. Der Entwurf der Architekten sah diese Ateliers im bisher ungenutzten Dachgeschoss vor. Mit einer Raumhöhe von rund 7 m und dem Kniestock auf 1.80 m Höhe weist es die nötigen Dimensionen für eine solche Nutzung auf.

Basler Windtürme

Doch es kam anders: Aufgrund schulinterner Überlegungen werden die Lernateliers nun einzelnen Schulzimmern in den Obergeschossen zugeordnet. Das Dachgeschoss wird dennoch ausgebaut und die Tagesbetreuung, die Räume für Textiles Werken sowie die neue Mediathek beherbergen. Damit bleibt ein wesentliches Entwurfsthema bestehen: Die neue Erschliessung des Dachgeschosses. Bisher erfolgte diese über eine kleine Seitentreppe am nördlichen Ende des Korridors.

Die ehemaligen Lehrertoiletten, die in einer Gebäudeecke auf der Südwestfassade platziert waren, wurden bei der Instandsetzung 2003 in einen Liftschacht umgebaut. Für die Erschliessung des Dachgeschosses wird der Liftturm über die Traufkante des Hauptbaus verlängert und bildet mit dem neuen Zeltdach einen Turm. Das Dach wird gedämmt und erhält Dachflächenfenster.

Die Belüftung soll mittels eines ausgeklügelten Konzepts sichergestellt werden: Weil die Dachflächenfenster bei Niederschlag nicht geöffnet werden können, sehen die Planerinnen und Planer Lüftungsfenster im Kniestock vor. Um die Luft wieder aus dem Raum zu führen, werden an den drei Kreuzungspunkten der Firstlinien Lüftungstürme aufgesetzt – durch den Kamineffekt kann die Luft so ohne Technikeinsatz entweichen. Diese unkonventionelle Lösung hat ein historisches Vorbild: Auf bauzeitlichen Fotografien des Baus sind auf dem Dach ebenfalls Türme mit Lüftungsschlitzen zu erkennen, obwohl das Dach nach heutigem Kenntnisstand nicht genutzt wurde. Die Lüftungstürme waren Teil der oben erwähnten Holz- / Kohle-Warmluftheizung, diese führten durch den thermischen Auftrieb die verbrauchte Luft nach aussen. Zusammen mit den Gauben sind die Türme wohl bei einer früheren Renovation verschwunden. Die neuen Türme werden sich in Grösse und Gestaltung an den historischen Vorbildern orientieren.

 

Anmerkung
1
In den 1930er-Jahren wurde die Holz- / Kohle-Warmluftheizung durch ein Einrohrheizung mit Radiatoren ersezt. In den 1970er-Jahren wurde die Fassade inkl. neuen Fenstern und neuem Deckputz bereits einmal saniert.

Am Bau Beteiligte

 

Generalplanung, Architektur
MET Architects, Basel
Rapp Architekten AG,  Münchenstein

Tragkonstruktion
wh-p Ingenieure AG, Basel

Elektroplanung
Eplan AG, Reinach

HL-Technik
herrmann & partner Energietechnik, Basel

Kanalisation, Sanitärtechnik
Bogenschütz AG, Basel

Bauphysik
Gruner AG,  Basel

Brandschutz
Aegerter & Bosshardt AG, Basel

Verwandte Beiträge