Ein Wohn­haus mit viel­fäl­ti­gen Vor­zü­gen

Mitten in der Stadt Biel wurde eine Brandlücke gefüllt, mit einem Mehrfamilienhaus, das das Klima umfassend schonen will – bei der Erstellung mit dem Baustoff Holz und im Betrieb mit eigener Energieversorgung.

Publikationsdatum
20-06-2023

Die private Bauherrschaft formulierte ein reiches Wunschprogramm: Erstens wollte sie einen klimagerechten Neubau. Zweitens waren die energetischen und ökologischen Anforderungen auf gesellschaftliche Bedürfnisse abzustimmen, etwa mit einem breiten Wohnungsmix und günstigen Mietzinsen. Drittens erwartete der Besitzer eine angemessene Rendite. Und zu guter Letzt bestellte dieser ein Wohnhaus mit hohen architektonischen Qualitäten.

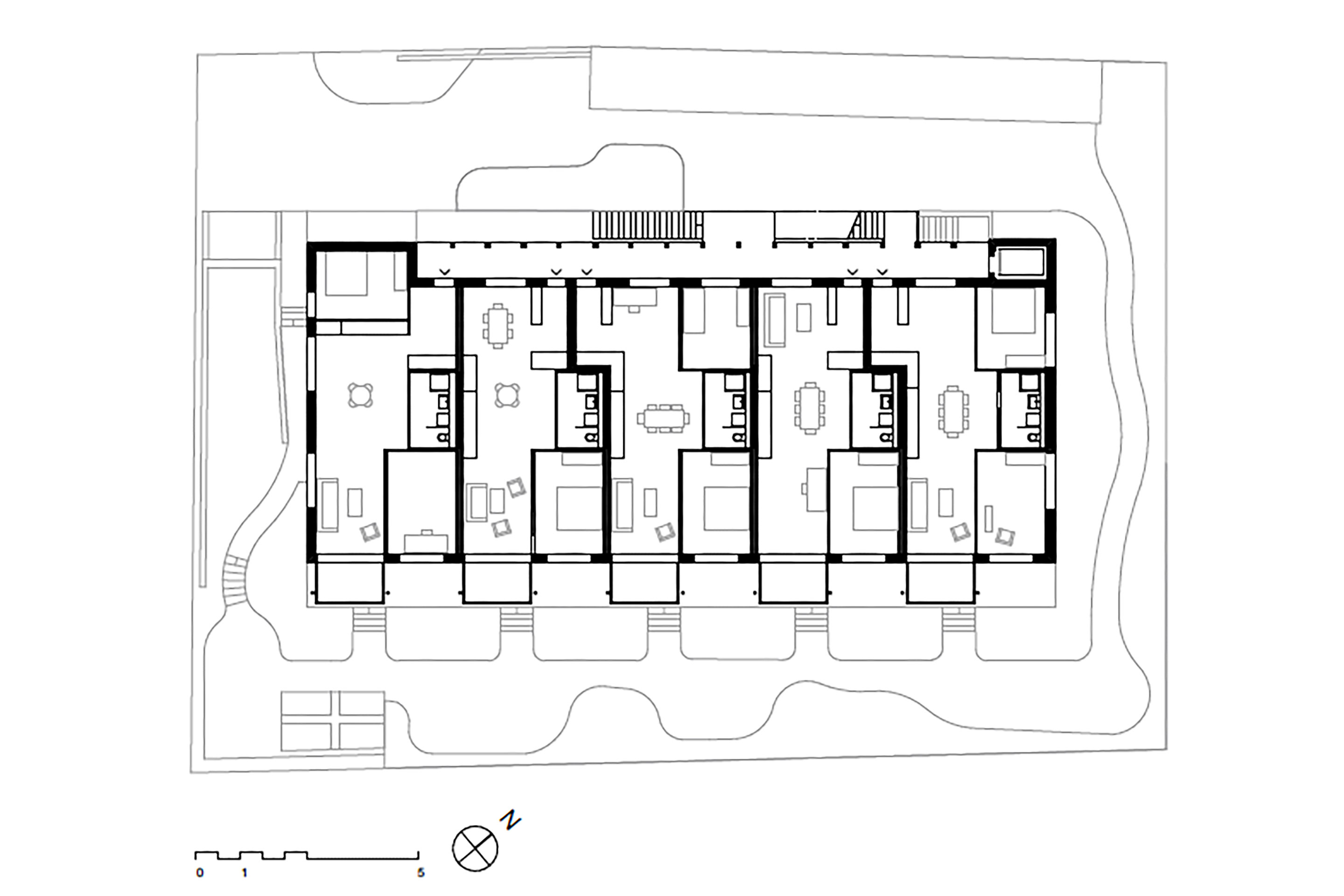
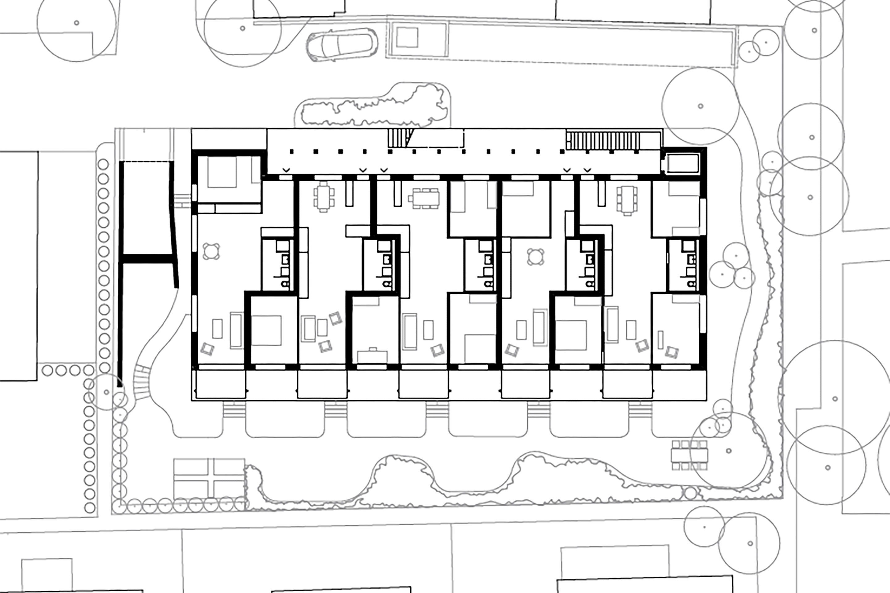
Der Platz, der dafür mitten in Biel zur Verfügung stand, erscheint im Gegenzug bescheiden. Vor wenigen Jahren brannte ein altes Stadthaus im Madretsch-Quartier aus. Nun soll diese Parzelle mit den aufgelisteten Wünschen nachhaltig wieder belebt werden. Der kompakte Neubau mit dem Namen «Maison Climat» steht inzwischen. Es ist ein fast 35 m langer, beinahe 15 m breiter und vier Stockwerke hoher Baukörper. Der Wiederaufbau wurde zur Standortverdichtung genutzt: Aus einem Angebot von zwölf Wohnungen sind neuerdings 20 geworden. Die Ausnützungsziffer auf dieser Parzelle erhöht sich von 1.25 auf 2.0. Den Massstabssprung rundet nach oben ein Mansardendach ab. Damit erschaffen Bürgi Schärer Architekten ein prägnantes Gesamtbild.

Holzkonstruktion mit Laubengang

Das Mehrfamilienhaus ist an den Längsseiten unterschiedlich gestaltet. Auf der Südostseite treten Loggien aus dem Dachgeschoss hervor, ebenso die Balkone aus den Normalgeschossen darunter. Die Nordwestseite zeigt dagegen eine Laubengangschicht mit vorgesetzter Aussentreppe aus Stahl und Beton. Das Bauwerk selbst ist eine tragende Holzkonstruktion. Die Fassaden sind mit Fichtenholz aus einheimischen Wäldern verschalt; ihre Oberflächen sind feingesägt und mithilfe einer Lasur vorvergraut.

Der Holzbau steht auf einem Betonsockel, der leicht über das gewachsene Terrain hinausragt. Das massive Untergeschoss bietet Platz für eine Auto-Einstellhalle, wobei das Mobilitätskonzept einen Parkplatz nur für jede zweite Wohnung vorsieht. Daneben befinden sich Kellerabteile sowie Räume für die Haustechnik, etwa die Lüftungszentrale und die Wärmepumpe, die ihre Wärme aus Erdsonden bezieht.

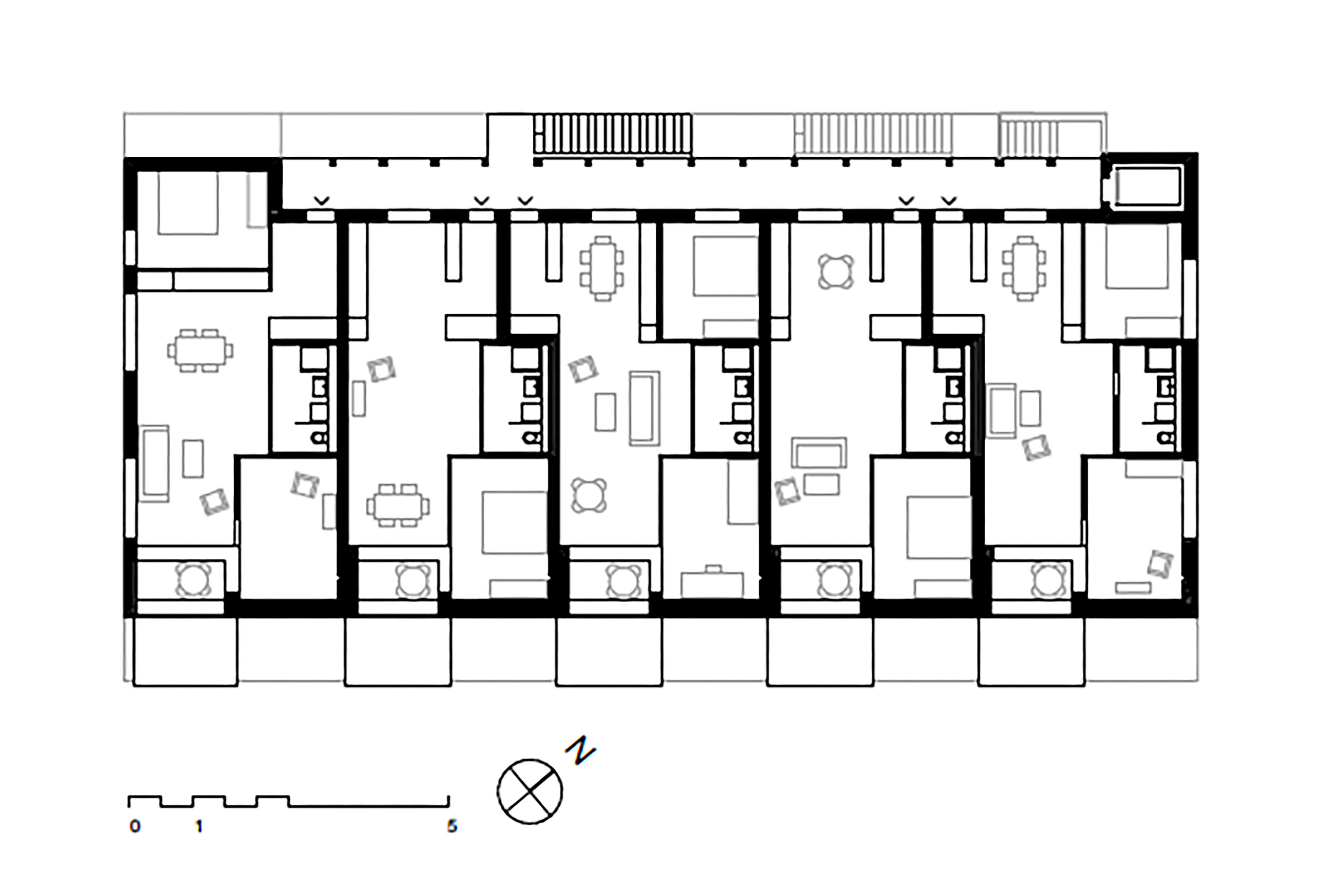
Grosszügiges Raumgefühl

Fünf Mietwohnungen teilen sich jeweils ein Geschoss und sind ihrerseits in rasterförmige Grundrisse eingeteilt. Das erlaubt eine suffiziente Raumnutzung und eine flexible Anordnung der Wohntypen. Eine 1.5-Zimmerwohnung ist 52 m2 gross; die Fläche einer 4-Zimmerwohnung beträgt 92 m2. Der Flächenkonsum pro Person liegt in der Maison Climat mit 43 m2 unter dem schweizerischen Pro-Kopf-Durchschnitt von 47 m2. Was knapp bemessen erscheint, wirkt bei der Besichtigung nicht beengend. Raumhöhen ab 2.60 m in den Regelgeschossen bis 3.30 m in der Mansarde tragen das Ihre zu einem grosszügigen Gefühl bei. Der natürliche Lichteinfall vorne und hinten ist hoch.

Nasszelle und Küche sind vorgefertigte, einheitlich ausgestatte Module und bilden jeweils die Grundrissmitte. Darum herum sind die Durchschusswohnungen differenziert zoniert und leicht zu möblieren. Ein Sitzplatz im Freien, im ebenerdigen Vorgarten respektive in den Balkonen darüber, erweitert die Wohnungen saisonal.

Stringente Konstruktion

Nach elf Monaten Bauzeit war das Gebäude im Februar 2022 bezugsbereit, dank einem hohen Vorfertigungsgrad der Holzbauteile sowie der vorfabrizierten Sanitär- und Küchenmodule. Die Struktur ist eine Mischung aus Rahmen- und Skelettbau sowie von Pfosten, Pfetten und Unterzügen. Auf Holzständer genagelte OSB-Platten bilden die sichtbaren Trennwände und stabilisieren die Tragkonstruktion in Querrichtung. Für eine Aussteifung in Längsrichtung sorgen Brettsperrholzplatten, die seitlich an die Nasszellen-Module angebracht sind. Das Material dafür stammt aus dem Schweizer Wald: Die tragenden Teile sind ebenso wie die Fassaden aus Fichten- und Weisstannenholz. Die Einbaumodule sind an den Ecken mit Pfosten aus verleimter Buche eingerahmt.

Bei den Geschossdecken wurde dem internen Schallschutz hohe Beachtung geschenkt. So dämpft eine vielschichtige, fast 30 cm mächtige Bodenkonstruktion vor Trittschall: Die von unten sichtbare Brettholzschicht trägt eine gebundene Schüttung, in die haustechnische Leitungen eingelegt sind. Die Abdeckung darüber besteht aus zwei Schichten: einem Trittschall dämpfenden Unterlagsboden sowie einem strapazierfähigen Klötzliparkett aus Eiche.

Verkleidung als Gestaltungsmittel

Die offene Erschliessungsschicht an der Nordostfassade ist aus funktionalen und brandschutztechnischen Gründen mit Stahl, Beton und Gipsfaserplatten materialisiert. Das dahinter liegende Gebäude leuchtet gelb; ebenso wie die Dachloggien auf der Vorderseite. Diese Farbe wirkt als architektonisch prägendes Element.

Der Aussenraum ist mit einheimischer Flora reichhaltig gestaltet und bepflanzt. Der Vorgarten bietet dank zusätzlicher Sitz- und Spielplätze eine gemeinschaftliche Aufenthaltsqualität. Einladend und identitätsstiftend wirkt auch die Ankunftszone mit überdachten Veloabstellplätzen. Die begrünte Balkonschicht darüber sorgt für eine natürliche Klimatisierung am Maison Climat.

Rundum ein Gewinn

Der private Auftraggeber definierte ein vielfältiges Nachhaltigkeitsprogramm. Erfüllt der realisierte Ersatzneubau diese Wunschliste? Bau und Betrieb greifen auf bewährte Elemente und den Stand der Technik zurück, aber gehen einige Male darüber hinaus: Die Konstruktion kommt ohne massiven Kern aus, weshalb der natürliche Baustoff Holz reichlich verwendet wird. Das biogene Material speichert gemäss einer Projektbilanzierung 409 t Kohlenstoff temporär. Die Wärmeerzeugung erfolgt lokal und klimaschonend: über eine Nutzung von Erdwärme. Strom für den Eigenbedarf erzeugen Photovoltaikmodule auf dem Flachdach und an der südlichen Mansardenflanke. Auf einer Gesamtfläche von etwa 370 m2 liefern sie mehr Energie, als der Plusenergie-Gebäudestandard Minergie-A verlangt (vgl. Anmerkung unten).

Zum ganzheitlichen Verständnis von Nachhaltigkeit, das Bauherrschaft und Projektverfasser gemeinsam vereinbarten, gehört auch ein Mehrwert für die Bewohnerinnen und Bewohner. Ein wesentliches Kriterium dafür ist der bezahlbare Wohnraum. Eine 4.5-Zimmerwohnung, deren Miete monatlich weniger als 2000 Franken inklusive Nebenkosten beträgt, scheint diese Vorgabe zu erfüllen. Was an der Substanz des Wohngebäudes generell zu loben ist: Das Maison Climat zeichnet sich durch eine einfache, räumliche und technische Typologie aus.

Mehr eigener Strom als geplant

Das Energiemonitoring liefert nach den ersten elf Betriebsmonaten positive Erkenntnisse: Heizungs- und Lüftungsanlagen konsumierten 20 % weniger Strom als gemäss der Bedarfsberechnung zu erwarten war. Wäre das Warmwassersystem effizienter eingestellt gewesen, hätte noch mehr Energie eingespart werden können. Nicht optimal war, dass das Brauchwasser zu über 20 % direkt elektrisch und zu 80 % über die Wärmepumpe erwärmt wurde. Die positive Anfangsbilanz kaum trübte dagegen der Umstand, dass Raumthermostate in einigen Wohnungen auf 23° C statt 20° C eingestellt waren.

 

Besser als prognostiziert fiel auch die Stromproduktion als: Die effektiven Erträge übertreffen die Planungsprognose um fast 10 %. Ertragsplus und Minderkonsum sorgen in der Summe für einen weiteren positiven Nebeneffekt: Die Eigenverbrauchsquote stieg. Das Maison Climat bezieht nicht wie geplant 20 % des Stroms aus eigener Quelle, sondern sogar doppelt so viel.

 

Maison Climat, Biel

Bauherrschaft
privat

 

Architektur
Bürgi Schärer Architekten, Bern

 

Tragkonstruktion
Nydegger + Finger, Bern

 

Totalunternehmung
Beer Holzbau, Ostermundigen

 

Holzbau- und Brandschutzplanung
Holz Wenger, Längenbühl

 

Energieplanung
Energie hoch 3, Bern

 

HLS-Planung
Grütter Gebäudetechnik, Bönigen

 

Elektroplanung
Fux & Sarbach Engineering, Bern

 

Landschaftsarchitektur
bbz Landschaftsarchitekten, Bern

 

Auswahlverfahren TU 2019

Planung: 2020 – 2021

Ausführung: 2021 – 2022

Parzelle: 1393 m2

Geschossfläche: 2352 m2

Gesamtnutzfläche: 2450 m2

Gebäudevolumen: 7500 m3

Kosten BKP 1 – 9: 7.64 Mio. CHF

Gebäudekosten BKP: 7.6 Mio. CHF

Zertifikate: Minergie-A / Schweizer Holz

Verwandte Beiträge