Viel­fäl­ti­ges Woh­nen im be­grün­ten Glas­haus

Im Wohn- und Atelierhaus Lyse-Lotte auf dem Lysbüchel stapeln sich unterschiedliche Wohnformen. Raum für grosse Familien, für Wohnen und Arbeiten im Atelier wie auch für altersgerechtes hindernisfreies Wohnen: In der Lyse-Lotte passt alles unter ein gemeinsames Dach. 

Publikationsdatum
08-12-2025

Auf dem Lysbüchel-Areal im Norden Basels steht parallel zum umgebauten Weinlager ein weiterer Zeilenbau, kürzer, schmaler und filigraner als sein massiver Nachbar: das Wohn- und Atelierhaus Lyse-Lotte von Atelier Clauss Kahl Merz in Zusammenarbeit mit Martina Kausch.

Gebänderte Fassaden

Nach Norden, Osten und Westen ziehen sich Fensterbänder über die ganze Breite der Fassaden. Auf der Nord- und Südseite sind die Fassaden im hinteren Bereich zugunsten schmaler Terrassen im dritten und vierten Obergeschoss zurückversetzt. 

Weitere spannende Projekte auf dem Areal Lysbüchel finden Sie im E-Dossier "Volta Nord"

Grosse, weisse Faserzementplatten verkleiden die geschlossenen Fassadenbereiche und verstärken den reflektierend leichten Gesamteindruck des Gebäudes, während Fallarmmarkisen mit hellgrauem Stoff vor allen Fenstern sicherstellen, dass im Sommer nicht zu viel Hitze eindringt. 

Die Südseite hingegen ist komplett verglast und durch einen begrünten Vorbau aus Stahl geprägt, der dem Erdgeschoss als Vordach, dem zweiten Obergeschoss als Laubenerschliessung und dem dritten Obergeschoss als Terrasse dient. 

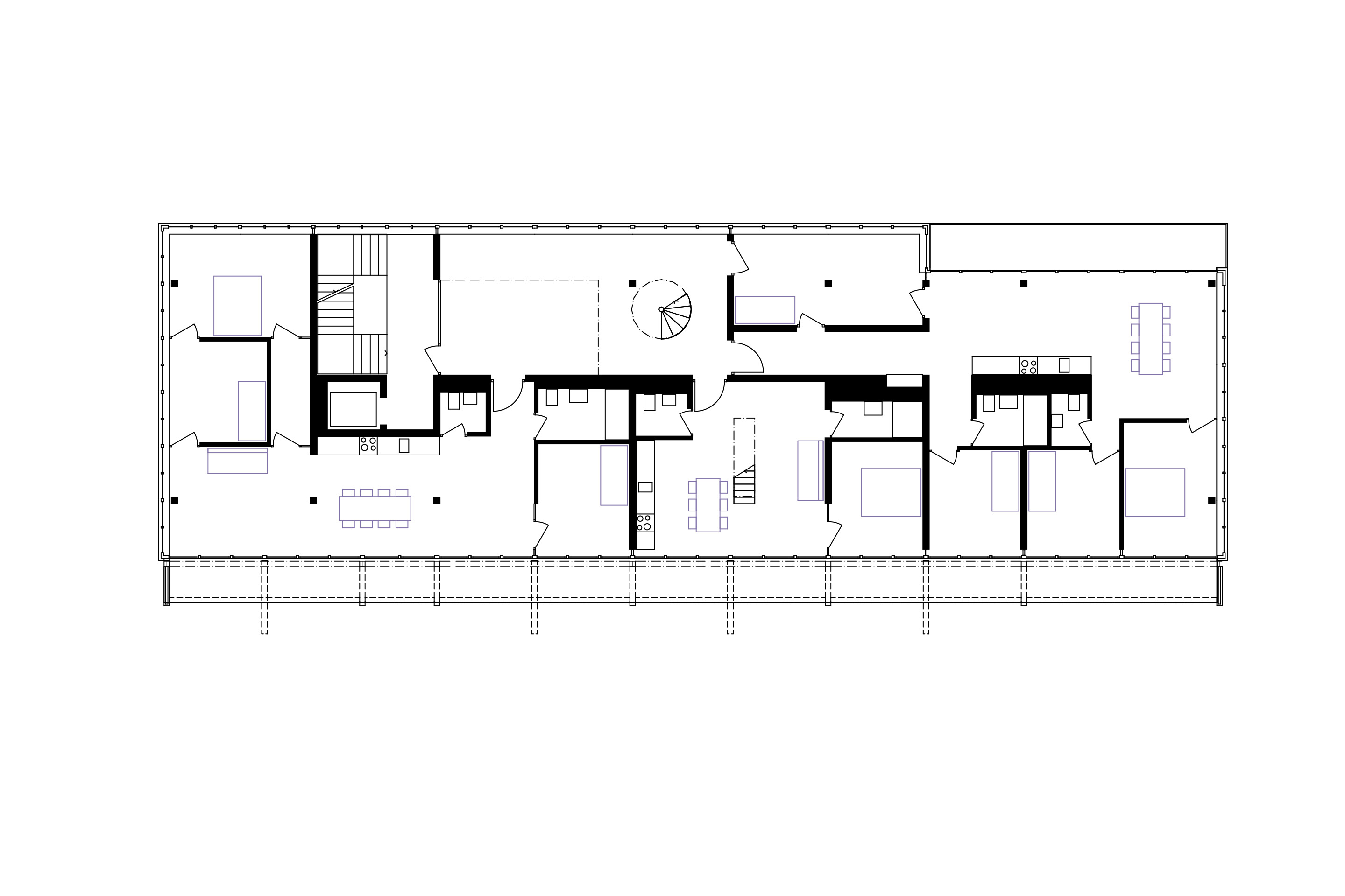
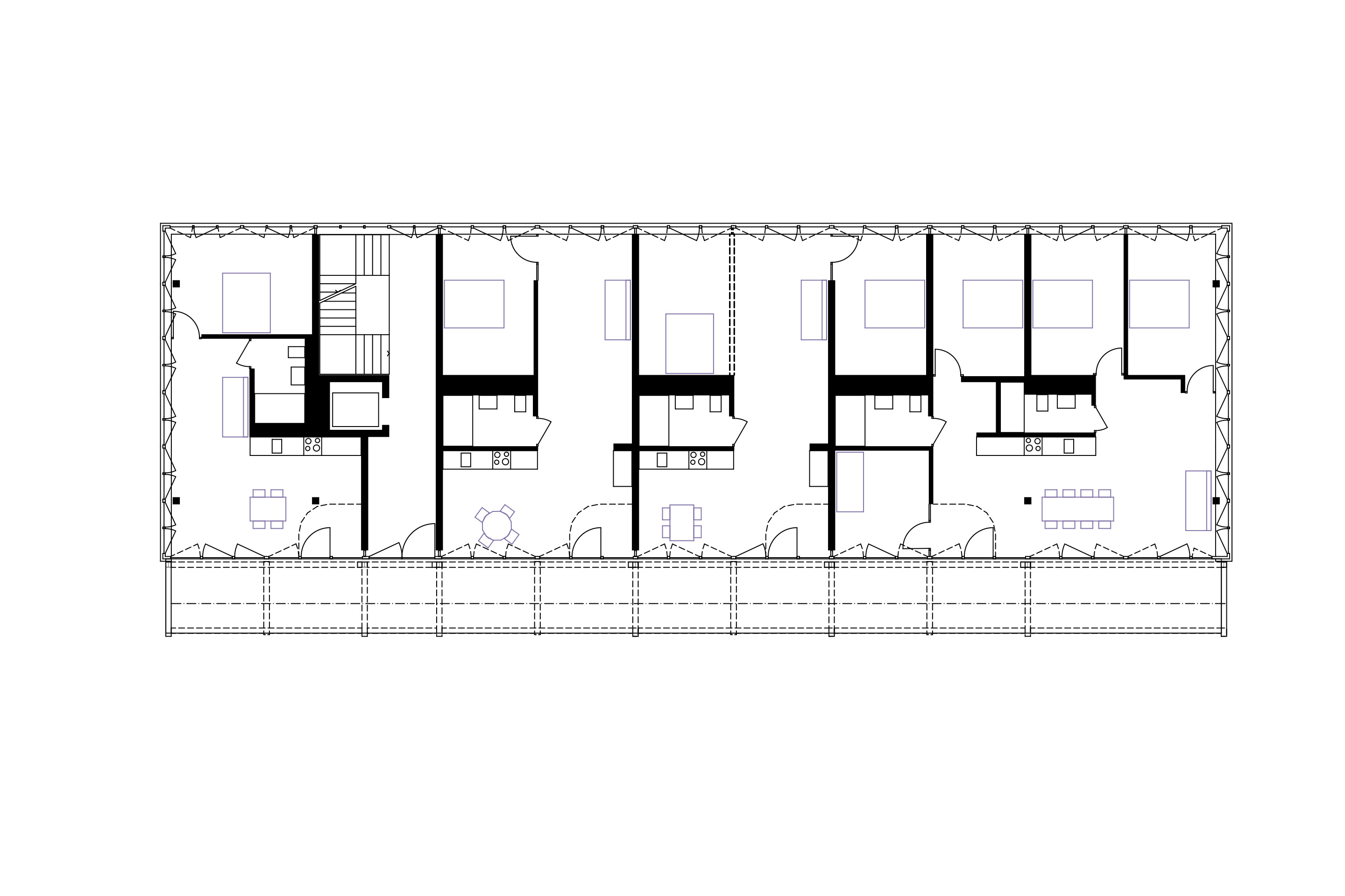
Vielfältige Grundrisse

Im Innern gleicht kaum eine Wohnung der anderen, auf jedem Stock sind die Grundrisse anders angeordnet. Diese grosse Vielfalt liegt auch an der Trägerschaft des Projekts, die aus ursprünglich drei Interessengruppen besteht.

So stapeln sich nun grosse Familienwohnungen mit gemeinsamer Eingangshalle über LEA-zertifizierten, hindernisfreien und altersgerechten Laubenwohnungen, während im überhohen Sockel in zweigeschossigen Wohnateliers gewohnt und gearbeitet wird. 

Gemeinsames Dach mit Aufbauten

Inzwischen leben rund 40 Personen in der Lyse-Lotte, die genossenschaftlich organisiert und finanziert ist. Zusammengehalten werden die unterschiedlichen Wohnungsangebote durch gemeinsame Räumlichkeiten, insbesondere das gemeinsame Dach mit Terrasse, Gewächshaus und Gästewohnung. 

Das Dach prägt auch die städtebauliche Erscheinung des Baus: Ein auffälliges, steiles, gläsernes Satteldach krönt ihn auf Seite des Beckenwegs, während sich am anderen Ende der grossen Dachterrasse quer angeordnet die Gästewohnung in einem kleinen Häuschen mit Solar-Satteldach befindet. 

Gewächshaus auf dem Dach

Der gläserne Dachaufbau, von Süden und Westen intensiv besonnt, dient dem Haus als Sitzungszimmer und tatsächlich auch als Gewächshaus. Man munkelt, dass sogar andere aus der Nachbarschaft ihre empfindlichen Pflanzen zum Überwintern vorbeibringen. 

Auch im Sommer ist der Raum durch seine automatisierte Lüftungs- und Verschattungstechnik gut nutzbar. Daneben bietet die grosse, teilweise überdeckte und begrünte Dachterrasse einen beschatteten gemeinschaftlichen Aussenraum. 

Ob sich das viele emissionsintensive Glas an der südseitigen Fassade bewährt, wird sich langfristig zeigen – bauphysikalisch jedenfalls ist der sommerliche Wärmeschutz erfüllt und durch die Fenster, die sich allseitig öffnen lassen, kann das Gebäude nachts auskühlen. So oder so: Gestalterisch überzeugt das filigrane Erscheinungsbild der Lyse-Lotte, wie auch die Sorgfalt, mit der die unterschiedlichen Bedürfnisse in einem kohärenten und prägnanten Volumen vereint werden. 

Wohn- und Atelierhaus Lyse-Lotte

 

Fertigstellung: 2023

Bauherrschaft: Wohnbaugenossenschaft Lyse-Lotte, Basel

Architektur: Clauss Kahl Merz Atelier für Architektur + Städtebau, Basel, bis Bauprojekt in Zusammenarbeit mit Martina Kausch, Basel

Tragkonstruktion: ZPF Ingenieure AG, Basel

Bauphysik: BAKUS Bauphysik & Akustik, Basel

Landschaftsarchitektur: Studio Céline Baumann, Basel

Baumeister: Knecht Bauunternehmung AG, Münchenstein

Fenster: Gerber-Vogt AG, Allschwil

Zimmermann: Hürzeler Holzbau AG, Basel

Stahlstruktur: Wetter AG, Stetten

Gewächshaus: Kirchhofer Gewächshaustechnik AG, Langenthal

Plattenarbeiten: Cristofoli AG, Basel

 

AuszeichnungenBester Wohnungsbau, swiss arc award 2024

Kosten (BKP2): 8.1 Mio. Fr.

Mietzinse: 3-Zimmer-Wohnung, 79 m2:1750 Fr./Monat

Tags

Verwandte Beiträge