Vom Frag­ment zum Ge­bäu­de

Loeliger Strub Architektur realisieren mit LysP8 auf dem Basler Lysbüchel-Areal Wohnungen aus wiederverwendeten Bauteilen – und begeben sich auf die Suche nach einer neuen Re-Use-Ästhetik.

Publikationsdatum
07-12-2025

Auf dem Lysbüchel-Areal sind bereits einige bemerkenswerte Projekte entstanden. Nun wird der erste Hofblock des neuen Quartiers mit der Fertigstellung des letzten Bausteins vollendet: LysP8. 

Die Grundeigentümerin, Stiftung Habitat, vergab das Projekt im Rahmen eines Auswahlverfahrens, eine zentrale Vorgabe war die Wiederverwendung von Bauteilen. Der Entwurf von Loeliger Strub überzeugte. Und er beinhaltete eine Idee, die so simpel wie visionär klingt: Bauteile aus einem Rückbauprojekt in Luzern, das ebenfalls von Loeliger Strub betreut wird, werden nach Basel transferiert und dort erneut eingesetzt. Ganz im Sinne des Prinzips: Nichts geht verloren, alles wird verwandelt. 

In der Praxis jedoch erwies sich die Abhängigkeit der beiden Planungs- und Rückbauprozesse als Herausforderung und konnte letztlich nicht umgesetzt werden – das Luzerner Gebäude steht noch immer. Unabhängig davon zog das Team schon früh im Prozess das Büro Zirkular hinzu, das auf Wiederverwendung spezialisiert ist. So konnten sie die benötigten Elemente anderweitig beschaffen und der ursprünglichen Entwurfsidee dennoch so nah wie möglich kommen.

Re-Use und 45 m² EBF pro Person

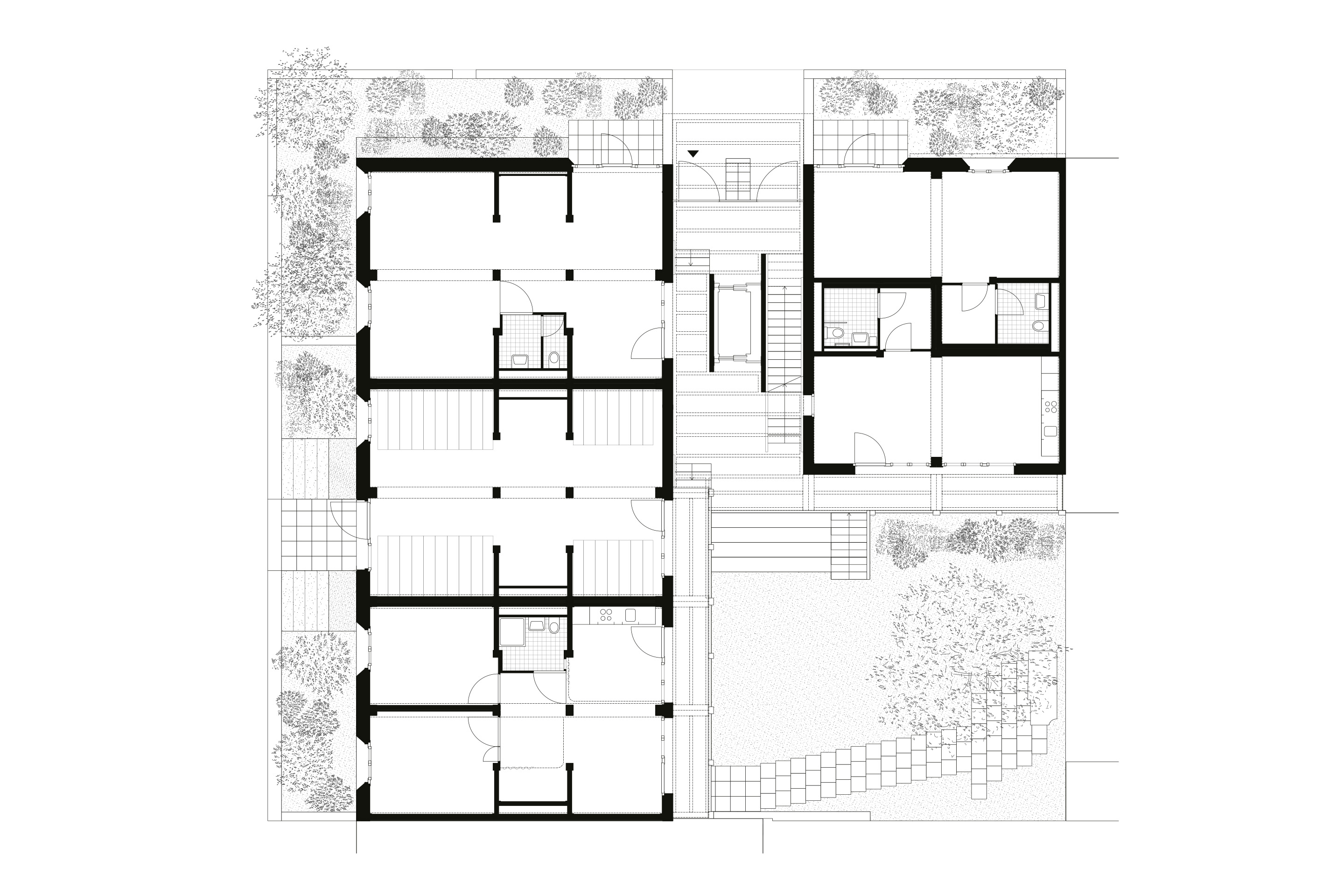
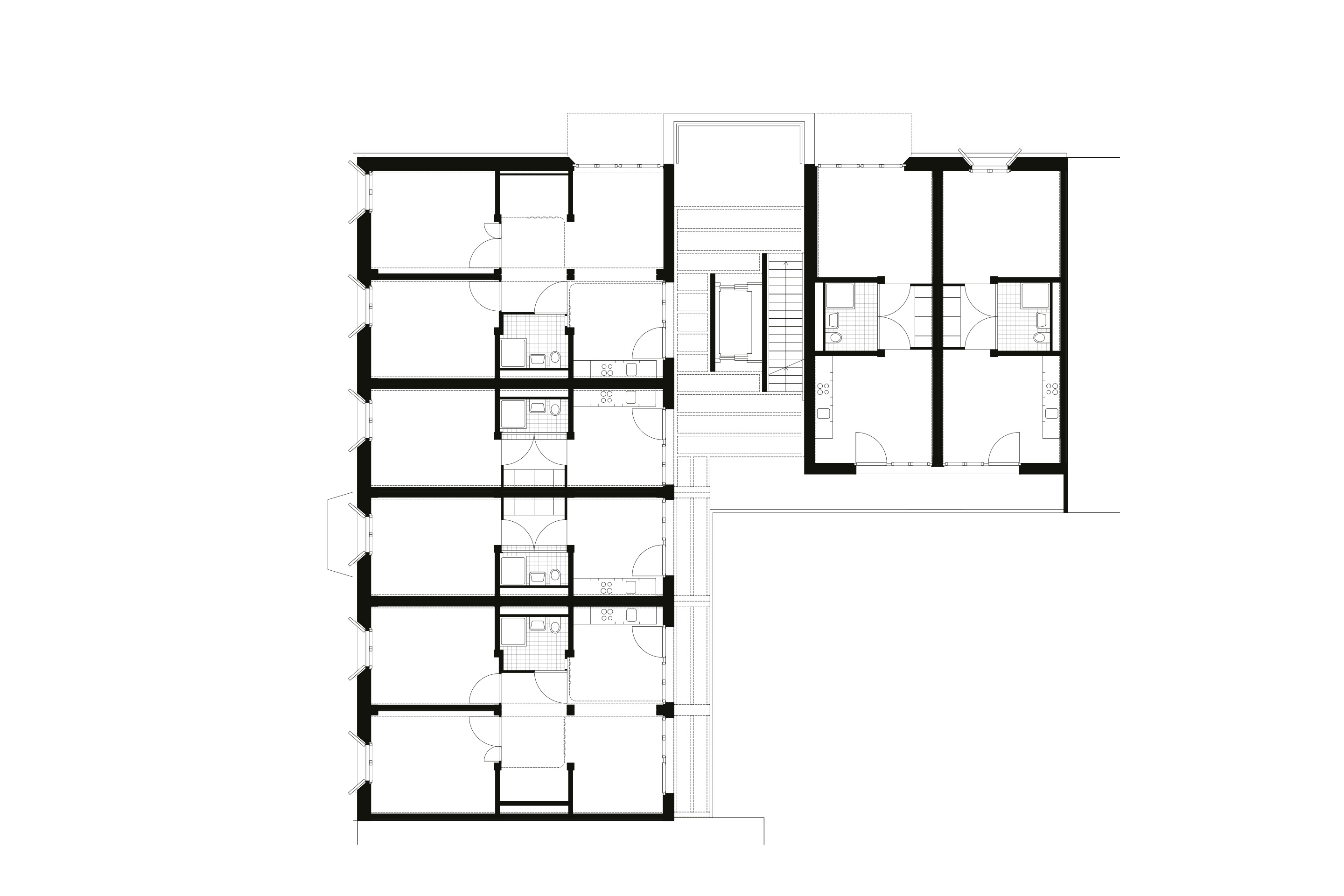
Eine zweite zentrale Vorgabe der Bauherrin: Die Energiebezugsfläche (EBF) durfte 45 m² pro Person nicht überschreiten. Die architektonische Antwort darauf war, die Erschliessung zugleich als Begegnungsort und als unbeheizte Zone auszubilden. Das Treppenhaus teilt den Baukörper in zwei Flügel und fungiert als Verbindungsnukleus. 

Weitere spannende Projekte auf dem Areal Lysbüchel finden Sie im E-Dossier «Volta Nord» 

Im Erdgeschoss öffnet es sich sowohl zum Hof als auch zum künftigen Lysbüchelplatz – ein städtebaulich wirksames Gelenk. Anstelle des im Quartier St. Johann typischen Erkers markiert hier eine Abfolge von Balkonen den Eingang und signalisiert eine bewusste Distanzierung von der Bautradition des Umfelds. Auch die Aussenerschliessung und die Fassadengestaltung betonen diese Haltung. 

Das Projekt verzichtet auf Putz oder Klinker, die das Quartier prägen, und entwickelt im Zeichen des Re-Use eine eigene Sprache. LysP8 versteht sich damit als experimenteller Beitrag im neuen Stadtteil – und sucht die Nähe zu den heterogenen, jungen Nachbarn, weniger zu den bestehenden Bauten. Dies eröffnet ihm eine grosse gestalterische Freiheit.

Von der Wohnungseinheit zum Grundriss

Die Wohnungen befinden sich in den Obergeschossen, während das Erdgeschoss Platz für Gewerbeflächen, einen Veloraum sowie einen Gemeinschaftsraum bietet. Da Holzbau vorgeschrieben war und die maximale Fläche pro Person reduziert werden musste, lag die Priorität auf einer einfachen, modularen Struktur. 

Jeder Flügel basiert auf der Wiederholung eines Moduls aus vier Stützen mit aufliegenden Trägern. Auf der Westseite befinden sich sechs Module, auf der Nordseite zwei. Die kleinste Wohnung bestimmt den strukturellen Rhythmus, der sich bei Bedarf vervielfacht, um eine 3.5- oder 4.5-Zimmer-Wohnung zu bilden.

Dieser Rhythmus wird durch eine raffinierte Lösung ermöglicht: Den Ersatz einer Badezimmerwand durch zwei Drehflügeltüren. Geschlossen bilden sie die Trennung von Bad und Korridor. In dieser Position entspricht das Badezimmer zwar nicht den Vorgaben der SIA 500 Hindernisfreies Bauen. Geöffnet jedoch verschmilzt der Korridor mit der Nasszelle, wodurch die erforderliche Bewegungsfreiheit gewährleistet wird. 

So reduzieren Loeliger Strub die Grösse des Moduls und optimieren die verfügbare Fläche. Zudem entsteht eine typologische Flexibilität: Mit geöffneten Türen werden Schlaf- und Wohnbereiche voneinander getrennt, was Privatsphäre schafft, ohne den Zugang zum Bad zu privatisieren – ein Vorteil insbesondere in kleineren Wohnungen. 

Re-Use oder neue Brutalität?

Trotz der veränderten Materialquellen blieb die Fassade der ursprünglichen Entwurfsidee weitgehend treu. Besonders augenfällig ist die Umnutzung von Bauteilen: Dachziegel werden als mineralischer Fassadenbelag eingesetzt, weinrote Fensterläden kontrastieren mit blauen Rahmen. Während sich die Farben im Planungsprozess änderten, blieb die formale Komposition erhalten.

Die ursprünglich angelegte Dreiteilung zeigt sich auch im ausgeführten Bau, wobei nun auch der Sockel mit Ziegeln verkleidet ist. Da diese aus drei unterschiedlichen Quellen stammen, heben sie sich farblich voneinander ab. Das Attikageschoss wird von einem Band aus Eternit abgeschlossen – Restposten, die vor der Entsorgung gerettet wurden.

Mehr zum Thema im E-Dossier Kreislaufwirtschaft

Auch auf der Hofseite begegnet man dem Material. Eternitplatten, die vom Hersteller als unverkäuflich eingestuft wurden, verkleiden nun weite Flächen. Mit systematischer Katalogisierung und geschickter Anordnung schufen die Architektinnen und Architekten trotz unterschiedlicher Texturen und Farben ein homogenes Fassadenbild – Beleg für eine präzise architektonische Absicht, die nichts den Zufällen des Re-Use überliess.

Balkon, ein Luxusartikel?

Die Konzepte für Fassade und Erschliessung zeigen, dass das Projekt die Einbindung ins Quartier weniger über formale oder konstruktive Bezüge sucht als über städtische Beziehungsnetze. Die Laubengänge sind mehr als Verkehrsflächen: Sie sind auch Orte der Begegnung. 

Während alle Wohnungen Zugang zu gemeinschaftlichen Aussenräumen haben – Laubengang, zwei Gemeinschaftsbalkone und Gartensitzplatz –, verfügen nur Familienwohnungen über private Balkone. Die Architektinnen und Architekten begründen dies mit einem Konzept sozialer Nachhaltigkeit, dessen Wirkung auf die Wohngewohnheiten sich erst zeigen wird. Gerade jüngere Mietende verzichten nur ungern auf einen Balkon. 

Um diesem Bedürfnis Rechnung zu tragen und zugleich die Vorgaben der Bauherrin einzuhalten, entschieden sich die Projektverantwortlichen für eine Mischung aus privaten und gemeinschaftlichen Balkonen. Ergänzt wird das Angebot durch Stufenanlagen aus recycelten Gitterrosten, die das Niveau zwischen Strasse und Hofgarten ausgleichen und zugleich soziale Treffpunkte bilden.

Eine Ästhetik der Gebrauchsspuren

Auch im Inneren wurde experimentiert. Einige Wohnungen im Nordflügel weisen etwa Holzdecken oder Gipslehmböden auf – Elemente, die aufgrund fehlender Verfügbarkeit und Kostendruck nicht durchgängig ausgeführt wurden. 

Die übrigen Räume sind mit Gips­faserplatten in feiner weissgrauer Oberfläche verkleidet, deren Fugen mit sägerohen Holzleisten abgedeckt sind. Der grobe, faserige Ausdruck kontrastiert mit der warmen Holzstruktur. Dieses «häusliche Brutalismus-­Motiv» wird durch eine Farbpalette ergänzt, die sich an der Fassade orientiert.

Auch in den Küchen zeigt sich die Re-Use-­Ästhetik: Die meisten Teile stammen aus einer Zürcher Siedlung und bringen ihre eigene Geschichte mit. Ergänzt werden sie durch neue, schwarze Elemente, die – inspiriert von der Charta von Venedig – den Dialog zwischen Alt und Neu betonen. 

Patina wird hier bewusst als ästhetisches Mittel eingesetzt, das Erinnerungen transportiert und das Vorstellungsvermögen der Bewohnenden anregt – ähnlich wie ein Möbelstück vom Flohmarkt. 

Damit fordert das Projekt von den Bewohnenden eine Offenheit gegenüber neuen Vorstellungen von Wohnlichkeit: nicht durch das Neue im Alten, sondern durch das Alte im Neuen. Die Integration gebrauchter Elemente bedeutete allerdings kaum geringere Kosten, sondern erforderte insgesamt in etwa gleich hohe Investitionen wie Neuware.

Einmalige Erfahrung oder Modell für die Zukunft?

Ist ein Vorgehen wie beim LysP8 ein einmaliges Unterfangen, möglich nur in einem so experimentierfreudigen Umfeld wie der Quartierentwicklung Lysbüchel? Sicher ist: Re-Use ist kein Allheilmittel, sondern eine Option, die umsichtig einzusetzen ist, aber gewinnbringend sein kann. Dass es eine hohe Flexibilität erfordert, mitunter Planungsprozesse auf den Kopf stellt und eine neue ästhetische Praxis bedingt, macht LysP8 dabei nicht zur Verliererin – im Gegenteil.

LysP8, Wohnhaus mit Gewerbe, Basel (BS)


Bauherrschaft: Stiftung Habitat, Basel


Architektur: Loeliger Strub Architektur, Zürich


Fertigstellung: 2025


Baukosten (BKP 1–9): 10.82 Mio. Fr.


Holzbau/Brandschutz: Pirmin Jung Schweiz, Sursee


Wiederverwendung: Zirkular, Basel 


Massivbau: Von Ah Tragwerksplanung, Liestal


Bauleitung: Eitel & Partner, Basel


HL-Planung: HeiVI, Basel


Sanitär-Planung: Gemperle S-Plan, Basel


Elektro-Planung: Pro Engineering, Basel


PV-Planung: Planeco, Münchenstein

Verwandte Beiträge