Amal­gam aus Alt und Neu

Projektwettbewerb Erweiterung Alters- und Pflegeheim zur Rose sowie Neubau Alterswohnungen

In Reichenburg SZ soll das Alterszentrum zur Rose ausgebaut werden. Gefordert waren eine Erweiterung des Alters- und Pflegeheims und ein Neubau mit Alterswohnungen, die sich harmonisch in den Bestand einfügen.

Publikationsdatum
09-11-2017
Revision
09-11-2017

Das Alterszentrum zur Rose in Reichenburg bietet ein Angebot für alle Lebensphasen. Das Konzept für das Alter umfasst sowohl die Unterstützung zu Hause als auch das Wohnen mit Service oder Pflege oder die Betreuung im Alters- und Pflegeheim. Die Pflegeplätze des Alters- und Pflegeheims sollen von 50 auf 80 erhöht werden. Zusätzlich sind 12 bis 18 Alterswohnungen geplant. Dafür werden zusätzliche Auto­abstellplätze benötigt. Diese sind zusammen mit weiteren öffentlichen Parkfeldern in einer Tiefgarage vorgesehen. Für die Erweiterung hat die Gemeinde Reichenburg die Liegenschaft Restaurant Rössli er­worben. Die Gesamtkosten be­laufen sich auf etwa 15 Mio. Fr. Um ­Lösungsansätze für diese Aufgabenstellung zu erhalten, wurde ein Projektwettbewerb im selektiven Verfahren für Teams aus Architekten und Landschaftsarchitekten ausgeschrieben. Von den insgesamt 38 Bewerbungen wurden zehn Teams zur Teilnahme am Wettbewerb selektioniert.

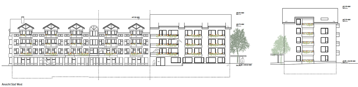
Die Rahmenbedingungen waren sehr eng gefasst. Der Ort zur Erweiterung des Alters- und Pflegeheims war vorgegeben, ebenso der Standort für die Alterswohnungen und die Tiefgarage. Besonderes Augenmerk galt der Erhaltung des Dorfbilds in der Kernzone entlang der Kantonsstrasse. Dazu kommt die prägnante Architektur des 25-jährigen Alters- und Pflegeheims, bestehend aus einem im Grundriss geknickten Baukörper mit markantem Satteldach und grossen Lukarnen sowie den gegen Westen gerichteten Arkaden im Erdgeschoss.

Gut vernetzt

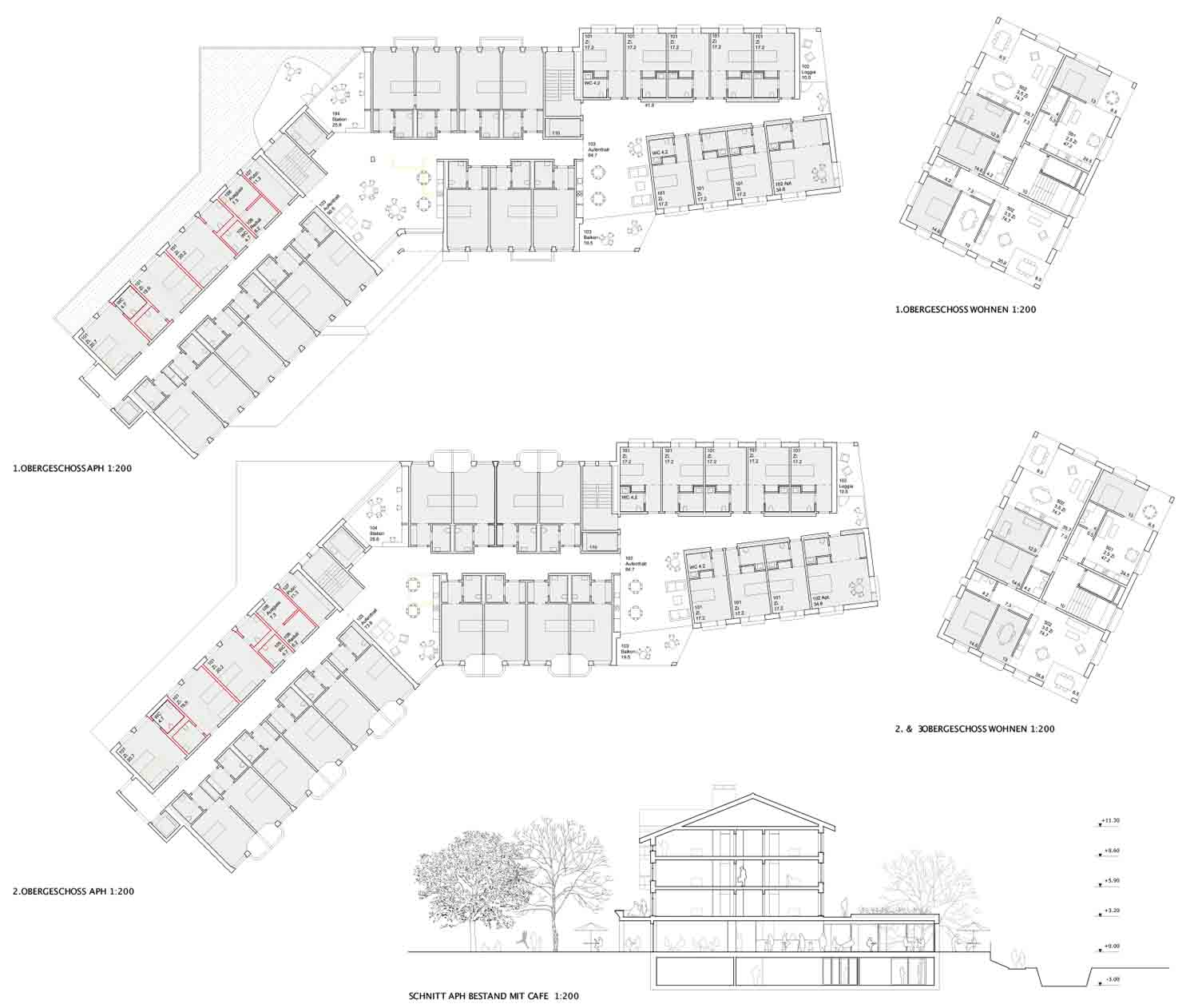
Der einstimmig zur Weiterbearbeitung empfohlene Beitrag der ARGE Rahbaran Hürzeler Architekten, Luxán Arquitectos und Sedano Architecture erfüllt die Aufgabe auf unspektakuläre Art. Die südliche Erweiterung des Alters- und Pflegeheims ist kompakt und schafft gut proportionierte Aussenräume. Der Neubau der Alterswohnungen fügt sich harmonisch ins Dorfbild ein und bildet mit dem Bestand ein Ensemble. Ein neues Wegsystem bietet einen Rundlauf um die Gebäude und schafft neue Verbindungen zum Dorf.

Die Aussenräume sind sorgfältig bearbeitet. Der «Marktplatz» vor dem Haupteingang ist gross­zügig und multifunktional ausgelegt. In der Mitte steht ein Einzelbaum. Der «Brunnenhof» zwischen Erweiterung und Neubau dient als Treffpunkt und verbindet die An­lage mit dem Dorf. Ein neuer Weg entlang des Rütibachs verknüpft das Alterszentrum mit dem Quartier. Die bestehenden Arkaden werden als Thema aufgegriffen und weitergeführt.

Auch die Innenräume sind mit der Umgebung vernetzt. Der Aussenraum der Cafeteria orientiert sich zum Bach gegen Osten, während der Essraum gegen Westen zu den Arkaden und zum «Marktplatz» gerichtet ist. Die Zimmer im Alters- und Pflegeheim verfügen über grosszügige Gemeinschaftsbalkone. Die Alterswohnungen hingegen haben eigene Loggien in den Gebäudeecken. Die verputzten Lochfassaden fügen sich geschickt in die bestehende Architektur ein, ohne sich aufzudrängen. Die hohen Fensteröffnungen bieten auch im Sitzen einen Blick in die ­nähere Umgebung.

Anbiedernde Geste

Auch das Projekt von Dettling Wullschleger Architekten im zweiten Rang macht laut Jurybericht alles richtig. Sowohl die Erweiterung des Alters- und Pflegeheims als auch der Neubau mit den Alterswohnungen integrieren sich gut. Die Nutzungen sind gut organisiert, die Grundrisse durchdacht und die gewählte Typologie ist flexibel. Die Befensterung ist zeitgemäss und gut proportioniert. Einzig die vom Altbau übernommenen Pflanztröge wurden in der Jury kontrovers diskutiert. Diese Geste könne «plakativ und an­biedernd» wirken und hätte hohe Unterhaltskosten zur Folge. Der sorgfältig durchgearbeitete Beitrag schaffte es wegen der Pflanztröge und der aufwendigen Erschliessung der Tiefgarage nicht aufs oberste Podest.

Zu kompakt

Der dritte Rang von fsp architekten integriert sich gut ins Dorfbild. Die Erweiterung des Alters- und Pflegeheims führt die Arkaden im Erdgeschoss und die grossen Lukarnen auf dem Dach weiter. Laut Jury würde das einfache, präzise Volumen des Ergänzungsbaus dadurch verunklärt. Auch die zusätzliche Zufahrt zur Tiefgarage überzeugt nicht, und die Aufenthaltsbereiche in der Erweiterung scheinen wenig attraktiv. Sie sind zu klein und ohne ausreichenden Aussenraumbezug.

Weiterbauen

Zusammengefasst lässt sich sagen: Die Erweiterung des Alterszentrums Reichenburg zeigt die Schwierig­keiten der Bauaufgabe. Alters- und Pflegeheime entwickeln sich dynamisch und werden immer wieder neuen Anforderungen angepasst. Der Gebäudepark ist häufig noch nicht amortisiert und muss aus wirtschaftlichen Gründen erhalten, folglich also umgebaut und erweitert werden. Es entstehen komplexe Konglomerate aus ­verschiedenen Epochen mit unterschiedlichen Architektursprachen. Oft wirken die stärksten Entwürfe für eine solche ­Bauaufgabe unspektakulär. Genau diese Eigenschaft ist zentral für ein überzeugendes Weiterbauen im Bestand. Wichtig sind Aussenräume mit Aufenthaltsqualität, gute betriebliche Abläufe im Innern und eine eigenständige Architektursprache, die so auf den Bestand abgestimmt ist, dass ein Ensemble entsteht.

Pläne und Jurybericht finden Sie unter der Rubrik Wettbewerbe.

Auszeichnungen
 

1. Rang / 1. Preis: «La Vie En Rose»
ARGE Rahbaran Hürzeler Architekten, Basel; Luxán Arquitectos, Madrid; Sedano Architecture, Basel


2. Rang / 2. Preis: «Hilo»
Dettling Wullschleger Architekten, Oberarth; ryffel + ryffel, Büro für Garten- und Landschaftsarchitektur, Uster


3. Rang / 3. Preis: «Arco»
fsp architekten, Spreitenbach

 

FachJury
 

Isabel Manser; Hornberger Architekten, Zürich; Alphons Wiederkehr, Wiederkehr Krummenacher Architekten, Zug; Christian Zimmermann, Zimmermann Architekten, Aarau; Robert Albertin, Albertin Partner Architekten, Haldenstein (Ersatz)

 

SachJury
 

Andy Kistler (Vorsitz Preisgericht);  Armin Kistler, Gemeindepräsident Reichenburg; Matthias Radtke, Heimleiter APH zur Rose; Markus Rast, Altersheim- und Betriebskommission (Ersatz)

Tags

Verwandte Beiträge