Com­po­ser avec, et pen­dant

À Lausanne, en aval du quartier du Flon, la transformation d’un ancien garage en école de musique soulève de nombreuses questions techniques mais aussi sociales, auxquelles Sébastien Tripod Architecte et Jean-Michaël Taillebois Architecte répondent par des choix constructifs simples, précis et une réflexion engagée sur les usages.

Data di pubblicazione
04-03-2024

Au bord des tranchées qui préfigurent le retour du tramway lausannois, la rue de Genève, éventrée, prépare discrètement sa mue. Rénovations, transformations, démolitions, reconstructions… les opérations se succèdent pour accueillir de nouvelles populations et de nouveaux programmes. Dans cette dynamique de gentrification, les garages et stations-services qui bordaient l’axe disparaissent progressivement au profit d’opérations immobilières à l’intégration plus ou moins heureuse. Ponctuellement, des projets parviennent pourtant à s’inscrire dans ce changement en respectant la mémoire des lieux, comme la transformation de ce bâtiment qui, après avoir accueilli trois générations de garagistes, héberge depuis peu la compagnie Albertine : une école de musique déjà présente dans un immeuble de logements de la rue, que le propriétaire a souhaité transformer en hub pour start-up ou entreprises innovantes – afin de louer les locaux sensiblement plus chers. Profitant de cette éviction, l’équipe pédagogique a alors imaginé un lieu pour accueillir des répétitions mais aussi des représentations, qu’elle a pu projeter dans un local à proximité.

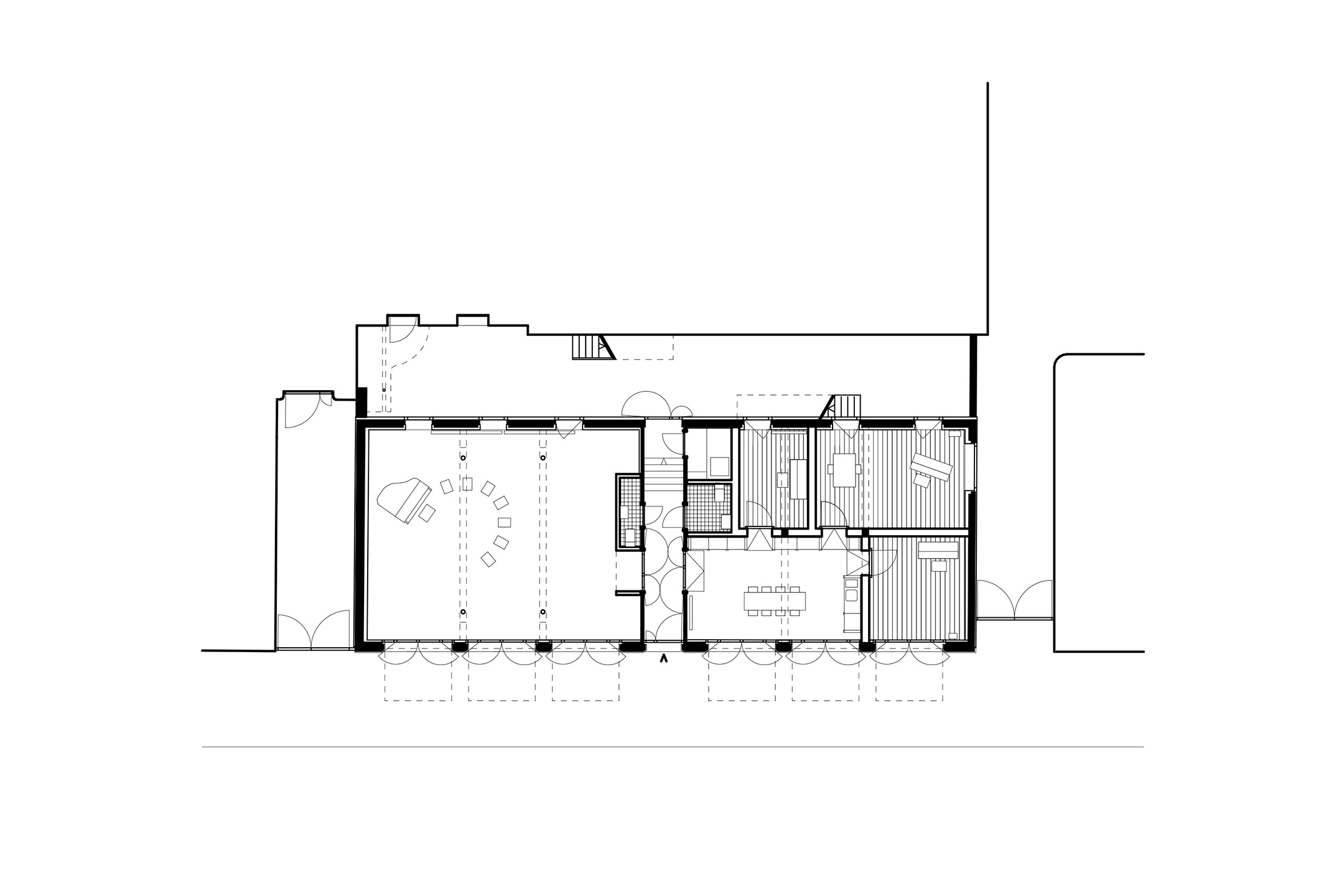
C’est probablement sa position en pied de talus, devant un immeuble d’habitation au bénéfice d’une servitude de passage qui a sauvé cette petite bâtisse d’un étage de la démolition. En effet, pour reconstruire, il aurait fallu conserver un passage qui le traverse en plein milieu. Le bâtiment fait partie des constructions qui ont accompagné la création de la rue de Genève au début du 20e siècle, pour sortir de la ville en suivant la vallée du Flon. Il ne présente pas de valeur patrimoniale spécifique. Il accueillait à l’origine six box de stationnement desservis directement depuis la rue et échelonnés par la pente. On lit encore cette disposition grâce aux six ouvertures qui marquent la façade de part et d’autre du passage central, tandis que le niveau intérieur a désormais été relativement aplani. En partie basse, la dalle est conservée et isolée par-dessus pour surélever le sol du nouvel auditoire et atteindre le niveau du passage central. De l’autre côté, le sol est creusé ; des pentes ponctuelles desservent le foyer puis les trois salles de répétitions. Avec le maintien des ouvertures existantes, ces nouveaux niveaux offrent différents rapports à la rue. Dans les salles, on est comme protégé par le léger encaissement tandis que dans l’auditoire, la marche est imaginée comme une assise pour profiter du soleil. Un rapport à la rue très direct, renforcé par de grandes vitrines pouvant s’ouvrir complètement. En passant, on profite déjà de la vue sur les répétitions, on imagine donc facilement des concerts qui déborderont sur le trottoir. Loin des caveaux confidentiels et des salons feutrés, ici la musique s’expose et se confronte à l’espace public, ses lumières, ses mouvements et ses bruits.

Orchestrer les flux et les sons

Cette école qui revendique un enseignement atypique s’est dotée de locaux peu conventionnels, dans lesquels l’acoustique devient un véritable enjeu architectural. Pour y répondre, le volume structurel est avant tout isolé de son contexte direct par sciage des murs mitoyens et dallages extérieurs, afin de couper toute transmission de bruit solidien. À l’intérieur, les architectes composent avec les matériaux. L’absorption phonique est assurée sur les murs périphériques par une couche de laine de roche revêtue de panneaux de fibres de bois liées au ciment. Les vitrines sur rue sont en acier, dont la densité permet d’isoler les basses fréquences. Entre les pièces, les bruits aériens sont coupés par des murs pleins en briques de terre crue, montés entre un socle et une retombée de béton. Les transmissions entre matériaux sont rompues par des joints bourrés de laine minérale et recouverts de cordes – une alternative aux joints souples, et donc aux produits dérivés du pétrole, en accord avec la démarche des architectes. En plus de limiter l’impact environnemental du projet, ces choix de matériaux, de textures et de mise en œuvre donnent au projet son esthétique et enrichissent le programme. Selon leur taille et leur disposition, les espaces offrent des qualités variables de lumière et de couleur acoustique, qui influent sur la musique produite et participent au projet pédagogique.

Si la matérialité et la distribution des parois sont aussi importantes dans le concept acoustique, c’est parce qu’au plafond, les architectes ont tenu à laisser apparente la dalle de béton nervurée existante. Et bien que son relief agisse finalement peu sur l’ambiance sonore du lieu, il participe à son identité architecturale, de manière quasi décorative… Car, face aux normes actuelles, cette dalle a perdu toute fonction structurelle. Pour porter le nouveau complexe de toiture végétalisée, une structure métallique a dû être placée au-dessus de la dalle en béton, en appui sur les murs de façade et des porteurs disposés sous les sommiers existants. Comment harmoniser cet ensemble ? En jouant de la couleur : les nouveaux ­éléments structurels sont revêtus d’une peinture bleue profonde, qui reprend la teinte des éléments métalliques du garage et contraste fortement avec les tons gris-beige ainsi que la texture des autres surfaces. Là encore, la rencontre entre les différents éléments est franche. Les finitions apparentes donnent à lire les matérialités et les strates constructives. L’intervention est assumée ; l’obsolescence de la structure béton est soulignée. Les nervures deviennent un motif, témoin du passé.

Cela dit, cette dalle permet toutefois d’intégrer un ingénieux système de renouvellement d’air en simple flux, qui fonctionne par dépression : l’air pénètre en toiture dans des tubes en col de cygne puis circule dans les nervures aux extrémités nord et sud de la dalle, où se trouvent également les tuyaux de chauffage qui vont donc réchauffer cet air frais. Pour le rafraîchissement, la citerne enterrée de l’ancienne station essence est réutilisée comme cuve pour alimenter des serpentins au sol et complète la ventilation naturelle encouragée auprès des utilisateur·rices Comme pour l’ensemble des installations techniques, les architectes ont privilégié la simplicité, l’existant et le low-tech.

Travailler dans sa maquette

Cette bonne connaissance des lieux et l’anticipation de leur usage trouve son fondement dans le processus même d’élaboration du projet puisqu’en amont du chantier, les architectes ont investi le garage vidé en y installant leurs bureaux. Pendant plus d’un an, le projet va se développer in situ, dans un volume disponible pour projeter les futurs espaces et usages, façon maquette à l’échelle 1:1. Des thématiques y prennent progressivement leur importance comme la conservation de la dalle nervurée ou la nécessité d’une circulation transversale. À côté de l’espace de travail, le futur auditoire accueille des animations ponctuelles comme des projections de film, des ateliers de lacto-fermentation ou des workshops pour étudiant·es. Ces évènements influent parfois directement sur le projet, comme le décalage des poteaux dans l’auditoire, décidé pour libérer l’espace central après un concert donné par les futurs utilisateur·trices autour de la trame existante. Ils nourrissent également une réflexion qui dépassent les limites de la conception et du chantier pour se poursuivre dans l’usage des lieux, en offrant beaucoup de flexibilité aux personnes qui les occupent. Au-delà de la praticité pour la conception et les échanges avec la maîtrise d’ouvrage, cette résidence a permis d’ancrer le lieu dans le quartier et la ville, comme un teasing pour le voisinage. L’occupation transitoire des locaux vides est ici une démarche manifeste, en faveur de l’expérimentation et au service de l’architecture.

TRANSFORMATION D’UN GARAGE EN ÉCOLE DE MUSIQUE, LAUSANNE (VD)

  • Maîtrise d’ouvrage : Mécénat
  • Architecture : Sébastien Tripod Architecte et Jean-Michaël Taillebois Architecte
  • Génie civil : Demierre consulting
  • Ing. acoustique : Décibel Acoustique
  • Ing. phys. bât : Perenzia ingénieurs
  • Procédure : Mandat direct
  • Planification : 2021-2022
  • Réalisation : 2022-2023
  • Volume SIA : 1000 m3
  • Coût global de la transformation (CFC1-9) : 1.45 mio CHF
  • Coût par m3 selon SIA (CFC2) : 1350 CHF/m3
Magazine

Articoli correlati