Ei­ne mas­si­ve Un­ter­kunft

Für den Neubau der Berglodge Goms adaptierten Roman Hutter Architekten die in Münster (VS) traditionelle Blockbauweise. Dies war zwar nicht günstiger, als mit Holzwerkstoffen zu ­bauen, dafür aber dauerhafter, natürlicher und sortenreiner.

Data di pubblicazione
29-09-2023

Als der Bauherr Patrik Birri für den ­Neubau der Berglodge eine Hypothek beantragte, forderte seine Bank eine günstige Standardlösung – zum Beispiel einen Elementholzbau. Sie befand die von Roman Hutter Architekten geplante Blockbaukonstruktion als zu aufwendig und teuer. Doch etwas anderes kam für Patrik Birri nicht infrage. In der Folge investierte er mehr Eigenmittel, suchte eine andere Bank und gewann die Berghilfe, die sich finanziell beteiligte, da das Haus einen lokalen Mehrwert schafft. Zudem erhielt er Darlehen von der Neuen Regionalpolitik (NRP) sowie Fördergelder des Kantons Wallis (CCF). Zum Glück sind nicht nur kurzsichtige ökonomische Betrachtungen für die Vergabe von Krediten ausschlag­gebend, die in manchen Fällen sehr solide und dauerhafte Bauten verhindern.

Das kleine Hotel Berglodge befindet sich am Dorfrand von Goms und liegt am Ende eines Schuttfächers. Unterhalb führt die Bahnlinie nach Andermatt und hinter der landwirtschaftlich genutzten angrenzenden Ebene schweift der Blick über Wiesen und das Weisshorn.
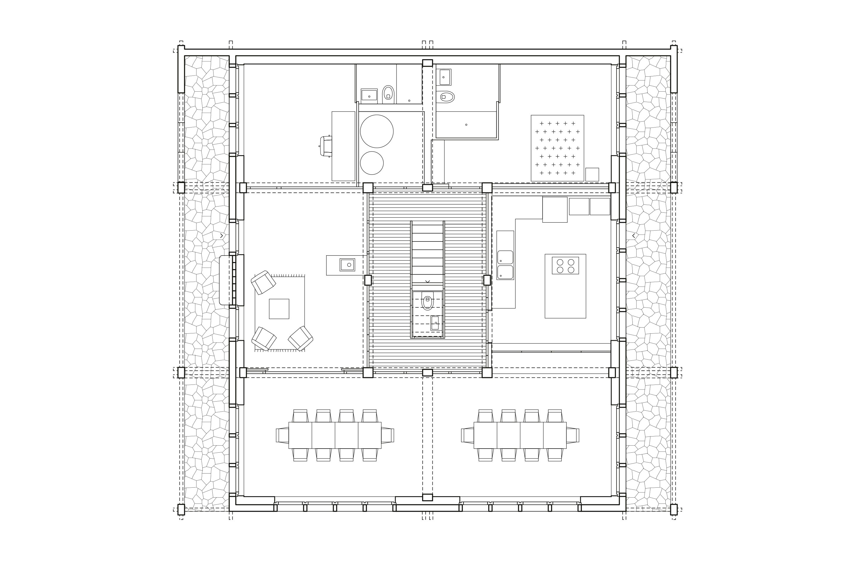
Sechs in sich geschlossene, gleichwer­tige Raumkammern, die um ein Treppenhaus angeordnet sind, bilden die Grundstruktur des Baus mit zwei längsseitigen Veranden. Der Blockbau ist aus Fichten- und Lärchenholz, der Sockel aus Beton. Hinter dem Eingang mit dem Empfang befindet sich die Küche und talseitig der ­Speisesaal für 20 Personen. In den beiden Obergeschossen reihen sich jeweils sechs Gästezimmer um das Treppenhaus und unter dem Dach ist Platz für eine Yogaklasse oder Seminare.

Ruhe in natürlicher Umgebung

Dem Bauherrn Patrik Birri, der das ­Rhonetal schon lange kennt, ist die lokale Tradition wichtig. Deshalb hat er den Architekten Roman Hutter beauftragt, der aus der Gegend stammt. Hutter hat die ­traditionelle Blockbauweise typologisch und kon­struktiv weiterentwickelt, womit ­wiederum die lokalen Handwerker umzugehen wissen. Eine Firma, die sich Zeit nahm, um die massiven Holzwände des vierstöckigen Baus zusammenzusetzen und mit Sachverstand aufzurichten, war Holzbau Weger. Die Schreinerei im Dorf bringt viel Erfahrung mit. Obschon man später angefangen hatte als auf der ähnlich grossen Nachbarbaustelle, war hier alles viel schneller aufgerichtet.

Dieser Artikel ist erschienen im Sonderheft «Stadt aus Holz – Hotel- und Freizeitbauten in Holz». Weitere Artikel zum Thema Holz finden Sie in unserem digitalen Dossier.

Dadurch, dass die Blockwände aus Fichtenholz bestehen und nur die der Witterung ausgesetzten Bauteile aus Lärche sind, konnten die Materialkosten optimiert und die stark unter Druck stehenden Lärchenbestände geschont werden. Die mit Holzfaserplatten gedämmten Wände sind aussen unbehandelt und innen geseift. Der Boden im Yogaraum folgt dem Prinzip von durch Nut und Kamm ineinander verhakten Holzbalkenwänden, die dann um 90 Grad in die Horizontale gekippt wurden. Für die Gäste, die kommen, um die Ruhe zu geniessen, ist die gute Akustik wichtig. Sie wurde mithilfe einer zweischaligen Konstruktion erreicht.

Die massiven Holzwände bewirken, dass die Heizkosten tiefer sind als erwartet. Die Photovoltaik-Anlage auf dem Dach des Nebenbaus deckt rund 85 % des jährlichen Strombedarfs ab. Ein Teil wird ins Netz gespeist und für das Aufladen der Elektroautos verwendet. Viele Möbel stammen aus dem Brockenhaus und manche Tische aus dem alten, aufgelösten Simplon-Hospiz.

Das Ende ist nicht in Sicht

Das Farbkonzept ist inspiriert von der umliegenden Landschaft – «einfach Richtung Lärchenwald schauen, die Augen ­etwas zusammenkneifen und man hat’s», meint Birri. Im Speisesaal liegt Stirnholzparkett mit einem Muster aus Jahresringen, und die Wände sind mit hellgrünem Sumpfkalk verputzt. Die ästhetischen, bauökologischen und mechanischen Eigenschaften des Materials überzeugten den Architekten und den Bauherrn, die Wert auf natürliche Qualität legen. Mit dem Verpressen und Polieren der Oberfläche wurde das Material farbintensiver, zudem ist im Streiflicht ein feiner Glanz sichtbar.

Sollte der Bau einmal sein Nutzungsende erreichen, liessen sich die Holzteile einfach wieder auseinandernehmen. Da sie unbehandelt sind, könnten sie wieder der Natur zugeführt – oder noch besser: wiederverwendet werden. Birri ist sich fast sicher, dass er dies nicht mehr erlebt. Er findet die Walliser Dörfer sehr gepflegt und die alten Bauten gut unterhalten. Das ist ein wichtiges Kapital der Talschaft – hoffentlich begreifen das auch Politik und Wirtschaft, denn billige Standardlösungen sprechen eine andere Sprache.

Am Bau Beteiligte

 

Bauherrschaft
Berglodge Goms, Münster

 

Architektur
Roman Hutter Architektur, Luzern und Münster

 

Bauleitung und Montagebau Holz, Schreiner­arbeiten
Holzbau Weger, Münster; gloor wunschraum, Brig

 

Fachplaner
Bacher + Schmid Elektro, Münster; HGM Service, Mörel; Pirmin Jung Schweiz, Rain; Studio Komplett, Zürich und Muri (Mitarbeit Farb- und Materialkonzept)

 

Statik
Anton Imhof Ingenieurbüro, Grengiols; Egg Holz Kälin, Einsiedeln

 

Fenster in Holz
Schreinerei Imwinkelried, Fiesch; Egg Holz Kälin, Einsiedeln

 

Kamin
Schnyder Kaminbau, Mörel

 

Sumpfkalkputz
David Braun, Luzern

 

Gebäude

 

Beschaffung
Direktauftrag

 

Geschossfläche (SIA 416)
710 m2

 

Volumen
2003 m3

 

Nutzfläche
526 m2

 

Fassadenfläche in Holz
275 m2

 

Label
Schweizer Holz

 

Holz und Konstruktion

 

Konstruktion
Blockbauweise, Fichte und Lärche (Goms und Berner Oberland)

 

Daten und Kosten

 

Projekt und Bauzeit
2020–2021

 

Kosten (BKP 1–9)
2.6 Mio. CHF

Etichette

Articoli correlati