Re-gé­né­ra­tion: ha­bi­tat com­mu­nau­tai­re pour trois fa­mil­les

Enjeu majeur des transformations territoriales des prochaines années, les quartiers d’habitations unifamiliales qui s’étalent un peu partout en Suisse représentent un réservoir de terrains à densifier, d’espaces publics à inventer et de formes architecturales à explorer. Pour loger trois familles sur une même parcelle, Madeleine architectes et le studio François Nantermod proposent de partager l’existant, plutôt que de le subdiviser.

Data di pubblicazione
01-02-2023

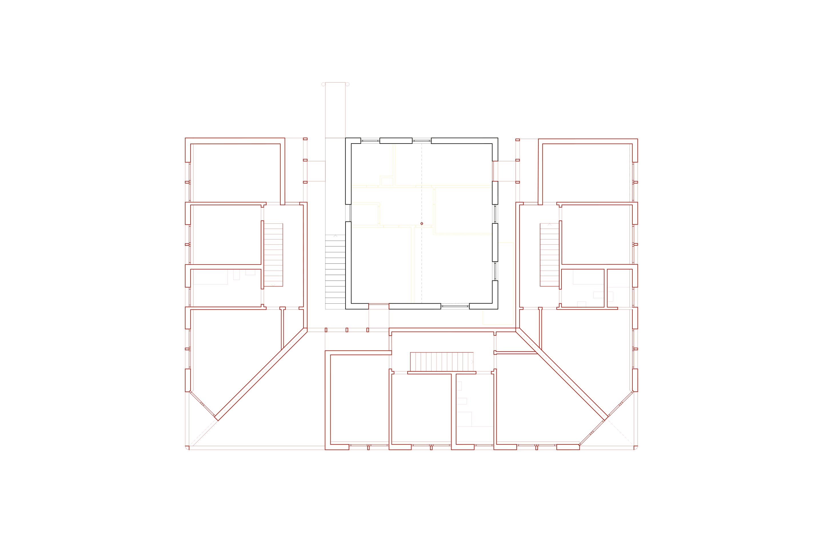
Entre autres héritages encombrants du 20e siècle, les nouvelles générations doivent s’accommoder de nombreux bâtiments ordinaires, sans réel intérêt constructif ni valeur autre que celle d’exister. Parce que démolir et reconstruire n’apparaît plus comme une solution raisonnable, les architectes doivent désormais transformer cette matière disponible pour l’adapter au monde actuel et futur. Ici, améliorer l’enveloppe, là, ajouter un niveau… Les solutions sont multiples et se déclinent de manière spécifique selon le contexte construit et social. Dans le cas de ce projet à Villy, sur la commune d’Ollon (VD), la dynamique est intergénérationnelle. Trois frères et sœur ont été encouragés par leurs parents à partager la petite maison de leur grand-père afin de s’y établir, sans savoir la forme que pourrait prendre cette cohabitation. Situé contre la pente, en extrémité de rue, le terrain jouit d’une position d’observatoire, avec des vues dégagées sur la vallée du Rhône et les sommets alentours. La maison, elle, ne possède pas de qualité architecturale mais est empreinte de l’histoire familiale. Aussi les architectes mandatés par la fratrie ont-ils proposé de ne pas la démolir, mais de faire avec. Ou plutôt autour, de manière à forger le cœur d’un projet communautaire, à la fois noyau programmatique et pivot à l’articulation de nouveaux volumes. Pour cela, ils l’ont dépossédée de sa substance originelle, dépouillée de ses cloisons et de ses plafonds, dont les traces subsistent sur les murs. Ce grand vide devient un espace caméléon que chaque famille peut s’approprier le temps d’un repas ou d’une fête, mais aussi un lieu de rencontre et de partage au quotidien. Un espace flexible éclairé par un pan de toiture en polycarbonate, que les architectes ont choisi de nommer jardin d’hiver.

Seuils de privacité

L’introduction d’un tel espace indéterminé dans un programme de logement résulte d’une réflexion collective des architectes et de la maîtrise d’ouvrage autour de la sphère privée. Qu’est-on prêt à partager au quotidien? Et ponctuellement? Ici, les unités familiales sont assez classiques, chaque habitation bénéficiant d’un séjour-cuisine-repas au rez et de trois chambres à l’étage. L’individualité s’exprime surtout dans la déclinaison typologique du grand meuble qui organise les séquences d’entrée, de la cuisine et des escaliers de manière singulière dans chaque habitation. De couleur variable, cet aménagement anime les matériaux relativement bruts choisis comme base commune. Des services (buanderie, caves et ateliers) sont mutualisés sous le jardin d’hiver, au rez inférieur de la maison existante. C’est donc cette dernière, valorisée en tant que bien commun, qui permet aux logements collectifs de devenir un habitat communautaire. C’est aussi elle qui, par sa situation centrale, génère un nouvel espace, qui n’est ni commun ni individuel: celui de l’interstice.

La relation créée entre l’existant, au centre, et le nouveau qui se développe autour, est multiple: d’abord pragmatique, le lien est aussi visuel, sensible et même scénographique. Depuis l’espace commun, dont la minéralité dépouillée est mise en exergue, les ouvertures de la maison existante offrent des vues aléatoires sur la façade pleine en bois des unités. Très proches par la distance mais très contrastées dans leur matérialité, les deux enveloppes sont mises en tension par ce vide, dont la faible largeur participe à un dessin plus global de délimitations successives. Dans ce dispositif apparemment très fluide, partout l’architecture définit des frontières invisibles, propices à l’appropriation par les usagers. Devant chaque accès, un principe de seuil marque ainsi le passage vers le privé. Les entrées des unités sont protégées par un encorbellement, auquel répond une bande au sol, formée simplement par des dalles de béton préfabriquées intégrées dans les graviers. À l’étage, des loggias creusent le volume avant de desservir les passerelles qui relient chaque unité à la maison commune. Autour, des masses végétales de buissons fleuris cerclent des terrasses privées attenantes aux séjours.

Angles de rencontre

À l’extérieur du dispositif, la notion d’individualité et de communauté ne se lit plus dans des séquences successives mais par la superposition des volumes et des matériaux. À l’autre extrémité du village, on trouve des grandes fermes qui appartiennent à la fois à l’architecture alpine et au patrimoine agricole, et où, d’ailleurs, des volumes s’organisent autour du vide de la cour. Par analogie à ces constructions vernaculaires, le bâtiment se lit comme un grand volume unitaire en bois posé sur un socle maçonné, plus ouvert et poreux. Un système ingénieux de volets battants rend possible la fermeture complète de l’enveloppe de l’étage qui, par son bardage continu, ne permet pas de situer le début ni la fin de chaque logement. Au rez-de-chaussée, en revanche, le socle béton répond à l’exigence communale de conserver – zone villas oblige – la lecture d’habitations unifamiliales distinctes. Chaque unité semble donc occuper une boîte indépendante et mono-orientée, conformément au règlement local.

Les angles ainsi dégagés aménagent des espaces extérieurs abrités et partagés. Au sud-ouest, le couvert qui marque l’entrée dans le site jouit même d’une double hauteur, en attendant la construction éventuelle d’une chambre supplémentaire. En effet, à la rencontre des logements, grâce à la disposition «à l’onglet» des chambres parentales, les architectes ont introduit une notion de mutation temporelle dans leur plan. En fonction de l’évolution des besoins des différentes familles, le nombre de chambres par habitation peut ainsi être redistribué en transformant simplement un réduit en couloir qui desservirait la chambre de l’unité voisine rattachée. Selon le même principe, on pourrait augmenter la surface habitable en ajoutant une pièce au-dessus du couvert. L’architecture intègre à la fois le passé et le futur.

Pour accompagner cette flexibilité typologique, le système porteur épouse le mouvement centrifuge et rayonnant du projet. Une ceinture structurelle formée par une impressionnante poutre en BLC de 110 cm de haut assied la linéarité de la couronne. Une diagonale la relie à une seconde ceinture, de moindre hauteur, du côté intérieur. Toutes deux reposent sur les boîtes minérales des séjours ainsi que sur des colonnes composées de béton coulé dans des tuyaux de ciment et dont le diamètre s’adapte aux longueurs franchies. L’homothétie du principe augmente visuellement l’effet de projection vers l’extérieur et donc la centralité de la maison existante.

Tout en laissant place à l’appropriation des espaces par les occupants, la mise en commun d’usages reste au cœur de ce projet. Plan rayonnant, minéralité des socles, déclinaison de serrurerie rouge à la couleur des anciens volets… Les nouvelles unités portent en elles les stigmates de la maison existante et les projettent vers le paysage dans cet effet de rayonnement, comme pour propager l’idéal communautaire. En proposant aux nouveaux habitants de regarder et vivre différemment ce patrimoine banal, les architectes ouvrent une voie vers l’augmentation spatiale et sociale de l’existant.

Habitat communautaire à Villy (VD)

 

Maître d’ouvrage
Privé

 

Architecture
Madeleine architectes + Studio François Nantermod

 

Génie civil
Ovale & Partenaires

 

Ingénierie bois
Ingewood

 

Surface totale de plancher brute
518 m2 (3 unités de 126 m2 et 140 m2 existants)

 

Coût HT CFC 1-4
1.85 mio CHF

Magazine

Articoli correlati