Am­plia­men­to Ospe­da­le re­gio­na­le, Men­dri­sio

Ghiggini Studio d'Architettura

A Mendrisio il nuovo ampliamento dell’Ospedale Beata Vergine si inserisce armoniosamente tra edifici storici e contemporanei. Un volume flessibile e luminoso, dal disegno di facciata iconico, che ridefinisce lo spazio pubblico e rafforza il legame con il contesto urbano.

Data di pubblicazione
30-09-2025
Margherita Carabillò
Architetta esperta in progettazione socio-sanitaria, vicepresidente Centro Nazionale per l'Edilizia e la Tecnica ospedaliera, direttrice scientifica della rivista «Progettare per la Sanità»

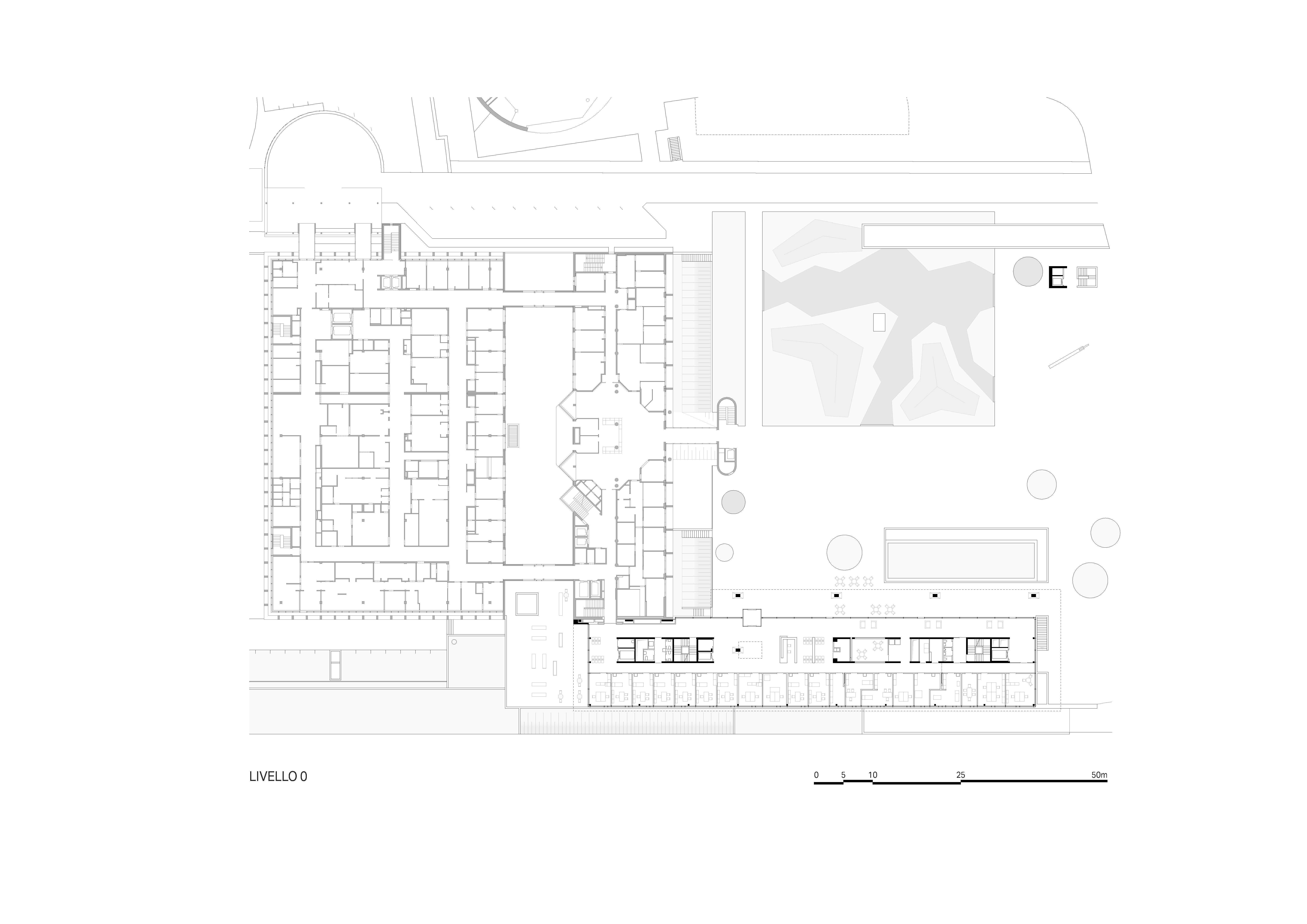
L'ospedale di Mendrisio occupa un'area al margine del nucleo storico caratterizzata dalla presenza di edificazioni circondate da ampi giardini. Al tessuto urbano di matrice storica delle prime ville ottocentesche si sono aggiunti, più di recente, edifici istituzionali legati all'istruzione. 

Oggi il contesto è contraddistinto dalla convivenza armoniosa tra l'insieme di grande pregio storico-culturale costituito dal Campus dell'Accademia di architettura dell'USI (Villa Argentina, Palazzo Turconi, Palazzo Canavée, Teatro dell'architettura), dai resti dell'antico convento delle Orsoline, Villa Torriani, e dal polo sanitario-scolastico di importanza regionale dell'Ospedale Beata Vergine. 

Da un punto di vista prettamente compositivo, la collocazione del nuovo corpo di fabbrica in ampliamento intende rafforzare questo insieme, definendo uno spazio pubblico disegnato alternando zone pavimentate e asfaltate a spazi verdi permeabili, valorizzato dalla presenza degli edifici esistenti e del nuovo volume che si ergono a vere e proprie quinte urbane. La consapevolezza di affacciarsi su uno spazio pubblico ha indirizzato le scelte compositive e architettoniche della nuova ala ospedaliera: l'arretramento del piano terreno rispetto ai piani superiori, che crea un fronte porticato; l'utilizzo dell'elemento vetrato, che consente la permeabilità visiva tra interno ed esterno; il particolarissimo disegno della facciata, contraddistinta dalla torsione dei profili in alluminio posati ciascuno con una rotazione di 90° rispetto a quello precedente. 

L'edificio, pur articolandosi in cinque livelli complessivi, appare tutt'altro che incombente in quanto si adagia lungo l'andamento naturale del terreno, il quale presenta un notevole dislivello dal lato sud-ovest, mitigandone in tal modo la verticalità. 
La struttura statica, semplice e ripetitiva ai livelli superiori, si interrompe al pianterreno con campate molto più ampie per poter far fronte alle diverse preesistenze dei livelli interrati e, in particolare, all'autosilo che è stato mantenuto in funzione durante tutti i lavori. 

In perfetta sintonia con la destinazione dell'edificio, le funzioni interne sono distribuite in relazione al livello di privacy richiesto: ai piani inferiori si trovano così gli spazi ambulatoriali che necessitano della maggiore apertura e connessione con il territorio mentre il piano superiore è destinato a ospitare le unità di degenza sub-acute che possono in tal modo godere di una maggiore intimità rispetto ai flussi esterni. Al livello della piazza si apre l'ingresso principale attraverso il quale si accede alla grande area di attesa e al punto di accoglienza-informazioni dedicato all'orientamento dei pazienti e dei visitatori. In corrispondenza della corte ribassata ricavata al di sotto della nuova piazza che lambisce la via Alfonso Turconi trovano ubicazione alcuni servizi accessibili al pubblico oltre i normali orari di apertura dell'ospedale. 

Tipologicamente l'edificio è stato pensato per poter offrire la massima flessibilità in relazione alle diverse esigenze funzionali: lo schema classico del corpo quintuplo ha permesso di concentrare nella spina centrale le circolazioni verticali e i vani tecnici che non richiedono illuminazione naturale mentre lungo i due corridoi laterali si distribuiscono i locali affacciati verso l'esterno e destinati alle attività sanitarie e ai pazienti. 

La soluzione di facciata conferisce all'edificio una precisa identità mediante la regolarità della scansione degli elementi in alluminio che annullano la percezione della ripartizione degli spazi interni. Le cellule vetrate assicurano una vista completamente aperta verso la città, offrendo al contempo un'adeguata discrezione dall'esterno grazie all'impiego di vetri opacizzati e di tende tecniche automatiche filtranti e oscuranti, permeabili alla luce ma in grado di garantire all'occorrenza il controllo dell'irraggiamento solare.

  • Luogo: Mendrisio 
  • Committenza: Ente Ospedaliero Cantonale, Bellinzona 
  • Architettura: Gaggini Studio d'Architettura, Lugano
  • Collaboratori: M. Rapazzini, S. Locatelli, M. Verlicchi 
  • Direzione lavori: Direzione lavori SA, Lugano 
  • Architettura del paesaggio: Bürgi studio d’architettura e paesaggio, Camorino 
  • Ingegneria civile: Pianifica Ingegneri Consulenti SA, Locarno 
  • Progetto impianti RVCS: Visani Rusconi Talleri SA, Lugano 
  • Progetto impianti elettrici: Elettroconsulenze Solcà SA, Mendrisio 
  • Fisica delle costruzioni e acustica: IFEC Ingegneria SA, Rivera 
  • Fotovoltaico: Alsolis SA, Mendrisio 
  • Illuminotecnica: Esoprogetti Sagl, Lugano 
  • Progetto facciate: Esoprogetti sagl, Lugano 
  • Fotografia: Luca Ferrario, Maroggia; Alexandre Zveiger, Lugano 
  • Impresa: Barella SA, Chiasso 
  • Date: concorso 2014-2015, progetto 2016-2018, realizzazione 2018-2022 
  • Pianificazione energetica: IFEC Ingegneria SA, Rivera 
  • Certificazione o Standard energetico: Minergie, 2017 
  • Intervento e tipo edificio: costruzione nuova 
  • Categoria edificio (Ae): amministrazione 5712 m2, ospedali 1539m
  • Fattore di forma (Ath/Ae): 1.05 
  • Riscaldamento: 100% teleriscaldamento (* impianto ad oggi non ancora realizzato) 
  • Acqua calda: 82% teleriscaldamento*, 18% altri 
  • Elettricità: fotovoltaico 27,75 kWp; 74 moduli, superficie 147m2, energia prodotta 30.74 MWh/a 
  • Requisito primario involucro dell'edificio Qh: 96 MJ/m2 (limite 116 MJ/m2a) 
  • Indice Energetico Complessivo (da certificazione): 46.4 kWh/m2
  • Particolarità: Plafoni radianti, temperatura ambiente con regolazione in ogni locale, recupero di calore dalla produzione del freddo 

 

Articoli correlati