Zeit­ge­nös­si­sche Bünd­ner Ar­chi­tek­tur: Men Du­ri Ar­quint

Architekten unter 40

In den ersten Folgen unserer neuen Serie präsentieren wir junge Architektinnen und Architekten mit Verbindung zum Tessin. Der Churer Architekt Men Duri Arquint zeigt, wie Bündner Architektur heute interpretiert wird. Studiert hat er an der Accademia di architettura in Mendrisio.

Data di pubblicazione
17-04-2018
Revision
17-04-2018

Men Duri Arquint lebt im Zentrum von Chur, in einem Atelierhaus, das 1981 vom Bündner Architekten Andres Liesch (1927–1990) erbaut wurde. Seit 2010 leitet er ein Architekturbüro mit Sitz in Chur und Ardez im Kanton Graubünden. Seit 2015 ist er Dozent für Entwurf an der Hochschule Luzern. Seine Verbindung zum Tessin beginnt mit seinem Studium an der Accademia di architettura in Mendrisio, wo er 2004 sein Diplom bei Kenneth Frampton und Roberto Collovà erlangte und später als Assistent in den Entwurfsklassen von Quintus Miller und Aurelio Galfetti unterrichtete. Von 2004 bis 2010 war er Mitinhaber des Architekturbüros Arquint & Hitz in Chiasso.

Einheiten aus Landschaft, Material und Form

Der Wille, das Landschaftsbild zu erhalten und hervorzuheben, war stets eines der wichtigsten Ziele, die Bündner Architekten und Ingenieure bei ihren Werken, vom Wasserkraftwerk bis zur Bahnlinie, verfolgten. In den letzten Jahrzehnten hob sich die Bündner Architektur auch im internationalen Vergleich durch ihre Fähigkeit ab, Bauwerke durch die präzise und gezielte Verwendung von traditionellen Materialien als ausdrucksstarke Formelemente in die alpine Topografie einzugliedern. Auch die jüngsten Umsetzungen von Men Duri Arquint bringen diesen architektonischen Ansatz zum Ausdruck.

Im Innern eines historischen Hauses in Ardez im Unterengadin (2011) hat der Architekt die programmatisch vorgegebene kleine Bibliothek mithilfe eines einzigartigen baulichen Experiments wirkungsvoll umgesetzt. Dafür hat er in den Heuschober zwei über einen Durchgang verbundene Holzboxen eingebaut: ein mit Regalen ausgestattetes Bücherzimmer und ein Lesezimmer mit Blick auf die Berge. Die beiden in Strickbauweise konstruierten Kisten wurden an das bestehende Dachtragwerk gehängt und schweben spektakulär über einem freien Raum, der als Sommerwohnzimmer genutzt wird.

Auf der Alp La Palü in Maloja (2015) renovierte und erweiterte Arquint einen Stall aus dem 18. Jahrhundert mit dem Ziel, die ursprüngliche Beziehung zwischen Gebäude und Landschaft wiederherzustellen, die durch Eingriffe aus neuerer Zeit beeinträchtigt war. Altes und Neues bleiben chronologisch lesbar, bilden aber gleichzeitig eine neue Einheit, die durch drei Materialien geprägt ist: Kalkputz, Lärchenholz und Natursteinplatten aus Soglio-Quarzit.

Im Böschengut, an privilegierter Lage im Stadtgebiet von Chur (2018), hat Arquint eine Siedlung nach dem Prinzip «low rise, high density» geplant. Die Überbauung grenzt an ein Quartier, dessen Masterplan 2000 von Bearth & Deplazes entworfen wurde, und befindet sich zurzeit im Bau. Auf der dreieckigen Parzelle entstehen acht Einfamilienhäuser mit Hof. Sie sind in zwei Reihen angeordnet, die einen halböffentlichen, zur Talseite hin offenen Grünraum einrahmen. Durch bewusste Reduktion der Formen und Materialien bildet die Siedlung eine klare und doch komplexe Einheit aus ähnlichen Gebäuden. Auch hier setzt der Architekt auf drei Hauptmaterialien: monolithisches Einsteinmauerwerk mit Waschputz, Travertin und Lärchenholz.

Räume für die Kunst: Chesa Tschudi in Zuoz

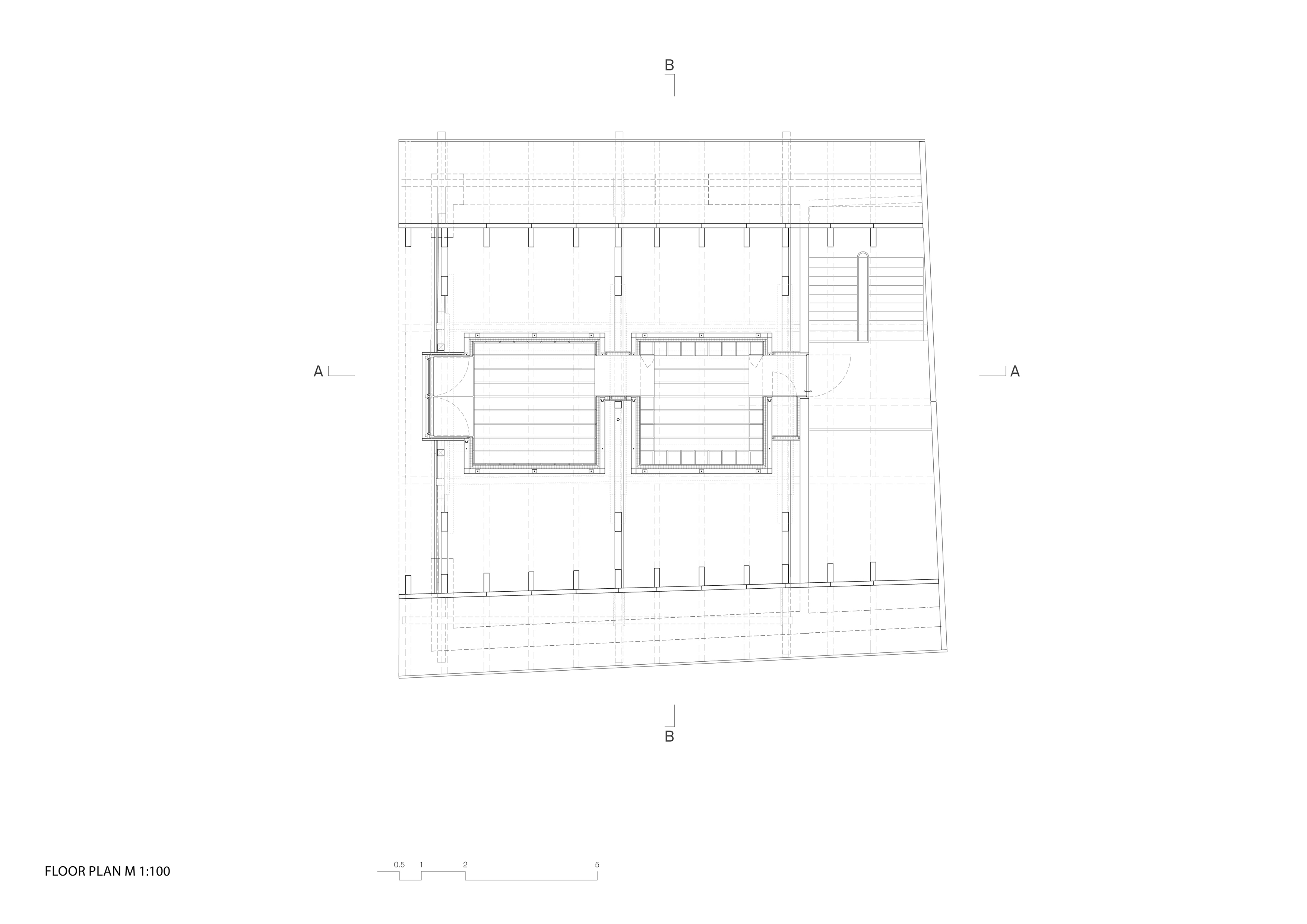
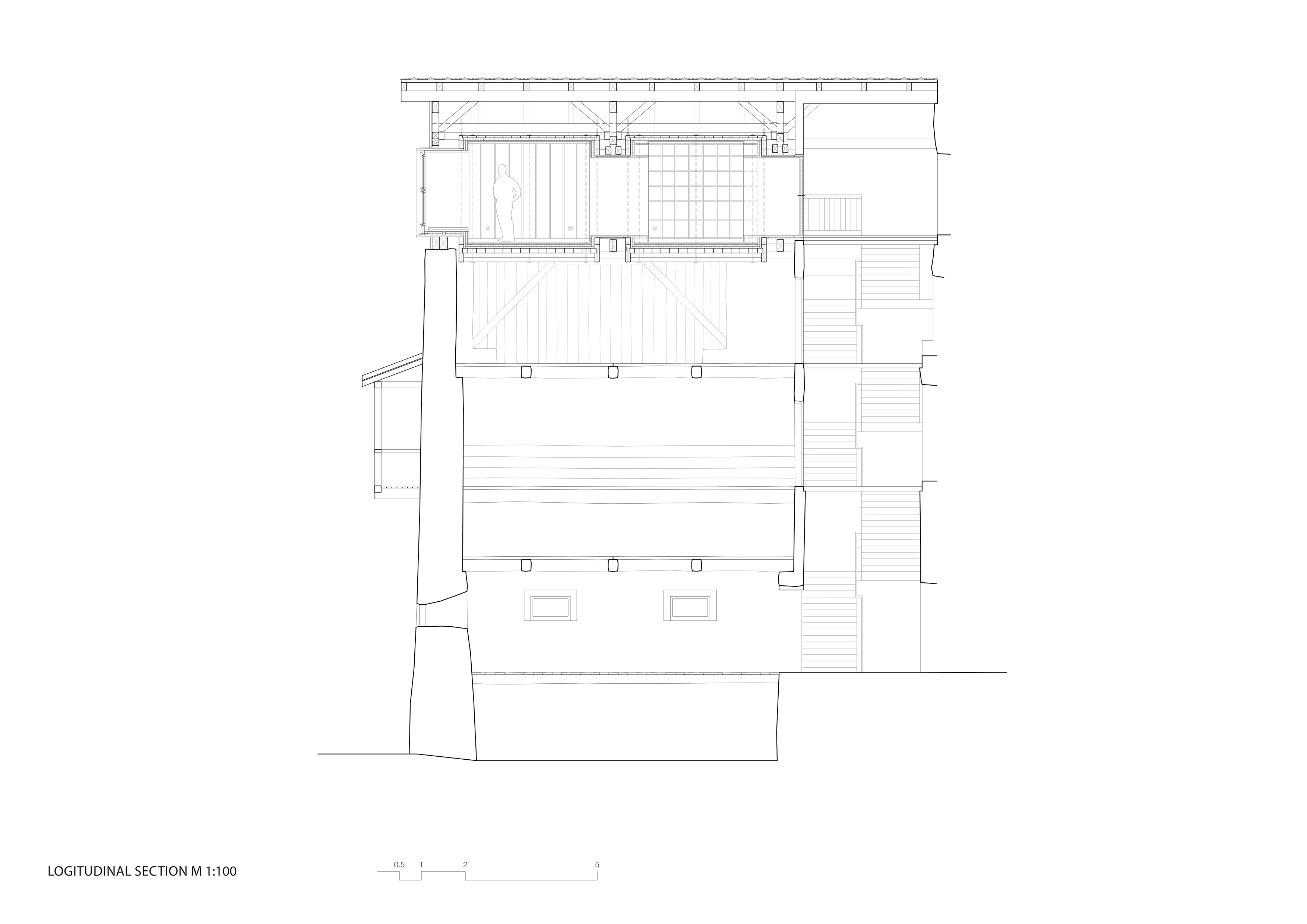
Am Südhang von Zuoz (2012) im Oberengadin hat Arquint einen Sichtbetonbau mit Satteldach und versetzt angeordneten Öffnungen entworfen, der sowohl durch seine Einbettung in die Siedlungsstruktur als auch durch die innere Gliederung an alte Engadinerhäuser erinnert. Das Wohnhaus eines Galeristenpaars bietet Platz für Kunstwerke aus deren Sammlung, Terrarien mit exotischen Reptilien und mehrere Autos. Das äussere Erscheinungsbild des Baus vermittelt dieselbe Unmittelbarkeit und Einfachheit wie die ländlichen Gebäude der Region. Erst im Innern gibt die geometrische Gestaltung des Querschnitts Einblick in die programmatische Komplexität der vielfältigen Räume.

Die stabile Rückseite zum Hang hin ist wie eine Skulptur aus vertikalen Blöcken gestaltet und bedient und erschliesst die fünf Stockwerke. Zwei Untergeschosse beherbergen einerseits die Garage mit Zufahrt zur Strasse und andererseits die Terrarien. Im Erdgeschoss sind die Schlafzimmer symmetrisch zu beiden Seiten einer Achse angeordnet, die von einem Arbeits- und Bücherzimmer mit talseitiger Loggia gebildet wird. Im Obergeschoss erstreckt sich in Ost-West-Richtung das Wohnzimmer, das sich zum Garten hin öffnet. Zwei Oberlichter schaffen eine Verbindung zum Himmel schaffen, und leiten das Tageslicht trichterförmig ins Innere. Dazwischen spannt sich ein separates Gästevolumen auf.

Der Ausdruck des Gebäudes wird von drei Materialien bestimmt: Beton, dunkles Eichenholz und weisser Kalkputz. Innen wie aussen treten die Materialien in direkte Verbindung zueinander. Der Verzicht auf Fugen und Blenden verlangte sorgfältiger Planung und Ausführung. Die präzisen Einbauarbeiten geschahen in direkter Zusammenarbeit mit Handwerkern aus der Region.

Die Eigentümer stehen in täglichem und dynamischem Kontakt zu den Kunstwerken: Im Eingang stützt sich eine Skulptur von Richard Serra an Wand und Boden ab; entlang der Treppe schaltet sich eine in eine Nische eingebettete Videoinstallation ein, sobald jemand vorbeigeht. Im Wohnzimmer perlt aus einem der Trichter ein Regen aus orangen Lichttupfern – das Werk «Impronte di penello» des Tessiner Künstlers Niele Toroni. Unter dem zweiten Oberlicht weist eine Fibonacci-Reihe von Mario Merz nach oben. Auf 1800 m ü. M. strahlen diese Werke über die Grenzen des Hauses hinaus auf die Umgebung und die ganze Welt.

Junge Architekten
In einer neuen Reihe stellen wir in loser Folge Architektinnen und Architekten unter 40 Jahren vor, die in der Schweiz oder im Ausland tätig sind. Wir starten im Tessin. Weitere Beiträge dieser Serie finden Sie hier.

Articoli correlati