Sport e loi­sir

strategie architettoniche per la costruzione della città e del territorio

«Infatti, per dirla brevemente, l’uomo gioca soltanto quando è uomo nel senso pieno del termine, ed è interamente uomo solo laddove gioca» – Friederich Schiller, L’educazione estetica, 1795

Data di pubblicazione
16-06-2023
Francesca Belloni
arch. PhD professore, ricercatore ABC POLIMI, redattrice espazium quaderni

Nel Cantone Ticino, come peraltro nel resto della Svizzera, il recente incremento di concorsi per strutture destinate allo sport e più in generale al loisir sportivo e al tempo libero, oltre agli ingenti investimenti stanziati a livello federale per la costruzione di nuovi impianti, dimostra come la cultura del «terzo tempo» – quello non occupato dal lavoro (o dalla scuola) e dagli impegni di gestione della casa e della famiglia – stia assumendo un ruolo centrale nella vita sociale e culturale e, al contempo, evidenzia come questa tendenza apra, in prospettiva, a una sempre più necessaria conciliazione dei tempi della vita e del lavoro con il loisir in senso lato. Sebbene la teorizzazione in ambito sociologico del concetto di loisir sia plurima e possa essere fatta addirittura risalire alla nozione aristotelica di tempo libero – scholé in greco –, ciò che pare utile sottolineare è che essa «rappresenta la base, il terreno di cultura, su cui si è inserita tutta (o gran parte) della teorizzazione sociologica sullo sport moderno».1 A partire da tali assunti è immediato constatare come lo sport e l’educazione allo sport rappresentino oggi un nodo centrale dell’evoluzione della cultura e della società: numerosi studi evidenziano infatti che, durante gli anni della crescita, tale dimensione costituisce un importante laboratorio esperienziale nel processo di costruzione dell’identità personale e per tale via diventa parte attiva nella definizione delle relazioni sociali dell’intera collettività.

Conseguenza diretta di ciò è l’impatto fisico che gli edifici per lo sport e il tempo libero intrattengono con la struttura urbana, paesaggistica e territoriale nonché il ruolo che gli impianti di questo genere assumono nella costruzione della città contemporanea e dei luoghi pubblici in cui la collettività si rispecchia e trascorre il cosiddetto tempo libero. Se questo è particolarmente vero oggi, in generale si tratta di una condizione rintracciabile, con vicende e fortune alterne, fin dall’antichità, in particolare nelle società occidentali.2 Basti pensare al significato urbano delle attrezzature di ginnasi, palestre, stadi, circhi, anfiteatri, terme o ippodromi nella definizione della struttura delle città greche e romane o al valore ideale di alcuni progetti visionari come il circo di Etienne-Louis Boullée o l’arena di Milano di Luigi Canonica. Dal punto di vista del ruolo sociale oltre che della qualità architettonica vale la pena ricordare anche il monumentale sferisterio di Macerata, edificato su progetto di Ireneo Aleandri grazie al consorzio di un centinaio di cittadini maceratesi che, tra il 1820 e il 1829, dopo anni di difficoltà economica e di instabilità politica, finanziarono la costruzione di un edificio per il gioco del pallone e la celebrazione di spettacoli pubblici. Esempi questi capaci di evidenziare come edifici di tal genere abbiano contribuito a caratterizzare gli spazi pubblici della città, facendosi carico di ospitare ogni tipo di manifestazione collettiva in cui l’intera società si rispecchiasse.

Non bisogna tuttavia dimenticare che dall’Ottocento in avanti il sistema sportivo si arricchisce di numerose sfaccettature, tra le quali la più rilevante è la progressiva commercializzazione che, a partire dalla fine degli anni Sessanta, negli Stati Uniti prima e in Europa poi, ha dato vita all’economia dello sport e ai suoi indotti, tanto che storici come Allen Guttmann sostengono si possa individuare una vera e propria frattura nella storia dello sport per via di alcune specificità non presenti nei secoli precedenti: «gli sport sono al tempo un’alternativa e un rispecchiamento dell’età moderna. Hanno le loro radici nel terreno oscuro delle nostre vite istintive, ma la forma che assumono è quella dettata dalla società moderna».3 Queste caratteristiche hanno concorso a definire una forma di mondializzazione dello sport e del loisir che investe la società nel suo complesso, costituendosi come elemento di unificazione (e per certi versi anche di distinzione) sociale e culturale, al di là dei diversi ambiti geografici.

Come questo si specifichi nell’ambito dell’architettura ticinese oltreché svizzera degli ultimi decenni è un tema articolato, difficile da trattare in sé se non correndo il rischio di facili semplificazioni. Molteplici sono infatti le questioni che entrano in gioco e che caratterizzano la vicenda delle architetture per lo sport: il carattere eccezionale degli impianti dal punto di vista morfologico, tipologico e funzionale, il rapporto con il territorio, il linguaggio e la tradizione, l’importanza della cultura della costruzione e l’attenzione ai caratteri strutturali e alle specificità tecniche e materiche degli edifici. Temi che investono qualunque intervento architettonico, ma che nel caso degli edifici per lo sport assumono una risonanza particolare, soprattutto in Svizzera, dove, forse più che altrove, lo sport è stato per tradizione riconosciuto come scuola della democrazia da un lato e, parallelamente, è ancor oggi strettamente legato al sistema di milizia e, di conseguenza, in quanto strumento di educazione alla salute fisica, alla sfera militare. Altra questione di rilievo è la netta distinzione e, per contro, la sempre maggior interrelazione tra sport agonistico d’élite e sport amatoriale, nonché le frequenti sovrapposizioni dei due ambiti in relazione alle trasformazioni che i luoghi in cui si pratica e si vive lo sport proiettano sul corpo della città. Non si deve poi dimenticare che al centro di questo ragionamento a cavallo tra sociologia, urbanistica e architettura si colloca, come già sottolinea­to nell’editoriale di un numero di «Werk, Bauen + Wohnen» del 1996, «un contraddittorio paradigma del tempo libero che si riflette in particolare nel culto del corpo» e che tutto ciò «genera anche tipi edilizi e ambiti urbani di nuova concezione, ne sono un esempio i cosiddetti grandi complessi “indoor”: contro-mondi ermetici in cui – a differenza dei centri commerciali degli anni Sessanta e Settanta – si negoziano non solo merci, ma anche attività [integrando] il corpo umano nell’evento del consumo».4

Sebbene anche nel Cantone Ticino l’onda lunga di tale fenomeno inizi a produrre i suoi effetti – si pensi all’impatto, spaziale e sociale, che avranno, una volta realizzati, i progetti per infrastrutture di dimensioni eccezionali come il Polo sportivo e degli eventi (PSE) a Lugano o il Velodromo Ticino –, il carattere dei luoghi che gli impianti dello sport e del tempo libero contribuiscono tuttora a definire rispetto alla struttura diffusa degli insediamenti è per molti versi coerente con alcuni specifici tratti della tradizione architettonica ticinese. Per questo non è possibile non far riferimento ad alcuni edifici rappresentativi di questa tradizione, veri e propri caposaldi, assai noti e oltremodo citati, che con caratteristiche differenti hanno fatto e continuano tutt’oggi a far scuola: il Bagno Pubblico di Bellinzona di Galfetti, Ruchat-Roncati e Trümpy (1967-1970), a distanza di una decade la Palestra Comunale a Monte Carrasso di Snozzi (1981-1984) e, circa quindici anni dopo, la palestra di Losone di Vacchini (1996-1997). Tre momenti, tre storie e tre differenti modelli architettonici che individuano altrettante modalità di intendere i luoghi dello sport e del tempo libero e il loro rapporto con il territorio, il paesaggio naturale e la struttura urbana. Tre anime, tre differenti strade all’interno di una tradizione condivisa.

A Bellinzona, il carattere aperto dell’infrastruttura sportiva contribuisce a definire una modalità di costruzione del paesaggio che appartiene al processo di infrastrutturazione del Cantone. In parallelo con la costruzione dell’autostrada – durante il trentennio dal 1955 al 1985 che Tita Carloni definì l’epoca del cemento – il progetto del Bagno di Bellinzona si inscrive all’interno di una vicenda di ampio raggio che oltre all’autostrada vede la realizzazione delle piscine pubbliche di Chiasso, Mendrisio e Bissone, in un quadro di dotazione per lo sport e il tempo libero fortemente influenzato dalla tradizione balneare (lacustre e fluviale) sviluppatasi in Svizzera a partire dalla metà dell’Ottocento.5 Svago, sport, tempo libero, necessità di riscoprire i valori del corpo e di ritrovare il necessario contatto con la natura sono elementi impliciti che nel progetto di Bellinzona si cristallizzano in forma di percorsi; un progetto di percorsi che costrui­sce il rapporto con il paesaggio e infrastruttura il territorio; un progetto di percorsi che impiega gli elementi delle piscine per ridefinire la topografia della pianura in relazione alla città (a partire dal Ginnasio cantonale di Camenzind e Brocchi) fino alla golena del fiume.

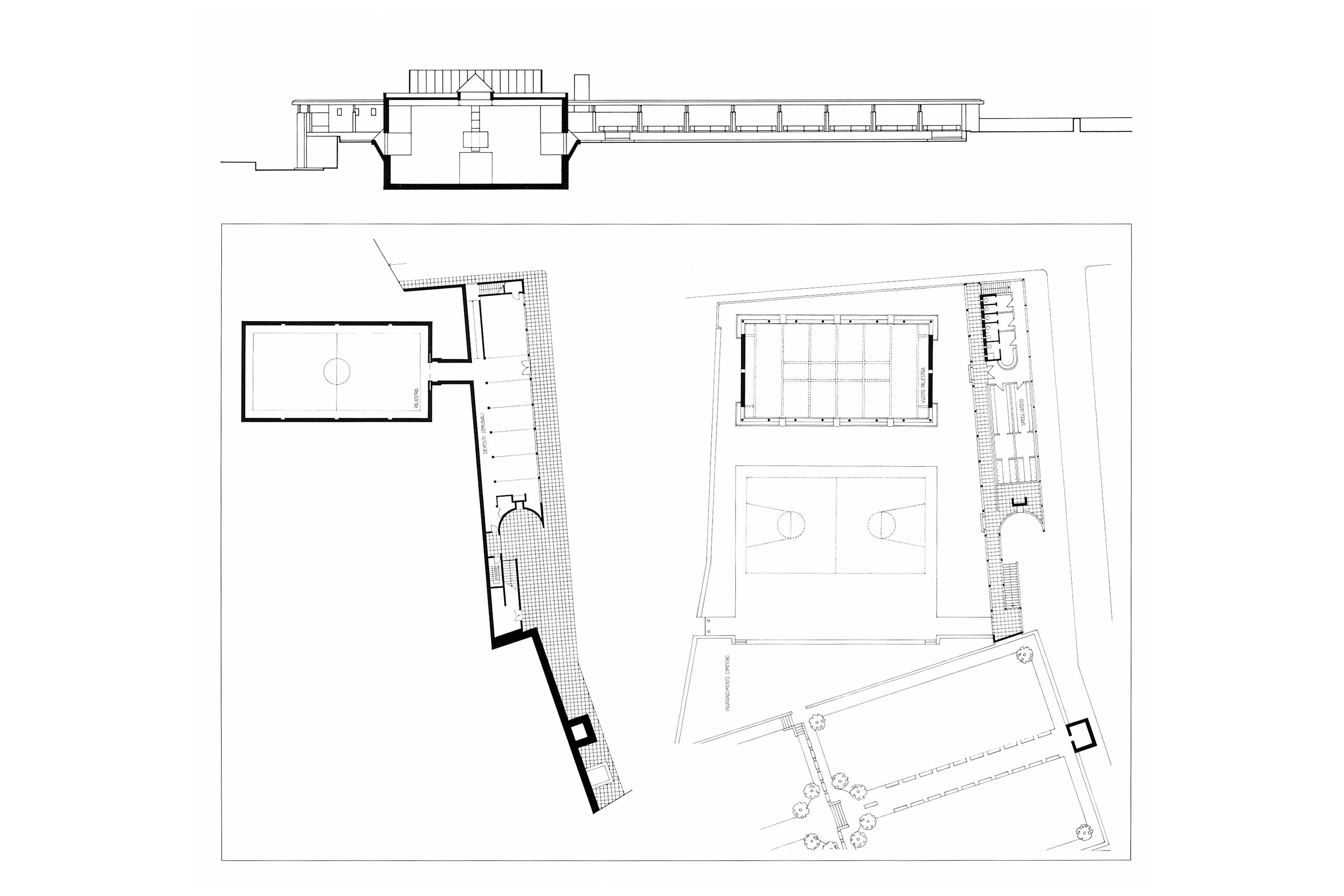
Passando da un caposaldo all’altro, a Monte Carasso, la palestra comunale si fa casa tra le case a sancire il vertice nord-ovest del nuovo disegno urbano; in un attento processo di reinvenzione del sito,6 Snozzi, disponendo l’edificio ortogonalmente al complesso dell’antico convento, costruisce una sala ipogea che appare, con la sua copertura, al centro del prato, in prossimità del cimitero; tutto è pensato per mettere in scena il volume in cemento (all’esterno) e la luce (all’interno). Il corpo dell’ingresso, le scale e la manica degli spogliatoi specificano il carattere urbano della sala, costruendo le relazioni di prossimità e di collegamento con gli altri elementi del nucleo e con le loro giaciture. Il peristilio, in particolare, posto al livello superiore in continuità con il piano del cimitero e rivolto verso il campo da gioco all’aperto, rappresenta il luogo collettivo in cui la comunità si riconosce rispetto alla funzione pubblica dell’edificio: «Come la collocazione della palestra e il suo disegno architettonico rimandano al principio urbanistico adottato per l’intero insediamento e al significato di edificio pubblico, così l’espressione architettonica dell’opera corrisponde alla sua funzione di luogo sportivo e di ritrovo per gli abitanti di Monte Carasso. La porzione di forma quadrata, posta tra il muro del cimitero e la sala da ginnastica a est, evoca le palestre antiche dove si praticavano gli esercizi fisici; qui un peristilio coperto esprime la destinazione dell’edificio: luogo per lo sport e la ricreazione».7

Impiegando una strategia alternativa, a Losone Vacchini costruisce l’artificio in contrapposizione con la natura: un moderno Partenone che si erge su un lieve rilevato del terreno all’interno del recinto dell’ex-caserma militare. Un edificio fortemente autoreferenziale, un vero e proprio monumento che, nel rapporto tra struttura e materia, costruisce il luogo in cui si colloca, lo edifica. È certamente inutile sottolineare quanto l’importanza della Baukultur sostanzi l’opera di Vacchini e come le condizioni della commessa e il carattere eccezionale dell’impianto – una palestra a due campi destinata a militari e civili – consentano all’edificio di assumere una valenza pubblica, divenendo «elemento ordinatore del contesto urbano e punto di riferimento nel territorio».8

Dal punto di vista architettonico, a Losone come a Monte Carasso, la protagonista è la luce, che isola lo spazio interno da quello esterno e permette, attraverso il ritmo ininterrotto dei vuoti e dei pieni, che due ambiti si fondano. Se Snozzi reinventa il sito e, pur disponendo la sala per metà interrata, costruisce per assonanza con il contesto, Vacchini è estremamente e volutamente dissonante, pratica un’arte strutturale centrata su se stessa tanto che, collocando il volume su un podio naturale, fa in modo che siano il terreno, l’intorno e il contesto ad adattarsi all’edificio e non viceversa.

A partire da Bellinzona, Monte Carasso e Losone si potrebbero individuare genealogie, sottolineare risonanze e divergenze tra quello che si realizza oggi e quei progetti, a tal punto storicizzati da esser diventati essi stessi materia(li) di progetto impiegati, come tali, nelle aule universitarie e sui tavoli degli studi di architettura. Alcune considerazioni in merito paiono di un certo interesse. Innanzitutto, guardando al panorama contemporaneo, la vocazione territoriale e la struttura aperta del Bagno di Bellinzona, seppur unanimemente riconosciute per la loro esemplarità, rappresentano una strada, dal punto di vista dell’impianto architettonico, raramente percorsa nei progetti contemporanei: vincoli tecnici ed economici hanno infatti progressivamente favorito sperimentazioni più compatte e unitarie, che per natura privilegiano un lavoro compositivo e linguistico sull’involucro alla ricerca di soluzioni minimali o plastico-scultoree. In più, dal punto di vista funzionale, si assiste oggi a un’inversione di tendenza e al prevalere da un lato della costruzione di grandi impianti indoor – spesso aggregati ai complessi scolastici esistenti o di nuova costruzione e destinati, in un quadro di dotazioni generali, anche a fruitori di livello agonistico – e, per contro, alla rinaturalizzazione delle attività all’aperto. Numerosi esempi possono essere citati a testimoniare questo cambio di paradigma che vede prevalere il loisir sportivo. In questo senso, se i progetti della Foce del Cassarate a Lugano e del Parco fluviale Saleggi-Boschetti a Bellinzona sono tra i più noti e radicali (si veda Archi 1/2022, L’acqua come risorsa progettuale), anche il progetto per il Parco dello sport e il lungofiume Al Maglio a Lugano, la cui inaugurazione è prevista per il 2024, testimonia la crescente volontà di integrare attività sportive strutturate con ambiti in cui il loisir è direttamente legato al paesaggio naturale o rinaturalizzato. I pochi progetti recenti per nuovi centri balneari o impianti sportivo-ricreativi9 si rifanno invece, dal punto di vista linguistico, alla tradizione «effimera» delle strutture in legno degli stabilimenti fluviali o lacustri tipici della tradizione svizzera a cavallo tra l’Ottocento e il Novecento o, al contrario, al carattere materico e geometrico-tettonico di progetti come quello di Vacchini per il Lido comunale di Ascona (1980-1986).

Tornando a riferirsi ai progetti per Monte Carasso e Losone pare possibile rintracciare una certa continuità, fors’anche, in alcuni casi, delle discendenze dirette, come per la palestra che Baserga Mozzetti in collaborazione con Pedrazzini Guidotti realizzano a Chiasso (2007-2010). Il progetto, pur esibendo una discendenza diretta da quello di Vacchini, tenta un’operazione di carattere urbano: in questo caso, infatti, il carattere monumentale, a cui chiaramente allude la tripartizione dell’edificio tra basamento, fusto e coronamento, viene parzialmente stemperato dall’articolazione degli ingressi e delle rampe di accesso. Se l’impiego di un linguaggio autarchico e austero accentua il carattere pubblico dell’edificio, assegnando alla funzione sportiva una valenza quasi religiosa, è esplicito il tentativo di legare la massa monolitica dell’edificio agli altri interventi di rigenerazione urbana attuati sul medesimo sito come parte di un sistema complesso e articolato.

Di genere differente è invece la palestra doppia realizzata a Riva San Vitale (2007-2010) da Durisch+Nolli. Il progetto nato come ampliamento, almeno in termini funzionali, delle scuole medie di Riva San Vitale, è significativo rispetto a una specifica tendenza dell’architettura ticinese per la capacità di innestare un volume monolitico e introverso all’interno di un sito complesso, definendo una molteplicità di nuove relazioni urbane e risolvendo, attraverso specifiche scelte linguistiche e materiche, il rapporto con la scuola preesistente. Inoltre, dal punto di vista delle strategie insediative inaugura una stagione che sta vivendo oggi il suo massimo splendore, caratterizzata da numerosi progetti per ampliamenti di complessi scolastici esistenti che vengono dotati di nuove attrezzature sportive.

Altri casi sono esemplari in questo senso. Innanzitutto, il progetto di Durisch+Nolli e Giraudi Radczuweit per la nuova doppia palestra del Centro Scolastico Nosedo a Massagno (2014-2017) in ampliamento dell’edificio di Alberto Finzi. Poi, frutto di concorsi più recenti in via di definizione, il progetto di Baserga Mozzetti di ristrutturazione delle scuole elementari di Vezia (2018) che, come quello di ampliamento delle scuole elementari di Solduno (2022) di Lopes Brenna, prevede l’aggiunta di palestre e strutture sportive di servizio, o il concorso, vinto da Tocchetti Architetti e Ingegneri (2022), per la riorganizzazione del Comparto scolastico di Lugano Centro con la realizzazione di ben quattro nuove palestre, di cui una a servizio delle scuole medie e tre del liceo. Tutti casi – e se ne potrebbero citare altri – che dimostrano una tendenza specifica della cultura del Weiterbauen applicata ai luoghi dello sport, intesi come elementi di definizione e costruzione della città, strettamente correlati agli edifici dell’educazione.

A ciò si affianca un ulteriore carattere ricorrente tra le proposte più recenti: la via sempre più spinta della compattezza volumetrica si accompagna alla progressiva riformulazione della tradizione costruttiva ticinese, che dalla metà del secolo scorso ha visto il prevalere incontrastato dell’epoca del cemento. Oggi, numerosi architetti propongono invece strutture miste in calcestruzzo e legno o totalmente in legno, spesso con accenti linguistici vagamente retrò. Talvolta la scelta del legno è legata al carattere provvisorio di tali strutture, il cui esempio più noto in Ticino è certamente l’edificio progettato da Galfetti e Botta per l’aula polivalente (poi trasformata in biblioteca) dell’Accademia di Mendrisio; tuttavia, soprattutto in Svizzera interna, tale scelta è sempre più frequente anche per strutture di grandi dimensioni. Si assiste inoltre sempre più spesso – forse sull’esempio dei progetti di Vacchini per le scuole medie a Losone (1973-1975) e per La Ferriera a Locarno (2002-2003) – alla scelta di strutture in acciaio, come quelle per l’impianto sportivo polivalente di Demattè Fontana a Verscio (2018-2024) e per il Centro sportivo nazionale di nuoto a Tenero di Burkhardt + Stücheli Pestalozzi Schiratzki (2017-2026) che, alludendo a illustri esempi del Movimento Moderno, affidano il carattere architettonico del progetto alla messa in opera del principio strutturale.

È così che, all’interno di un panorama complesso e in continua trasformazione, il Cantone Ticino negli ultimi anni si trova ad affrontare alcuni fondamentali cambiamenti di paradigma scandagliando, nella costruzione dei luoghi e degli edifici destinati allo sport e al loisir, strade non sempre riconducibili a modelli formali noti. Tutto questo per aprirsi a una nuova stagione, in cui i paradigmi della tradizione si possano confrontare con le tendenze internazionali consentendo, attraverso una ricerca attenta e paziente, di costruire progressivamente nuovi modi per mettere in atto quella particolare Swissness di cui la critica sul finire del secolo scorso ha costruito lo scenario e il sistema di narrazioni.

Note

 

1 N. Bortoletto, La sfera del loisir. Alcuni elementi di analisi, in Tempo libero, loisir e sport. Alcuni elementi per una contestualizzazione sociologica, N. Bortoletto, E. Minardi (a cura di), Aracne Editrice, Roma 2013, p. 29.

 

2 Cfr. L. Turcot, Sports et Loisirs. Une histoire des origines à nos jours, Gallimard, Paris 2016.

 

3 Cfr. A. Guttmann, From ritual to record. The nature of modern sports, Columbia University Press, New York 1978, p. 89.

 

4 Lebensraum Sport / L’espace de vie du sport / Spacing out for sport, «Werk, Bauen + Wohnen», n. 9, 1996, p. 2.

 

5 Cfr. K. Accossato, Le piscine lungo l’autostrada ticinese. Per un progetto di restauro, in Archi, n. 1, 2002, pp. 48-61.

 

6 L. Snozzi, Monte Carasso la reinvenzione del sito, Birkhäuser, Basel 1995.

 

7 Salle de gymnastique Turnhalle, «AS Schweizer Architektur Architecture Suisse Architettura Svizzera», n. 79, 1987, p. 79.2.

 

8 Cfr. http://www.studiovacchini.ch

 

9 Si vedano i risultati dei concorsi per il Centro balneare di Carona, per il nuovo Centro sportivo a Stabio o per Centro ricreativo-turistico di Bignasco a Cevio e, di recente realizzazione, la struttura ricettiva al Merisg a Losone di Campana Herrmann Pisoni (2018-2021).

Etichette

Articoli correlati