Ar­chi­tet­tu­re tem­po­ra­nee per la cit­tà

Sport Center Gloriarank, Zurigo

Data di pubblicazione
27-06-2023
Francesca Belloni
arch. PhD professore, ricercatore ABC POLIMI, redattrice espazium quaderni

Lo Sport Center Gloriarank servirà da palazzetto dello sport per gli studenti dell’Università e del Politecnico Federale di Zurigo per i prossimi dieci anni. La necessità di una struttura sportiva temporanea è legata alla realizzazione del Forum UZH, il nuovo centro di formazione e ricerca progettato da Herzog & de Meuron sul sito di Wässerwies, destinato a ospitare 6000 studenti; per consentirne la costruzione si è resa infatti necessaria la demolizione di quattro palazzetti esistenti che saranno poi reintegrati all’interno del Forum.

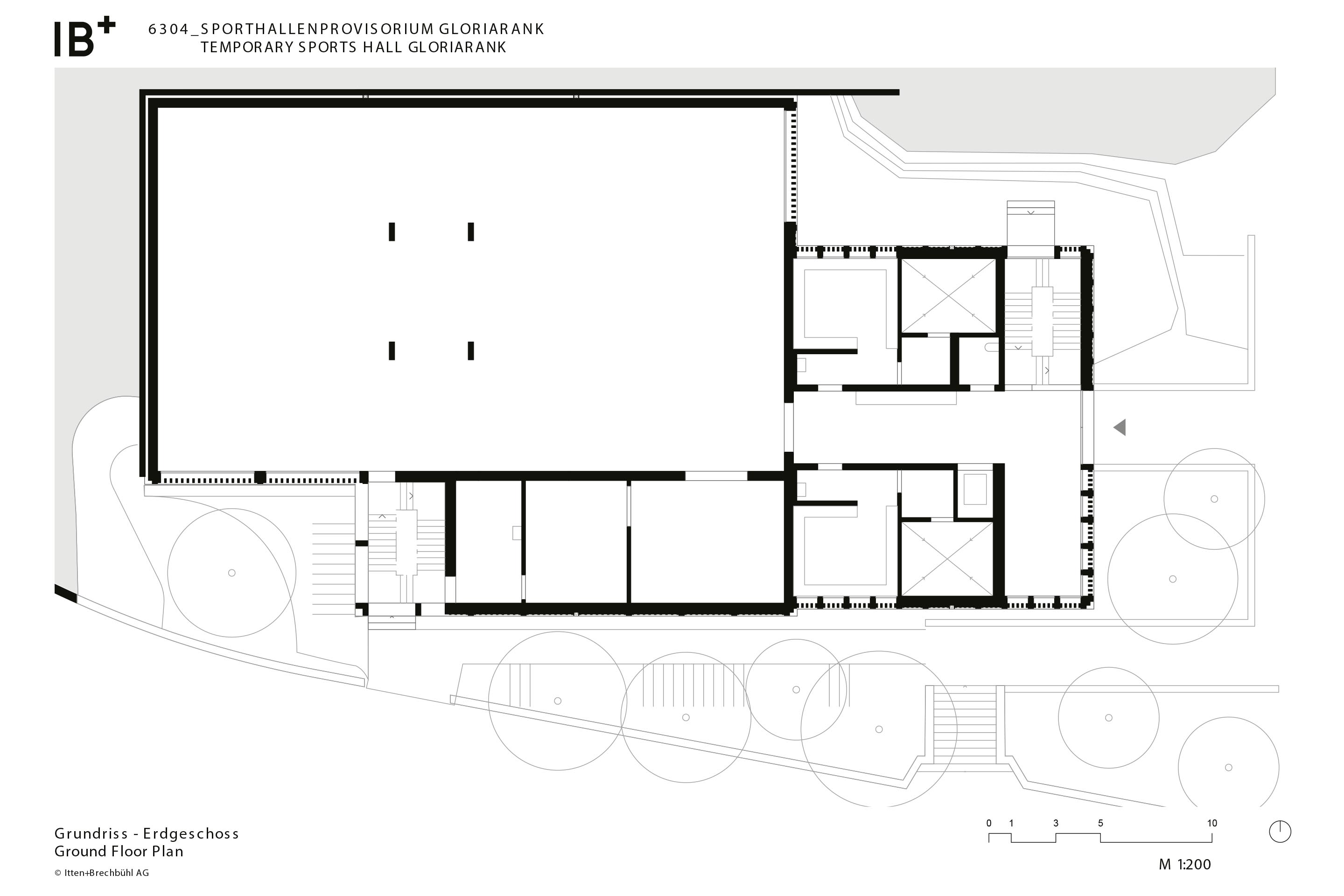
L’area di progetto, situata nel quartiere universitario in prossimità delle sedi storiche del Politecnico e dell’Università, è un cuneo in forte pendenza, in stretta relazione con l’Istituto di microbiologia medica di Bruno Giacometti e, sul lato opposto della strada, con l’ampliamento dell’ospedale universitario di Christ & Gantenbein (2019-2028). Il nuovo palazzetto, seppur pensato come struttura provvisoria, si propone di assumere un ruolo fortemente rappresentativo, costruendo, con tre volumi modulari dal carattere uniforme, la testa del cuneo lungo Gloriastrasse. La tripartizione volumetrica riflette la collocazione urbana e le relazioni con gli edifici esistenti.

Gli obiettivi principali alla base del progetto sono la massima funzionalità, la riduzione dei costi di costruzione e la volontà di limitare al minimo le spese di gestione. In tal senso, all’interno del processo di partnership guidato da Itten + Brechbühl, il know-how dell’impresa generale Hector Egger è stato fondamentale. La soluzione, che dall’esterno appare complessa, garantisce la massima efficienza strutturale, rispetta gli standard Minergie-P e Miergie-ECO e al contempo soddisfa tutti i requisiti progettuali, grazie allo sfruttamento di un alto grado di prefabbricazione. La modularità, infatti, non solo consente la massima economia di costruzione e manutenzione, ma anche un rapido e facile smantellamento e, se necessario, la possibilità di ricostruire l’edificio altrove.

L’impiego di materiali grezzi e l’assemblaggio accurato di elementi semplici rispecchiano il principio di economicità che governa il progetto: all’interno, pareti e soffitti sono rivestiti con pannelli di legno, lasciando la struttura visibile a definire la sequenza degli ambienti. Anche gli impianti sono lasciati in vista. In una prospettiva di massima economicità, pur garantendo un alto grado qualitativo, all’articolazione volumetrica corrisponde la tripartizione delle zone di climatizzazione dell’edificio: mentre infatti la palestra vera e propria deve soddisfare un elevato standard di comfort – riscaldamento e ricambio d’aria – i requisiti per i due volumi minori sono inferiori.

Luogo
Zurigo

 

Committenza
Universität Zürich, Direktion Immobilien und Betrieb, Zurigo

 

Architettura
Itten+Brechbühl AG, Zurigo

 

Collaboratori
J. Zürn, D. Blum, L. Thiel, S. Akcay; concorso: S. Carvalho, J. Paul, F. Ielo, J. Zürn

 

Direzione lavori
CM Architektur & Projekte GmbH, Veltheim (AG)

 

Architettura del paesaggio
Atelier Soto, Basilea

 

Impresa generale
Hector Egger Gesamtdienstleistung AG, Langenthal (BE)

 

Ingegneria civile
holztragwerke.ch AG, Zurigo

 

Progetto impianti RVCS
Haerter und Partner AG, Zurigo

 

Progetto impianti elettrici
Corenta AG, Dübendorf (ZH)

 

Fisica delle costruzioni
Corasin AG, Aarau

 

Protezione antincendio
holztragwerke.ch AG, Zurigo

 

Costruzione in legno
Hector Egger Holzbau AG, Langenthal (BE)

 

Grafica
Stauffenegger + Partner AG, Basilea

 

Fotografia
Yohan Zerdoun Photography, Freiburg im Breisgau (D)

 

Arte integrata nell’architettura
San Keller, Köniz (BE); Lovis Caputo & Sarah Kueng, Zurigo

 

Date
2021-2023

 

Pianificazione energetica
Corasin AG, Aarau

 

Certificazione o Standard energetico
Minergie-P-ECO; ZH-914-P

 

Intervento e tipo edificio
nuova costruzione

 

Categoria edificio (Ae)
impianti sportivi: 2314 m2

 

Fattore di forma (Ath/Ae)
1.7

 

Riscaldamento e acqua calda
teleriscaldamento (calore di scarto da termovalorizzatore rifiuti, impianto di depurazione acque), ≤75% non rinnovabile

 

Elettricità
impianto fotovoltaico 39 kWp, producibilità 39’000 kWh/anno

 

Requisito primario involucro dell’edificio
25.7 kWh/m² (valore limite 27.8 kWh/m²)

 

Indice energetico complessivo
24 kWh/m² (valore limite 25 kWh/m²)

 

Valore limite energia grigia
41.6 kWh/m² (valore limite 43 kWh/m²)

 

Particolarità
pannelli radianti a soffitto, apparecchi della massima efficienza (A+ / A++ / A+++), illuminazione completamente a LED

Etichette

Articoli correlati