Co­strui­re il tran­si­to­rio

Due palestre provvisorie nel Cantone Zurigo

Data di pubblicazione
21-06-2023
Francesca Belloni
arch. PhD professore, ricercatore ABC POLIMI, redattrice espazium quaderni

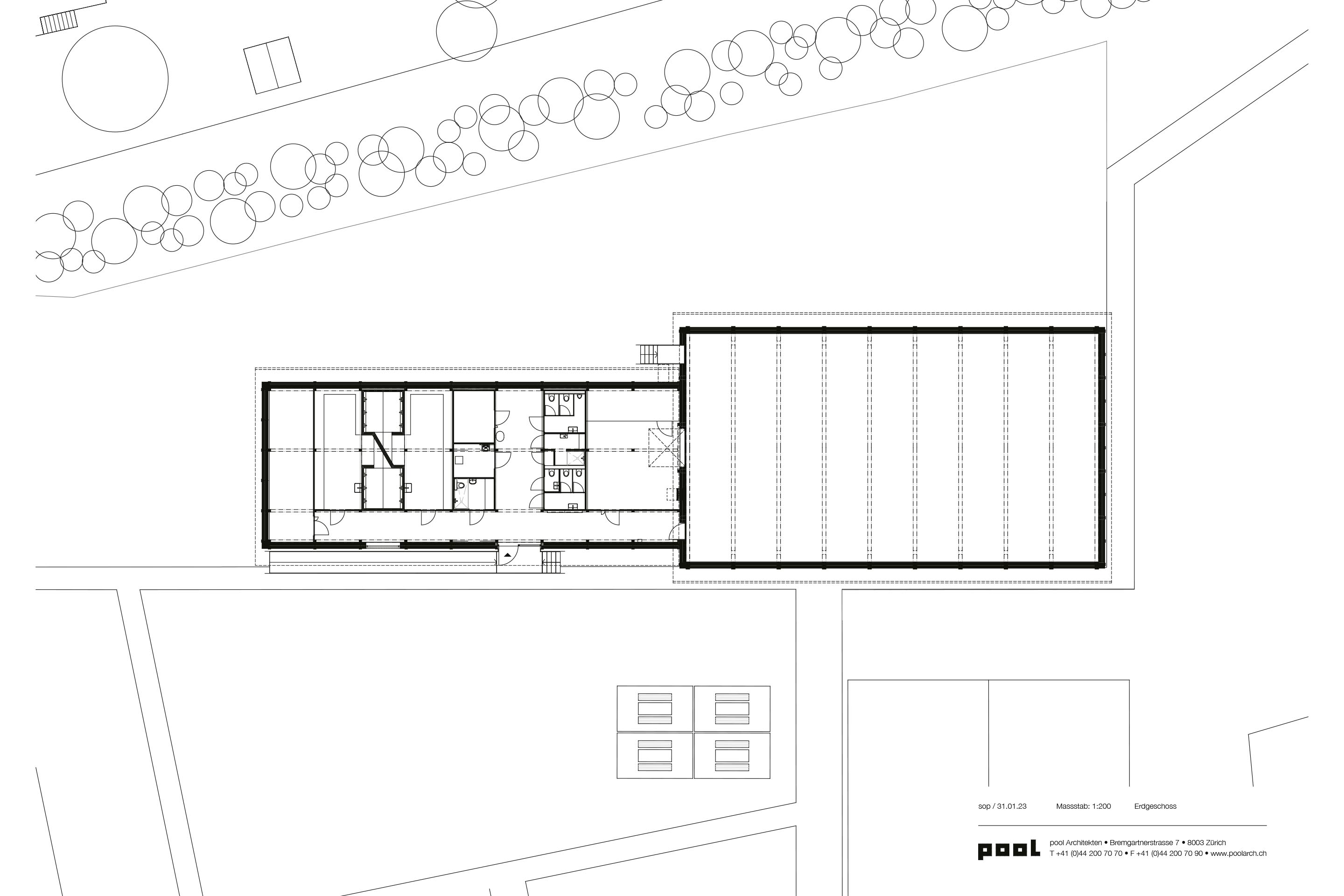
Poiché molte scuole secondarie e professionali del Cantone Zurigo presentano una forte carenza di luoghi destinati all’educazione fisica, il Dipartimento cantonale dell’Istruzione ha valutato l’opportunità di dotare di edifici sportivi temporanei la Scuola cantonale Freudenberg-Enge a Zurigo, la Scuola cantonale di Uetikon am See e il Campus Irchel dell’Università di Zurigo. Il programma in oggetto, conclusosi alla fine del 2022 (tranne che per il Campus Irchel per il quale l’ultimazione è prevista nel 2024, ragione per cui non è illustrato in questo servizio), verrà prolungato con la costruzione di altri edifici, che, come quelli già terminati, ospiteranno le regolari attività di insegnamento dai sei ai quindici anni durante l’intera fase provvisoria, fino al completamento delle sedi permanenti. Dato il carattere seriale del progetto, gli edifici sono frutto dell’assemblaggio di elementi standardizzati, replicabili con poche variazioni in funzione delle esigenze specifiche che distinguono i singoli casi.

La scelta del legno, evidentemente legata a una serie di ragioni quali la sostenibilità, la rapidità di realizzazione e la pressoché totale possibilità di recupero dei materiali impiegati in fase di smontaggio, viene interpretata dai progettisti come occasione per denotare in maniera linguisticamente evidente la natura temporanea degli interventi.

La struttura verticale della costruzione in legno ritma le facciate, caratterizzando l’aspetto degli edifici concepiti come elementi in linea con copertura a doppia falda leggermente inclinata, aggregati a volumi secondari a falda unica. La struttura del telaio secondario, posizionato all’interno, è resa volutamente visibile all’esterno grazie al rivestimento delle facciate in pannelli ondulati trasparenti in fibra di vetro, fissati davanti all’isolamento colorato. In questo modo, esibendo la stratificazione costruttiva in tutte le sue parti e lavorando sul set di finiture e di colori per ogni singolo materiale impiegato, pur nella scarna semplicità della costruzione e nell’essenzialità dei volumi, si ottiene una certa articolazione di facciata rispetto alla quale il rivestimento contribuisce a trasmettere un’impressione di profondità e leggerezza al contempo.

In particolare, per la scuola cantonale di Freudenberg-Enge è stata realizzata una doppia palestra con attigui ambienti di servizio e, poiché il giardino è censito nell’inventario comunale, l’inserimento dei nuovi volumi, eseguito con grande cautela e in consultazione con le autorità e gli esperti competenti, entra a far parte del sistema esistente, garantendo il mantenimento e la valorizzazione delle consistenze arboree presenti.

A Uetikon am See con il posizionamento del nuovo edificio temporaneo si realizza il completamento spaziale del complesso scolastico dando forma a un cortile di pertinenza destinato a parco giochi.

Il Campus Irchel sarà integrato da due palestre affiancate, tre sale multifunzionali e spazi di servizio. La struttura temporanea è prevista a Irchel-West, adiacente al palazzetto dello sport esistente Y30b e, oltre a essere utilizzata dalle scuole cantonali, le sale multifunzionali serviranno l’Associazione sportiva accademica di Zurigo (ASVZ).

Tutti i nuovi edifici soddisfano i requisiti del «Sustainability Building Standard» del Cantone Zurigo, la certificazione Minergie-A- Eco, l’economicità e la riutilizzabilità, nonché le norme vigenti in materia di accessibilità e sicurezza.

Luogo
Enge (ZH), Uetikon am See (ZH)

 

Committenza
Ufficio cantonale delle costruzioni di Zurigo

 

Architettura
pool Architekten, Zurigo

 

Direzione lavori
Takt Baumanagement AG, Zurigo

 

Architettura del paesaggio
Balliana Schubert Landschaftsarchitekten, Zurigo

 

Impresa generale
Blumer-Lehmann AG, Gossau

 

Ingegneria civile
Schnetzer Puskas Ingenieure AG, Zurigo

 

Progetto impianti RVCS
Gruenberg und Partner AG, Zurigo

 

Installazione
Hälg & Co AG, Zurigo

 

Progetto impianti elettrici
Bhend Elektroplan GmbH, Suhr

 

Installazione
A. Lehmann AG, San Gallo

 

Fisica delle costruzioni e acustica
Grolimund + Partner AG, Aarau

 

Fotovoltaico
A. Lehmann AG, San Gallo

 

Illuminotecnica
Bhend Elektroplan GmbH, Suhr

 

Progetto cromatico
Paola De Michiel, Besazio

 

Fotografia
Ralph Feiner, Malans

 

Date
concorso 2020, progetto 2020-2022, realizzazione aprile-settembre 2022

 

Pianificazione energetica
Grolimund + Partner AG, Aarau

 

Certificazione o Standard energetico
Minergie A Eco
Enge ZH-032-A-ECO, Uetikon ZH-032-A-ECO Uetikon

 

Intervento e tipo edificio
nuova costruzione

 

Categoria edificio (Ae)
Enge GF 1028 m²; Uetikon 673 m²

 

Riscaldamento
Enge sistema di riscaldamento esistente, dal 2024 teleriscaldamento; Uetikon pompa di calore ad aria

 

Acqua calda
Enge sistema di riscaldamento esistente, dal 2024 teleriscaldamento; Uetikon pompa di calore ad aria

 

Elettricità
impianto fotovoltaico a parziale copertura dei consumi

 

Particolarità
Nuovi edifici in legno (costruzione modulare e a elementi), smontabili e ricostruibili. La costruzione di moduli ed elementi in legno consente di ricostruire gli edifici almeno due volte

Articoli correlati