In­se­dia­men­to coo­pe­ra­ti­vo

Le Bled a Losanna

Data di pubblicazione
13-10-2023
Andrea Roscetti
Ingegnere, fisico della costruzione, redattore espazium quaderni

L’edificio a uso misto per cooperative di residenti è collocato nell’eco-quartiere di Plaines-du-Loup, il quale, sviluppato su una superficie di circa 30 ettari, ospiterà entro il 2034 circa 8000 abitanti e 3000 posti di lavoro, completato da nuovi servizi pubblici e reti di trasporto: una vera e propria estensione della città di Losanna, che nel 2022 accoglie i primi abitanti.

Il mix abitativo del complesso è composto per circa il 30% da alloggi sovvenzionati, per il 40% da residenze a canone calmierato e per il 30% da abitazioni a libero mercato. Le Bled è una «cooperativa sociale di abitanti» creata da TRIBU architecture nel 2011 e costituita ufficialmente il 14 gennaio 2015. I principi perseguiti sono quelli di sostenibilità, prossimità, mix sociale, solidarietà e convivialità. All’inizio del 2017, il Consiglio di amministrazione ha nominato un direttore e la cooperativa diventa completamente indipendente dallo studio di architettura.

Le Bled ha definito abitazioni e spazi utili per tutti gli stili di vita, rispondendo alle aspettative dei residenti al di là della superficie o del numero di stanze. Una volta iscritti a una sezione (l’unità di quartiere), i cooperatori solitamente possono partecipare alla definizione delle tipologie abitative, del programma dei locali, delle regole di convivenza ecc.

A seguito dell’invito agli investitori lanciato alla fine del 2015, Le Bled ha ottenuto una promessa di diritto di superficie per realizzare un progetto nello spazio urbano E del primo settore (PPA1) dell’eco-quartiere Plaines-du-Loup. L’edificio si inserisce nel concetto complessivo che deriva dal progetto «Dentelle» di Aeby Perneger & Associés SA + Hüsler & Associés Sàrl, vincitore del mandato di studio parallelo per l’inserimento urbano. La volumetria dell’edificio riduce al minimo l’ingombro e le ombre proiettate, l’angolo nord-est – dove i due corpi si incontrano – ha offerto lo spazio per la grande sala e per gli spazi condivisi: sala polivalente, terrazza e orto, sala riunioni e sala lettura. Il corridoio al primo piano configura l’asse distributivo che connette il foyer d’ingresso e i vari spazi comuni.
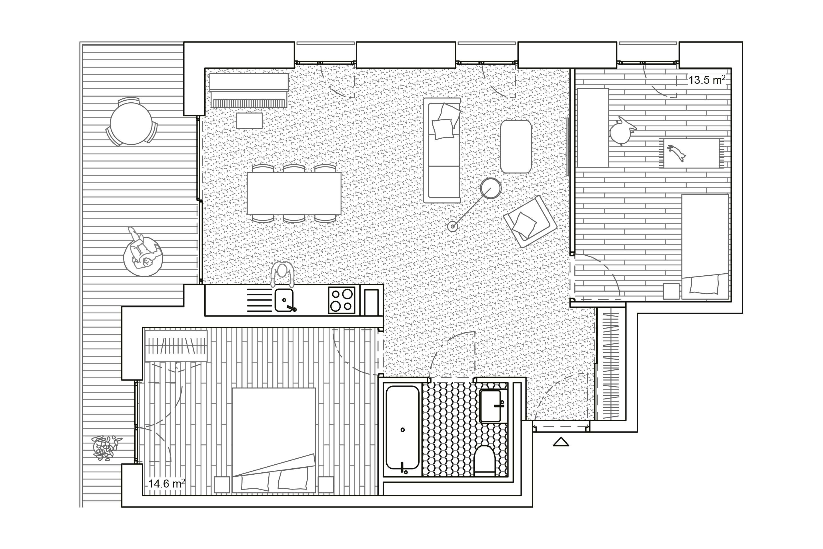
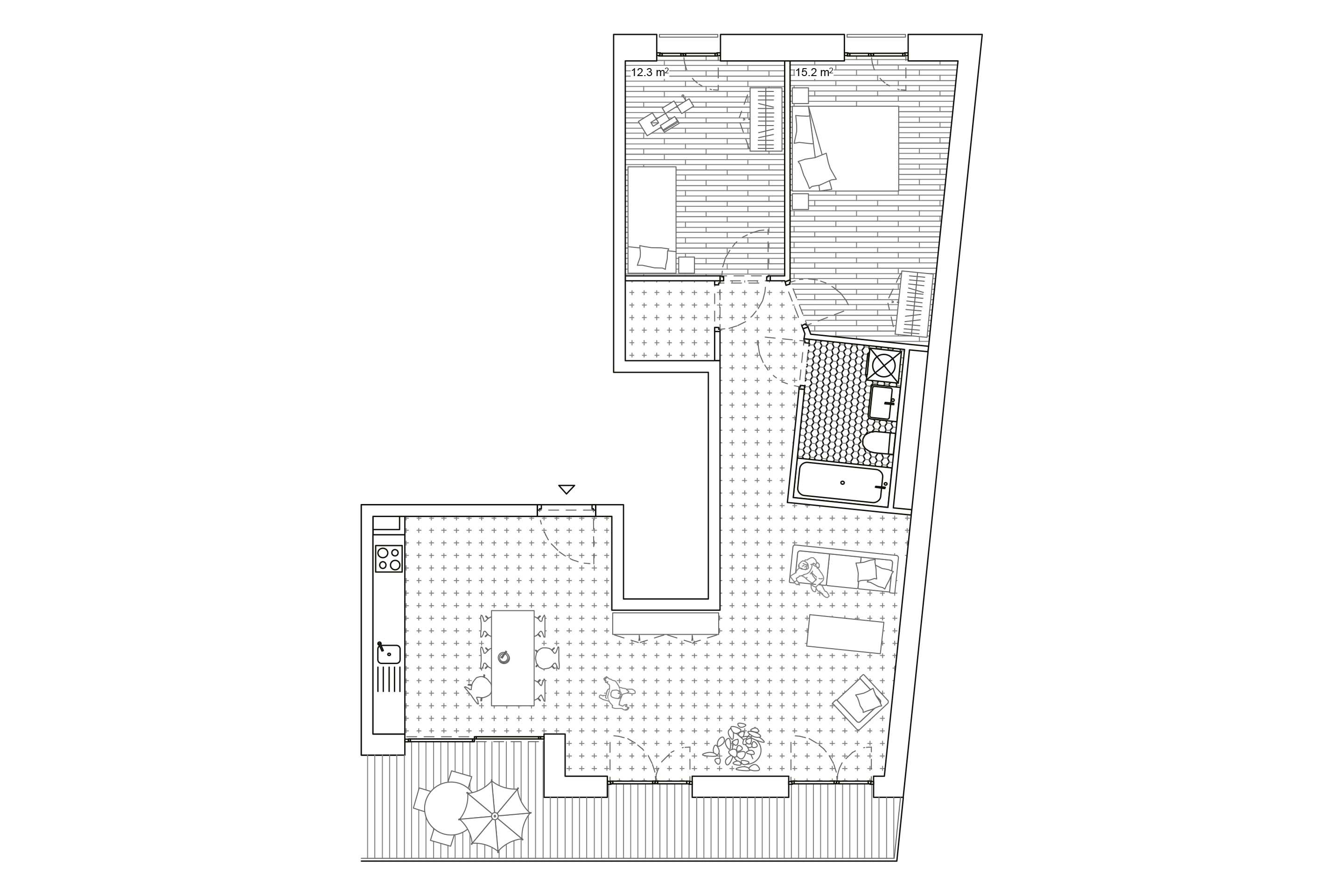
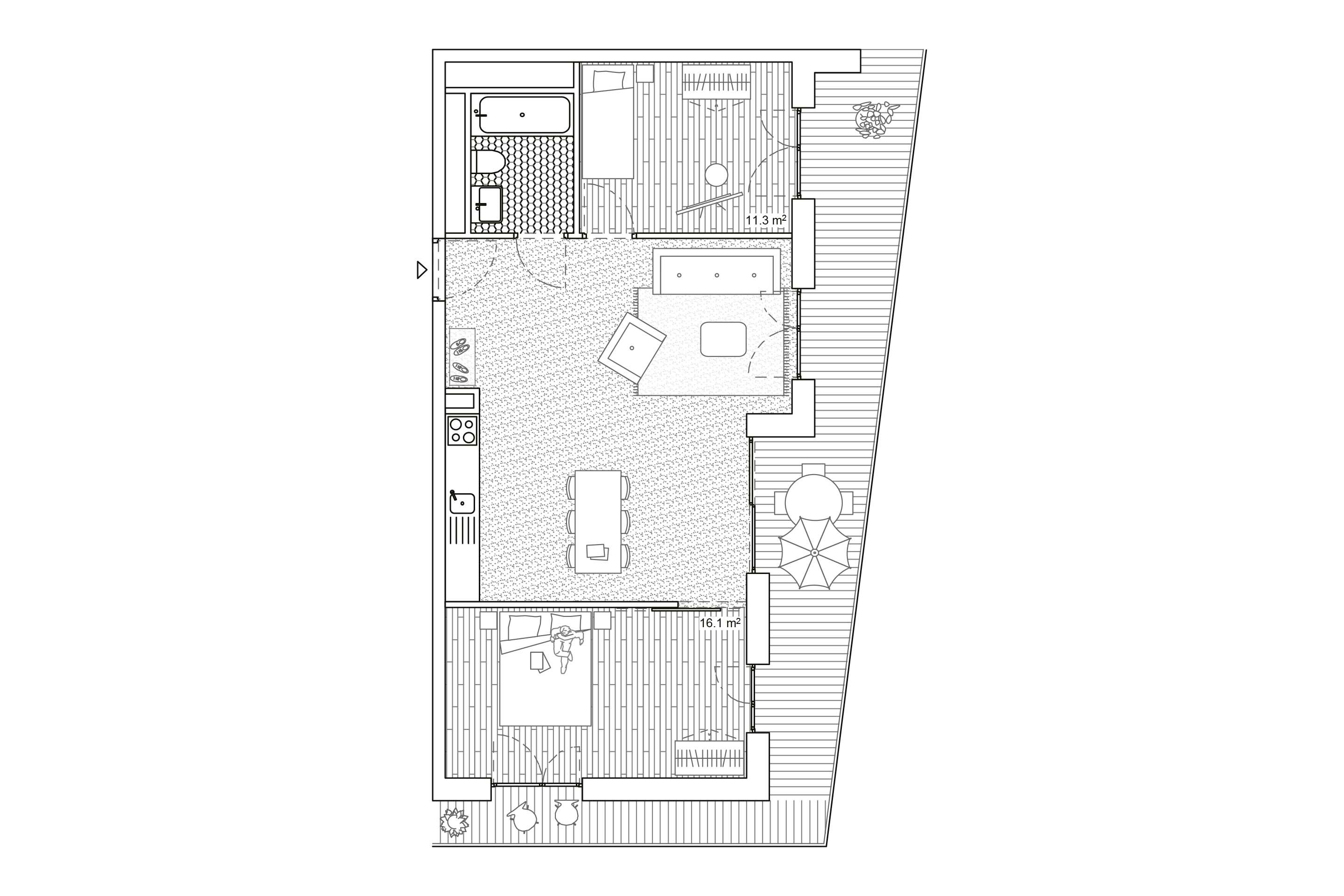
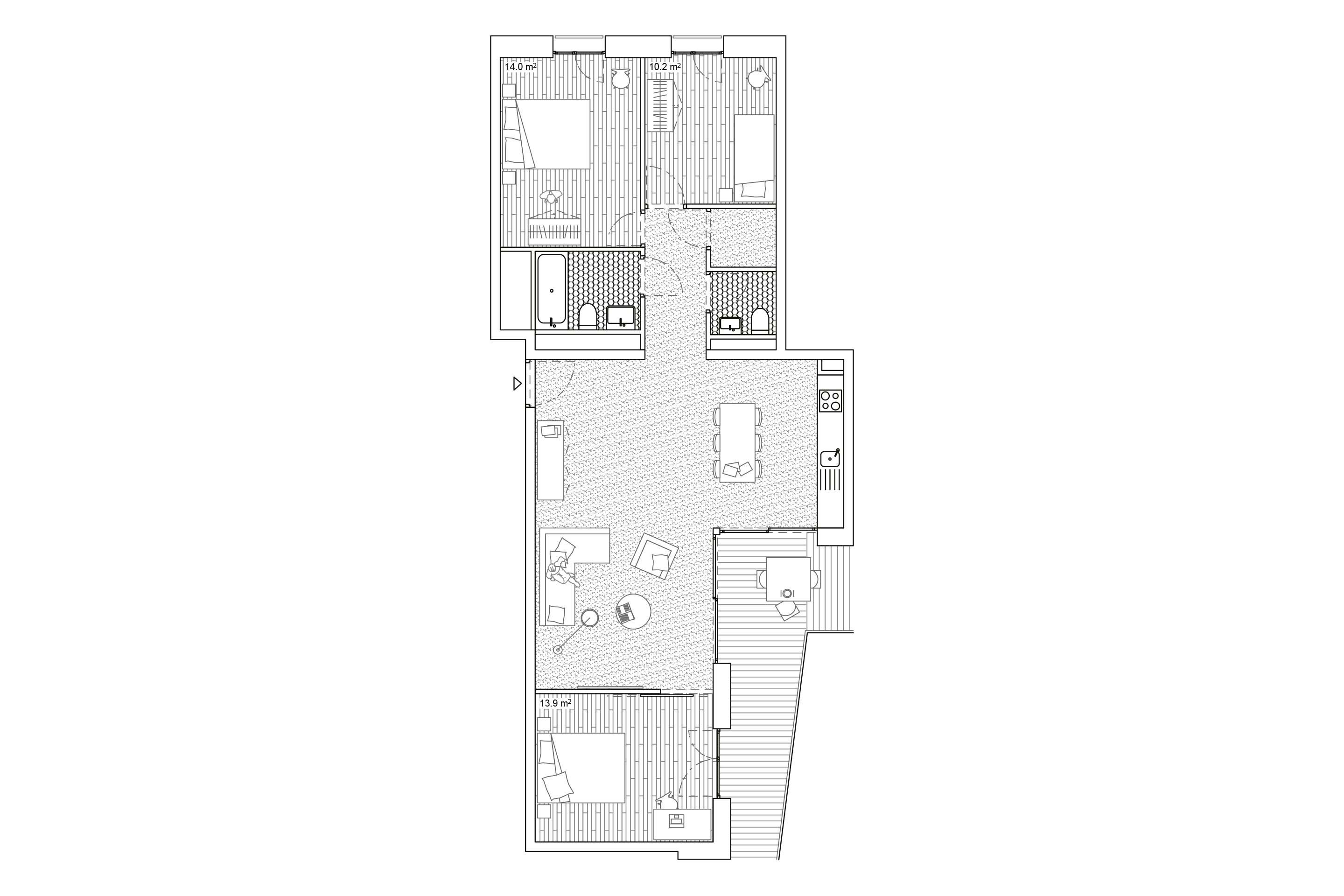
Il progetto della cooperativa Le Bled comprende 77 unità abitative di edilizia pubblica, di due diverse categorie: in affitto e a uso dei proprietari. Indipendentemente dalla categoria, sono state sviluppate tredici diverse tipologie: alloggi interdipendenti, cluster e alloggi familiari tradizionali. Le tipologie rispondono alla diversità dei futuri residenti e sono state discusse nell’ambito di processi partecipativi. Le categorie e le tipologie sono distribuite in tutto l’edificio, garantendo un mix sociale alla scala più piccola.

La ricca varietà di tipologie abitative prevede anche un grande appartamento: un cluster di 13 stanze per 7 appartamenti, comprensivi di WC al piano, con o senza angolo cottura, organizzati in monolocali, bilocali e trilocali che compongono il cluster, che può includere (o meno) anche alcuni degli appartamenti del Bled B&B. L’edificio ospita anche attività indipendenti di varie dimensioni, tra cui uffici e un punto vendita. Include anche attività condivise, tra cui una sala polivalente per spettacoli, un foyer, una sala comune, un Bled B&B (alloggi a breve termine), un salone comune e una terrazza comune di oltre 450 m2 al 5° piano.

-> Approfondimento

Luogo
Plaines-du-Loup, Losanna (VD)

 

Committenza
Société coopérative sociale d’habitants (SCCH) Le Bled, Losanna

 

Architettura
TRIBU Architecture SA, Losanna

 

Architettura del paesaggio
Approches.paysage, Losanna; Paysagestion SA, Losanna

 

Ingegneria civile
Ingeni SA, Losanna

 

Progetto impianti di riscaldamento e ventilazione
Chuard Ingénieurs Vaud SA, Losanna

 

Progetto impianti sanitari
CCTB SA, Vevey

 

Progetto impianti elettrici
Cicé Ingénieurs conseils en électricité Sàrl, Vevey

 

Fisica delle costruzioni
Sorane SA, Losanna

 

Progetto impianto fotovoltaico
Solstis SA, Losanna

 

Acustica
Ecoacoustique SA, Losanna

 

Illuminazione
TRIBU Architecture SA, Losanna

 

Geologia
Karakas et Français SA, Losanna

 

Progettazione serramenti e facciata
TRIBU Architecture SA, Losanna

 

Fotografia
Dylan Perrenoud, Losanna

 

Fotorender
TRIBU Architecture SA, Losanna

 

Date
progetto 2017-2019, realizzazione 2020-2023

 

Pianificazione energetica
Chuard Ingénieurs Vaud SA + CSD Ingénieurs, Losanna

 

Certificazione o Standard energetico
Minergie - P VD-224-P (provvisorio), SMéO equivalente ECO + 2000W Intervento e tipo edificio: nuova costruzione

 

Categoria edificio (Ae)
11’134m2 Fattore di forma (Ath/Ae): 0.83

 

Riscaldamento
Pompe di calore a sonda geotermica + recupero del calore delle acque reflue, COP 5.21

 

Acqua calda
Pompe di calore a sonda geotermica + recupero del calore delle acque reflue, COP 2.84

 

Elettricità
impianto fotovoltaico 112.32kWp, 288 moduli, 520m²

 

Requisito primario involucro dell’edificio
17,2 kWh/m2

 

Indice energetico complessivo
58.68 kWh/m²a (valore limite: 63.36 kWh/m²a)

 

Valore limite energia grigia
89.07 MJ/m2a, equivalente CO2 : 7.597 kg CO2-Eq/m²a

Articoli correlati