De­fi­ni­re l’oriz­zon­te

Inches Geleta Architetti | Borlini & Zanini

L’ampliamento del campus scolastico integra un basamento in cemento armato che valorizza la preesistenza. Spazi modulati, struttura metallica e facciate ritmate assicurano funzionalità e ordine, conferendo al complesso un’immagine unitaria e contemporanea, radicata nel paesaggio.

Data di pubblicazione
02-09-2025
Luca Cardani
arch., lect., res. in Architectural and Urban Design DABC POLIMI

Defining the horizon english version

Ampliamento scuola elementare, Melano TI

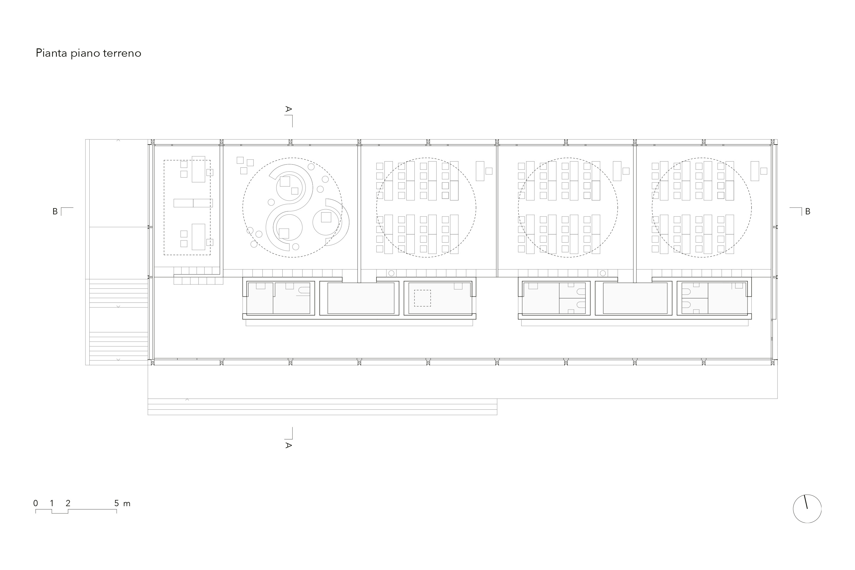
L’edificio completa il piccolo campus scolastico preesistente, realizzato nel 1973 dagli architetti Marco Krähenbühl e Tino Bomio, definito da tre corpi edilizi disposti attorno a una corte pianeggiante. L’ampliamento, collocato sul lato aperto della corte, conclude il sistema insediativo adattandosi al leggero declivio del terreno, costruendo un margine netto che definisce il nuovo limite del comparto.

L’impianto planimetrico segue una logica di tripartizione orizzontale: un podio massivo in calcestruzzo armato affonda parzialmente nel pendio, il piano didattico principale si dispone sopra il basamento come fascia continua vetrata e, infine, una copertura orizzontale in cemento chiude il volume, segnando con chiarezza la linea dell’orizzonte. La scelta tipologica restituisce un’immagine di ordine e misura, capace di ancorare visivamente il nuovo intervento alla preesistenza, che rimane dominante sullo sfondo. Al piano della corte si colloca il grande atrio vetrato d’ingresso, che funge da distributore centrale verso quattro aule didattiche identiche e un’aula insegnanti, tutte filtrate da una sequenza di blocchi di servizio centrali che separano gli spazi collettivi da quelli affacciati sul paesaggio. La spina dei servizi funge da elemento strutturale e al contempo da spessore tecnico e filtro visivo: al suo interno si concentrano armadi, accessi secondari e impianti, risolti attraverso una boiserie continua che integra gli elementi funzionali nel rivestimento ligneo. Sul lato di ingresso, lunghe panche in legno qualificano lo spazio dell’attesa e dell’incontro.

La struttura perimetrale del piano didattico si articola secondo un ordine regolare di pilastri metallici che scandiscono i prospetti su tutti e quattro i fronti. Tra i montanti, i tamponamenti alternano campiture vetrate a elementi opachi metallici, configurando un ritmo misurato che, nel lato d’ingresso, si dilata a formare il portico di accesso. La regolarità della scansione strutturale si traduce nella ripetizione modulare delle aule, garantendo al tempo stesso chiarezza distributiva e flessibilità di utilizzo.

La visione d’insieme, particolarmente leggibile dal fondovalle, evidenzia il ruolo insediativo assegnato all’edificio: il nuovo volume appare come uno zoccolo che sostiene e unifica il piano d’appoggio degli edifici preesistenti, enfatizzandone il carattere di complesso unitario. La relazione tra il nuovo e l’esistente non avviene per imitazione formale, ma attraverso una logica compositiva condivisa: l’uso calibrato del calcestruzzo faccia a vista per il podio, la scansione ritmica dei prospetti, la chiarezza dell’ordine strutturale. L’intervento dimostra così la capacità di declinare un principio compositivo classico – il basamento come elemento regolatore del paesaggio costruito – in un linguaggio contemporaneo sobrio e funzionale. Senza eccessi espressivi, il progetto completa il comparto scolastico con misura e coerenza, restituendo all’insieme una chiara gerarchia formale e spaziale.

 

  • Luogo Val Mara, Melano 
  • Committenza Comune di Val Mara 
  • Architettura  Inches Geleta Architetti Sagl, Locarno; M. Inches, N. Geleta 
  • collaboratori  M. Mascheroni 
  • Direzione lavori Piero Conconi Architetto, Lugano; P. Conconi, S. Schnidrig 
  • Impresa  Giovanni Quadri SA, Cadempino 
  • Ingegneria civile Borlini & Zanini SA, Collina d’Oro 
  • Progetto impianti RVCS  Tecnoprogetti SA, Camorino 
  • Progetto impianti elettrici e Illuminotecnica Elettroconsulenze Solcà SA, Mendrisio 
  • Fisica della costruzione e Acustica ing. Andrea Roscetti, Lugano 
  • Geologia Geoalps Engineering SA, Faido 
  • Progetto serramenti Veragouth SA, Bedano 
  • Progetto facciate  Maturi & Sampietro SA, Mezzovico 
  • Fotografia  Simone Bossi, Varese 
  • Date concorso 2018; progetto: 2019-2022; realizzazione: 2022-2024 
  • Certificazione o Standard energetico  Minergie-P, TI-313-P 
  • Intervento e tipo edificio nuova costruzione
  • Categoria edificio (Ae) scuole  516 m² 
  • Fattore di forma (Ath/Ae)  2.87 
  • Riscaldamento 100% pompa di calore acqua-acqua, CLA 3.89 
  • Acqua calda 100% pompa di calore aria-acqua, CLA 2.3 
  • Elettricità  fotovoltaico 200 m², 44 kWp, produzione annua 50’000 kWh 
  • Requisito primario involucro 34.1 kWh/(m²a) (limite 35.0 kWh/(m²a)) 
  • Indice Energetico Complessivo -29.3 kWh/(m²a) (limite 42.8 kWh/(m²a)) 
  • Valore limite energia grigia non presente nello standard
  • Particolarità  Distribuzione di calore e raffrescamento tramite pavimento radiante. Ventilazione controllata con due monoblocchi (6’600 m³/h) a portata variabile tramite sensori CO2 per ambiente. Impianto FV composto da 102 moduli Jinko JKM430N-54HL4-V da 430 Wp. Il 44% della produzione è autoconsumato 

Articoli correlati