Co­lo­ra­ta rit­mi­ci­tà

Bonetti Bonetti Regazzoni Architetti

La nuova scuola dell’infanzia di Molino Nuovo trasforma un isolato frammentato in un centro urbano ordinato, con spazi didattici flessibili, un tetto verde attivo e un grande campo pubblico che rafforza il legame tra scuola, quartiere e città.

Data di pubblicazione
04-09-2025
Luca Cardani
arch., lect., res. in Architectural and Urban Design DABC POLIMI

Colorful rythm english version

Scuola dell’infanzia e campi rionali, Molino Nuovo, Lugano TI

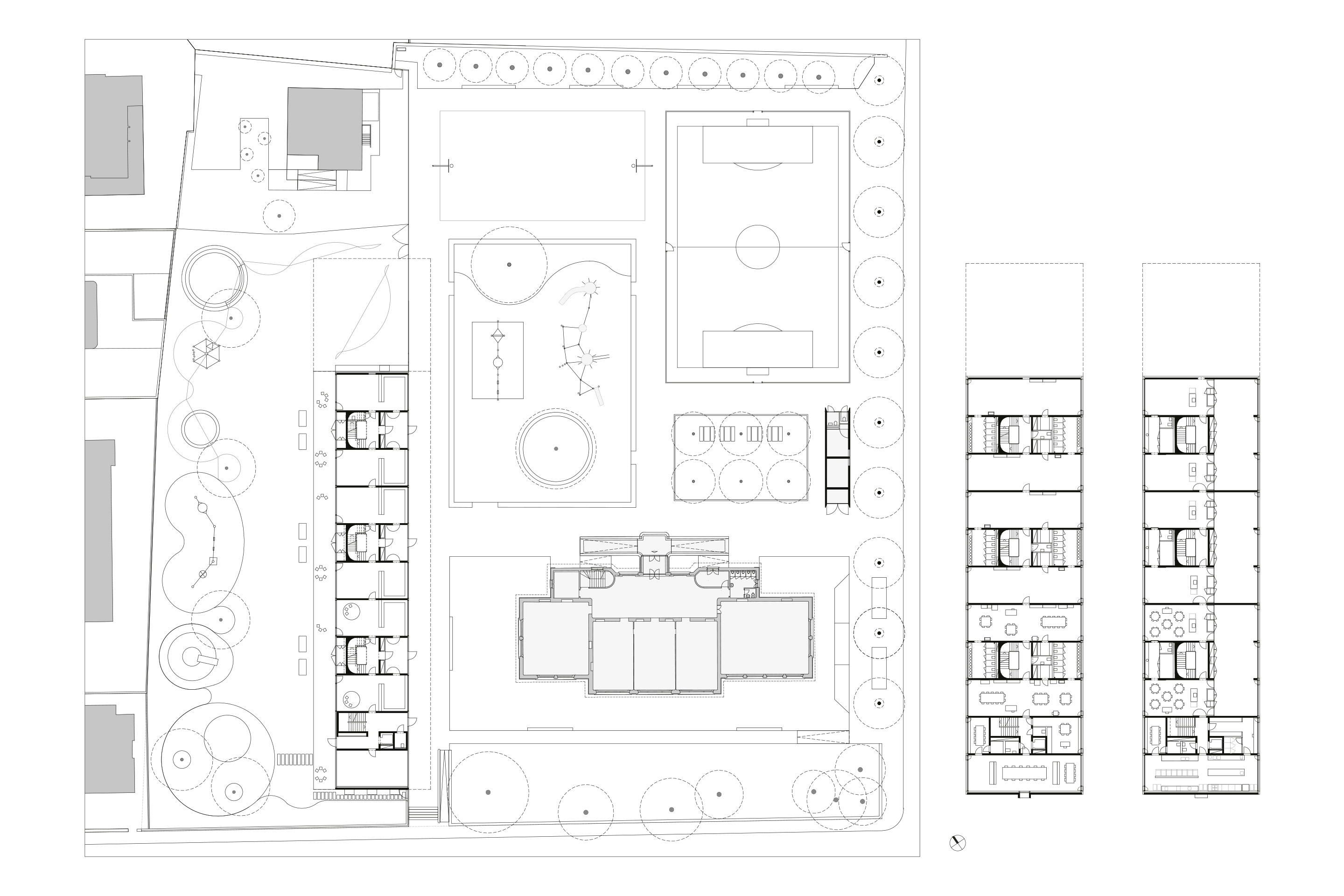
La nuova scuola dell’infanzia di Molino Nuovo si inserisce all’interno di un isolato residenziale compatto, occupando un lotto quadrato di circa 100 metri per lato, precedentemente caratterizzato da una sequenza disordinata di edifici scolastici provvisori e preesistenze storiche frammentate. Il progetto ridefinisce radicalmente l’organizzazione urbana dell’area, svuotandola al centro per restituire uno spazio pubblico unitario connesso al sistema dei campi rionali e, attraverso l’asse verde, agli altri poli civici del quartiere.

L’edificio, compatto e lineare, si dispone lungo il margine occidentale del lotto, sviluppandosi su tre livelli in asse nord-sud. Tale collocazione consente di contenere l’impronta a terra dell’intervento, riservando le porzioni est e ovest a due giardini distinti: il giardino protetto della scuola e l’ampio spazio civico dei campi rionali. L’impianto tipologico trasversale costituisce il principio ordinatore della distribuzione planimetrica: gli spazi didattici si organizzano a coppie attorno ai nuclei centrali di distribuzione e servizi, generando una sequenza di ambienti attraversanti aperti sui due fronti.

Al piano terreno, l’arretramento della facciata definisce due portici simmetrici che articolano gli ingressi e instaurano una permeabilità visiva e funzionale tra i due ambiti verdi. Ai piani superiori si distribuiscono le attività didattiche: al primo livello gli spazi destinati all’insegnamento quotidiano; al secondo, le attività collettive e motorie trovano posto in ambienti longitudinali privi di interruzioni strutturali.

La struttura portante in calcestruzzo armato a setti paralleli, continua sui tre livelli, consente ampia flessibilità, liberando le campate delle aule da impedimenti strutturali. La scelta di una maglia regolare e ripetitiva si presta anche a eventuali ampliamenti futuri, previsti dal programma nel bando di concorso. La composizione dei fronti interpreta con rigore il sistema tipologico. I prospetti longitudinali presentano un’alternanza di superfici vetrate a tutt’altezza e tamponamenti colorati che individuano le sezioni. Le solette in calcestruzzo a vista si distendono in aggetto sugli spazi esterni, poggiando su esili setti perimetrali smaterializzati dalla continuità della vetrata. I lati corti, chiusi, restituiscono la logica costruttiva dell’impianto, esaltando il carattere massivo dei portici e negando rapporti diretti con la viabilità. La copertura assume un ruolo visivo rilevante nel contesto, caratterizzato da edifici residenziali più alti. Per questa ragione, è concepita come quinta facciata: un tetto verde estensivo con vegetazione autoctona e superfici fotovoltaiche, che contribuisce alla riduzione delle isole di calore e alla diversificazione ecologica. All’interno, il linguaggio compositivo si mantiene coerente: i moduli cromatici delle facciate si riflettono negli arredi e nei sistemi di oscuramento, proseguendo l’articolazione ritmica degli spazi didattici. Le scelte impiantistiche privilegiano soluzioni compatte e razionali: pompe di calore alimentate da acqua di falda, distribuzione verticale centralizzata della ventilazione e impianti tecnici contenuti nei volumi di risalita.

Il disegno degli spazi esterni integra le diverse funzioni pubbliche in un unico campo attrezzato, alternando superfici minerali e aree alberate per il gioco, lo sport e il ritrovo, in continuità con l’asse verde pedonale e ciclabile che connette il comparto agli altri poli del quartiere. L’intervento, pur nella sua semplicità compositiva, ricompone il disordine originario in una nuova struttura urbana ordinata, che definisce con chiarezza il rapporto tra collettività, scuola e città.

  • Luogo Lugano, Molino Nuovo 
  • Committenza Città di Lugano, Edilizia Pubblica 
  • Architettura  Bonetti Bonetti Regazzoni Architetti snc, Massagno 
  • collaboratori L. Gilardi, S. Lorenzini, C. Maisonobe 
  • Direzione lavori AFRY Svizzera SA, Bellinzona 
  • Impresa Taddei SA, Viganello 
  • Ingegneria civile Marcionelli & Winkler + Partners SA, Lugano 
  • Progetto impianti RVCS e impianti elettrici Tecnoprogetti SA, Camorino 
  • Fisica della costruzione e Acustica IFEC c/o AFRY Svizzera SA, Bellinzona 
  • Fotovoltaico ETAVIS Elettro-impianti SA, Pregassona 
  • Illuminotecnica Tecnoprogetti SA, Camorino 
  • Geologia Studio Luechinger SA, Lugano
  •  Progetto serramenti Grandi Didier SA, Rivera 
  • Fotografia aerea Studio Pagi, Lugano 
  • Date concorso: 2012; progetto: 2016–2019; realizzazione: 2019–2023 
  • Pianificazione energetica IFEC c/o AFRY Svizzera SA, Bellinzona 
  • Certificazione o Standard energetico Minergie 2022, TI-530 
  • Intervento e tipo edificio  nuova costruzione, scuola dell’infanzia| new construction, kindergarten 
  • Categoria edificio (Ae)  scuole: 2’415 m² 
  • Fattore di forma (Ath/Ae) 1.38 
  • Riscaldamento e acqua calda pompa di calore acqua-acqua con acqua di falda 
  • Elettricità superficie: 102 m²; potenza: 20.4 kWp; produzione: 25’900 kWh/anno; rendimento: 1270 kWh/kWp 
  • Requisito primario involucro 27.5 kWh/m²a (valore limite 28.7 kWh/m²a) 
  • Indice Energetico Complessivo 38.6 kWh/m²a (valore limite 40.0 kWh/m²a) 
  • Valore limite energia grigia  non dichiarato  
  • Particolarità Immissione/aspirazione della ventilazione controllata tramite il vano scale centrale condiviso tra due sezioni. Monoblocchi separati per cucina e spazi comuni 

Articoli correlati