Ca­se-ate­lier per ar­ti­sti a Ba­si­lea

Degelo Architekten

Data di pubblicazione
25-10-2023
Andrea Roscetti
Ingegnere, fisico della costruzione, redattore espazium quaderni

La necessità degli artisti di lavorare e vivere nello stesso luogo è l’elemento guida del progetto. A Basilea le possibilità di soddisfare a prezzi ragionevoli tali esigenze sono piuttosto scarse. La Coopérative d’Ateliers, creata nel 2016 dal gruppo di artisti a tale scopo e presieduta dall’architetto progettista, ha ricevuto il terreno dalla Fondazione Habitat in diritto di superficie.

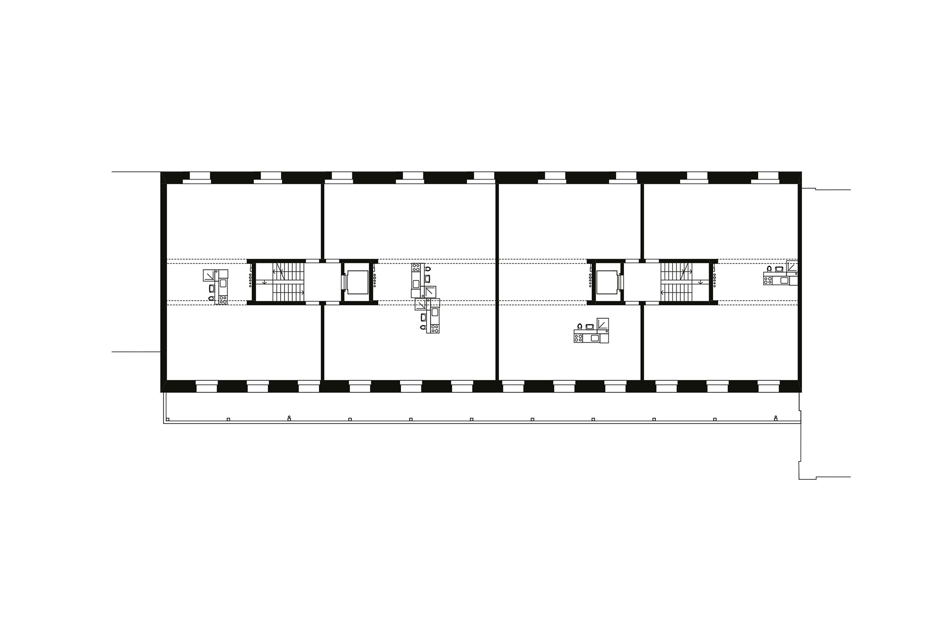
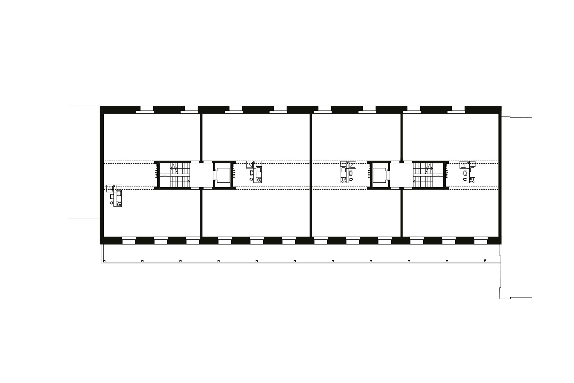
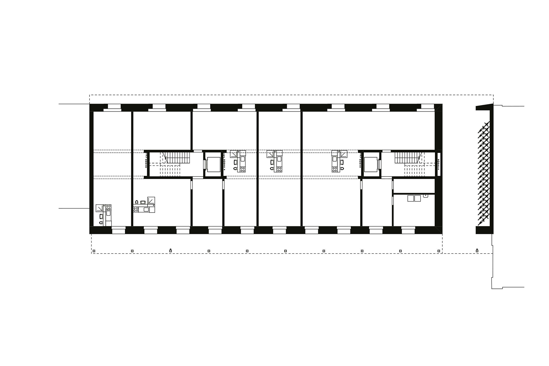
L’edificio di quattro piani ospita 17 monolocali abitabili, il concetto è ridotto all’essenziale, l’approccio è piuttosto radicale. Gli spazi abitativi e di lavoro hanno pianta libera e possono essere arredati individualmente, la base comune è costituita principalmente dalla dotazione sanitaria: un’unità con WC, doccia e lavandino e una cucina indipendente con forno, lavello e frigorifero. L’altezza dei locali di 3.45 m rende possibile l’installazione di un soppalco, con uno sfruttamento migliore delle superfici. Le pareti divisorie possono essere montate e smontate in funzione delle necessità. Questo concetto ha reso possibile il raggiungimento dell’obiettivo prefissato: un affitto di dieci franchi al metro quadro al mese, circa la metà della tariffa abituale, un terzo di quella di mercato. Il concetto si adatta a ogni possibile situazione abitativa e lavorativa. Singoli, famiglie o altri possibili utenti: è stato concepito uno spazio dove gli artisti e i loro coinquilini possono vivere e lavorare.

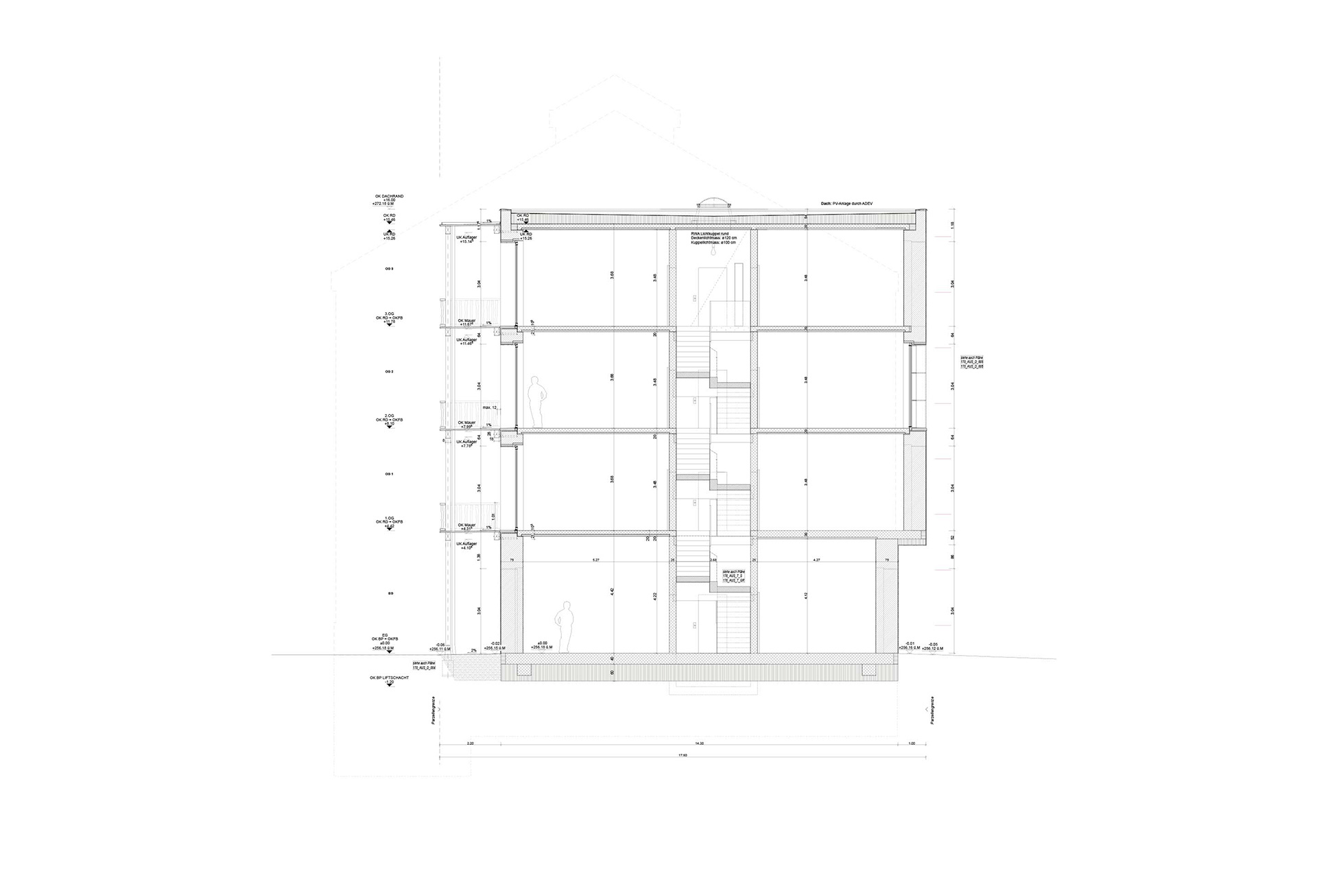
L’edificio non dispone di un sistema di riscaldamento, una prima per un edificio puramente residenziale in Svizzera, il che contribuisce a ridurre le emissioni di CO2 complessive. Le pareti esterne di 80 cm di spessore in muratura isolante costituiscono una massa di accumulo significativa. Il clima dell’edificio è ottimizzato grazie alla notevole inerzia termica dell’edificio e dalle aperture per la ventilazione controllata, gestite dai sensori, l’unico elemento tecnologico complesso presente nell’edificio oltre al blocco sanitario-cucina. Combinando questi fattori è possibile mantenere temperature confortevoli durante tutto l’anno, anche per il futuro clima estivo che si prevede sempre più caldo. In inverno le aperture, comandate da sensori o operabili manualmente, aiutano a espellere l’aria viziata mentre in estate permettono il raffrescamento notturno della massa. I profondi intradossi delle finestre proteggono in modo naturale dal surriscaldamento estivo, senza bisogno di ulteriori protezioni dal sole. Anche i balconi in legno non trattato sul lato sud-ovest contribuiscono alla protezione dal calore in estate ed estendono l’area residenziale verso il cortile con la loro balaustra in legno di quercia massiccio.

L’involucro dell’edificio è conforme allo standard svizzero Minergie-P e l’acqua calda è prodotta mediante una pompa di calore. Il tetto ospita un impianto fotovoltaico la cui produzione viene immessa nella rete RCP più grande della Svizzera, caratterizzata da un’elevatissima quota di autoconsumo: quasi il 90% dell’energia solare prodotta sul posto viene utilizzata direttamente dagli edifici di Erlenmatt Ost.

Approfondimenti

Luogo
Signalstrasse 41-43, Basilea

 

Committenza
Coopérative d’Ateliers

 

Architettura e direzione lavori
Degelo Architekten, Basilea

 

Ingegneria civile
Rapp Infra AG, Münchenstein

 

Progetto impianti elettrici
K. Schweizer AG, Allschwil

 

Concetto di ventilazione automatizzata tramite finestre
T.A.U. GmbH, Lustenau

 

Impianto sanitario
Rapp Gebäudetechnik AG, Münchenstein

 

Acustica
Gartenmann Engineering AG, Basilea

 

Geologia
Kiefer & Studer AG, Reinach

 

Fotografia
Barbara Bühler

 

Date
2018-2019

 

Certificazione o Standard energetico
Standard MoPEC 2008; 70% del limite del fabbisogno

 

Intervento e tipo edificio
nuova costruzione

 

Categoria edificio (Ae)
uso misto: 2’640 m2

 

Acqua calda
pompa di calore aria - acqua

 

Particolarità
edificio senza impianto di riscaldamento, controllo della ventilazione mediante sensori e apertura finestre automatica

Articoli correlati