Bruther vince lo Swiss Architectural Award 2019-2020
La settima edizione dello Swiss Architectural Award, che per la prima volta riunisce l'Accademia di architettura e i dipartimenti d'architettura dei politecnici di Losanna e Zurigo, ha visto premiato lo studio francese Bruther.
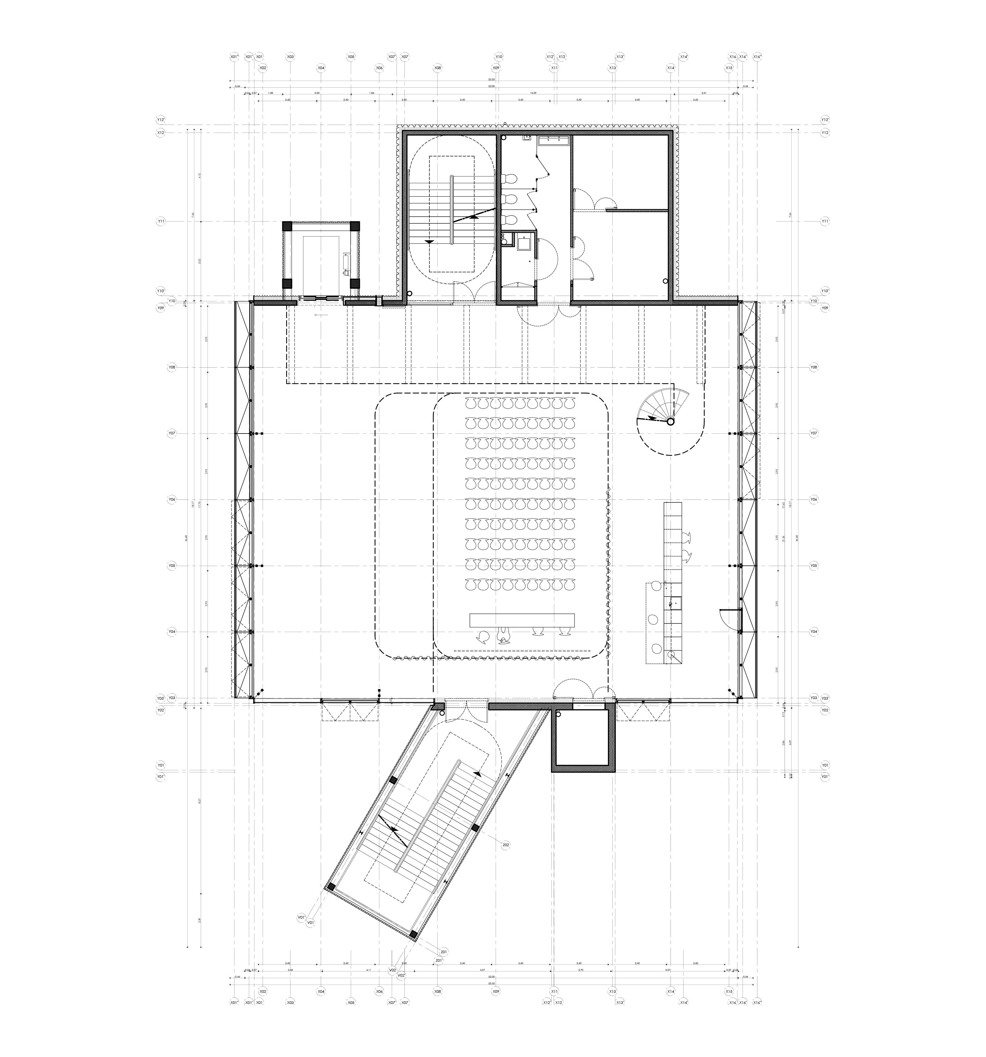
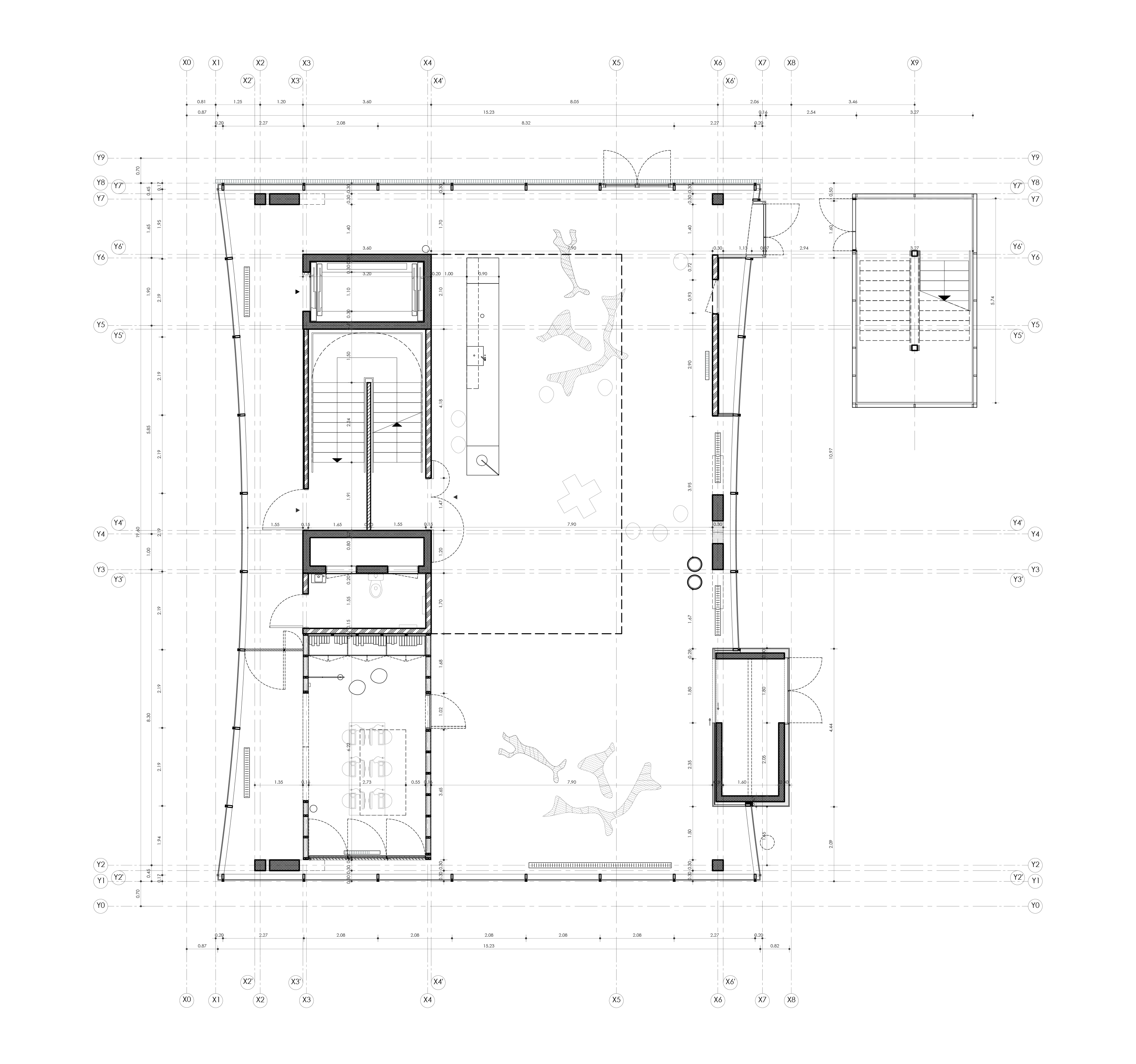
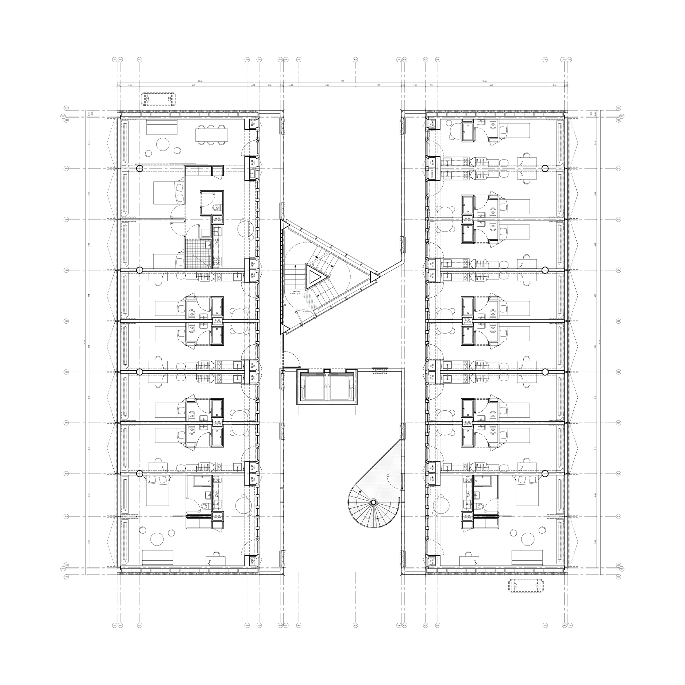
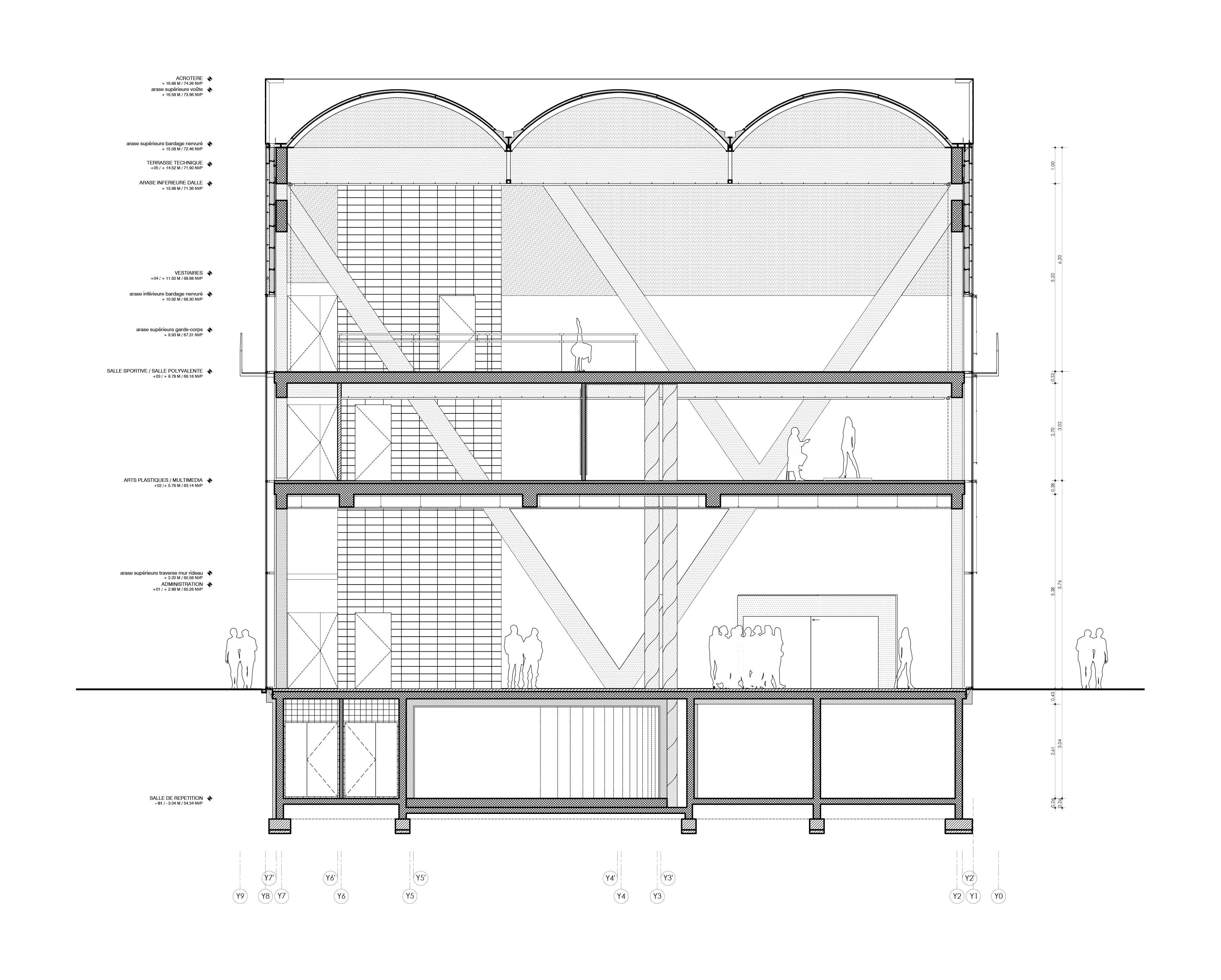
A vincere il settimo Swiss Architectural Award è lo studio francese Bruther, fondato da Stéphanie Bru e Alexandre Theriot, per tre progetti – il Centro culturale e sportivo Saint-Blaise di Parigi (2010-2014), il New Generation Research Center di Caen (2013-2015) e la Residenza per ricercatori universitari «Maison Julie-Victoire Daubié» di Parigi (2014-2018) – che, come scrive la giuria, «affrontano, con grande coerenza e qualità, il tema della periferia (e nello specifico, la periferia delle città francesi), riconosciuta come luogo nevralgico in cui si manifestano, con forza dirompente, le contraddizioni della nostra società. In contesti difficili, percorsi da tensioni sociali e caratterizzati da spazi anonimi se non degradati, Bruther interviene con un’architettura caratterizzata da una profonda istanza civica, che si propone di restituire dignità a questi luoghi e ai loro abitanti».
«I nostri progetti» ha dichiarato lo studio, che si muove tra architettura, urbanistica, paesaggio e didattica (Theriot insegna attualmente al Politecnico di Zurigo), «suggeriscono un delicato equilibrio tra strategia e forma, rigore e libertà, specificità e genericità, immediatezza e istanza evolutiva».
Le opere di Bruther sono state ritenute rispecchiare i valori dello Swiss Architectural Award, inteso a «promuovere un’architettura attenta alle questioni etiche, estetiche ed ecologiche contemporanee» e a favorire il dibattito pubblico. Il riconoscimento, rivolto ad architetti sotto i 50 anni provenienti da tutto il mondo che abbiano realizzato almeno tre lavori significativi, sarà assegnato nel corso di una cerimonia nell'Auditorio del Teatro dell'architettura di Mendrisio il 1° aprile 2021, in occasione dell'inaugurazione della mostra delle opere premiate.
Per la prima volta dalla sua istituzione nel 2007, lo Swiss Architectural Award è stato promosso dalla Fondazione Teatro dell'architettura e assegnato sotto la supervisione delle tre scuole universitarie d'architettura svizzere (i politecnici di Zurigo e Losanna e l'Accademia di architettura dell'Università della Svizzera italiana), rappresentate nella giuria. Essa era presieduta da Mario Botta e composta da Riccardo Blumer (direttore dell’Accademia di architettura), Dieter Dietz (direttore della Section d’Architecture, EPFL-ENAC), Christophe Girot (decano del Departement Architektur, ETHZ) e João Luís Carrilho da Graça (Lisbona).
Lo studio Bruther è stato scelto tra 33 candidati provenienti da 19 paesi e segnalati da un comitato di advisor composto da Manuel Aires Mateus (Portogallo), Solano Benitez (Paraguay), Angelo Bucci (Brasile), Marianne Burkhalter (Svizzera), Sean Godsell (Australia), Steven Holl (USA), Junya Ishigami (Giappone), Bijoy Jain (India), Shelley McNamara (Irlanda), Valerio Olgiati (Svizzera), Adolph Stiller (Austria), Elisa Valero (Spagna) e Paolo Zermani (Italia). I candidati erano:
- Al Borde (Pascual Gangotena, David Barragán, Marialuisa Borja, Esteban Benavides; Ecuador);
- Arrhov Frick (Johan Arrhov, Henrik Frick, Svezia);
- Bernardo Bader (Austria);
- Barbas Lopes Arquitectos (Patricia Barbas, Diogo Lopes, Portogallo);
- Tatiana Bilbao (Messico);
- Bruther (Stéphanie Bru, Alexandre Theriot, Francia);
- Riccardo Butini (Italia);
- Carmody Groarke (Kevin Carmody, Andy Groarke, Inghilterra);
- Ricardo Carvalho (Portogallo);
- Kashef Mahboob Chowdhury (Bangladesh);
- DECA Architecture (Alexandros Vaitsos, Carlos Loperena, Grecia);
- Angela Deuber (Svizzera);
- Edition Office (Kim Bridgland, Aaron Roberts, Australia);
- Estudio MMX (Jorge Arvizu, Ignacio del Rio Emmanuel Ramirez, Diego Ricalde, Messico);
- Nick Gelpi (USA);
- Guidotti Architetti (Giacomo Guidotti, Riccarda Guidotti, Svizzera);
- Carla Juaçaba (Brasile);
- langarita-navarro arquitectos (Maria Langarita, Victor Navarro, Spagna);
- MAPA (Luciano Rocha de Andrades, Matías Carballal Zeballos, Andrés Gobba Hannay, Maurício Lopez Franco, Silvio Lagranha Machado, Brasile);
- Shingo Masuda+Katsuhisa Otsubo (Giappone);
- Daniel Moreno Flores (Ecuador);
- Erika Nakagawa (Giappone);
- OFFICE (Kersten Geers, David Van Severen, Belgio);
- Camilo Rebelo (Portogallo);
- RAW – Robust Architecture Workshop (Milinda Pathiraja, Ganga Ratnayake, Sri Lanka);
- Sabin Blanco Architects (Patricia Sabín Díaz, Enrique M. Blanco Lorenzo, Spagna);
- SIAA_ (Cesar Shundi Iwamizu, Brasile);
- Taylor and Hinds Architects (Poppy Taylor, Mat Hinds, Australia);
- Ted’A Arquitectes (Irene Perez Piferrer, Jaume Mayol Amengual, Spagna);
- Terra+Tuma (Danilo Terra, Fernanda Sakano, Pedro Tuma, Juliana Terra, Brasile);
- Francesca Torzo (Italia);
- Christian Wassmann (USA);
- Xu Tiantian (Cina).
Maggiori informazioni sul sito dello Swiss Architectural Award.