Sky-Frame, Frauen­feld

Der Hauptsitz von Sky-Frame steht in einem anonymen Industriegebiet in Frauenfeld. Das Gebäude sticht nicht nur durch seine hochwertige Gestaltung heraus – Peter Kunz Architektur hat ein Gebäude für alle Bereiche der Firma entworfen: hier werden unter einem Dach Fenster konstruiert, gebaut, vertrieben und beworben.

Date de publication
10-11-2016
Revision
10-11-2016

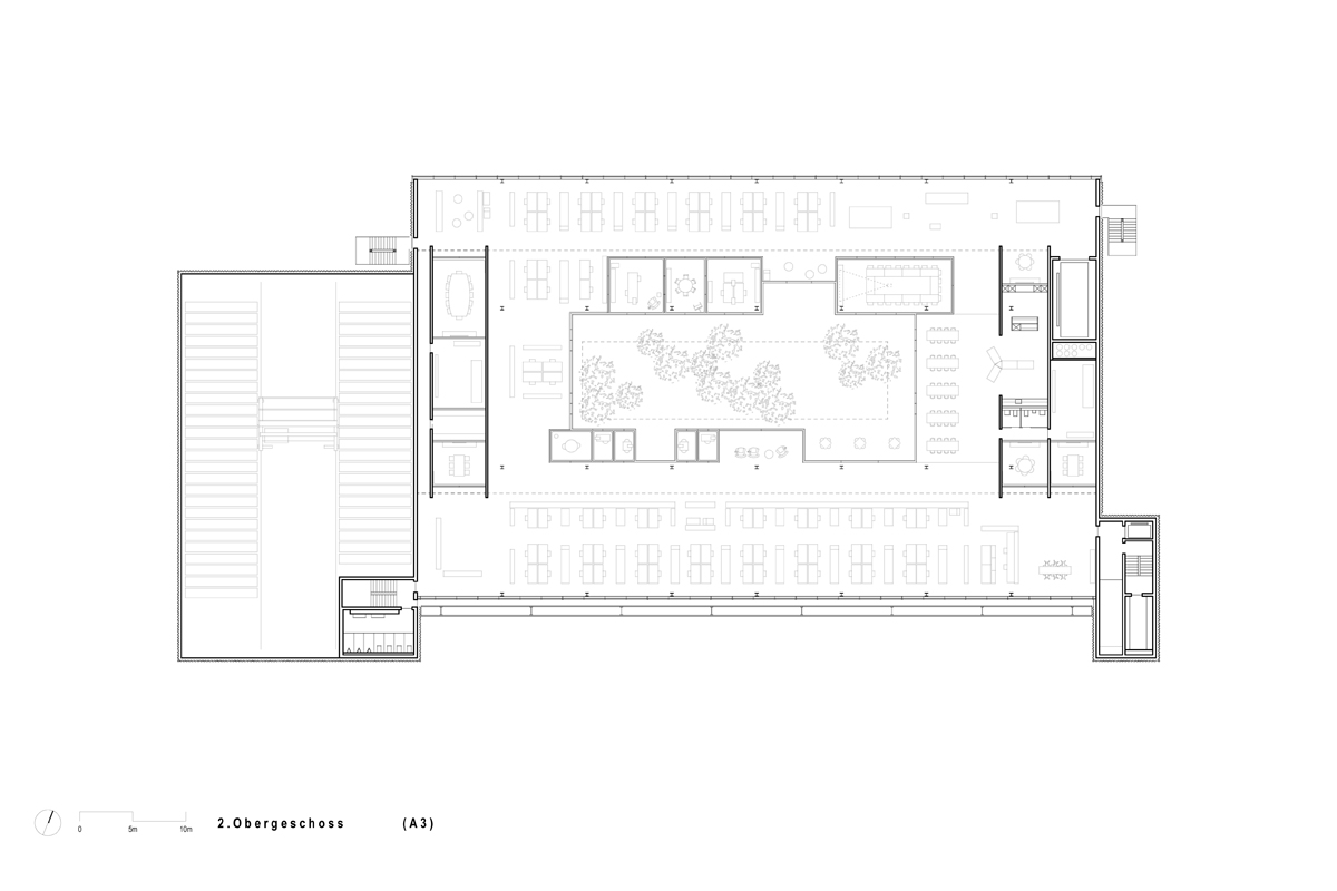
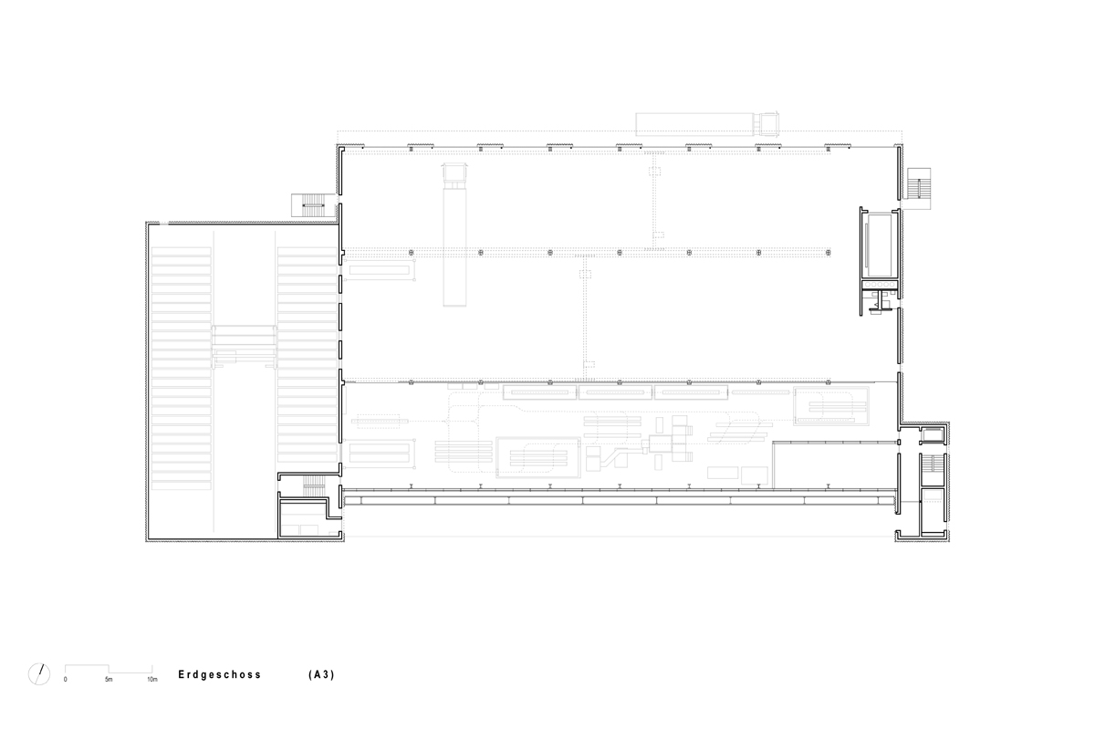
Das Gebäude der Sky-Frame in Frauenfeld ist klar und einfach konzipiert. Anlieferung, Fertigung und Ver­waltung liegen in einem kompakten Baukörper über­einander. Dieser wird von zwei blechumhüllten Erschliessungstürmen flankiert. Der grössere, ein Hochregallager, dient dem Warenfluss, der kleinere, mit Aufzug und Treppe, den Besuchern und dem Personal. Der Vorplatz, eine Landreserve, wird für eine grosszügige Vorfahrt genutzt, während die Anlieferung und das Aussenlager hinter dem Bau den Blicken entzogen bleiben. Nach Süden schützt eine Art bewachsenes Regal die Glasfassade vor der Sonne, während im Norden, zur Autobahn hin, der Einblick in das Gebäude offen bleibt, sodass sie einem Schaufenster gleicht. 

Die grüne Fassade der Ankunftsseite ist be­eindruckend, auch von innen. Besonders im Bürogeschoss spielt der Vordergrund des hängenden Gartens schön mit dem Hintergrund der Hügellandschaft und mit dem Gartenhof zusammen. Fast könnte man den Eindruck bekommen, in einem leichten, eingeschossigen Pavillon mitten in einem Park zu arbeiten und nicht hoch über einer Werkhalle zwischen Autobahn und Paketzentrum. 

Mit seinen speziellen Aus- und Durchblicken greift der Bau das Thema der Firma auf, die extrem fein konstruierte Fenster herstellt. Als exklusive Kostbarkeit kommen diese aber einzig beim Hof im Bürogeschoss zur Anwendung, wo innen und aussen auf vielfältige Weise miteinander verknüpft werden. Ganz beiläufig wird hier der Bau zum Showroom und zum Test­gebäude. Mit Sitzungszimmern, Besprechungszonen und Rückzugszellen zwischen innen und aussen kommen die Möglichkeiten der fast rahmenlosen Schiebeverglasungen eindrücklich zum Tragen.

Grundsätzlich sind die beiden Werkhallen – unten mit Pulverbeschichtung, Montage und Spedition, oben mit den Produktionsstrassen für die Rahmen­profile – auf die gleiche Art und mit derselben Sorgfalt konstruiert wie das Bürogeschoss, das alle Bereiche von Management, Verwaltung, Marketing und Entwicklung in einem Raum vereinigt. Auch hier prägt der Rohbau der weit gespannten Stahlkonstruktion den Raumeindruck. Aufgrund der geringeren Höhe rhythmisiert er den Raum sogar noch stärker als in den Hallen. 

Durch die Koppelung der kräftigen Träger mit der Beleuchtung, durch die ausgeprägte Horizontalität des Raums, die heruntergehängte Decke in der Mittelzone und den Teppich, vor allem aber durch den zentralen Gartenhof entsteht eine Atmosphäre von Eleganz und Leichtigkeit, die auf interessante Weise das Rohe des Industriebaus ergänzt. Das Licht und die Farben der Pflanzen in der Mitte werden durch die dunkle Tönung von Boden und Decke in den umgebenden Räumen zum Strahlen gebracht. Das erinnert an traditionelle japanische Architektur oder auch an den Serpentine Pavillon von Peter Zumthor. 

Die White- und Blue-Collar-Arbeitsplätze sind hier nicht gleich ausgebildet, sie sind aber explizit in ein und derselben Struktur und unter einem einzigen Dach untergebracht, in Räumen, die denselben Prinzipien gehorchen und mit der gleichen Sorgfalt gestaltet sind. Das entspricht der Firmenkultur, die sich in der Tradition der ehemaligen Schlosserei sieht und den Wert des Handwerks hochhält. Dass die Cafeteria im Dachgeschoss von allen gemeinsam benutzt wird, versteht sich fast von selbst. 

Man spürt deutlich, dass hier der Industriebau nicht bloss als ein Kostenfaktor der Produktion verstanden wird, sondern auch als ein Beitrag zum Marketing, vor allem aber als eine Investition in die Qualität der Arbeitsplätze und in die Identität der Firma. Gewiss richtet sich die Architektur auch an den Besucher. Er wird von der begrünten Fassade überrascht und von der Eingangshalle beeindruckt, die dramatisch die Vertikale inszeniert und so aus der Not, nach oben zum Empfang zu müssen, eine Tugend macht. Die kultivierte Architektur richtet sich aber vor allem an die Mitarbeitenden, denen sie in einem belanglosen Umfeld einen angenehmen und anregenden Ort schafft, mit dem sie sich identifizieren können.

Am Bau Beteiligte
 

Architektur
Peter Kunz Architektur

Baumanagement
Markwalder & Partner Bauleitungen GmbH

Innenarchitektur
Studio Hannes Wettstein

Landschaftsarchitektur
Ganz Landschaftsarchitekten

Tragwerkplanung
Borgogno Eggenberger + Partner AG

Bauphysik
Raumanzug GmbH

Elektroplanung
IBG B. Graf AG Engineering

HLK Planung
MAS Engineering

Brandschutz
Braun Brandsicherheit AG

Sur ce sujet