Une to­po­gra­phie lu­di­que

Dans l’école enfantine de Prangins, le travail de Pierre-Alain Dupraz va plus loin qu’une savante implantation de l’ouvrage dans le terrain naturel. Il refonde une nouvelle topographie ludique et pédagogique.

Publikationsdatum
13-04-2016
Revision
13-04-2016

Déjà familiarisé aux programmes scolaires en milieu urbain dense avec la crèche de Saint-Jean et le groupe scolaire de Peschier1 à Genève, l’architecte explore avec l’école enfantine de Prangins la typologie des espaces de petite enfance dans un quartier résidentiel à faible densité bâtie. Telle «une grande maison posée sur la pente douce»2, l’école se démarque de la représentation institutionnelle d’un établissement public au profit d’une spatialité domestique.

Architecte-topographe

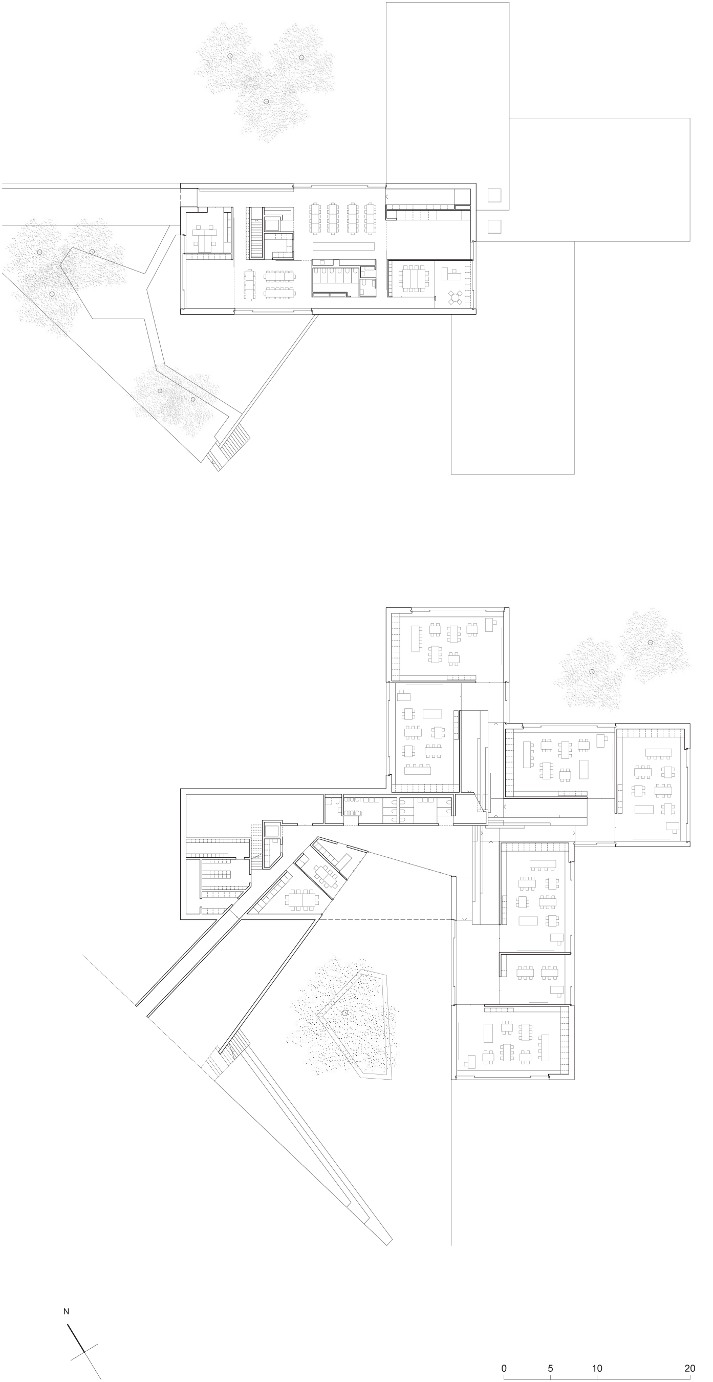
Sur une parcelle triangulaire, vu en plan, le bâtiment dessine une forme de croix dont le centre se situe sur le point d’intersection des bissectrices. En volume, la construction s’apparente plutôt à une hélice dont les quatre pales se soulèvent progressivement en même temps qu’elles pivotent autour du noyau central. L’impression initiale quant à l’effet monumental qu’aurait pu présager la figure cruciforme en plan se dissipe totalement lorsqu’on appréhende le bâtiment en trois dimensions. Un subtil travail sur la topographie transforme la «forme forte» bidimensionnelle en une architecture située dans son contexte.
Dans plusieurs projets de Pierre-Alain Dupraz, les plans de situation s’apparentent à des relevés topographiques. A Prangins, l’architecte poursuit ses «inventions topographiques» déjà initiées dans son projet d’une maison à Mont-sur-Rolle en 2012 ou encore celui de l’agrandissement d’une villa à Vandœuvres en 2011. En suivant la pente douce du terrain, les ailes de l’hélice se posent à des hauteurs différentes mais toujours affleurées au sol naturel. Les lignes des soubassements et acrotères s’installent, se plient et se réunissent avec précision jusqu’à se fondre avec les courbes de niveaux du terrain. Ce travail au plus proche du sol naturel poursuit – voire accroît – la topographie du lieu et génère une spatialité spécifique à l’intérieur du bâtiment. Afin de franchir les 96 centimètres qui séparent chaque volume de classes, les enfants peuvent rapidement monter les quelques marches de l’escalier central. D’autres préféreront emprunter les pentes douces des rampes aux directions centrifuges et centripètes. Pendant les temps de récréations, cet étonnant espace hélicoïdal se transforme en une véritable aire de jeux pour les enfants. Aux heures de classes, à l’intérieur des salles, des relations visuelles directes avec le contexte extérieur s’établissent grâce aux grandes baies vitrées, chacune s’ouvrant sur une des directions cardinales. L’étendue des baies et la dissimulation des cadres des menuiseries dans les embrasures des murs et du plafond placent les usagers dans une relation immédiate avec le dehors.

Architecte-bâtisseur

Au dire de l’architecte, son projet de villa à Collonges-sous-Salève a influencé celui de Prangins, notamment en ce qui concerne l’articulation des volumes dans la pente. Mais le dispositif constructif et son expression diffèrent sensiblement: alors que dans la villa, les modules sont préfabriqués et autoportants, dans l’ouvrage scolaire, le système porteur est constitué par des murs porteurs coulés sur site3. L’art de construire, tout en retenue, est au service d’une architecture vouée à son usage.
Pourtant, bien des qualités spatiales de l’école sont rendues possibles par les performances structurelles. Dans les salles de classes, les poutres précontraintes au-dessus des baies permettent de franchir des portées atteignant près de 15,40 mètres et de limiter ainsi les effets de la déformation de la maçonnerie sur les menuiseries vitrées. Grâce à la précontrainte, les linteaux hauts demeurent dans des épaisseurs équivalentes à celles des allèges basses des baies. Regardés depuis l’extérieur, les contours en béton dessinent des encadrements à la fois délicats et solides autour des baies. Une autre prouesse structurelle est à l’origine des qualités de l’espace du préau : au-dessus de l’entrée de l’école, la grande traversée du volume de l’UAPE est obtenue grâce à la réalisation d’un voile porteur posé sur le talus à l’ouest et sur le mur transversal du volume est. Le franchissement comprime l’espace du préau en le ramenant à une mesure plus modeste. Toute monumentalisation de la structure est ainsi proscrite pour demeurer à une échelle enfantine.
Bien souvent, le travail de l’architecte genevois est rapproché de celui de l’ingénieur civil. En effet, le maître d’œuvre de la passerelle de la Paix (lire Tracés n° 3/2013) et de la traversée de la rade à Genève est volontiers coutumier des ouvrages d’ingénierie. Mais chez lui, l’art de bâtir reste indissociable de celui de la composition des espaces, y compris dans ses réalisations les plus modestes. Son œuvre scolaire à Prangins en est encore une belle démonstration.
En décrivant leur école, les enfants emploient les expressions «vis d’Archimède», «Lego», «Rubik’s Cube» ou encore «palmier» et «pétales d’une fleur». Cette profusion des métaphores ludiques ou florales démontre l’affection des usagers pour leur espace quotidien. Dans les projets de Pierre-Alain Dupraz, la sensibilité à la topographie et la maîtrise de l’acte de bâtir sont des constantes. A Prangins, il les met au service d’une spatialité dédiée aux enfants: une maison pour apprendre et jouer. 


Notes

1. Projet réalisé en association avec Christian Dupraz entre 1999 et 2001.    

2. Extrait du rapport du jury, 2011.

3. Hormis les marches et les gradins de l’escalier réalisés en béton préfabriqué, les autres éléments sont en béton coulé sur place. 

Informations

Programme: construction d’une école enfantine et UAPE (Unités d’accueil pour écoliers)

Surface bâtie: 1318 m2

Concours: 2011, 1er prix

Réalisation: 2013 – 2015

Maître d’ouvrage: Commune de Prangins, Vaud

Architecte: PIERRE-ALAIN DUPRAZ ARCHITECTE ETS FAS, Genève

Ingénieur civil: INGENI SA, Lausanne

Architecte paysagiste: HÜSLER & ASSOCIÉS Sàrl, Lausanne

Magazine

Verwandte Beiträge