Le gris Man­teau de la rue Saint-Mar­tin

Avec le bâtiment de la rue Saint-Martin à Lausanne, le bureau Alain Wolff s’est confronté à des enjeux complexes, qui rappellent que l’architecture est un acte politique, au sens où elle fait la ville: récit de la réalisation d’un immeuble qui accueille employé·es de voirie, familles, bénévoles et sans-domicile.

Publikationsdatum
21-01-2022

Saint Martin «le Miséricordieux» est cet ancien soldat qui aurait donné la moitié de la doublure de son manteau à un mendiant pour qu’il puisse se réchauffer. Pourquoi la moitié? Donner la totalité du manteau aurait été absurde: Saint Martin aurait sauvé le miséreux mais serait mort de froid dans la neige. En offrant la moitié, il traite l’homme en égal; il lui rend sa dignité. Quand les architectes du bureau Alain Wolff réalisent le bâtiment de la rue Saint-Martin, c’est avec le même soin, le même respect de l’autre.

Saint-Martin à Lausanne

La rue Saint-Martin est née de la canalisation du Flon, l’une des deux rivières qui creusent la topographie lausannoise. Jadis quartier des tanneries malodorantes, égout à ciel ouvert et foyer de choléra (en 1832), le vallon encaissé n’a jamais eu bonne réputation. Non seulement on y voit peu le soleil, mais en plus le pont Bessières et sa sinistre renommée y projettent leur ombre. On passe par la bruyante rue Saint-Martin; en revanche on s’y arrête peu: de chaque côté, le front bâti est rompu par une multitude de coins aveugles et d’entrées de bâtiments cachées de la rue.

Longtemps, les numéros 16 et 18 de la rue ont abrité la Soupe Populaire. Une ancienne employée nous raconte les centaines de repas préparés chaque jour, les conditions difficiles, pour les bénévoles comme pour les hôtes: l’insalubrité des anciens bâtiments; les comportements parfois menaçants; la police au bout de la rue qui ne se déplace plus; les tentes cinglées par le vent et le froid lorsque le bâtiment sera démoli; le cauchemar de la pandémie – comment rester chez soi quand on n’a justement pas de chez soi?

En 2015, la Fondation lausannoise pour la construction de logements (FLCL) a mis au concours un nouveau bâtiment, à la place des numéros 16 et 18, pour accueillir différents services: un hangar pour la Propreté urbaine (PUR) et le Service des parcs et domaines (SPADOM), un parking de 15 places, les locaux de la Soupe Populaire, 35 places d’hébergement d’urgence – la Marmotte – et enfin 41 appartements familiaux et communautaires. Pour répondre à ce programme intriqué, le bureau Alain Wolff se distingue des autres concurrents avec le projet intitulé «le Manteau».

Un bâtiment qui fait espace public

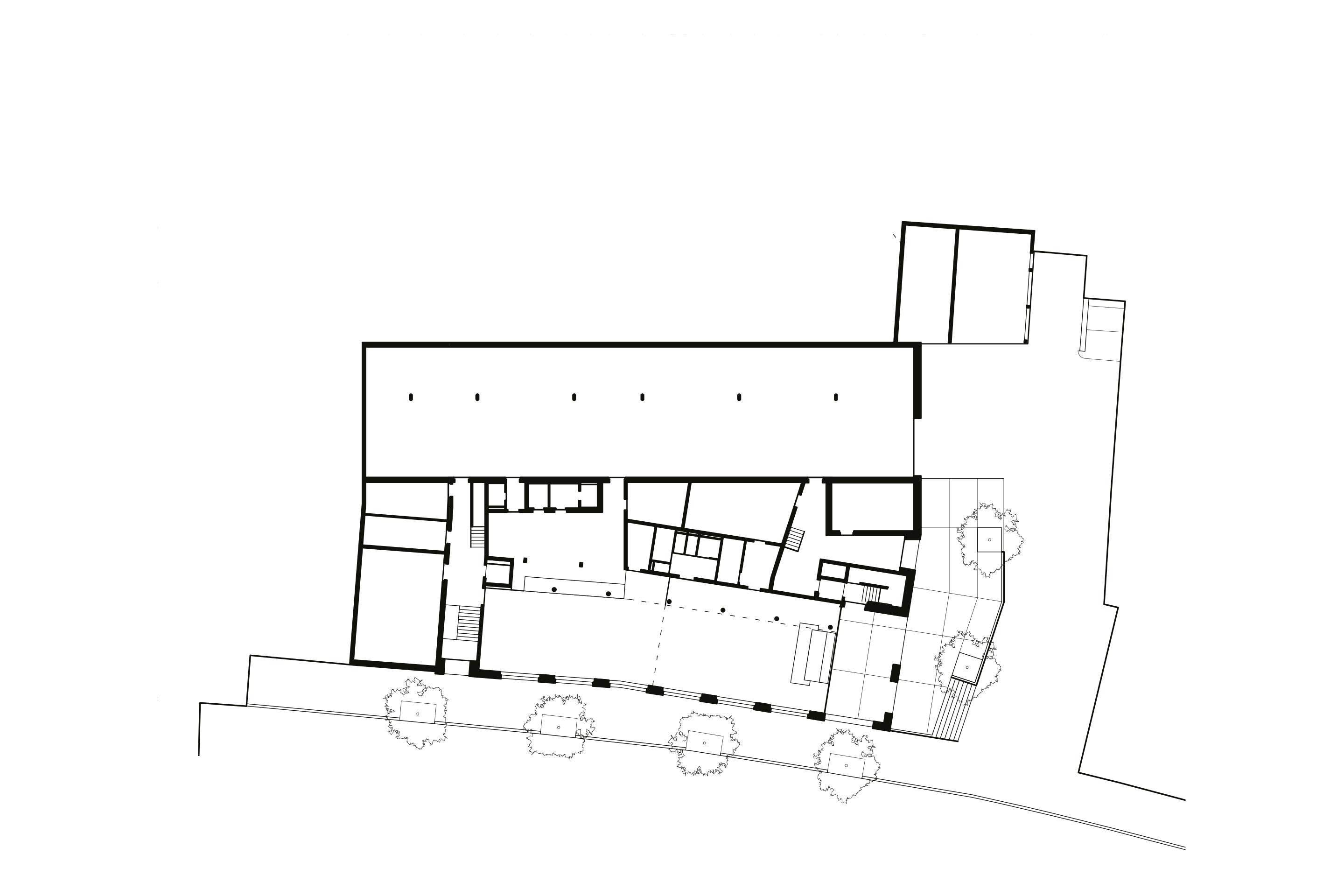
La morphologie rayonnante permet de retourner l’immeuble sur toutes ses faces, sans jamais offrir de dos à l’espace public et dirige ses façades – c’est-à-dire, étymologiquement, ses visages – vers trois directions de la ville. Le retrait au sud, par rapport à l’imposant immeuble des Retraites Populaires, dégage une placette en relation avec le parc escarpé de la Solitude, petit bijou vert de Lausanne qui relie la rue Saint-Martin à la rue César-Roux, un aspect relevé dans le rapport du jury1. Dans le creux du volume est abritée une courette autour de laquelle se replient les espaces de vie traversants. Au nord, on trouve l’entrée de la Marmotte.

Il y a dans le choix de la façade en éléments de béton préfabriqués une volonté de s’inscrire dans la continuité des immeubles voisins. C’est un volume qui mise sur un caractère urbain: sa tripartition corps-socle-couronnement régulière est affinée par un élégant bandeau qui ceinture le bâtiment, signalant les nez de dalle de chaque étage. Le socle d’un à deux niveaux se distingue des étages supérieurs par sa teinte claire et le ressaut en attique, qui offre une terrasse depuis laquelle on a vue sur la cathédrale et le pont Bessières, achève de découper ce volume. Comme un trench-coat gris, le Manteau confère à l’institution un certain anonymat et assume, par ses teintes un peu ternes, une sorte de modestie classique qui ne le démarque pas de son contexte.

Une imbrication programmatique complexe

Contrairement à ce que l’on pourrait penser, la répartition programmatique ne s’exprime pas en façade. Chaque programme est enchâssé dans un autre, tout en offrant à chaque fonction une entrée distincte. Au pied du bâtiment, le Manteau s’ouvre sur une vision surprenante et humaine: là se trouvent les locaux de la Soupe Populaire. La vaste salle est pensée comme un restaurant, en relation visuelle directe avec la rue. Les cuisines donnent directement sur l’espace simple mais chaleureux, articulé par des cloisons amovibles qui distinguent le café social – ouvert toute la journée – de la partie restauration. Le parking est à l’arrière, enterré. Les deux étages suivants abritent le hangar pour les services de la ville, des locaux administratifs et l’hébergement d’urgence, réduit au strict minimum: un couloir sombre qui s’étend sur toute la longueur du volume et le long duquel s’alignent les portes des chambres. Un plan rationnel, certes, mais qui s’avère également oppressant étant donné l’exiguïté de certains espaces, une impression que le choix des luminaires ne peut dissiper.

Le projet heureusement redevient généreux dans les étages supérieurs, qui accueillent en couronne les logements familiaux et communautaires. Traversants, ces derniers sont dotés de cinq chambres et d’un espace commun. Ils sont destinés à des personnes en situation de réinsertion professionnelle, qui ne vont pas y séjourner plus de quelques mois. Dans l’espace commun, la cuisine, dont on regrettera tout de même l’absence de fenêtre, peut être isolée du séjour par le biais d’une porte coulissante. Les appartements familiaux jouissent quant à eux d’une situation d’angle et sont composés, selon une logique toute lausannoise, d’un vaste hall d’entrée carrelé qui distribue les chambres, les salles de bain et le séjour-cuisine.

Une adresse digne

Caractériser quelqu’un par quelque chose qu’il ou elle n’a pas, c’est supposer que c’est là une exception. Comme dans sans-­papier, sans-le-sous, sans-emploi, sans-abri. Un·e sans-domicile n’a pas de logement, certes. Mais son statut se limite-t-il à cette distinction, cette chose qui devrait être un droit fondamental pour cette personne – un devoir fondamental de la société envers cette personne – et que pourtant elle ne détient pas?

Avec le bâtiment de la rue Saint-Martin, les architectes du bureau Alain Wolff font un pas vers une réponse à un problème sociétal. En proposant ce manteau précieux, ils offrent aux populations précarisées une adresse à la façade soignée, au caractère sobre et élégant, qui, pour reprendre les mots de Christophe Joud et Lorraine Beaudoin, «condense et célèbre tous les traits de la fabrique urbaine lausannoise»2 – depuis ses portes d’entrée aux fins liserés d’or jusqu’à sa discrète corniche. C’est donc un projet qui traite avec dignité les différentes populations qui habiteront cet immeuble: familles, employé·es de la ville, sans-domicile, bénévoles à la Soupe Populaire… Sans oublier les voisin·es du quartier, pour qui cet immeuble est un projet qui contribuera à offrir un récit porteur d’espoir à cette rue de Lausanne.

Bâtiment Saint-Martin, Lausanne (VD)

 

Maître d’ouvrag: Fondation lausannoise pour la construction de logements (FLCL)

 

Architecture: Alain Wolff architectes

 

Direction de travaux: Pragma Partenaires

 

Ingénieur civil: AB ingénieurs

 

Programme: Hangar pour la voirie, parking de 15 places, Soupe Populaire, 35 places d’hébergement d’urgence, 41 appartements familiaux et communautaires.

 

Concours: 2015, 1er prix, 1er rang

 

Réalisation: 2019-2021

 

Surface de plancher brute: 7980 m2

 

Coût HT CFC2: 18,2 millions CHF

Notes

 

1. «Saint-Martin 16-18», TRACÉS 13-14/2015

 

2. Christophe Joud et Lorraine Beaudoin, «Un réalisme sensuel», in: Alain Wolff architectes, Quart Verlag, de Aedibus, 2022

Verwandte Beiträge