Lopes Brenna: «Partecipare ai concorsi apre delle opportunità di pensiero»
Qual è la situazione dei concorsi in Svizzera? Danno il dovuto spazio agli studi emergenti? Come potrebbero essere migliorate le procedure e che contributo danno alla Baukultur? Nell'ambito di una grande inchiesta nazionale, espazium.ch lo ha chiesto a studi giovani che negli ultimi sei anni si sono distinti in concorsi. La testimonianza di Cristiana Lopes e Giacomo Brenna, titolari dello studio Lopes Brenna.
espazium – Come descrivereste la situazione dei concorsi d'architettura nella Svizzera italiana?
Cristiana Lopes e Giacomo Brenna – Il concorso di architettura in Ticino è un legame diretto con le necessità di una comunità: la nuova scuola, l’ospedale, il centro sportivo, la casa per anziani ecc. Questo deriva da un’oggettiva preparazione che, in genere, sta a monte della stesura dei bandi di concorso. Ne scaturisce un programma reale per necessità reali. Condizione che in altri contesti internazionali non è così scontata. È quindi per molti architetti un tema di attualità, quotidiano, un modo di appartenere alla società, oltre a, ovviamente, un'opportunità professionale. Questa condizione di partenza estremamente positiva rischia però, se caricata di un’eccessiva “paura del risultato”, di compromettere la qualità sia della progettazione che della valutazione dei progetti in fase di giuria.
Valerio Olgiati, in un’intervista alla SIA (settembre 2010), parlando del tema dei diritti d’autore, descrive come l’aspetto creativo della progettazione venga oggi sottovalutato, con la visione ormai comune di un architetto fornitore di servizi; sostiene, invece, che un’idea possa avere un diretto collegamento con un beneficio, anche di carattere economico, per l’investitore. Nell’intervista, l’architetto fa riferimento inoltre al plusvalore culturale e sociale che può essere generato da un’idea. Concetto ancor meno misurabile, tangibile e comunicabile, che tende perciò a essere ritenuto poco importante. Non si tratta quindi di dimenticare gli obiettivi funzionali ed economici di una committenza, ma al contrario di credere che tali obiettivi possano trovare risposta nelle azioni talvolta sorprendenti, talvolta controcorrente, talvolta di non facile ricezione, che l’architetto, uomo di pensiero, è tenuto a compiere.
«Il concorso di architettura in Ticino si lega in modo diretto con le necessità di una comunità: la nuova scuola, l’ospedale, il centro sportivo, la casa per anziani ecc. Ne scaturisce un programma reale per necessità reali»
Pensate che i concorsi diano spazio sufficiente ai giovani architetti?
Dal momento in cui un bando è “aperto”, ovvero non pone particolari vincoli alla partecipazione (quali esperienza pregressa o fatturato annuo), i concorsi della Svizzera italiana in linea di principio sono abbordabili dai giovani architetti. Questa condizione, a nostro modo di vedere, è indispensabile per permettere che il confronto tra i partecipanti, instaurato in fase di concorso, si svolga esclusivamente sul campo della progettazione.
Non amiamo molto le etichette under…, over…, gender… ecc., né quando sono discriminatorie né quando si rifanno a un principio di inclusione; al contrario, crediamo che nella dialettica di concorso sia importante, ai fini dell’obiettivo, la discussione trasversale, ognuno con le proprie “armi” e le proprie difficoltà.
Pensiamo invece che sia necessario buttare l’occhio oltre la chiusura del concorso e capire veramente quali siano i modi più opportuni per dare appoggio e tutela ai giovani studi in seguito a un’eventuale vittoria.
Dall'archivio: Lopes Brenna architetti, stanze
Come scegliete a quali concorsi partecipare? Avete già preso parte a concorsi fuori cantone o internazionali?
In primo luogo facciamo una veloce analisi del bando per capire le condizioni, la fattibilità, le tempistiche ecc.; confrontiamo diversi testi cercando di capire dove sia più opportuno concentrare gli sforzi.
Detto ciò, non è sempre una scelta dettata da un criterio assolutamente analitico; a volte alcuni concorsi possono semplicemente entusiasmare più di altri: è per esempio il caso del concorso per l’ampliamento del MALI – Museo de Arte de Lima – in Perù, al quale abbiamo partecipato ottenendo il secondo premio. Al di là del rammarico per il risultato, è rimasta un’esperienza unica nel confronto con una città e una società così lontane, e nel riconfermare la nostra convinzione di come il pensiero dell’architetto abbia di fatto una possibilità di sopravvivenza globale.
Abbiamo inoltre partecipato a concorsi in Svizzera francese e tedesca, in Italia e Australia.
«Valerio Olgiati ha osservato che l’aspetto creativo della progettazione viene oggi sottovalutato: la visione ormai comune è che l'architetto sia un fornitore di servizi. Olgiati sostiene invece che le idee possano avere un diretto collegamento con un beneficio: generano un plusvalore culturale e sociale»
Ritenete che il concorso stimoli la sperimentazione?
La possibilità di partecipare ai concorsi apre agli architetti delle opportunità di pensiero che, per la maggior parte di essi, sarebbero irraggiungibili se dovessero arrivare esclusivamente dalla committenza privata. Il concorso in quanto mandato pubblico propone più frequentemente temi di carattere urbanistico e territoriale. In questo senso, in questa possibilità, stimola la sperimentazione.
Ma se, come detto in precedenza, a prevalere è la “paura del risultato”, la paura di qualcosa di non completamente conosciuto, allora no! Qui, il pensiero dell’architetto si ferma e si trasforma, purtroppo, nella messa in opera più o meno estetica di un programma dato.
«Non amiamo molto le etichette under…, over…, gender… ecc., né quando sono discriminatorie né quando si rifanno a un principio di inclusione; al contrario, crediamo che nella dialettica di concorso sia importante, ai fini dell’obiettivo, la discussione trasversale»
A vostro parere le procedure di concorso vanno trasformate o modificate? Se sì, come?
In linea di principio i concorsi nella Svizzera italiana sono ben strutturati. Le richieste tendenzialmente sono formulate in maniera adeguata e il materiale richiesto è chiaro.
Possiamo tuttavia affermare di preferire i concorsi in due fasi, in quanto riteniamo che per molti aspetti il processo sia più virtuoso e corretto. In una prima fase i progettisti e la giuria possono concentrarsi su quelle che sono le scelte strategiche chiave del progetto, con l’ausilio di piani e modelli a una scala più urbana. Nella seconda fase, arrivati a un numero limitato di finalisti, l’apporto di un gruppo di lavoro interdisciplinare (tutelato dall’iscrizione in busta autore) permette un approfondimento del progetto più adeguato e realistico.
Inoltre, riteniamo che la comunicazione – che avviene anonimamente tra la giuria e i progettisti sotto forma di indicazioni scritte – è di fatto una sorta di dialogo che permette almeno in parte di “avvicinare” la committenza ai team di progetto, diventando un importante momento di chiarimento su alcune questioni fondamentali del progetto.
Lo studio Lopes Brenna, fondato nel 2011 da Cristiana Lopes (1978) e Giacomo Brenna (1979), ha sede a Chiasso.
Attualmente ha partecipato a 38 concorsi, ottenendo premi in 19:
- Concorso d'architettura – Nuovo Ponte dell’accademia, Venezia, Italia, 2006, 3° premio
- Concorso d'architettura – Nuova scuola dell'infanzia e sala multiuso a Molino Nuovo, Lugano, Svizzera, 2011, 4° premio
- Concorso d'architettura – Cantina Bortolin Angelo, Guia di Valdobbiadene, Treviso, Italia, 2012, finalisti
- Concorso d'architettura – Nuovo oratorio parrocchiale, Giubiasco, Svizzera, 2012, 5° premio
- Concorso d'architettura – Centro multifunzionale Ciosso Soldati, Bioggio, Svizzera, 2013, 4° premio
- Concorso d'architettura – Complesso parrocchiale Madonna del Carmine, Castellamare di Stabia, Italia, 2014, menzione
- Concorso d'architettura a procedura libera – Nuova sede della scuola dell’infanzia, Tenero, Svizzera, 2014, 2° premio
- Concorso d'architettura – Piazza della Scala, Milano, Italia, 2015, menzione
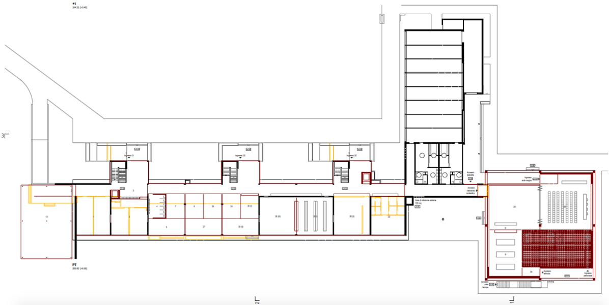
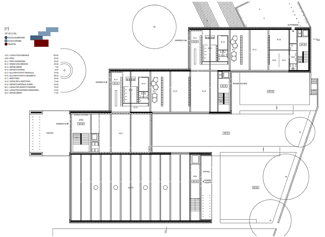
- Concorso d'architettura a procedura libera – Nuova sede della scuola elementare e ampliamento della palestra, Tesserete, Svizzera, 2016, con Stefano Moor, 3° premio
- Concorso d'architettura – The Lima Art Museum: New Contemporary Art Wing, Lima, Peru, 2016, 2° premio
- Concorso d'architettura a procedura libera – Centro sportivo nazionale di nuoto, Tenero, Svizzera, 2017, con Filippo Bolognese, 4° premio
- Concorso d'architettura a procedura libera – Edificio Agroscope, Posieux, Svizzera, 2017, 2° premio
- Concorso d'architettura a procedura selettiva – Ampliamento e risanamento energetico dell’attuale sede scolastica, Tenero, Svizzera, 2018, con Filippo Bolognese, 3° premio
- Concorso d'architettura a procedura libera – Nuova scuola dell’infanzia, Bioggio, Svizzera, 2018, 5° premio
- Concorso d'architettura a procedura libera a due fasi – Nuovo centro scolastico zona La Santa a Viganello, Lugano, Svizzera, 2018, con Filippo Bolognese, 2° premio
- Concorso d'architettura a procedura libera – Centro federale d’asilo SEM, Balerna-Novazzano, Svizzera, 2018, con Filippo Bolognese, 1° premio
- Concorso d'architettura a procedura libera a due fasi – Alloggi per anziani autosufficienti, Novazzano, Svizzera, 2018, con Filippo Bolognese, 1° premio
- Concorso d'architettura – Filarmonica di Valsolda, Loggio, Italia, 2019, 2° premio
- Concorso d'architettura a procedura libera – Nuova scuola elementare e palestra, Magliaso, Svizzera, 2020, 10° premio
Questa intervista appartiene a una serie raccolta nel dossier digitale «Concorsi». Il dossier viene sviluppato contemporaneamente anche in francese e tedesco.