Plaisir des bains, une tradition suisse
Panorama de quelques infrastructures de bains sur les lacs et les cours d’eaux. Rénovées, reconverties, reconstruites, elles entretiennent et renouvellent une culture du bain en eaux libres toujours vive en Suisse.
Depuis les maisons de bains en bois du 19e siècle jusqu’aux constructions en béton du 20e et aux reconversions et rénovations contemporaines, les bains suisses ont toujours pris place dans le paysage des villes et leur succès populaire ne s’est jamais démenti. Cette culture des bains, qui s’est aussi transformée et enrichie de nouvelles pratiques au fil du temps, est plus que jamais vivante et inspire aujourd’hui de nombreux militants de la baignade en ville en Europe, là où elle est parfois encore interdite, tant pour des raisons de sécurité que d’hygiène. En Suisse, cette dernière question ne se pose pas: une étude de la Commission européenne et de l’Agence européenne pour l’environnement publiée en 2016 montre que la qualité de l’eau est généralement «excellente» dans les lacs et les rivières de Suisse, «en particulier dans les lacs de Zurich, Hallwil (AG) et Aegeri (ZG)».
Si les infrastructures de bains sur les lacs et les cours d’eau n’ont longtemps été ouvertes que pendant la saison d’été, pour la baignade et les bains de soleil, elles voient de plus en plus leur fonctionnement s’étendre à l’année grâce au développement d’autres activités: sauna, hammam, massages, cafés, événements festifs... La baignade en eaux vives, familiale et populaire en été, se transforme en hiver en une pratique plus sophistiquée, hybride entre des traditions nordiques (sauna) et orientales (hammam, bains turcs...), et mâtinée de naturisme. Un certain «savoir» des bains, une culture des usages et des gestes, le silence plus ou moins imposé, attirent un public différent, dans lequel on compte une bonne proportion d’urbains actifs en quête d’espaces de sociabilité et de détente après le travail.
L’introduction dans les bains de ces nouvelles pratiques, qui appelle des reconfigurations de l’existant et/ou de nouveaux espaces, comme la nécessité de rénover ces installations qui se sont dégradées au fil du temps, ouvrent des champs de réflexion passionnants pour les architectes. Les structures de bains, qu’elles soient très anciennes ou plus récentes, en bois ou en béton, ont en commun leur architecture rustique, fonctionnelle et souvent peu démonstrative qui va de pair avec la simplicité de la baignade en eaux vives. Dans les exemples de rénovations, reconversions ou reconstructions présentés ici, les architectes et les ingénieurs se sont attachés à retrouver l’esprit originel de ces bains – sobriété esthétique, économie de moyens, flexibilité des installations –, souvent mis à mal par les rénovations successives. Une attitude attentive au caractère patrimonial de ces structures et soucieuse de mettre en valeur, au-delà de l’esthétique ou du confort, tout ce qui fait le charme des bains: la magie de la baignade en pleine ville, au cœur et en dehors du rythme effréné de la vie urbaine.
Pour aller plus loin dans l’exploration de la baignade en eaux libres à travers le temps : Exposition «Plouf, une histoire de la baignade dans le Léman », Musée du Léman à Nyon, à voir jusqu’en septembre 2018,
Catalogue co-édité avec Glénat Suisse, 2017, 128 p. / CHF 23.–
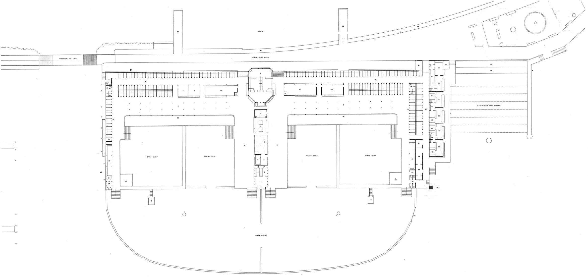
Les Bains des Pâquis à Genève, rénovation 1989-1996, extension sur la jetée 2002-2005
Les Bains tels qu’on les connaît depuis le milieu des années 1990 sont le fruit d’une aventure de longue haleine qui a débuté dans les années 1960. L’histoire commence en 1872, lorsque sont construits les premiers bains privés : un carré de 22 mètres de côté, fermé par des planches en bois, partiellement ouvert sur la ville. Devenus plus tard publics, les bains sont reconstruits en 1890, puis de nouveau en 1932, cette fois en béton armé. 448 pieux en béton préfabriqués, longs de 9 à 13 mètres, sont plantés au fond du lac. Deux bassins de taille égale accueillent d’un côté les hommes, de l’autre les femmes. Le succès est tel que les bains sont agrandis dès 1934.
Dans les années 1960, la Ville veut construire une piscine chauffée à la place de la structure en béton d’origine, rongée par la carbonatation. En réaction, les habitués et amoureux des Bains, qui se mobilisent contre la démolition et militent pour la restauration, créent l’Association d’usagers des Bains des Pâquis (AUBP). A l’issue d’un référendum municipal en 1987, puis d’une votation qui leur donnent raison, la Ville leur confie la restauration et la gestion des bains. Le Conseil administratif de la Ville s’est alors mis d’accord avec l’AUBP pour mandater le Collectif d’architectes (Marcellin Barthassat, Claude Butty, Gabriele Curonici, Jacques Menoud) et l’ingénieur Jean-Pierre Cêtre sur le projet de sauvegarde. En contrepartie, l’exécutif de la Ville à proposé à l’AUBP de devenir gestionnaire des lieux.
Des travaux techniques de rénovation lourde de la structure sont effectués en saison hivernale pour tirer profit des basses eaux : traitement des pilotis et des sommiers, changement de toutes les canalisations, dragage des bassins, nouvelle dalle de liaison entre la jetée et les bâtiments... Les travaux sont aussi liés aux nouveaux usages des bains (ouverture toute l’année, sauna, hammam, bains turcs, buvette, mixité...).
Sensibles à l’«architecture raisonnée» des Pâquis, «encore intelligible malgré les nombreuses transformations subies depuis 1932», les architectes et l’ingénieur ont souhaité «retrouver l’esprit de clarté et de rationalité originel, considérer le souci d’économie des auteurs du projet, la simplicité et la relative pauvreté de l’établissement comme un exemple à suivre du bon usage des ressources humaines et matérielles».Maîtres d’ouvrage: AUBP (Association d’usagers des Bains des Pâquis) et Ville de Genève
Maîtres d’œuvre: Collectif d’architectes (Marcellin Barthassat, Claude Butty, Gabriele Curonici, Jacques Menoud), avec Jean-Pierre Cêtre ingénieur et, pour l’extension, Carmen Perrin, artiste et Mantegani & Wysseier, ingénieurs
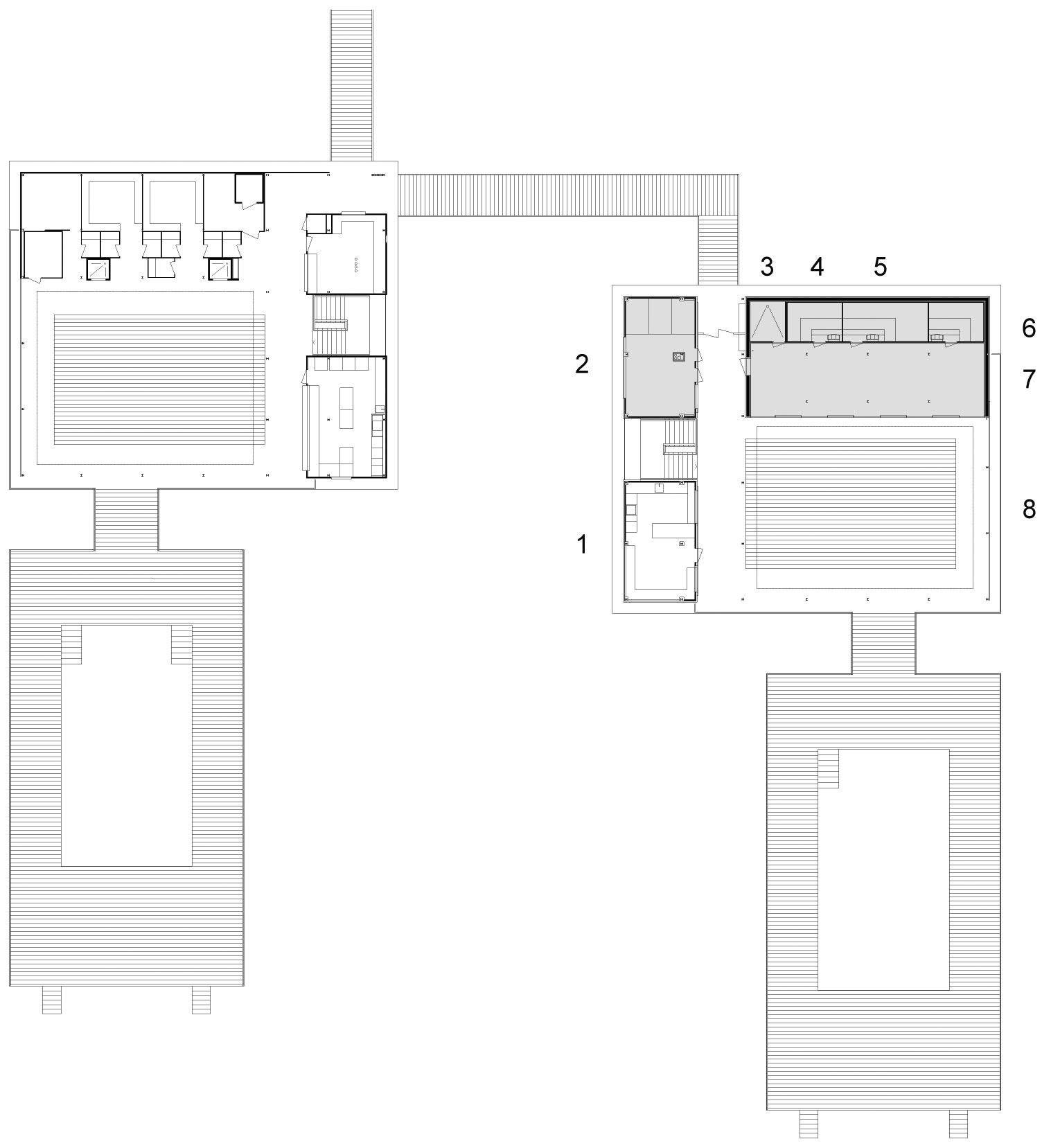
Seebad Enge à Zurich, reconversion en sauna 2004
Situé sur le lac de Zurich, à hauteur de l’arboretum, le Seebad Enge constitue un autre exemple d’adaptation des structures de bains à de nouveaux usages. Ici, on accède par un ponton à deux bâtiments construits en 1960 par Robert Landolt, réinterprétation «moderne» des maisons de bains en bois du 19e siècle. A gauche sur le plan, les bains des hommes, à droite, les bains des femmes, chaque bâtiment donnant accès à un bassin entouré d’un large deck en bois. En 2004, le bâtiment de droite a été reconverti en sauna pour la saison d’hiver, permettant ainsi aux bains de fonctionner toute l’année.
Maître d’ouvrage: Tonttu GmbH Zürich
Maîtres d’œuvre: Marius Hug architectes
Oberer Letten Zurich, rénovation 2012
Sur la Limmat, les bains de l’Oberer Letten, construits en 1953 par les architectes Elsa et Ernst Burkhardt-Blum et classés au patrimoine, ont fait l’objet en 2012 d’une rénovation respectueuse de l’esprit du lieu. Remis aux normes et adaptés à de nouveaux usages, ils ont conservé leur rationalité initiale, notamment grâce à la mise en valeur de la sobriété des matériaux d’origine: acier, pierre calcaire, bois et béton. La réorganisation des programmes au sein des différents bâtiments a permis d’exploiter de nouvelles configurations spatiales qui ajoutent encore au charme de ces bains très populaires à Zurich. L’ancien bâtiment des vestiaires hommes a été aménagé en vestiaire mixte, libérant ainsi la partie réservée aux femmes, transformée en café ouvert sur la Limmat. La terrasse réservée traditionnellement aux femmes pendant la journée est désormais ouverte à tous le soir, après la fermeture des bains, comme une extension du café.
Maître d’ouvrage: Ville de Zurich
Maîtres d’œuvre: Gut&Schoep architectes
Seebad à Lucerne, reconstruction 2009-2010
Construits en 1885, sur les plans de l’architecte Heinrich Victor von Segesser, les bains en bois sur pilotis de Lucerne étaient typiques des maisons de bains publics du 19e siècle, offrant à la vue des passants leurs façades en bois opaques pour préserver l’intimité des baigneurs et révélant à l’intérieur un bassin entouré de cabines individuelles. Rénovés dans les années 1960, puis à nouveau en 1984-1985, ils ont finalement été démantelés dans les années 2000 pour être reconstruits à l’identique, à partir de certains éléments du bâtiment d’origine recyclés et de nouveaux éléments en bois préfabriqués.
Maître d’ouvrage: Seebad AG Luzern
Maîtres d’œuvre: Bosshard + Luchsinger architectes



