His­to­ri­sie­rend

Eingeladener Projektwettbewerb «Ersatzneubau Kolonie 3»

Die Zürcher Baugenossenschaft Wiedikon hat für einen Ersatzneubau ­ihrer Kolonie 3 einen geladenen Projektwettbewerb veranstaltet. Das Siegerprojekt orientiert sich formal an den anschliessenden Altbauten.

Publikationsdatum
04-04-2019

Die Baugenossenschaft Wiedi­kon (BGW) ist an drei Standorten in Zürich präsent. Die Ko­lonien 1 und 3 bilden mit weiteren, nicht der BGW gehörenden Ge­bäuden einen Blockrand zwischen Saum-, Goldbrunnen- und Bertastrasse. In den 1970er-Jahren entstanden, setzt sich die Kolonie 3 architektonisch deutlich von den weiteren Bestandsbauten aus den 1920er- und 1930er-Jahren ab. Das Gebäude mit kleinen 1- bis 2-Zimmer-Wohnungen wurde als Alterswohnungsbau erstellt.

Architektonische und ökologische Aufwertung

Aufgrund bautechnischer und energetischer Mängel möchte die BGW das Haus gegen einen Ersatzneubau austauschen und die Gebäude der Kolonie 1 sanieren. Der Neubau soll das Wohnungsangebot mit alters­gerechten Kleinwohnungen und ­zeitgemässen Familienwohnungen ergänzen. Aussenräumlich und architektonisch soll das Ensemble aufgewertet und in den Bestand integriert werden; zugleich soll die energetische Situation verbessert werden. Auch die Prüfung einer ­Sanierung und Aufstockung der ­Kolonie 1 ist Teil des Wettbewer­bs­programms. Das Projekt soll sozial verträglich, also möglichst kostengünstig realisierbar sein. Dafür hat die BWG einen eingeladenen Projektwettbewerb ausgeschrieben, zu dem sie fünf Architekturbüros heranzog. Der Ablauf und die Anforderungen wurden wegen des kleinen Bauvolumens auf das Nötigste reduziert, um Kosten einzusparen.

Begegnungstreppenhaus

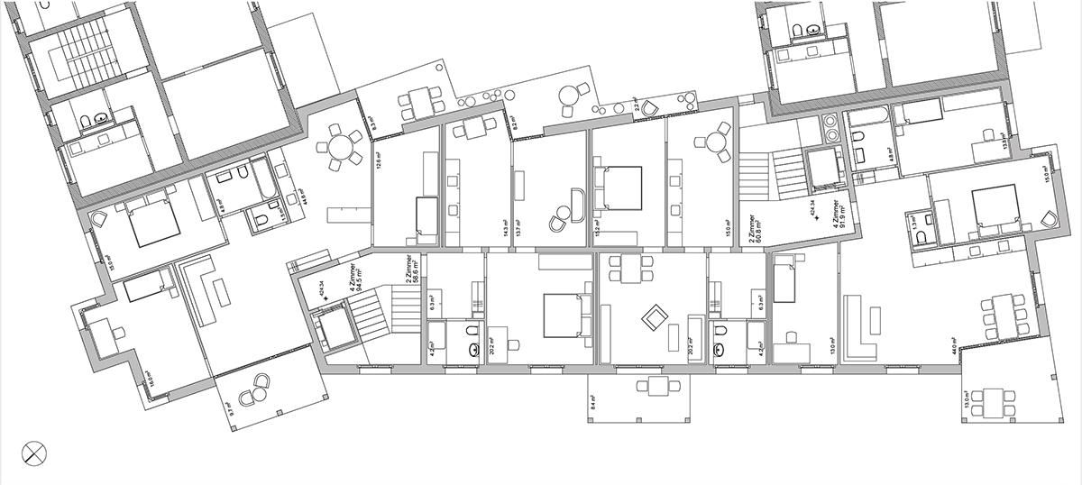
Den 1. Rang belegen Zimmermann Sutter Architekten mit dem Projekt «Gartenrotschwanz». Mit dem Neubau mit ortstypischem Mansardwalmdach und den vorgeschlagenen Aufstockungen der angrenzenden Genossenschaftsbauten werden die Gebäude der BWG zu einem einheitlichen Blockrand zusammengeführt. Die verputzte Lochfassade, auskragende Balkone sowie die Übernahme der bestehenden Geschossigkeit ­und der neuen Dachtraufe der Nach­barbauten tragen zusätzlich zur Integra­tion in den Blockrand bei. Die Jury hebt besonders das grosszügige gemeinschaftliche Treppenhaus, über das die vier Wohnungen pro Geschoss erschlossen sind, als zentrale Element des Entwurfs hervor.

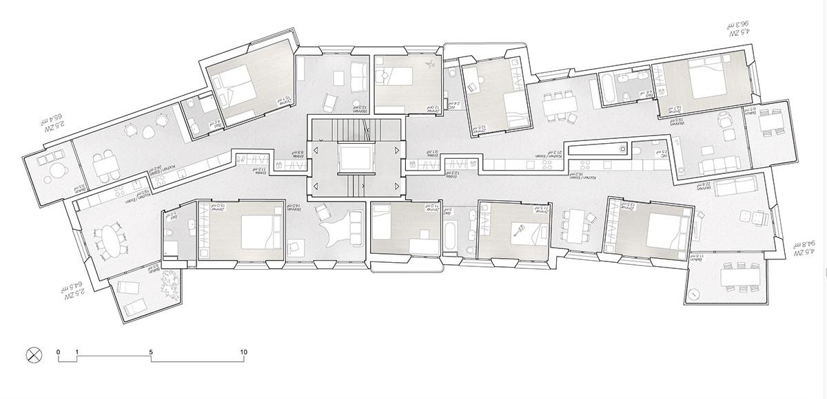
Vom Siegerprojekt setzen sich be­sonders der dritt- und der viertplat­zierte Entwurf ab. Sowohl «Vier gewinnt» von huggenbergerfries Architekten als auch «El Zaguán» von ARGE Wasescha Schläpfer platzieren einen markanten Flachdachbau, der sich gezielt vom Altbestand abgrenzt. Die Jury bewertet diese Herangehensweise als «ortsfremd» und «über­anstrengt», war ein Beurteilungskriterium doch die Eingliederung in die Topografie und der Anschluss an die Nachbargebäude. Diese Attribute und eine insgesamte Verbesserung der Situation konnte «Gartenrotschwanz» leisten.

Weitere Pläne und Bilder finden Sie in der Rubrik Wettbewerbe.

Auszeichnungen

1. Rang «Gartenrotschwanz»: Zimmermann Sutter Architekten, Zürich
2. Rang «Alfred»: Edelaar Mosayebi Inderbitzin Architekten, Zürich
3. Rang «Vier Gewinnt»: huggenbergerfries Architekten, Zürich
4. Rang «El Zaguán»: ARGE Wasescha Schläpfer, Zürich
5. Rang «Silva»: Architekturbüro Miroslav Šik, Zürich

Fachjury

  • Tina Arndt, Architektin, (Vorsitz)
  • Barbara Strub, Architektin
  • Sabina Hubacher, Architektin (Ersatz)

Sachjury

  • Daniel Gut, Vorstandsmitglied der Genossenschaft
  • Monika Rüsi, Mitglied der Genossenschaft (Ersatz)

Experten (ohne Stimmrecht)

  • Bernhard Rüst, Architekt, Bauökonom, Vorprüfung Ökonomie

Projektentwickler, Organisation Wettbewerb

  • Andreas Wirz, Archipel
  • Anja Peter, Archipel (Vorprüfung, Re­­daktion und Gestaltung Jurybericht)

Verwandte Beiträge