Zwei­stö­cki­ger Tun­nel ge­gen Ver­kehrs­pro­ble­me

In Maastricht (NL) führt die Autobahn derzeit mitten durch die Stadt. Ab 2016 soll der ­motorisierte Verkehr unterirdisch der heutigen Linienführung folgen.

Publikationsdatum
12-02-2014
Revision
18-10-2015

Auf der Autobahn A2 durchqueren täglich bis zu 45.000 Fahrzeuge die niederländische Stadt Maastricht. Diese Traverse beeinträchtigt die Sicherheit von Fussgängern und Velofahrern und führt wegen der hohen Lärm- und Luftbelastung zu Umweltproblemen. Ein Tunnel soll Abhilfe schaffen. Die Auftraggeber (Gemeinden Maastricht und Meerssen, Provinz Limburg und Rijkswaterstaat) entschieden sich für die Vertragsform «Design & Construct». 

Den Bietergemeinschaften lag kein Referenzentwurf vor. Von 2006 bis 2009 fertigten sie aufgrund des vorgegebenen Budgets von 631 Millionen Euro einen Entwurf an. Im Juni 2009 erhielt die Baugenossenschaft Avenue2 den Zuschlag. Ihr Projekt «Der grüne Läufer» kombiniert die Elemente städtischer Erneuerung, Infrastruktur und Tunnelbau. 

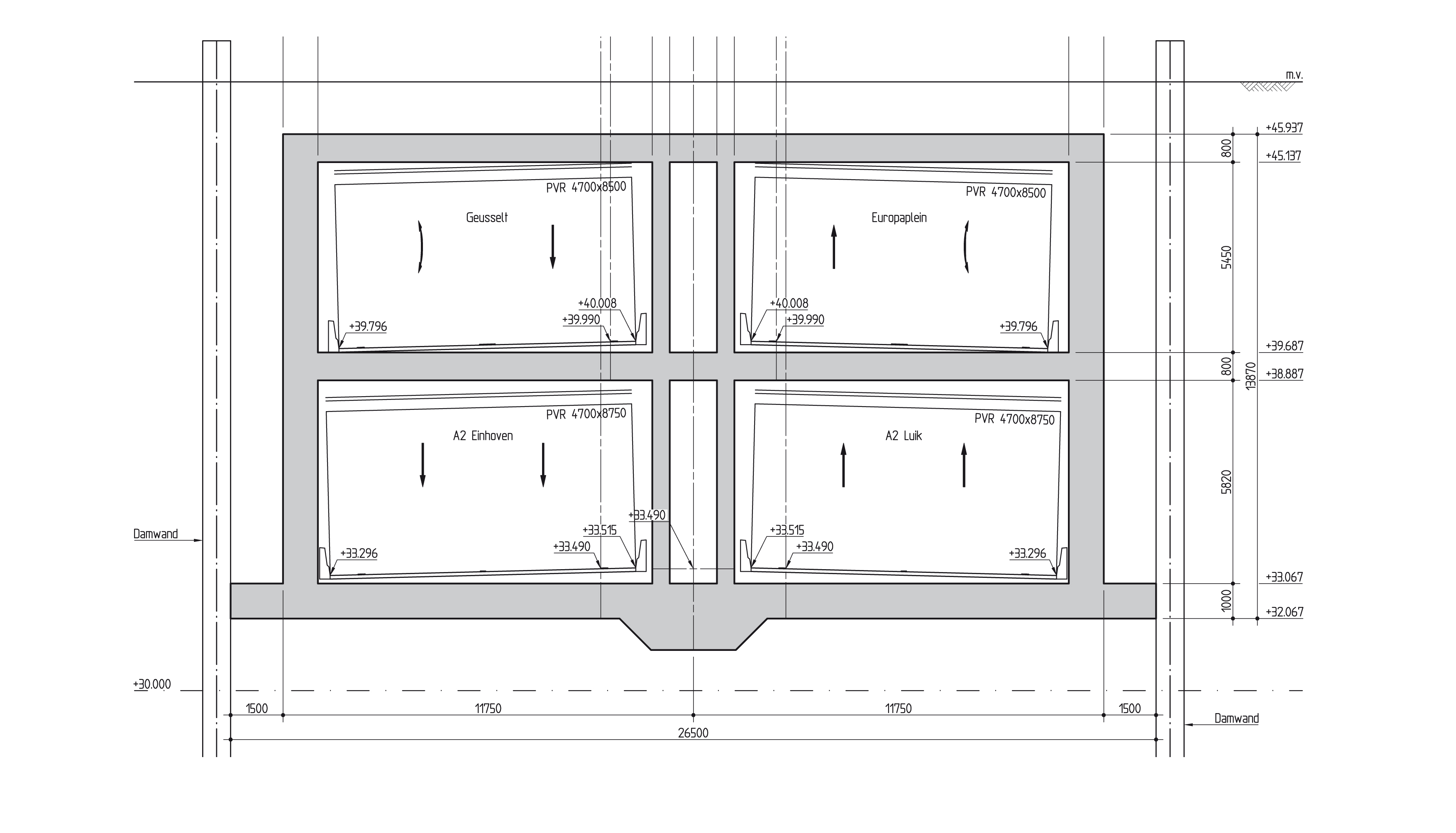
Ein 2.3 km langer zweistöckiger Tunnel ist ein Teil davon: Ende 2016 sollen die vier Röhren fertig sein. Oben fährt der Lokalverkehr zweispurig im rund 10 m breiten Tunnel  und unten ebenfalls zweispurig in beiden Richtungen der Fernverkehr.  Auf beiden Ebenen sind jeweils ein Fluchttunnel und ein Kabelkanal vorgesehen, sodass die Verkehrsströme auch im Notfall unabhängig von einander sind. Jede Röhre wird mit einer eigenen Leitung entwässert. Eine Standspur ist wie in vielen Tunneln in den Niederlanden nicht vorgesehen. 

Die Betonkonstruktion wird in offener Bauweise in durchschnittlich 24 m langen Abschnitten gebaut. Die Trasse des Tunnels folgt dem bestehenden Verlauf der Autobahn durch Maastricht. Das bedingt, dass es im Tunnel drei Kurven mit einem Radius von nur 582 m gibt. Um die erforderliche Kurvensicht zu gewährleisten, muss der Tunnel in den Kurvenbereichen des Fernverkehrs bis zu 3.5 m breiter werden. 

Die Grundwasserströmung trifft im rechten Winkel auf den Tunnel. Da er eine stark durchlässige Kiesschicht durchschneidet, kann es östlich des Tunnels zu einem Grundwasseranstieg und westlich zu einer Grundwasserabsenkung kommen. Entlang der Trasse werden 19 Heber und Filterbrunnen eingebaut, mit denen das Wasser unter Ausnutzung des Potenzialunterschieds und der Schwerkraft über den Tunnel geführt wird, um solche Effekte zu minimieren. 

Die Portalbereiche werden mit Gabionen ausgeführt, die mit lokal vorhandenen Feuersteinen befüllt sind. Oberhalb des Tunnels ist ein Stadtboulevard geplant. Die vierstöckige Gebäude neben der  Autobahn stammen aus den 1960er-Jahren. Heute ist diese Anordnung nicht mehr akzeptabel. Sobald die Bauarbeiten für den Tunnel abgeschlossen sind, werden sie rückgebaut, um Raum für die Stadtentwicklung zu schaffen.

Verwandte Beiträge