Win-Win im Wal­lis

Jugendherberge Saas-Fee / Architektur Steinmann & Schmid, Basel

Clever geplant, solide gestaltet, optimal platziert: Mit der neuen Wellness-Jugendherberge ist Saas-Fee ein Coup gelungen.

Publikationsdatum
20-11-2014
Revision
18-10-2015
Tina Cieslik
Head of Multimedia | espazium digital lab; Korrespondentin Architektur/Innenarchitektur TEC21

Richard Schirrmann wäre vermutlich begeistert. Als der deutsche Volksschullehrer 1911 die erste Jugendherberge gründete, wollte er jungen Städtern eine einfache Unterkunft bieten, ­damit diese auf mehrtägigen Wanderungen die Natur erleben konnten. Rund hundert Jahre später steht die Natur nicht mehr ganz so stark im Mittelpunkt, zur Erholung gehört oft ein Architekturerlebnis dazu. Das haben auch die Schweizer Jugendherbergen erkannt: Seit den 1990er-Jahren unterzogen sie sich einem Imagewandel und setzten bei ihren Neu- und Umbauten auf qualität­volle Architektur.

Jüngster Neuzugang ist die im September eröffnete Jugendherberge in Saas-Fee. Sie machte international als «erste Wellness-Jugi» Schlagzeilen. Kein Grund allerdings für Herbergs-Puristen, auf die Barrikaden zu gehen: Denn jenseits allen Marketings ist der Neubau auch für die Gemeinde ein Gewinn – erst die Verbindung von Jugendherberge und Hallenbad sowie die Ergänzung durch einen Wellnessbereich er­möglichte es, das defizitäre gemeindeeigene Hallenbad zu erhalten.

Klug und robust

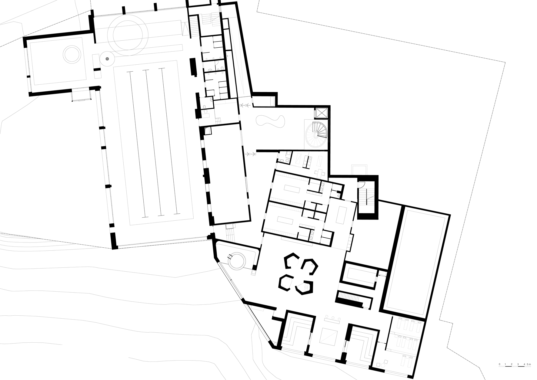
2009 spannten die Schweizer Jugendherbergen und die Burgergemeinde in einer Public Private Partnership zusammen und schrieben einen Studienauftrag für das Projekt aus. Der Standort war zwar durch das Hallenbad vorgegeben, aber dennoch ideal: neben der Postauto­station und nur wenige Minuten von der Talstation der Bergbahnen entfernt, hoch über der 300 m tiefen Schlucht der Fee-Vispa. Realisieren durfte den Bau das Basler Architekturbüro Steinmann & Schmid.

Die Planer projektierten einen 35 m langen, 13 m breiten und 17 m hohen polygonalen Bau, der über das Untergeschoss mit dem Hallenbad verbunden ist. In seiner Erscheinung erinnert er an die typischen aufgeständerten Speicherstadel des Saastals: Ein massives Erdgeschoss trägt die vier Obergeschosse aus Holz, die mit horizontal geschichteten Fichtenhölzern verkleidet sind. Konstruiert ist der Bau als Massiv-
Holz-Hybrid. Ausschlaggebend dafür waren neben der Ästhetik auch die Vorfertigung und die kurze Montage, ist die Bauzeit auf 1800 m ü. M. doch naturgemäss kurz.

Da die geltenden Brandschutznormen keinen fünfgeschossigen Beherbergungsbetrieb in Holzbauweise vorsahen, konnten die Planer eine Sondergenehmigung er­wirken. Ausschlaggebend dafür war unter anderem die Wahl von robusten Holzbauteilen, in diesem Fall 160–200 mm starken gipsfaserverkleidete Brettsperrholzwände für die brandabschnittsbildenden Innenwände sowie massive Holz-Beton-Verbunddecken.

Gestaltung mit Potenzial

Der 16.9 Mio. Franken teure Neubau bietet auf fünf Geschossen 168 Betten, verteilt auf 51 Zimmer, davon 24 Doppelzimmer. Etwa die Hälfte der Betten ist für Rollstuhlfahrer zugänglich. Erstellt wurde der Bau im Minergie-Eco-Standard. Trotz seiner Kubatur und der hellen Fassade fügt er sich erstaunlich gut zwischen die dunklen Chalets des Dorfs. Anders sieht es von der Schlucht her aus: Hier bilden Hallenbad (weiss verputzt), Wellnessbereich (steingrau verputzt) und die darüber thronende Jugi ein zusammengewürfeltes Konglomerat – was paradoxerweise leider ebenfalls passt, ist die Schluchtkante denn auch sonst ähnlich heterogen verbaut.

Die Gestaltung im Innern ist herbergsmässig schlicht, aber gelungen: Das wenige Mobiliar ist hochwertig, die Details sind durchdacht. Dazwischen gibt es kleine Ausrutscher, wie bei den Stehleuchten aus Folie in den Zimmern und dem Lichtobjekt aus dem gleichen Material im Bistrobereich. Der Zugang ins Hallenbad erfolgt, auch für Externe, durch das Erdgeschoss der Jugendherberge, die Rezeption ist gleichzeitig die Kasse für das Bad. So ergibt sich im Vorbereich des Baus eine öffentliche Zone, die sich dereinst, mit einem etwas liebevolleren Mobiliar, zu einem neuen Dorfplatz entwickeln könnte.

Wer den Komfort in der Herberge vermisst, kann sich im Wellnessbereich aufhalten: Mit 1900 m² ist er äusserst grosszügig gestaltet, Angebot (fin­nische Sauna, Bio-Soft-Sauna, Kräuter-Dampfbad, Whirlpool, Erlebnisduschen usw.) und Materialisierung können sich mit jenen eines Viersternebetriebs messen. Grandios ist die Aussicht auf die Schlucht und die umliegenden Viertausender inszeniert.

Und funktioniert das Konzept? Für die Gemeinde ja: Die Jugendherberge betreibt auch das Bad, Miete und Baurechtszinsen ergeben die rund 270 000 Franken für dessen jährlichen Unterhalt. Und auch für die Jugi: Herberge und Hallenbad sind gut besucht. Ein Augenschein vor Ort ergab, dass sich der Begriff «Jugend» hier in Zukunft wohl grosszügig auslegen lässt. Die jungen Snowboarder auf der Flucht vor der Stadt müssen sich ranhalten, wollen sie in Saas-Fee demnächst noch ein Bett ergattern. 

Verwandte Beiträge