Vom Was­ser­re­ser­voir zum Pa­vil­lon

Hochschulgebiet Zürich Zentrum «Pavillon im Park»; offener Projektwettbewerb

Im Gloriapark im Hochschulgebiet Zürich Zentrum soll ein neuer Pavillon entstehen. Unter mehr als 200 Projektbeiträgen gewann das ­Zürcher Architekturbüro Squadrat mit einem komplett überraschenden Ansatz: der Wiederbelebung eines stillgelegten Wasserreservoirs.

Publikationsdatum
24-06-2021

Die Wettbewerbsausschreibung erinnert an eine beliebte Semesteraufgabe im Architekturstudium: Projektvorschlag für einen Pavillon mit Gastronomieangebot, der zu einem neuen Ort der Begegnung und des Austauschs werden soll. In diesem Fall liegt der Bauplatz für dieses Vorhaben mitten im Hochschulgebiet Zürich Zentrum (HGZZ) am Übergang zwischen Gloriapark und Rämistras­se / Gloria­stras­se, in der sogenannten Parkschale. Der Pavillon soll sich dabei unaufgeregt in die frequentierte und lebendige Parkschale einfügen und zu einem wichtigen Identitätsträger des Hochschulgebiets werden.

Das Hochschulgebiet Zürich Zentrum steht vor einem gros­sen Transformationsprozess. In verschiedenen Planungen wurde die Weiterentwicklung der baulichen und aussenräumlichen Vorhaben über die letzten Jahre schrittweise erarbeitet und festgelegt.1 Das 2018 erarbeitete Weissbuch mit Stadtraumkonzept HGZZ spielt dabei eine zentrale Rolle. Im Sinn eines verbindlichen Regelwerks dient es als Grundlage für die Weiterentwicklung und als wichtiges Instrument zur langfristigen Qualitätssicherung. Für den Eingang in den Park wurde von den Verfassern des Stadtraumkonzepts HGZZ (ARGE Studio Vulkan / KCAP Architects & Planners, Zürich) die Idee der sogenannten «Agora» vorskizziert; ein grosszügiges, rundes Dach, leicht schwebend über der Haltestelle, dem Platz und dem Park. Mit dem jetzt durchgeführten Wettbewerb wurde die Idee dieser «Agora» in einen konkreten «Pavillon im Park» weiterentwickelt. Auf die öffentliche Ausschreibung des Projektwettbewerbs sind 269 Anmeldungen zur Teilnahme am Verfahren eingegangen, und 207 Projektbeiträge wurden aus dem In- und Ausland eingereicht.

Der «Anti-Pavillon» …

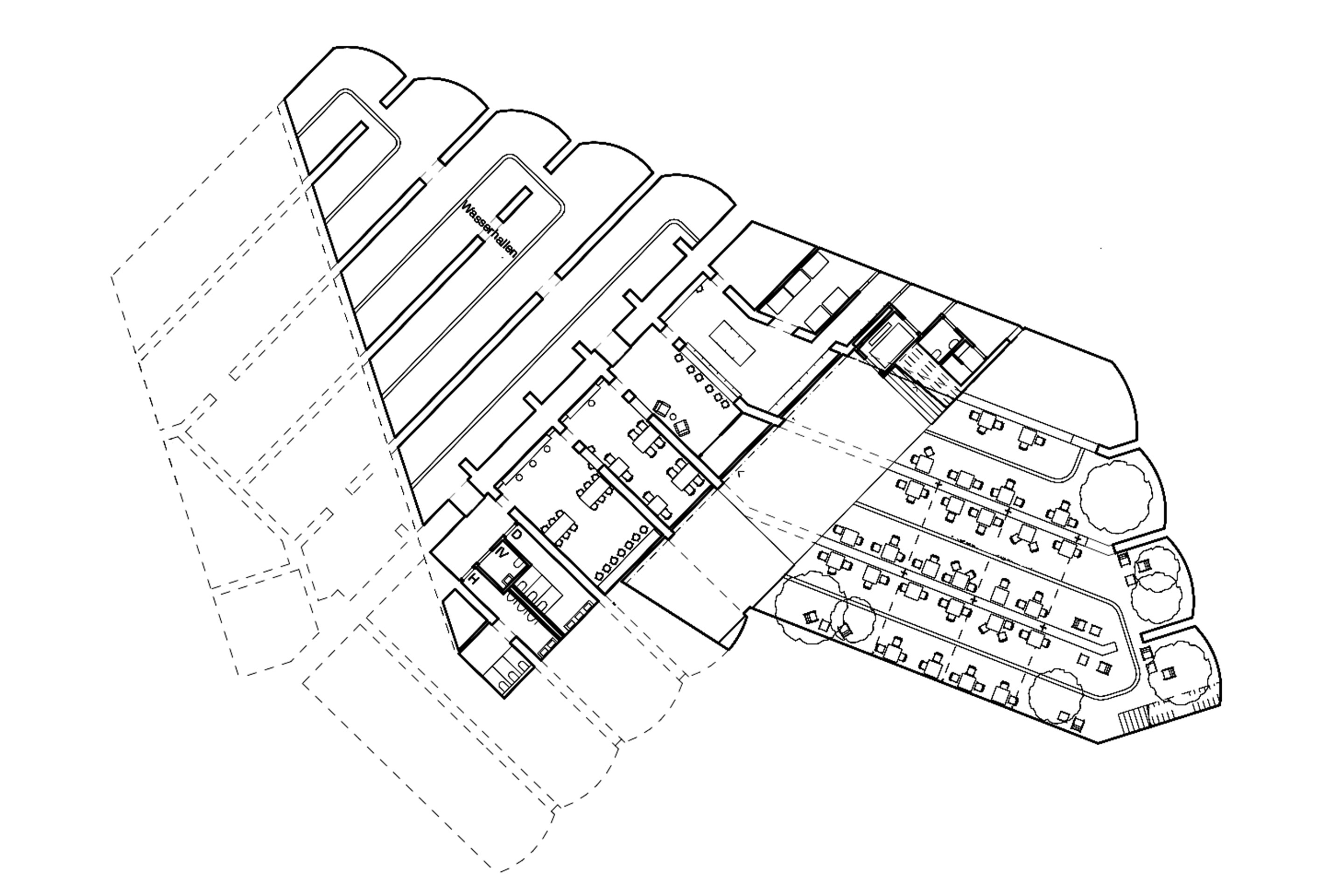
Die Projektverfasser des Siegerprojekts «Reservoir» entdeckten bei ihrer neugierigen und später vertieften Recherche zum Ort, das sich im Untergrund des Bauplatzes ein stillgelegtes Trinkwasserreservoir der Stadt Zürich befindet. Die un­terirdischen Wasserhallen an der Rämi­strasse von 1871, ein sogenan­ntes Niederdruckreservoir, wurden im Lauf der Geschichte mehrfach erweitert und renoviert und letztendlich 1979 ausser Betrieb genommen. Das Architekturbüro Squadrat erkannte in diesem «archäologischen Fund» das grosse Potenzial und vertraute auf die räumliche Kraft dieses Gewölbekellers mit bis zu fünf Meter hohen Räumen. Das Team stellte fest, dass es sich um «eine Serie unverwechselbarer Räume, die anders sind als alles, was ein Architekt hätte erfinden können», handelt. Anstatt das Reservoir abzubrechen und einen neuen Pavillon zu erstellen, entschied es sich, seinen Wettbewerbsbeitrag aus diesem Bauwerk heraus zu entwickeln. Es entsteht eine Art «Anti-Pavillon», der sich in die Parkschale einnistet, im Gegensatz zu all den anderen Projekteingaben mit frei stehenden Einzelbauten.

Auf der anderen Seite dieses Zugangs liegen die alten Gewölberäume, die belassen und mit gezielten Eingriffen zu Gasträumen, Foyer und Bar mit Nebenräumen umgebaut werden. Die grossen Öffnungen gegen die Gasse und den Reservoir­garten werden mit Glasbausteinen ausgefacht, sodass die Innenräume ausreichend mit Tageslicht versorgt werden. Gleichzeitig bilden sie die sichtbare Fassade des Pavillons.

Die Jury ist vom Siegerprojekt sehr angetan. Die Arbeit stelle einen «hervorragenden und visionären Beitrag an die Aufgabenstellung» dar, «der die Bedeutung der Baukultur im heutigen Zeitalter fördern wird», heisst es im entsprechenden Bericht.

In der Tat setzt sich das Siegerprojekt nicht nur mit der Geschichte des Orts auseinander, sondern auch mit Nachhaltigkeit. Durch die Umnutzung der vorhandenen Raumstrukturen und Materialien werden die Material­flüsse merklich gesenkt, einerseits ist weniger Aushub nötig, und andererseits muss weniger Baumaterial zubereitet werden. Beides spart Energie und zeigt, wie Kreislaufwirtschaft in der Praxis tatsächlich umgesetzt werden kann. Trotz allen Vorzügen gibt es beim Projekt noch ein paar Punkte, die geklärt werden müssen: unter anderem die Geschossfläche, die die Vorgaben des Gestaltungsplans aktuell noch übersteigt.

… und viele andere Pavillon-Ansätze

Auf Rang zwei liegt das Projekt «Echo1» von FMVS + MMMR Architekten, das als klassischer Pavillon mit quadratischem Fussabdruck daherkommt und mit einer mächtigen Dachhaube in Erscheinung tritt. Das Projekt fällt der Jury durch seine programmatische Ausarbeitung auf und besticht durch einen ganzheitlichen Anspruch, bei dem Architektur, Städtebau, Kon­struktion, Nachhaltigkeit und Funktionalität mit grosser Selbstverständlichkeit im Einklang stehen. Das drittplatzierte Projekt «Der Schmetterling» von Bruther Architekten verfolgt einen poetischen Ansatz, gekoppelt mit experimentellem Charakter. Der lang gezogene Pavillon – in Form eines zeltartigen Dreieckgiebels – liegt im 45°-Winkel zur Rämi- und zur Gloriastrasse.

Die ­leichte Metallkonstruktion trägt teilweise bewegliche, lichtdurch­läs­sige Elemente, die aus einer Doppelschale aus gebogenem und strukturiertem Glas bestehen. Der Pavillon wird zum Anlass genommen, eine neue, innovative Konstruktion in Form eines Experiments zu ent­wickeln. Auf dem vierten Platz wurde das Projekt «Giraluna» rangiert, eine ­Hom­mage an Lisbeth Sachs. Die beiden Architektinnen Füglister und Uzor schlagen vor, den Kunstpavillon von Lisbeth Sachs von der Saffa 1958 – mit eingeholter Einwilligung der Erbinnen – in einem völlig neuen Kontext wieder auferstehen zu lassen. Drei Rund­pavillons mit unterschiedlichem Durchmesser werden aus frei stehenden, leicht abgehobenen Wand­scheiben und darüber liegenden Membrandächern gebildet. Der ­konzeptionelle Ansatz faszinierte die Jury und beweist, welche Frische Sachs’ Entwurf auch heute noch entfaltet.

Diese grosse Vielfalt von Ansätzen findet sich auch auf den weiteren Rängen und bei den weiteren Projekteingaben wieder. Der Themenfächer reicht dabei, ganz in der Tradition der Pavillonbauten, von intensiven Auseinandersetzungen mit Material und konstruktiven Fügungsprinzipien über spezielle Tragwerkskonstruktionen bis hin zu spezifischen, auf den Ort bezogenen Raumkonstellationen.

Vom Spitalpark zum Gloriapark

Gleichzeitig mit der Neugestaltung der Parkschale und den weiteren Bauvorhaben im Hochschulgebiet Zürich Zentrum soll auch der sogenannte Gloriapark weiterentwickelt werden. Der heutige nach innen ­orientierte Spitalpark, der in seinen Grundzügen auf die historische ­Anlage von Gustav Ammann aus den 1950er-Jahren zurückgeht, soll in einen offenen Park transformiert werden. Mitten im Gebiet dient er als wichtiger Erholungsraum sowie als «grüne Lunge». Der zukünftige Gloriapark soll in seiner Gesamtheit als grosszügiger öffentlicher Park zu einem Treffpunkt und Ort der ­Kommunikation werden sowie zur Verbindung der unterschiedlichen Gebäude auf dem Gelände dienen. Für diese anspruchsvolle Aufgabe hat die Geschäftsstelle HGZZ ein offenes Planerwahlverfahren durchgeführt. Insgesamt haben vier Landschaftsarchitekturbüros an der Ausschreibung teilgenommen. Den Zuschlag erhielt das Büro Hager Partner aus Zürich.

Anmerkung
1 Das neue Hochschulquartier in Zürichs Zentrum war bei TEC21 bereits mehrfach Thema der Berichterstattung. Die entsprechenden Beiträge finden Sie in: TEC21 42/2016: «Gewalttätiges Konzept», TEC21 48/2016: «Der Studienauftrag lässt nichts Gutes erwarten», TEC21 1–2–3/2018: «Täuschende Virtual Reality im Universitätsquartier», TEC21 12–13/2018: «Die Suche nach dem Dazwischen», TEC21 43/2018: «Stadtplanung als Gebietsmanagement», TEC21 7–8/2019: «Frappierende Platzidee», TEC21 9–10/2019: «Permanentes Weiterbauen».

Pläne und Jurybericht zum Wettbewerb finden Sie auf competitions.espazium.ch

Auszeichnungen

1. Rang / Ankauf: «Reservoir»
Squadrat Architekten, Zürich
2. Rang: «Echo1»
FMVS + MMMR, Porto / Zürich
3. Rang: «Der Schmetterling»
Bruther, Paris
4. Rang: «Giraluna»
Kathrin Füglister, Myriam Uzor, Zürich
5. Rang: «Skené»
Ivica Brnic, Niklas Gössl, Wien
6. Rang: «Palazzo Regale»
Studio VGM, Stuttgart
7. Rang: «Miese Trinkhalle»
Atelier 34, Zürich
8. Rang: «Rämigloria»
Bayr Glatt Guimaraes Architekten, Augsburg
9. Rang: «Shirley Temple»
Corsin Raffainer & Sara Nigg Architekten, Zürich

FachJury

André Schmid, Landschaftsarchitekt, Zürich; Marc Angélil, Architekt, Professur für Architektur und Design ETHZ; Pascal Hunkeler, Architekt, Stv. Direktor, Bereichsleiter ­Raum­entwicklung und Architektur, Amt für Städtebau Stadt Zürich; Raphael Rossel, Designer; Tanja Reimer, Architektin, Zürich

SachJury

Claus Reuschenbach, Architekt, Portfoliomanager, Liegenschaften Stadt Zürich; Karl Stammnitz, Landschaftsarchitekt, Leiter Freiraumberatung, Grün Stadt Zürich; Roger Strub, Architekturhistoriker, Denkmalpflege Kanton Zürich; Roman Bächtold, Architekt, Leiter Geschäftsstelle Gebietsmanagement HGZZ (Vorsitz)

Verwandte Beiträge