Vom Bü­ro zur Bil­dungs­stät­te

Für den wachsenden Bedarf an Schulraum muss nicht immer gleich ein Neubau realisiert werden. Mit wenigen Eingriffen nutzten Vischer ­Architekten ein bestehendes Verwaltungsgebäude auf dem Areal Rosental Mitte in Basel zum provisorischen Sekundarschulhaus um und schufen damit auf vorbildliche Weise einen neuen Lernraum.

Publikationsdatum
15-01-2024
Katharina Marchal
Architektin Dipl. Arch. SIA, Fachjournalistin SFJ BR. Sie schreibt als Kriti­kerin für die Fachpresse und betreut Architekturbüros in der PR- und  Medienarbeit.

Wir befinden uns am Badischen Bahnhof, dem Grenzbahnhof in Kleinbasel. Auf der gegenüberliegenden Strassen­seite fällt sofort ein ­repräsentatives Gebäude mit Sandsteinfassade auf – es gleicht dem Bahnhofsgebäude, das 1913 von Karl Moser erbaut wurde. Das Verwaltungsgebäude realisierten Eduard und Paul Vischer 1930 für die Firma J. R. Geigy. Der Zufall will es, dass fast hundert ­Jahre später Vischer Architekten aus Basel mit dem Umbau des Gebäudes ihrer Gründungsväter be­auftragt werden.

Heute gehört das ehemalige Direk­tionsgebäude der Syngenta zum Areal Rosental Mitte, einem der vielen Entwicklungsgebiete in der Region, und ist in Besitz des Kantons Basel-­Stadt. Das ehemalige Indus­trieareal wird in Etappen zu einem neuen Stadtteil entwickelt. Der Leerstand des ehemaligen Verwaltungsgebäudes bot die einmalige Chance, diesen Zeitzeugen der Basler Industriegeschichte zum Schulbau umzunutzen. Damit bleiben nicht nur die räumlichen Qualitäten erhalten, sondern es zeigt sich auch, dass sich eine derart aus­ser­ge­wöhnliche Architektur mit wertvollen Materialien im Innenausbau auch für die Schulnutzung eignen kann.

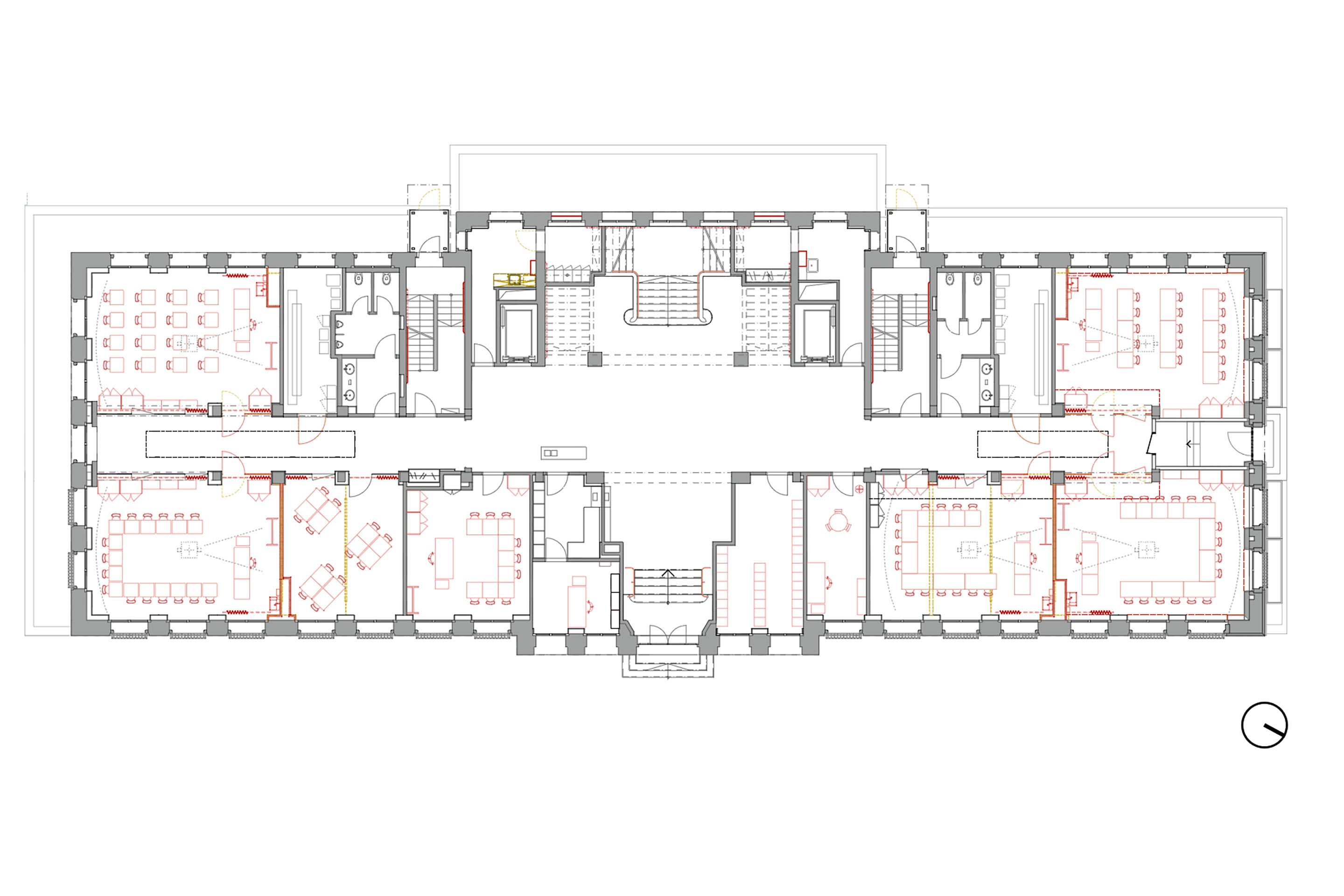
Bereits beim ­Eintreten beeindruckt die zwei­geschossige Eingangshalle, in der die dreiläu­fige Treppenanlage mit Stufen aus Eichen- und Geländern aus Nussbaum­holz in das Obergeschoss weist. Durch die originalen geschliffenen Gläser der Fenster dringt viel Tageslicht in die imposante Halle ein. Auch die indirekte Beleuchtung in den gevouteten Wandabschlüssen und die guss­eisernen Deckenlampen sind wunderbare architektonische Details, die für eine Schule alles ­andere als gewöhnlich sind.

Blitzschnelle Umsetzung

Zwischen der Idee und der Umsetzung lagen kaum zehn Monate. Seit dem Schuljahr 2023/24 ist das Gebäude für zehn reguläre Sekun­dar­schulklassen geöffnet, ab dem kommenden Schuljahr können alle 17 Klassen untergebracht werden.

Um den sehr engen Zeit- und Kostenrahmen einhalten zu können, griffen Vischer Architekten so wenig wie möglich in die Bausubstanz ein und verwendeten Bestehendes wenn möglich weiter. Die gute Sub­stanz erleichterte die Umnutzung. Die grössten Eingriffe waren die Er­gänzung der Sanitärinstallationen mit Waschbecken in jedem Schulzimmer und die Anpassung der Elektro­installationen. Vier Schächte vom zweiten Unter- bis zum fünften Obergeschoss integrieren sich unauffällig jeweils in den äusseren Ecken der Klassenzimmer.

Da das Gebäude als Inven­tarobjekt der Denkmalpflege ein­ge­tragen ist, mussten die Sand­stein­fassaden – aus dem gleichen Stein wie der gegenüberlie­gende Bahnhof –, die Trag­struktur sowie das Haupt- und ein Nebentreppenhaus erhalten ­bleiben. Mit dem Rückbau eines ­Zwischenbaus erhielt die Nordfassade wieder ihre ursprüngliche Gestalt. Dies bedingte den ­Abbruch einer im Lauf der Jahre zusätzlich eingebauten Verbindungs­treppe zum Nachbargebäude und das ­Einziehen von neuen Böden. In den anderen Bereichen konnten in Absprache mit der Denkmalpflege Veränderungen vorgenommen werden, um den Schul­betrieb zu ermöglichen.

So wurden nachträglich ­eingefügte abgehängte Decken und überflüs­sige Zwischenwände entfernt, gewisse Unterlagsböden erneuert und einzelne Beläge neu ­verlegt. Die Fenster wurden in Anlehnung an die ursprüngliche Ausführung in Holz wiederhergestellt und zugleich nach heutigen technischen Standards angefertigt. Für die Beschattung sind Stoffstoren vorgesehen.

Die Eingriffe von Vischer Architekten beschränkten sich auf das Wesentliche. Fehlende Stücke in den bestehenden Teppichen oder Leuchten wurden repariert oder ergänzt. Um den Anforderungen an Geländerhöhe und Absturzsicherheit gerecht zu werden, füllen Lochbleche die Zwischenräume der Geländer im Nebentreppenhaus und der massiven Holzbalustraden der Haupttreppe zusammen mit einem zusätzlichen Handlauf. Diese Elemente integrieren sich in den eleganten Treppenaufgang des Foyers. Fast unversehrt blieben das grosse Sitzungszimmer mit seinem nussbaumfurnierten Wandtäfer und die Liftkabinen.

Farbakzente gegen den Bürocharakter

Um den Bürocharakter etwas aufzulockern, entwickelte der Künstler Jörg Niederberger ein eigenes Farbkonzept. Mäandernde Bänder in jeweils zwei Komplementärfarben winden sich über die Wände der Gänge und des Nebentreppenhauses. Die logische Sprache der in jedem Geschoss unterschiedlichen Farben unterstützt die Orientierung im Gebäude. Gleichzeitig wirken die Farb­akzente als verspieltes Gegenstück zum schweren Interieur und dem zurückhaltenden, einfachen Innenausbau. Die neuen Linoleumböden und gestrichenen Unterlagsböden ergänzen das Farbkonzept. Farblich abgestimmt sind auch die neuen Vorhänge in den Klassenzimmern, die die bestehenden Glaswände entlang der Gänge verdecken und die Raum­akustik verbessern.

Das Raumprogramm umfasst auch eine Bibliothek und Hauswirtschaftsräume. Die ursprünglich nicht begehbaren Flachdächer über den Seitenflügeln wurden zu Dach­terrassen für die integrierte Tagesstruktur umgenutzt. Da eine Turnhalle im Gebäude fehlt, werden für den Schulsport die Turnhallen der Schulstandorte Erlenmatt, Vogelsang und Schoren genutzt. Der eigene Schulsportplatz im Freien wird jedoch im Frühjahr fertiggestellt, ein Teil des Aussenraums ist schon nutzbar.

Um diese für die Dauer des Provisoriums ­benötigten Freiflächen zur Verfügung stellen zu können und um den Zugang von der Schwarzwaldallee zu dem sich im Umbau befindenden Nachbargebäude zu gewährleisten, wurde der bestehende Arealzaun versetzt. Das Provisorium der Sekundarschule soll nun für mehrere Jahre betrieben werden.

Sinnvolle Zwischennutzung

Im Hinblick auf die Nachhaltigkeit ist die Zwischennutzung von Gebäuden sehr sinnvoll. Vor allem Bauten mit architektonischem Wert und gut erhaltener Bausubstanz bieten eine hohe Nutzungsflexibilität. Im früheren Verwaltungsbau und heutigen Sekundarschulhaus können in der nächsten Generation eventuell noch weitere Schulnutzungen Platz finden. Aus dem «Schulhaus Rosental» kann aber auch wieder ein Bürogebäude werden: Dank sorgfältiger Planung und reversibler Eingriffe in die bestehende Bausubstanz ist das ehemalige Verwaltungsgebäude flexibel nutzbar.

Einbau provisorische Sekundarschule Rosental, Basel

 

Bauherrschaft
Immobilien Basel-Stadt; vertreten durch Bau- und Verkehrsdepartement


Nutzer
Erziehungsdepartement Basel-Stadt


Architektur/Gesamtleitung
Vischer Architekten, Basel


Bauleitung/Baumanagement
g2y baumanagement, Basel


Farbkonzept
Jörg Niederberger, Kleinlützel


Tragkonstruktion/Bauphysik
Gruner, Basel


HLK-Planung
Herbst Beratung + Planung, Frick


Sanitärplanung
Bad Konzept, Basel


Elektroplanung
Eplan, Reinach


Baujahr Bestand
1930


Schutzstatus
Inventarobjekt


Baukosten (BKP 2)
4.6 Mio. Fr.

Verwandte Beiträge