Platz im Haus

Als multifunktionaler Kulturort besetzt das Gebäude der Kaserne Basel die Schnittstelle zwischen Rheinufer und Kleinbasel. Ein beherzter Eingriff öffnet das Haus zu seiner städtischen Umgebung. So radikal die Veränderung im Innersten ist, so subtil bleibt sie von aussen.

Publikationsdatum
02-12-2022

Der Umbau des Basler Kasernenareals ist so etwas wie ein sensibler Befreiungsschlag. Den Architekten Hans Focketyn und Miquel del Río ist es gelungen, den gordischen Knoten jahrzehntelanger lokaler Debatten über die Zukunft der Kaserne zu lösen. Geschehen ist das mit einer Reihe von behutsamen Eingriffen und einer Öffnung zum Publikum, die ohne grosse Gesten auskommt und doch grosse Räume entstehen lässt.

2013 gewann das Team aus einem Belgier und einem Spanier, die beiden hatten sich bei Herzog & de Meuron kennengelernt, überraschend den internationalen Projektwettbewerb. Entscheidend war ihr Konzept, das über die interne Raumorganisation hinaus mit zwei städtebaulich wirksamen Ideen überzeugte: der internen Verbindung von Kasernenplatz und Rhein­uferpromenade vermittels einer zentralen Halle und der Anbindung des Kasernenplatzes an die Stadt durch eine Öffnung im Süden.

Opernhaus oder Parkgarage?

Nach mehr als 100 Jahren, zuletzt als Sanitätsrekrutenschule, endete 1966 die militärische Nutzung. In der früheren Klosterkirche entstanden 40 Ateliers für Kunstschaffende sowie der Ausstellungsraum Klingental, der Nordflügel wird seit 1980 unter dem Namen «Kaserne Basel» als Kulturzentrum mit dem Schwerpunkt Theater, Tanz und Performance genutzt.

Das eigentliche Hauptgebäude beherbergte eine Organisation für Brückenangebote sowie die Hochschule für Gestaltung und Kunst der FHNW. Mit deren Auszug auf den Dreispitz wurde die Frage erneut virulent, wie mit dem stadtbildprägenden Kopfbau der Kaserne umzugehen sei. Darüber wurde schon seit Jahrzehnten in Basel gestritten – nicht anders als in Zürich, wo die zentrumsnahen Militärliegenschaften im Kreis 4 bekanntlich ebenfalls eine Dauerdebatte auslösten.

Mit dem Vokabular des Bestands

Zu dem Zeitpunkt, als Focketyn del Río Studio den Wettbewerb gewann, waren die radikalen Lösungen wie Abriss oder mittiger Durchbruch durch das Hauptgebäude definitiv vom Tisch. Dem jungen Büro ist es gelungen, das Problem, dass Kasernenplatz und Rheinpromenade komplett voneinander getrennt sind, nicht exogen, also mit demonstrativ grosser Geste, sondern gleichsam endogen zu lösen – im Inneren des Gebäudes.

Von aussen sichtbar ist die neue Öffnung des Kasernenplatzes zur Stadt vor allem am Durchbruch durch den Verbindungsbau zwischen Kasernenhauptgebäude und ehemaliger Klosterkirche. Debatten mit der Denkmalpflege, die heute mit Argusaugen über das einst geschmähte Zeugnis des 19. Jahrhunderts wacht, führten zu einer Lösung, die sich erst auf den zweiten Blick als zeitgenössische Intervention zu erkennen gibt.

Ein Segmentbogen, den man auch an anderen Stellen des historischen Bauwerks findet, überwölbt die Tordurchfahrt, wobei eigentlich nur die Laibungen aus rötlich eingefärbtem Beton die Entstehungszeit verraten. Ansonsten zeigt sich die Öffnung der Fassaden überaus zurückhaltend: Hofseitig wurden die meisten Erdgeschossfenster zu Türen erweitert, sodass man das zuvor nur mit drei Türen versehene Gebäude fast überall betreten kann. Und rheinseitig kennzeichnet ein äusserst flacher Segmentbogen die Phalanx der neu installierten Türen, die das Haus zur Rheinpromenade hin öffnen.

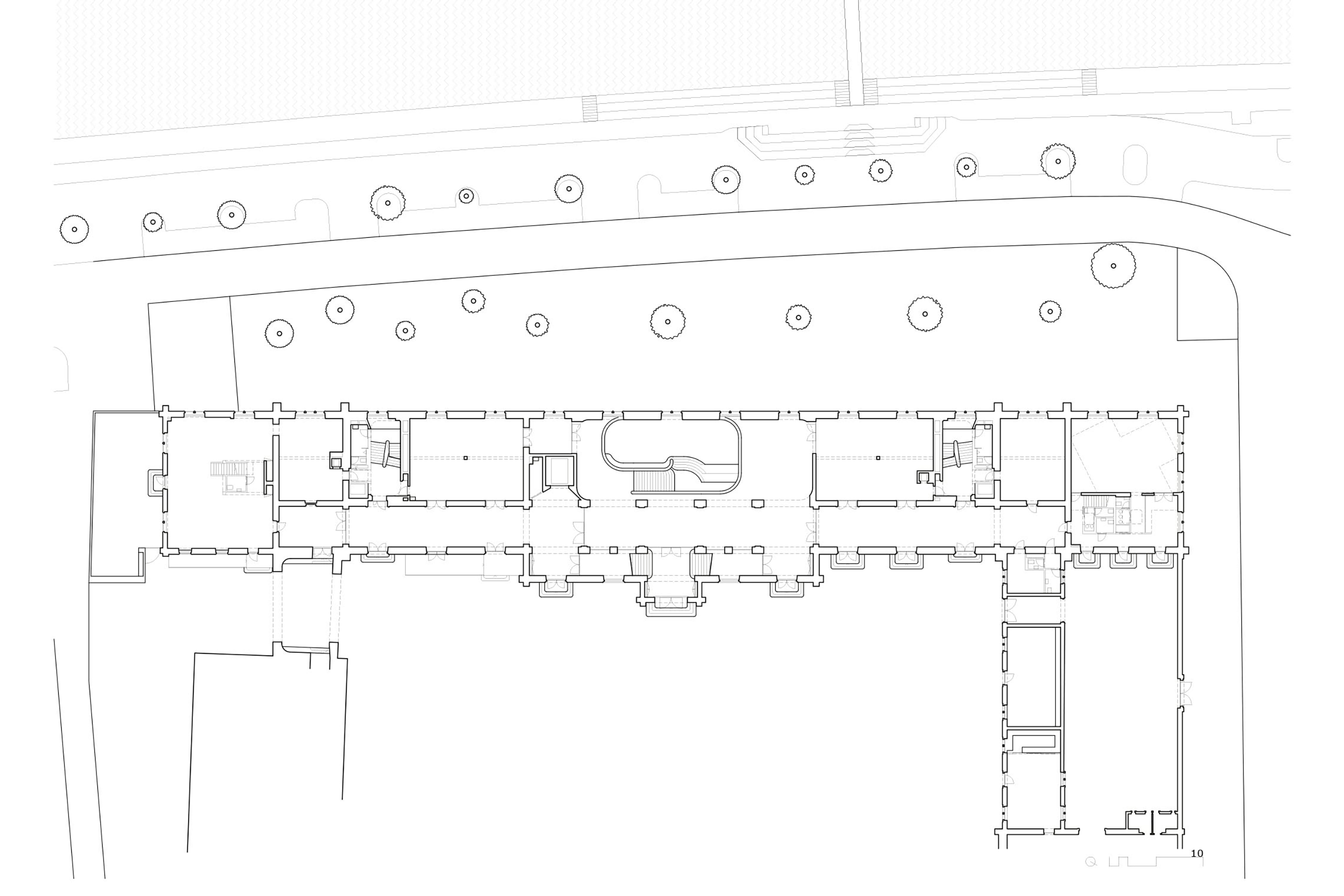
Dreh- und Angelpunkt des Umbaus von Focketyn del Río ist die Plaza genannte dreigeschossige Halle, die in grosszügiger Weise Kasernenplatzebene und Rheinufer verbindet. Durch ihre Grösse und Höhe, vor allem aufgrund der Materialisierung mit Terrazzo als Bodenbelag, der auch die geschwungene Freitreppe einfasst, gibt sie sich als veritabler öffentlicher Platz zu erkennen. Der Rigidität der Kaserne mit ihrem starren Grundrissraster setzten die Architekten hier weiche Formen entgegen, was nicht nur an der Treppe und den Wanddurchbrüchen, sondern auch an den abgerundeten Ecken des Raums erkennbar wird.

Auch die nach Entwürfen der Architekten gefertigten filigranen, aber doch kräftigen metallenen Leuchtkörper – schmalere Varianten mit Gitterzylindern erhellen die öffentlichen Korridore – unterstützen den öffentlichen Charakter der Plaza. Lediglich für die Deckenuntersicht mit ihren gelochten Akustikplatten hätte man sich eine architektonisch stärkere Lösung gewünscht.

Das neue Treppenhaus als Freiraum

Betritt man die Plaza zum ersten Mal, so ist man ob der Dimensionen des Innenraums überrascht. Nichts deutet auf der Rheinseite mit ihrer durchlaufenden, die Geschossigkeit durch die Fenster betonenden historischen Fassade darauf hin, dass sich dahinter eine dreigeschossige Halle befindet. Auch wenn sich der Umbau zu den Fassaden hin minimalinvasiv gibt, griffen die Architekten im Inneren durchaus selbstbewusst ein. Das betrifft einerseits die Mittelachse mit der Plaza, über der ein grosser, zwei Geschosse übergreifender und multifunktionaler Konzert- und Veranstaltungssaal eingerichtet wurde; verschiebbare, vertikal strukturier­te dunkle Akustikpaneele aus Holz erlauben es, die Fensteröffnungen zu schliessen und den Raum in eine Black Box zu verwandeln.

Und es betrifft andererseits die beiden seitlich der Türme in das Volumen gestanzten Treppenhäuser. Auch hier: rötlich eingefärbter Beton, dazu Stahlbrüstungen; auch hier gerundete Ecken und geschwungene Formen. Die beiden neuen Erschliessungskerne waren aus Gründen der Erdbebensicherheit nötig, sie dienen aber zugleich als Fluchtwege. Das führt dazu, dass die über die im hofseitigen Mittelrisalit angeordneten Treppen erschlossenen und erstaunlich breiten Korridore nicht nur als Verkehrsflächen dienen, sondern auch möbliert und zum Arbeiten genutzt werden können.

Hier und in den verbliebenen Bereichen ist es Focketyn del Río gelungen, den Bestand zu bewahren, der aufgrund seiner klaren Struktur – hofseitige Korridore mit rheinseitigen Räumen – beliebig adaptierbar ist. Immer wieder finden sich Spuren der historischen Nutzung, auf eine Übersanierung haben die Architekten verzichtet.

Ertüchtigt und belebt

Auch Schnetzer Puskas als Ingenieure setzten auf Ertüchtigung des Bestands: Die bestehenden Holzbalken der Decken wurden weiterverwendet, zum Teil seitlich aufgedoppelt und mit einer dünnen Ortbetonschicht schubsteif ergänzt. Nur im Bereich von Plaza und Saal kamen neue Stahlbeton-Rippendecken zum Einsatz.

Betrieben wird das neue Kulturzentrum von der dafür gegründeten kHaus AG, die die Räume an einzelne Akteurinnen und Akteure aus dem kulturellen und gesellschaftlichen Sektor vergibt und auch für die Vermietung der Veranstaltungsorte zuständig ist. Im nördlichen Annex haben die Architekten über einer kleinen Probebühne im Untergeschoss neue Räume für die Moschee eingerichtet, die vorher schon in der Kaserne ihr Domizil hatte; ansonsten finden sich im Sockel- und Erdgeschoss vorwiegend gastronomische Nutzungen, die in der warmen Jahreszeit auch die vorgelagerten Bereiche des Rheinufers bespielen. Im Bereich der Plaza selbst herrscht kein Konsumationszwang, damit das Haus tatsächlich für alle zugänglich und benutzbar ist.

Zu den neuen Attraktionen zählt zweifellos die im südlichen Turmkopf angesiedelte, aber nicht von den Architekten eingerichtete Amber Bar, die auch die Turmterrasse umfasst. Hier sitzt man des Sommers unter offenem Himmel mitten in der Stadt – mit weitem Blick über das Rheinknie. Kleinbasel hat mit der neu geöffneten Kaserne einen weiteren attraktiven Ort der Kultur erhalten. Operation gelungen.

Die ausführliche Version dieses Artikels ist erschienen in TEC21 39/2022 «Die Zi­vi­li­sie­rung der Ka­ser­nen». Jetzt bestellen!

Kaserne Basel

 

Bauherrschaft
Bau und Verkehrs­departement des Kantons Basel-Stadt


Architektur
Focketyn del Río Studio, Basel

 

Bauleitung
Caretta Weidmann Baumanagement, Basel


Tragwerksplanung
Schnetzer Puskas Ingenieure, Basel


Energieplanung
Ehrsam Beurret, Pratteln

 

Klimaplanung
Treuthardt Haustech, Binningen


Baukosten
45 Mio. Fr.


Gebäudevolumen SIA 416
36 000 m³


Fläche SIA 416
9394 m²


Auftragsart
Wettbewerb 2013


Bauzeit
Planungsbeginn 2014
Baubeginn 2018
Fertigstellung 2022

Verwandte Beiträge