Wach­ge­küsst und wei­ter­ent­wi­ckelt

Das Friedhofsgebäude in Birsfelden BL wurde seit seiner Erstellung 1966 ­immer nur punktuell saniert. Backes Zarali Architekten überführen den Backsteinbau nun mit einer Gesamtsanierung in die ­Gegenwart: Sie setzen am Bestand an und entwickeln ihn weiter.

Publikationsdatum
01-09-2023

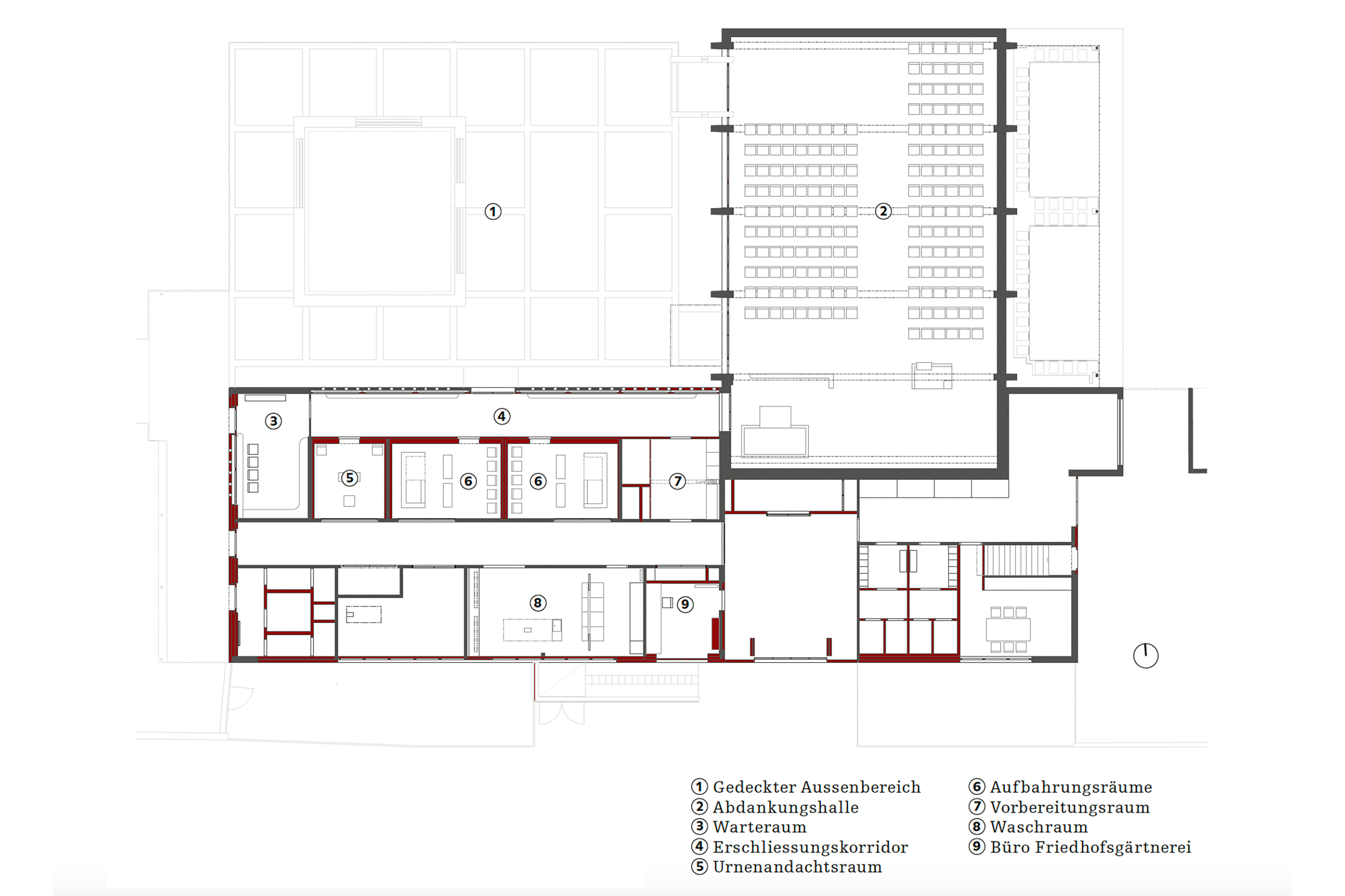
Über einen leicht ansteigenden Weg durchquert man den von einer Mauer umgebenen Friedhof Birsfelden und wird an der Kuppe des Hügels von einem weiten Vordach aufgenommen. Dieser gedeckte Bereich gehört zum 1966 erbauten Friedhofsgebäude und wird als Versammlungsort oder für Zeremonien genutzt. Eine umlaufende Bank säumt den integrierten Grünraum, erhellt von einer Aussparung im Dach. Das Friedhofsgebäude besteht nebst diesem Vorbereich aus einer Abdankungshalle, einem öffentlichen Andachtsbereich und dem dahinterliegenden Serviceteil.

Das Basler Architekturbüro Backes Zarali Ar­chi­tekten sanierte das Gebäude von 2020 bis 2023 und erweckte es mit wenigen Eingriffen aus seinem Dorn­röschenschlaf. Die Architektinnen und Architekten er­setzten beispielsweise die bestehende Holzwand vor dem Warteraum mit einer durchbrochenen Mauer­steinwand, die vor einer raumhohen Verglasung als Sichtschutz dient und gleichzeitig einen Bezug zum ­bestehenden Filtermauerwerk vor dem Erschliessungskorridor herstellt. Untypischerweise verwendete das Planungsteam für dieses gestalterische Element Hochlochziegel aus der Bauzeit, die als Ersatzmaterial im Keller der Anlage eingelagert waren.

In der Aussenwirkung des Gebäudes lassen sich Bezüge zu Bauten des schwedischen Architekten Sigurd Lewerentz herstellen. Wie auch in der 1962 fertiggestellten Markuskyrkan südlich von Stockholm wird der Backstein als Ornament eingesetzt, sei es im lichtdurchlässigen Filtermauerwerk oder bei der Inszenierung seiner haptischen Qualität durch das einfallende Licht im dunklen Raum.

Herzstück Abdankungshalle

Der in Erdtonfarben changierende Backsteinbau vermittelt trotz der Schwere seines Materials eine gewisse Eleganz und Leichtigkeit, unterstützt durch die schlanken Betonlisenen in der Abdankungshalle. Die Halle, die heute Menschen aller Konfessionen ebenso wie Konfessionslosen offensteht, erhielt eine neue, hell gestaltete und akustisch wirksame Decke in fast 7 m Höhe. In ihrer Gliederung bezieht sich die Decke auf die längsseitigen Betonstützen der Halle, sodass sie gemeinsam mit den Wänden einen Rahmen bildet. Der als tragendes Betonskelett und mit einem dreischaligen Mauerwerk ausgefachte Hallenraum vermittelt körperliche Schwere. Dennoch strahlt er mit dem Sichtmauerwerk und den neuen Eichenholzfenstern eine warme Atmosphäre aus. In die Backsteinwand sind Intarsien eingearbeitet, die sich über das herabfallende Licht nach oben hin aufzulösen scheinen und eine transzendente Vorstellung unterstützen. Dank des Abstraktions­grads der in das Mauerwerk eingearbeiteten Ornamente ist die Aneignung des Raums durch verschiedene Konfessionen möglich.

Lesen Sie auch:
«Blickfang in Sichtbackstein» – Neubau Mehrfamilienhaus «Tannzapfen», Zürich-Witikon

Dimmbare, schlichte Deckenleuchten sorgen für eine Grundbeleuchtung, die von kerzenartigen Hängeleuchten komplementiert wird. Um die natürliche Lichtstimmung auch an trüben Tagen zu wahren, verstärkt eine weitere Linienleuchte das Oberlicht und erhellt so den Vorderbereich der Abdankungshalle.

Der ursprüngliche belgische Granitboden wurde von einer nachträglich hinzugefügten Wachsschicht befreit und durch eine Imprägnierung in seinen originalen Zustand zurückversetzt. In die Bodenfugen ist eine induktive Höranlage integriert, die es Personen mit Hörgerät erleichtert, der Andacht zu folgen. Eine aus Brandschutzgründen zusätzlich erstellte Eichentür verbessert die Zirkulation der Besuchenden innerhalb des Raums, besonders während des meistbesuchten Gottesdienstes an Allerseelen. Die Orgel aus der Zeit der Erbauung steht unverändert da, wie ein Möbelstück auf einem Podest. Die bereits vorhandenen Holzstühle führen neu gepolstert und vom Schreiner aufgearbeitet ein zweites Leben.

Intime Räume für den Abschied

Die der Andacht gewidmeten Bereiche sind mit warmen Materialien und sechseckigen Fliesen gestaltet. Ein Erschliessungskorridor hinter dem bestehenden Filtermauerwerk verbindet diese intimen Abschiedsräume mit der Abdankungshalle und schützt vor Blicken von aussen. Hier fand die deutlichste räumliche Veränderung statt. Die zuvor engen Kammern sind neu zu drei Andachtsräumen zusammengefasst: zwei Aufbahrungs­räume und ein Urnenandachtsraum. Die Architektinnen und Architekten befreiten das Oberlicht von einer Metalllamellendecke und änderten die Orientierung des Raums, sodass Verstorbene nicht länger im Lichtstrahl ruhen. Ähnlich wie in der dänischen Bagsværd Kirke von Jørn Utzon, in der das Licht indirekt über eine geschwungene Deckenwölbung in den Raum fällt, werden die Andachtsräume durch das über eine Rundung einfallende Tageslicht subtil erhellt. Auch die haptischen Qualitäten der Holzbauteile unterstützen in den Andachtsräumen die Atmosphäre der Nähe und des Abschieds. In der mittleren Raumschicht befindet sich auch ein Vorbereitungsraum mit inte­grierter Garderobe für Redner und Rednerinnen. 

Verborgene Technik

Unmittelbar angrenzend, für die Trauernden jedoch praktisch unsichtbar, befindet sich die technische Seite des Gebäudes. Von hier aus werden die innenliegenden, künstlich belüfteten Andachtsräume rückseitig bedient. Die technischen Anlagen wurden in diesem Zuge vollständig erneuert. Der Materialkanon wechselt zu Rechteckfliesen und Grüntönen, die den profanen Charakter der dienenden Nutzung vermitteln. Auf dennoch ansprechende Weise sind hier Zufahrt, Werk­raum, Gärtnereibedarf, Personalgarderoben, Sanitäranlagen, Aufenthaltsraum sowie Kühl- und Wasch­räume untergebracht. Der Waschraum dient rituellen Waschungen verstorbener Gemeindemitglieder muslimischen Glaubens und ist einer der ersten seiner Art in der Schweiz. Mit einer neuen Eichenholzbank und den aus den öffentlichen Bereichen bekannten Sechseckfliesen ist hier der Spagat zwischen haustechnischer Anforderung und einer angemessenen Raumhülle für die rituelle Nutzung gelungen.

Die laut Erdbebensicherheitsprüfung gut erhaltene Gebäudesubstanz und -fassade verlangte nur an wenigen Stellen Ergänzung: Dunkelgrüne Metallfenster und Absturzsicherungen schaffen neu einen Kontrast zum roten Farbton des Backsteins.

Backes Zarali Architekten zeigen mit diesem Projekt, wie ein komplexer Umbauprozess im Bestand gelingen kann, der zudem hohe Anforderungen an Haustechnik und Organisationsabläufe mitbringt. Aussen wie innen verleiht das Sichtmauerwerk dem Gebäude einen bescheidenen, geerdeten und dennoch besonderen Ausdruck. Die haptischen Qualitäten des Backsteins eignen sich, besonders in der kreativen Verarbeitung, für sinnliche Raumerfahrungen, die sich von der profanen Alltagswelt abheben sollen. Die Räume im Friedhofsgebäude sind schlicht und dennoch warm. Sie ­bieten für trauernde Menschen eine einladende und ruhige Atmosphäre, wenn sie diese am meisten brauchen. Die Gemeinde Birsfelden konnte mit dem Friedhofsgebäude einen architektonisch wertvollen Bau erhalten und entsprechend einer offenen Gesellschaft an die unterschiedlichen Bedürfnisse ihrer Mitglieder anpassen. So dürfen hier alle Menschen in würdevoller Umgebung Abschied nehmen und zur Ruhe gehen.

Die ausführliche Version dieses Artikels ist erschienen in TEC21 27/2023 «Roh und unverputzt».

Sanierung Friedhofsgebäude und Abdankungshalle, Birsfelden BL

 

Bauherrschaft
Einwohnergemeinde Birsfelden

 

Architektur
Backes Zarali Architekten, Basel

 

Architektur Bestand
Zimmer & Ringger ­Architekten, 1964 –1966, Basel

 

Tragwerksplanung
Schmidt + Partner ­Bauingenieure, Basel

 

HLK-Planung
Classen Haustechnik, Basel

 

Sanitärplanung
Unico, Basel

 

Bauphysik
Ehrsam Beurret Partner, Pratteln

 

Elektroplanung
Eplan, Reinach

 

Lichtplanung
hübschergestaltet, Basel

 

Brandschutzplanung
Quantum Brandschutz, Basel

 

Baukosten (BKP 2)
3.1 Mio. Fr.

 

Grundfläche (SIA 416)
1197 m2

 

Volumen (SIA 416)
4562 m3

Magazine

Verwandte Beiträge