Neu­es Bau­en im Block­rand

Das Architekturbüro Neume schafft genossenschaftlichen Wohnraum im Basler Lysbüchel-Quartier. Lehmziegel, Beton und Holz setzen sich in der Blockrandbebauung der Stiftung Habitat stimmig in Szene. 

Publikationsdatum
02-12-2025

Ein Backsteinhaus im Blockrand: An welches Jahrhundert denken Sie? Dass Baumaterialien, Architektur und Städtebau der vorletzten Jahrhundertwende auch zeitgenössisch auftreten können, zeigen die Architektinnen und Architekten von Neume mit Dirty Harry auf dem Lysbüchel. 

Der Backstein etwa ist gar nicht gebacken, sondern gestampft – eine nachhaltigere Alternative zur herkömmlichen Variante, die bei rund 900 °C im fossil betriebenen Ofen gebrannt werden. Während die Innenseite der Lehmziegel roh belassen wurde, ist die Aussenseite aus Witterungsgründen mit Mörtel eingeschlemmt. 

Weitere spannende Projekte auf dem Areal Lysbüchel finden Sie im E-Dossier «Volta Nord»

Die hellbeigen Lehmziegel der Fassade werden vom grauen Sichtbeton der Geschossdecken unterbrochen, raumhohe Holzfenster mit hölzernen Rollläden bringen zusätzliche Wärme in die stimmige Materialkomposition der Fassade. Ein prominenter Erker mit seitlichen Balkonen ragt schräg aus der Fassade hervor und markiert den Hauseingang. 

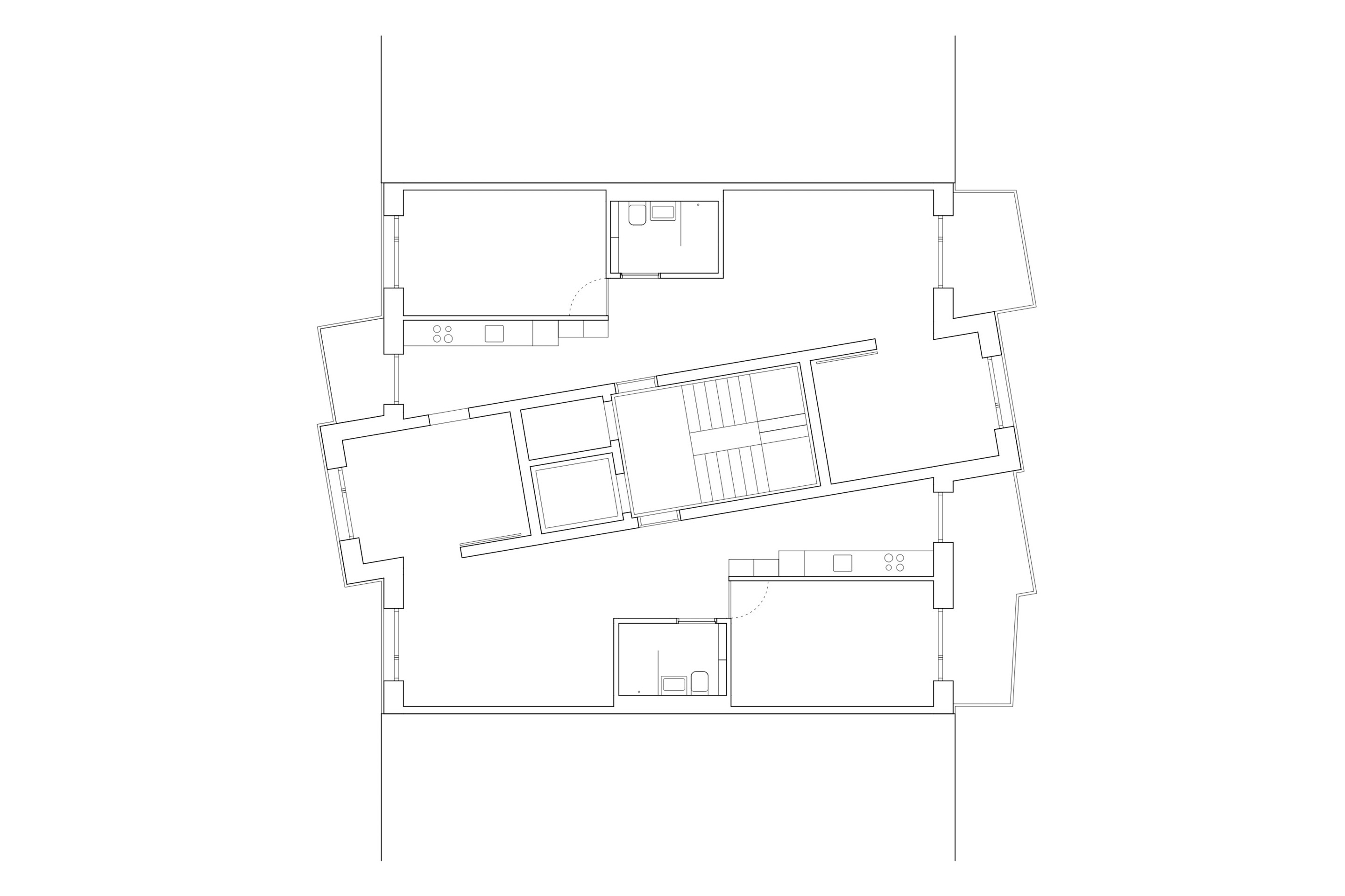
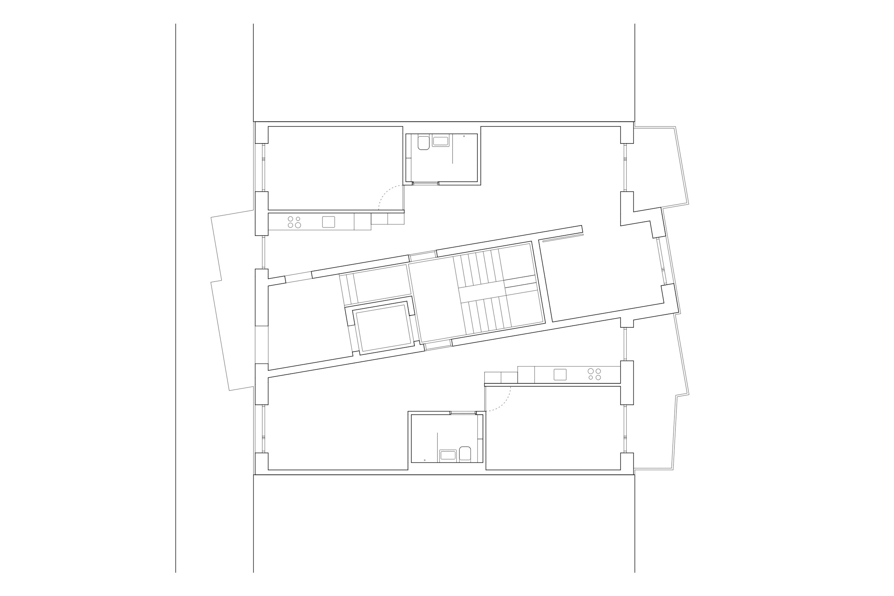
Anpassbare Wohnungsgrössen

Die Schräge des Erkers zieht sich als Erschliessungskern durch das Haus hindurch und formt die Wohnungsgrundrisse. Diese sind punktgespiegelt zueinander angelegt und weiten sich perspektivisch entweder zum Hof oder zur Strasse aus. 

Jeweils zwei Zimmer im schrägen Kern können den Wohnungen zugeschlagen werden: So wachsen die elf Wohnungen im genossenschaftlichen Haus je nach Bedarf von 2.5 bis zu 4.5 Zimmern an. 

Im Dachgeschoss befindet sich zudem eine grosse Gemeinschaftsküche mit grosszügiger Terrasse, die auch fremdvermietet wird, sowie ein Gästezimmer und ein zusätzliches Badezimmer mit Badewanne, denn in den Wohnungen gibt es nur Duschen. 

Materialkanon: Lehmstein, Beton, Holz

Auch im Innern prägen Beton, Holz und Lehmstein die Wohnungen: Anhydritböden und Decken sind in grauem Sichtbeton gehalten, die nicht tragenden Aussenwände zeigen ihre Materialität auch im Innern, während Trennwände, Türen und Einbauten in hellem Birkenholz einen warmen Kontrast setzen. 

So schafft die präzise Wahl der Materialien innen wie aussen ein ruhiges und stimmiges Gesamtbild, das auch im Gegenüber des durchmischten Strassenbilds überzeugt. Eine Architektur, die das Konstruktive und die Materialität ihrer Komponenten feiert und sich unaufdringlich mit selbstbewusster Geste ihren Platz im Blockrand behauptet.

Städtebau der Zonenordnung

Der Blockrand selbst war natürlich vorgegeben, trägt aber doch wesentlich zum Gesamteindruck der Arealentwicklung bei und zeigt, dass diese städtebauliche Form keinesfalls veraltet ist. 

Nach dem Verkauf des ehemaligen Industrieareals Lysbüchel an die Stadt Basel und die Stiftung Habitat übernahm die Stiftung denjenigen Teil des Areals, der bereits in der Wohnzone war und ohne Sondernutzungsplanung – und ohne Verzögerung und Referendum – entwickelt werden konnte. 

Kleine Parzellierung

Zwei Aspekte stechen hervor: Einerseits schliesst das neue Entwicklungsareal durch den Blockrand ganz selbstverständlich an das alte Quartier an. Es gibt keinen Unterbruch, keinen Taktwechsel im Städtebau, sondern die Strasse wächst einfach weiter und der neue Blockrand schliesst nahtlos an den alten an. 

Dieses nahtlose Weiterwachsen hat aber auch mit dem zweiten Aspekt zu tun, der kleinen Parzellierung, die die Stiftung Habitat ebenfalls weiterführt. Die meisten der elf Parzellen im Blockrand hat die Stiftung im Baurecht an Genossenschaften abgegeben, die sich im Rahmen einer Konzeptvergabe auf die Parzellen bewerben konnten. 

Vielfältiger neuer Blockrand

Das führt zu einem dichten und vielfältigen Nebeneinander unterschiedlicher Bauten, Fassadengestaltungen und Materialien – so, wie es für Entwicklungsareale zwar oft gewünscht, aber dann doch nicht umgesetzt wird. 

Der Blockrand des Lysbüchel zeigt ein zukunftsfähiges Modell für Arealentwicklungen: Klarer Städtebau, kleine Parzellierung und viele verschiedene Projektverantwortliche schaffen nicht nur lebenswerte Areale, sondern nebenbei auch gute Architektur.

Wohnhaus Dirty Harry, Basel

 

Bauherrschaft
Wohnbaugenossenschaft Point Commun

 

Architektur
NEUME, Basel

 

Tragkonstruktion
Berchtold+Tosoni, Sissach

 

HLKS-Planung
Fischer Industries, Sempach

 

Bauphysik
GS-Bauphysik & Akustik, Zürich

 

Baumanagement
Solvo Bauprojekt, Arlesheim

 

Fertigstellung: 2022

Holz: CH

Öko-/Energie-Labels: Baubiologie, LEA 

Kosten (BKP2): CHF 3.52 Mio

Verwandte Beiträge