Grün ge­wellt und wand­lungs­fä­hig

Das Wohnhaus Feld 4 von MASStudio auf dem Lysbüchel schafft mit schlichten Mitteln architektonische Stimmung und bietet den Bewohnenden dank flexiblen Wohnungsgrössen langfristige Perspektiven. 

Publikationsdatum
04-12-2025

Welleternit in schön schlammigem Grün ziert die geknickte Fassade des Wohnhauses an der Beckenstrasse – einem von vielen genossenschaftlichen Wohnprojekten, die hier zwischen 2021 und 2023 im Baurecht entstanden sind. Der Boden im südlichen Arealteil gehört der Stiftung Habitat, das gesamte Lysbüchel-Areal wird gemeinsam mit der Stadt Basel und der SBB unter dem Namen Volta Nord bis 2030 zum durchmischten Quartier entwickelt. 

Knick in der Fassade

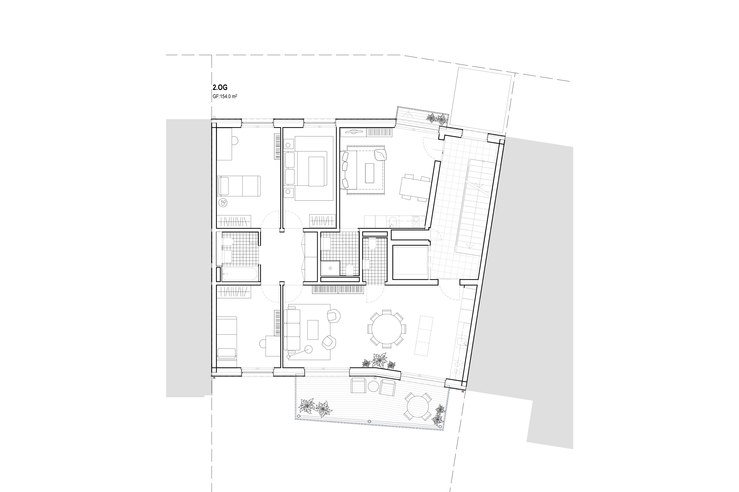
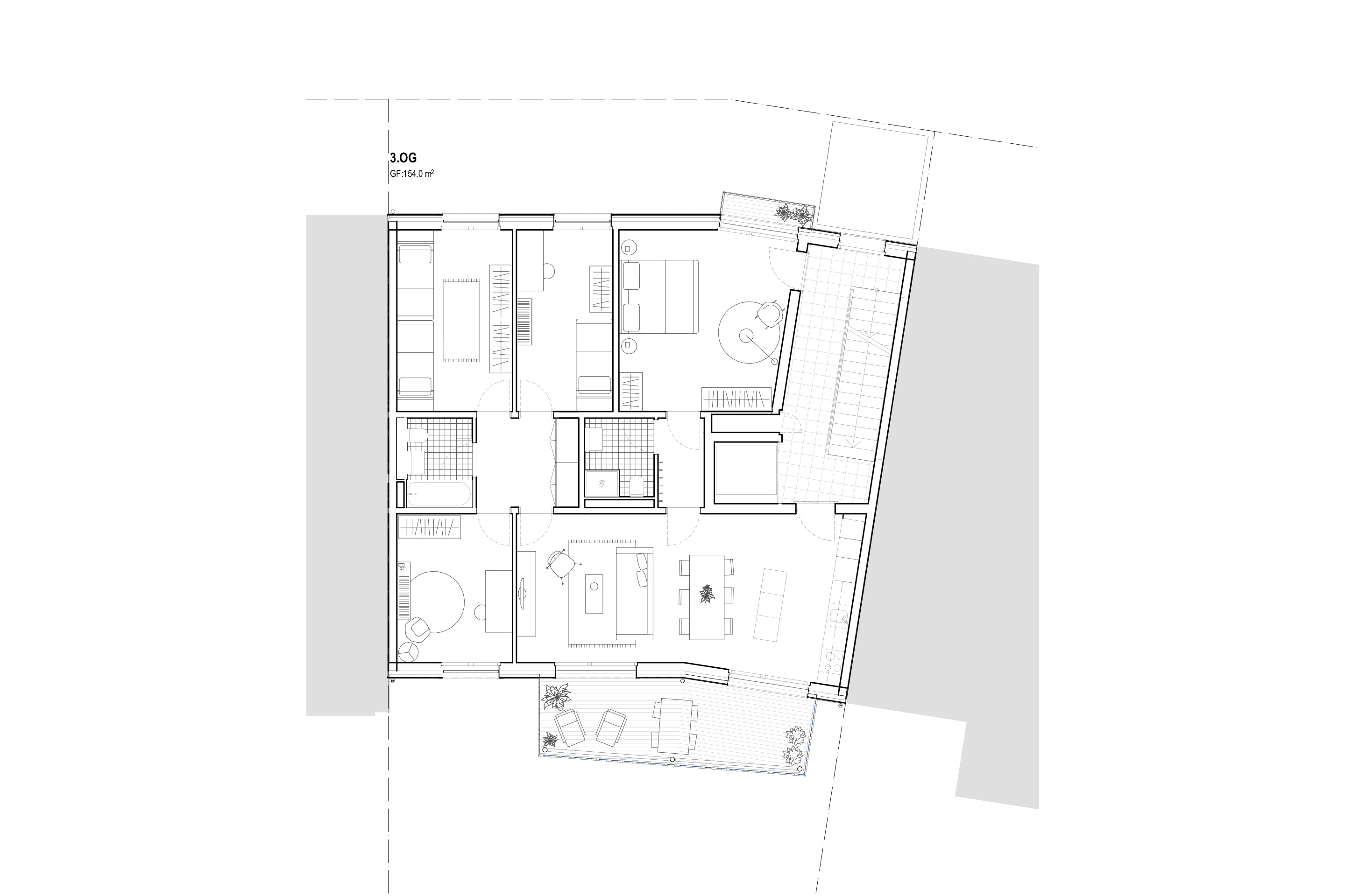
Eine Besonderheit gegenüber den anderen Parzellen im Blockrand der Stiftung Habitat ist der Knick im Grundriss, der auch an den Fassaden lesbar ist. Grosszügige Fenster und Balkontüren mit Holzrahmen setzen warme Akzente. Ein Lochmuster unterbricht die Wellen des Eternits links an der Fassade: Dahinter befindet sich das Treppenhaus, in das diffus gebrochenes Licht fällt. Auch hofseitig prägen grüne, gewellte Fassadenplatten und grosse Holzfenster die Erscheinung, dem Haus vorangestellt sind zimmergrosse Terrassen. 

Das Grün der Eternit-Fassaden harmoniert stimmig mit den Materialien der Innenräume. Die Farben der Küchen konnten die Genossenschaftsmitglieder selbst bestimmen, liegen aber alle im Spektrum von Blau bis Grün. Die Konstruktionsweise des Holz-Beton-Hybridbaus bleibt im Innern durch den geschliffenen Anhydrit-Estrichboden und die unverputzten hölzernen Aussenwände sichtbar, während Innenwände und Decke weiss verputzt sind.

Vom Studio zur 5.5-Zimmerwohnung

Im Erdgeschoss befinden sich eine 2.5-Zimmer-Wohnung sowie ein Veloraum und ein Gemeinschaftszimmer mit Küche, über das auch der Garten gemeinsam genutzt wird. Das Erdgeschoss bildet das Zentrum des gemeinschaftlichen Lebens im Haus, vom unverbindlichen täglichen Antreffen bis zum geplanten Zusammensein. Die oberen Stockwerke hingegen dienen als private Rückzugsräume. 

Weitere spannende Projekte auf dem Areal Lysbüchel finden Sie im E-Dossier "Volta Nord"

Während in anderen Häusern im Blockrand auch die Dachflächen gemeinsam genutzt werden, befinden sich hier auch unter dem Dach Wohnungen, um maximal viel Wohnraum zu schaffen. Im 5. Obergeschoss befinden sich eine 2.5-Zimmer-Wohnung sowie eine 4.5-Zimmer-Wohnung, die sich als Maisonette im obersten Dachgeschoss fortsetzt.  

Auf den Geschossen dazwischen wiederholen sich zwar die Grundrisse, die Wohnungsgrössen sind aber unterschiedlich und anpassbar: vom 1-Zimmer-Studio bis zur 5.5-Zimmer-Wohnung, die das ganze Geschoss einnimmt. Zwei Badezimmer, eine separate Toilette und etwas Stauraum sind kompakt in der mittleren Zone untergebracht. Die Anpassbarkeit der Grundrisse ist mitgeplant, etwa durch Aussparungen für Türen in Betonwänden und Trennwände in Leichtbauweise.

Partizipative Planung und langfristige Perspektive

Das Projekt entstand in enger Zusammenarbeit mit der Genossenschaft und wurde in Workshops von der Typologie bis zu den Details partizipativ entwickelt. 

Die grossen Wohnungen werden von Genossenschaftsmitgliedern bewohnt, die sich dem Belegungsgrundsatz «Personenzahl +1 = Anzahl Zimmer» verpflichtet haben. Demgegenüber vermietet die Genossenschaft die kleineren Wohnungen regulär. Dadurch fällt einerseits die Hürde einer Genossenschaftsbeteiligung weg und gleichzeitig lässt sich die Wohnungsaufteilung durch die Fluktuation in den Mietwohnungen verbessern.

Mit Feld 4 gelang es MASStudio, eine aufs Wesentliche reduzierte Architektur zu schaffen, die mit wenigen Akzenten viel Stimmung schafft. Darüber hinaus bietet sie durch die anpassbaren Grundrisse und die Kombination der Wohnformen den Bewohnenden eine Wohnumgebung, die auch langfristig ihren Bedürfnissen entspricht. 

Wohnhaus Feld 4

 

Fertigstellung: 2022

Bauherrschaft: Wohnbaugenossenschaft Feld 4, Basel

Architektur: MASStudio, Basel

Tragkonstruktion: Jauslin & Stebler, Basel

HLKS-Planung: HeiVi, Basel

Bauphysik: Gartenmann Engineering, Basel

PV-Planung: Planeco, Arlesheim

 

Kosten (BKP2)3.5 Mio. Fr.

Mietzinse266 Fr./m2/a

Verwandte Beiträge