Mo­no­kul­tur ist ein Aus­lauf­mo­dell

Vor 20 Jahren begann der Wandel des Industriequartiers zum boomenden Wohn- und Geschäftsquartier Züri-West. Nun legt die Stadt mit zwei Schulhäusern nach. Dasjenige mit beschwingter Architektur irritiert, das hingeklotzte passt.

Publikationsdatum
18-07-2019
Paul Knüsel
Fach- und Wissenschaftsjournalist bei Faktor Journalisten

Wow! Dieses Schulhaus hätten alle Kinder der Stadt Zürich verdient. Einem Clubhaus ähnlich ziert das lange und niedrige Gebäude (Architektur: Baumann Roserens Architekten Zürich) das nördliche Ende des Pfingstweidparks in Züri-West. Mit seiner doppelstöckigen Veranda und dem feinen Knicks in der Mitte verführt es in beschwingter Form.

Auch im Innern bewegt sich die Architektur auf Augenhöhe, selbst wenn die Hauptnutzniesser noch nicht ausgewachsen sind: Das Treppenhaus, der Flur und die Klassenzimmer sind hell und übersichtlich proportioniert. Auch die Garderoben hängen nicht zu hoch. Und wer vom Unterricht abschweifen darf, schaut durch die grossen Fenster hinaus auf einen wilden Spielplatz (Antòn & Ghiggi Landschaft Zürich) und dahinter einen grossen Park.

Diese Schule mit Blick aufs Grün ist bewundernswert leicht und filigran. Seine Pforte wird das «Pfingstweid» nach den Sommerferien, ab Mitte August, erstmals öffnen, für etwa 120 Primarschüler aus den benachbarten Wohnsiedlungen und dem Bundesasylzentrum schräg gegenüber. 

Die beschauliche Schulanlage steht an einer besonderen Lage. Zum einen mitten in Züri-West, wo in den letzten Jahrzehnten ein massiges und teures Boom- und Trendquartier hingeklotzt worden ist. Und zum anderen ist die Umgebung doch nicht ganz so privilegiert. Hier führt die Pfingstweidstrasse vorbei, eine Einfallsachse mit sechs Spuren. Das freundliche Schulhaus besitzt deshalb auch eine abweisende Seite, eine kühle Metallfront, an der sich leider der Hauptzugang befindet.

Um etwas Aufmerksamkeit buhlt einzig die Leuchtreklame auf dem Dach, drei Etagen über dem Boden. Sie ist Teil des Kunst-am-Bau-Projekts, das ausserdem aus einer Fotoarbeit im Innern und einer Skulptur im Park, auf der rückwärtigen Seite, besteht. Hierhin öffnet sich das Schulhaus mit der schicken Verandaschicht aus Holz. Diese ist nicht nur Schmuck, sondern auch ein Fluchtweg für Lehrpersonen und Kinder. Ebenso wenig verhehlt die zweigesichtige Architektur das städtebauliche Grundmotiv: Das über 100 m lange Gebäude schirmt den Stadtpark vom Lärm der Strasse ab.

Vielfältig perfektioniert

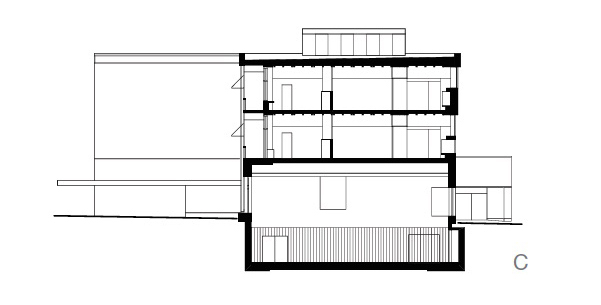
Der neue Schulstandort ist gleichwohl räumlich und konstruktiv perfektioniert: Sockel und Erschliessungskern sind massiv, die darüber liegenden Seitenflügel in leichter Holzelementbauweise erstellt. Im Osten befindet sich eine tiefergelegte Turnhalle; das Erdgeschoss daneben beherbergt einen lang gezogenen Raum, der flexibel zu einer Aula, einem Speisesaal mit Küche und/oder einem Lehrerzimmer unterteilt werden kann. Auf den zwei Obergeschossen befinden sich die Klassenzimmer, ergänzt mit Räumen zur Einzelbetreuung und, ein Novum in Zürcher Schulen, für die Musikschule.

Das Innenleben ist nicht allzu kompakt dimensioniert; trotzdem erfüllt es multifunktionale Ansprüche. Vor allem der rückwärtige Flur ist Erschliessungszone und passiver Lüftungskanal in einem. Hier strömt frische Aussenluft ein und gelangt ohne zusätzliche Leitungen und Rohre über Spezialdurchlässe in die Unterrichtsräume. Dezentrale Wärmetauscher konditionieren den Luftwechsel für jeden Raum klimatisch. Die Energie zum Heizen, für Warmwasser und Kühlung stammt aus dem CO2-armen Versorgungsnetz der benachbarten «City West», das Fernwärme und Grundwasser nutzt.

Architektur und Energiekonzept dürfen zu Recht auch von Erwachsenen und Fachleuten bewundert werden. Ein Aspekt irritiert trotzdem: Die Pfingstweidschule funktioniert nur als Abschluss des Parks. Inmitten wuchtiger Hochhäuser, kompakter Wohnkomplexe und profaner Industriebauten wirkt der beschwingte Bau ansonsten ziemlich verloren. Züri-West hat hier vor allem grossformatige Monokultur erzeugt; durchmischtes Leben und urbane Vielfalt werden sehnlichst vermisst.

Der schmächtigen Schule fehlen aber Höhe, Grösse und Robustheit, um die disperse Nachbarschaft zu verorten. Der Fehler ist nicht die Schule an sich, sondern die unzureichende Bestellung. Diesem urbanen Standort wäre ein Gebäude mit zusätzlichen Dimensionen – an Grösse und öffentlichen Nutzungen – durchaus zuzumuten gewesen. Es wurde eine Chance verpasst, die junge städtebauliche Entwicklung zu verdichten.

Ein ungestümer Auftritt

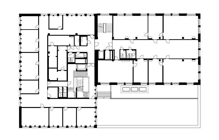
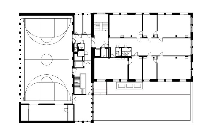
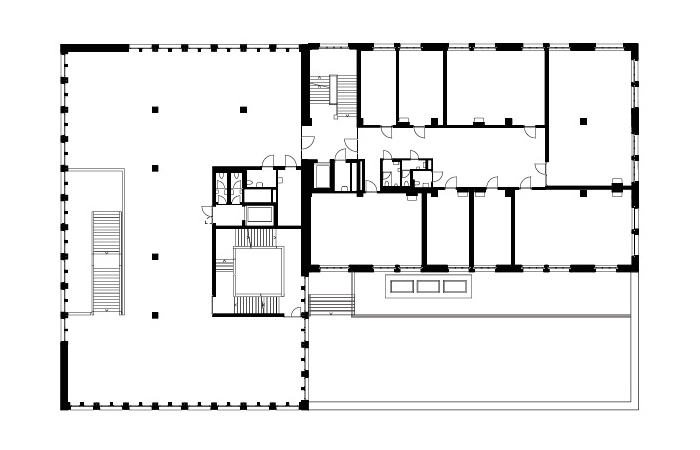
Nicht allzuweit von der Pfingstweid entfernt hat die Stadt diesbezüglich weitsichtiger gedacht und umfassender geplant. Immer noch im Kreis 5, direkt neben dem Escher-Wyss-Platz, steht das neue Schütze-Schulhaus «mit Sozialinfrastruktur». Nicht weniger als drei Stadträte führten die Medien gemeinsam durch die Anlage, die nach den Sommerferien in Etappen bis Frühjahr 2020 eröffnet werden kann. Involviert sind das Schulamt, das Tiefbauamt und das Sozialdepartement, weil eine fast zwei Hektar grosse Brache von der öffentlichen Hand multifunktional entwickelt worden ist.

Ab Mitte August sind das Schulhaus und das Quartierzentrum offen (Jonas Wüest Architekten Zürich); für den öffentlichen Park daneben (Planikum Landschaftsarchitektur und Umweltplanung Zürich) muss erst das Schulprovisorium entfernt werden. Das Gebaute wirkt – etwa im Vergleich zur Pfingstweidschule – deutlich weniger grosszügig als kompakt und weniger leichtfüssig als geklotzt. Und selbst der direkte Nachbar, ein umgenutztes Berufsschulhaus, wird durch den massiven und kantigen Neubau überformt.

Die Anlage auf dem Schütze-Areal wirkt zwar ungestüm, aber passt in die bestehende heterogene Umgebung. Der Clou daran ist weniger der grobe Auftritt, sondern die Konzentration mehrerer Ansprüche an einem Ort. Besonders ist auch die Vorgeschichte, die ihren Anfang vor über drei Jahrzehnten nahm und aus langwierigen Verhandlungen zwischen Stadt und Kanton bestand. Quintessenz war ein Grundstücksabtausch, der der Soziokultur im Quartier zugute kommt.

Im umgebauten Gebäude ist der neue Primarschultrakt untergebracht; ein zweigeschossiger Anbau auf der Rückseite beherbergt den Kindergarten. Und an die Stirn gestellt wurde ein grauer Kunststeinquader. Er enthält ein gestapeltes Raumprogramm, nämlich von oben nach unten: eine Dachturnhalle, Büros und Ausleihräume der Pestalozzibibliothek sowie einen Mehrzwecksaal und das ebenfalls öffentlich zugängliche Quartierzentrum. Die innere Gestaltung lehnt sich dem industriellen Ursprungscharakter dieses Quartiers an.

Der Aussenraum ist ebenfalls multifunktional unterteilt, mit Sportplatz, Klettergerüst und versiegelten Flächen zum Spielen. Einziges Manko: Dem Pausenplatz fehlen ein überdachter Bereich und eine grüne Wiese. Letztere wird der angrenzende Park nach Vollendung bieten, nicht aber einen Schutz vor Regen oder Schnee. Gemäss Auskunft von Grün Stadt Zürich sei der Standort dafür zu heikel. Das Schütze-Areal liegt direkt neben einer Ausgehmeile, und der neue Park soll für Nachtschwärmer nicht allzu attraktiv eingerichtet werden. Man kann verstehen, dass die Stadt nicht alle Interessen mit einem öffentlichen Angebot zufriedenstellen will.

Verwandte Beiträge