Mit zar­ter Hand

Die Villa Hotz ist eine prägnante Landmarke an der Uferpromenade von Zug. Die reiche Innenausstattung täuscht darüber hinweg, dass der Bau möglichst leicht sein muss, steht er doch auf sensiblem Grund. Die Stadt Zug und Melk Nigg Architects haben die Villa jüngst sorgfältig instand gesetzt. Das Motto: Mehrwert durch Reduktion.

Publikationsdatum
30-04-2020
Tina Cieslik
Head of Multimedia | espazium digital lab; Korrespondentin Architektur/Innenarchitektur TEC21

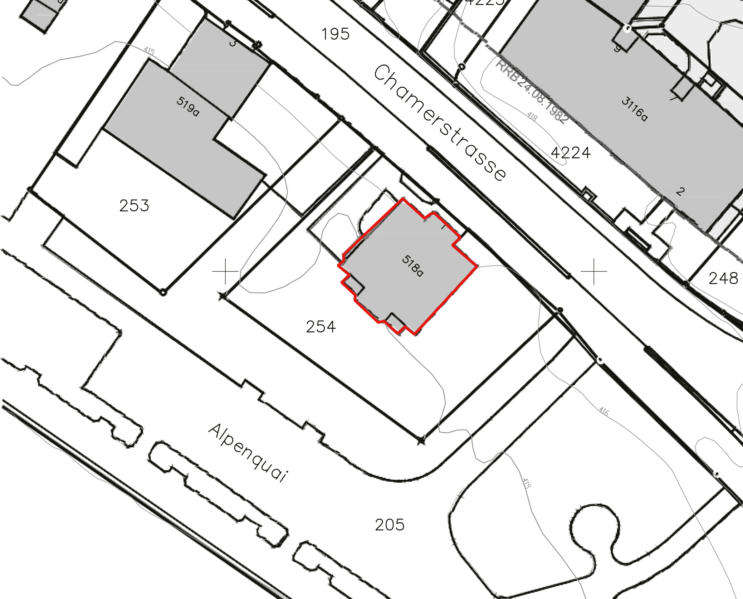
Er muss ein furchtloser Mann gewesen sein: 1927 liess der Rechtsanwalt Alois Hotz aus Baar für sich und seine Familie eine Villa am Alpenquai in der Zuger Vorstadt errichten. Die spektakuläre Lage des Grundstücks an der «Katastrophenbucht», der 1887 durch einen Abbruch der Uferzone entstandenen Küstenlinie, belohnte die Bewohner zwar mit einer unverbaubaren Sicht über den See bis zur Rigi. Der instabile Baugrund sorgte allerdings dafür, dass die Villa Richtung See kippte und sich Jahr für Jahr setzte, Letzteres bis heute, immerhin durchschnittlich um 2.5 bis 3.5 mm pro Jahr. Die Beeinträchtigung nahmen sie aber offensichtlich in Kauf.

Stadtbekannt als der «blonde Geiger», hatte Hotz nicht nur Gottvertrauen und musisches Talent, sondern auch Geschäftssinn und eine philantropische Ader: Mit dem Bau beauftragte er das lokale Baugeschäft Josef Kaiser, für die Planung zeichnete der dort angestellte Architekt Martin Müller verantwortlich – eine Art TU avant la lettre. Der Innenausbau aber diente als Experimentierfeld für lokale Handwerker und ihre Kunst.

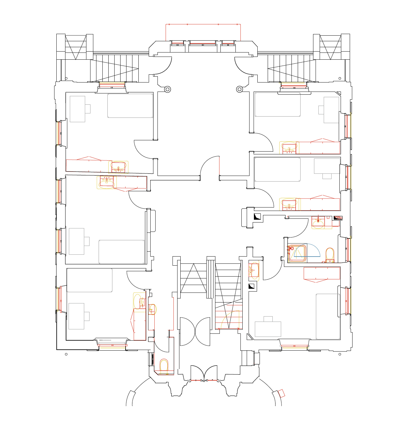
Und so präsentieren sich die Räume als Gegenentwurf des damals aufkommenden Neuen Bauens opulent und vielschichtig: Aufwendig geschnitzte Holzkapitelle mit Tierabbildungen grenzen an Wandbordüren aus Holz im Zahnschnitt, gedrechselte und furnierte Wandteile ergänzen Zimmer mit Seidentapeten. Es finden sich Marmor, Täfer und Leuchter aus Muranoglas. Zwei Kachelöfen mit Jugendstilmotiven in der «Alten Stube» und dem Wohnzimmer, beide im 1. Obergeschoss, bilden das Tüpfelchen auf dem i.

Der neobarocke Formenreichtum lässt vergessen, dass es sich bei dem scheinbar massiven fünfgeschossigen Bau um eine Holzkonstruktion handelt – wegen des schlechten Baugrunds musste Gewicht gespart werden (vgl. «Hausboot-Villa»). Um die Auf­lasten auf das Fundament zu minimieren, ist das leichte Mauerwerk daher durch eine tragende inwändige Holzkonstruktion ausgesteift.

Grosse Kelle oder Chirurgenskalpell?

Seit 1978 ist die Villa im Besitz der Stadt Zug. Sie vermietet die Liegenschaft seit rund 30 Jahren an die Stiftung Phönix, die darin begleitetes Wohnen für Menschen anbietet, die sich nach einer psychischen Krise neu orientieren. Die Villa bietet bis zu zwölf Personen Platz, die darin maximal drei Jahre lang wohnen. Mit der ­Änderung vom Privathaus zur Wohngemeinschaft hatte es Mitte der 1980er-Jahre einige bauliche Anpassungen gegeben, der Grossteil des Interieurs blieb aber erhalten.

2016 stand wieder eine Instandsetzung an: Einige Elemente wie Küche, Fenster, Sanitär- und Elektroanlagen hatten das Ende ihrer Lebensdauer erreicht. es zeigten sich technische Mängel, und wegen der ­Setzungen gab es kleinere Bauschäden. Im Zuge dieser Arbeiten galt es, die Villa auch hinsichtlich Brandschutz und Schallschutz zu ertüchtigen, allerdings ohne zusätzliches Gewicht einzubringen.

Die Villa und auch der ebenfalls weitgehend original erhaltene Garten sind Vertreter des grossbürgerlichen repräsentativen Wohnens im Heimatstil in Zug. Zu Beginn der aktuellen Instandsetzung standen sie nicht unter Denkmalschutz. Wegen seiner architektur- und sozialgeschichtlichen Bedeutung, der Lage und der ortsbildprägenden Funktion ist der Bau jedoch im Bundesinventar der schützenswerten Ortsbilder von nationaler Bedeutung aufgeführt. Zudem wurden Bau und Garten noch wärend der Planungsphase für die aktuelle Instand­setzung unter Schutz gestellt.

Dementsprechend erfolgte die Planung in enger Zusammenarbeit mit der Denkmalpflege. Im Zentrum stand die Frage nach dem richtigen Mass der Inter­ventionen: Wie tief soll man eingreifen, um die Villa mittelfristig nutzbar zu erhalten, aber auch ihrer ­Bedeutung als Baudenkmal gerecht zu werden? Was bedeutet in diesem Kontext Verhältnismässigkeit? Die Stadt Zug lud vier ortsansässige Büros ein, diese Fragen in einer Studie zu klären. Das Projekt des Nachwuchsbüros Melk Nigg Architects überzeugte die Bauherrschaft am meisten.

Eine ausführlichere Version dieses Artikels finden Sie in TEC21 12/2020 «Renovation mit Augenmass».

Am Bau Beteiligte

Bauherrschaft
Stadt Zug, Baudepartement, Projektleitung Hochbau, Sandra Theurillat

Architektur Bestand
Martin Müller, Zug

Architektur und Bauleitung
Melk Nigg Architects, Zug

Tragkonstruktion Holz
Lauber Ingenieure, Luzern

Betonsockel und Abklärung zur Anhebung des Gebäudes
Meichtry & Widmer Bauingenieure, Zug

Geologie
Schläpfer & Partner, Zürich

Landschaftsarchitektur
Rainer Zulauf Landschaftsarchitekt, Zürich; Maximilian Kindt Landschaftsarchitektur, Baden

Restauration Oberflächen
Werner Reding, Einsiedeln

Restauration Holzarbeiten
Holzatelier Keiser, Zug

Fenster in Holz
Trütsch Fenster, Ibach

Baujahr
1925–1927

Instandsetzung
2017–2019

Kosten
2 Mio. Fr.

Verwandte Beiträge