Zum An­beis­sen: Li­se & Lot­te in Kö­niz

Die Architektinnen und Architekten von BHSF haben zwei Bürobauten von 2006 für die Bauherrschaft AXA zu attraktiven Wohnhäusern transformiert. Das Büro hat Erfahrung mit der Entwicklung von massgeschneiderten und tragfähigen Lösungen im Bestand.

Publikationsdatum
03-12-2024

Die altrosa und pastellgrünen Fassaden erinnern an die Auslage einer Patisserie. Auf dem Gebäuderiegel gegen die Strasse steht «Lise», auf dem L-förmigen Bau «Lotte» in Schreibschrift. Zusammen umfassen sie einen tiefer gelegenen Innenhof. Neu führen Metalltreppen durch den halbprivaten Aussenraum. Dass jetzt hier gewohnt wird, ist auch an den Lärm-Loggien gegen die Strasse und den geschwungenen Balkonen im Innenhof zu erkennen. 

Auf der anderen Seite der Sägestrasse steht ein Bürobau, der zeitgleich von Althaus Architekten entworfen wurde. Er zeigt, wie anonym die Bürohäuser zuvor gewirkt haben müssen: Horizontal wechseln sich helle Fassadenverkleidungen und dunkle Bandfenster ab. «Das neue Erscheinungsbild stärkt die Identifikation mit dem Bau, die Farbwahl nimmt Bezug auf historische Wohnbauten in Köniz», erläutert die Architektin Elitsa Lacaze. 

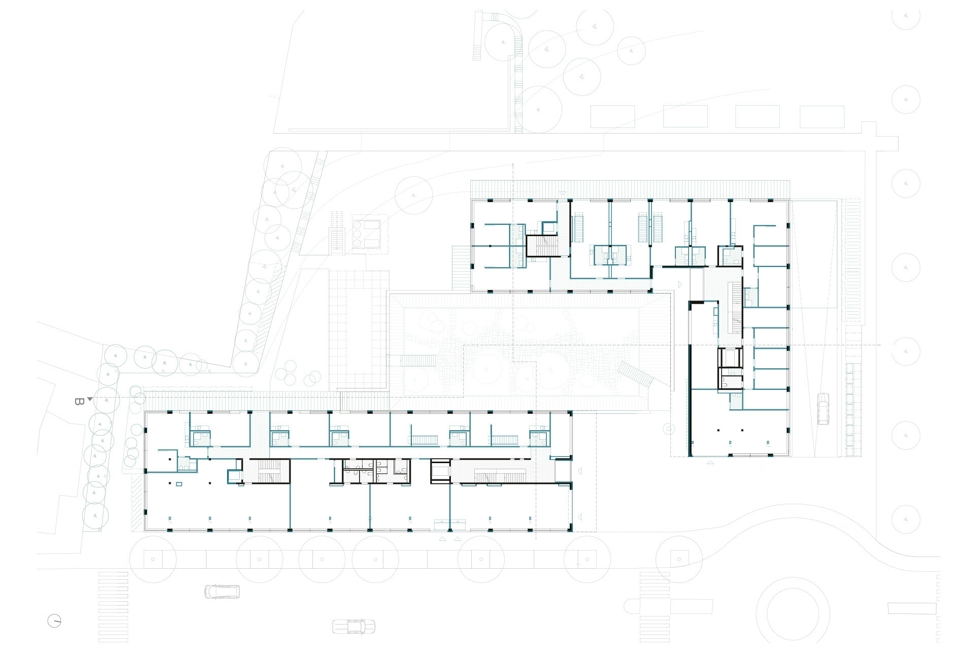
Die teils unkonventionellen Wohnungen scheinen «zum Anbeissen» zu sein. 81 der 84 Wohnungen waren ab dem ersten Tag vermietet. Yorick Stricker von der Liegenschaftsverwaltung Wincasa sagt, das habe er bei einer Erstvermietung noch nie zuvor erlebt. Die zweigeschossigen Wohnungen gegen den Innenhof, von den Architekten Nomad-Units genannt, haben einen eigenen Parkplatz und werden aus der Tiefgarage über ein Reduit erschlossen. In den Obergeschossen orientieren sich die Wohnungen entlang der horizontalen Bandfenster. 

Grundriss-Layout und Innenausbau zeigen eine auf Büromasse heruntergebrochene Loft-Typologie. Die Böden wurden nach dem Entfernen der Teppiche roh belassen und die Küchen mit mobilen Oberschränken ausgestattet. Diese sind eine Adaption der Küchen, die BHSF für den Berner Holligerhof entwickelt hat. Der Bewohnerschaft steht ein ergänzendes Möblierungsangebot zur Verfügung: Mobile Schränke, Pflanzentöpfe und bunte Sonnenschirme können erworben werden.

Dieser Artikel ist erschienen im Sonderheft Immobilien und Energie «Metamorphose: Aus Büros werden Wohnungen». Weitere Beiträge zum Thema finden Sie in unserem digitalen Dossier. 

Die AXA hat die Charta für kreislauforientiertes Bauen unterzeichnet. Sie entschied sich einerseits gegen den Abriss, um graue Energie zu erhalten, und andererseits aus wirtschaftlichen Gründen – das Grundstück hatte keine Ausnutzungsreserve. Da die Gebäude erst 20 Jahre alt waren, konnte die Haustechnik weiter genutzt werden; der Anschluss ans Fernwärmenetz wird in naher Zukunft erfolgen. Zentral für das Gelingen des Projekts waren laut Bauherrschaft ein enger Kostenrahmen und das innovative Nutzungskonzept.

Das Wohnangebot bewegt sich zwischen zeitgemässen Ansprüchen und genossenschaftlichen Ideen. Es brauche Kompensationsräume, da die Wohnungen kompakt geschnitten seien, so Lacaze. Der Bewohnerschaft stehen ein Gemeinschafts-, ein Sportraum mit Sauna und ein Business-Hub zur Verfügung. 

Dort sitzt ein junger Mann hinter seinem Laptop. Er hat eine 2.5-Zimmer-Wohnung für rund 1600 CHF inklusive Nebenkosten bezogen und schätzt es, nicht in der eigenen Wohnung arbeiten zu müssen. Gegen 50 % der Bewohnenden sind unter 34 Jahre alt und etwa 20 % über 60. Für Familien sind die Wohnungen mit wenigen abtrennbaren Zimmern nicht attraktiv; Kleinhaushalte stehen im Fokus.

Der Bestand hatte viele Räume, für die ein passendes Programm gefunden werden musste. So bietet der grosszügige Veloraum in der Tiefgarage problemlos Platz für Lastenvelos oder Reparaturen. Gegen die Tiefgarageneinfahrt befinden sich Jokerzimmer zur temporären Nutzung; für Wohnungen wäre es an dieser Stelle zu laut. 

Kreislaufwirtschaftliches Bauen

An der Gebäudestruktur aus Stahlbeton haben die Architekten wenig verändert. Die Treppenanlagen sind dort geblieben, wo sie waren, es mussten keine grösseren Erdbebenmassnahmen ergriffen werden. Wo nötig, wurden Durchbrüche für einen Lift, Lichthof oder einen neuen Durchgang vorgenommen. Auch die Fassadenverkleidung sollte ursprünglich erhalten bleiben. Es zeigte sich aber auf der Baustelle, dass diese trotz jüngeren Baualters in einem schlechten Zustand war und ersetzt werden musste. Durch eine Aufdopplung mit einem Holzflügel erreichen die bestehenden Fenster nun die Normwerte. 

Manche Bauteile konnten vor Ort an neuer Stelle weiterverwendet werden, wie zum Beispiel die Glaswände zwischen Waschküche und Korridor oder die Bodenplatten im Innenhof. Diese waren früher unter der Pergola im Erdgeschoss verlegt. Wiederverwendet ist auch die bunte Briefkastenanlage aus unterschiedlichen Modellen. Telquel übernommen wurde die Pergola im gemeinsamen Aussenraum.

Aus energetischer Sicht fällt der Erhalt der Tragstruktur mit den Erschliessungskernen am meisten ins Gewicht. Die Nutzung von wiederverwendeten Bauteilen widerspiegelt eine kreislauforientierte Haltung und trägt zur Etablierung einer neuen Ästhetik bei. Diese konzentriert sich auf den Bestandserhalt und das Schöne im Unvollkommenen. 

Flexibilität ist gefragt

Das Raumprogramm aus dem Wettbewerbsprojekt ist weitgehend gleich geblieben. Das Gesicht des Baus hat sich hingegen verändert. Wo ursprünglich gemeinsame Balkontürme zum Grillieren geplant waren, liegen nun private Aussenräume. Für die Studios um die 30 m2 ergibt sich dadurch eine grosszügige saisonale Erweiterung des Wohnraums. 

Wegen dieser Fassadenänderung musste das Projekt indes nochmals von der Jury begutachtet und die Sondernutzungsplanung der Gemeinde angepasst werden. Minh Ly von der AXA betont, es brauche bei einem solchen Projekt Flexibilität von allen, von den Behörden bis hin zur Bewohnerschaft. Mieterinnen und Mieter müssen wiederverwendete Materialien als «Industrial Chic» und Beitrag zur Kreislaufwirtschaft akzeptieren. «Lise & Lotte ist eine Erfolgsgeschichte mit einem unkonventionellen und marktfähigen Wohnprodukt. Aus dem lehrreichen Prozess können wir viel Know-how mitnehmen», so Ly. 

Dieser Artikel ist erschienen im Sonderheft Immobilien und Energie «Metamorphose: Aus Büros werden Wohnungen». Weitere Beiträge zum Thema finden Sie in unserem digitalen Dossier. 

Umnutzung Lise & Lotte, Köniz
 

Bauherrschaft
AXA Leben, p/a AXA Investment Managers Schweiz, Winterthur 


Architektur/Generalplanung: 
BHSF Architekten, Zürich/München 


Baumanagement und Brandschutzplanung: 
Itten Brechbühl, Bern


Landschaftsarchitektur: 
Klötzli Friedli Landschaftsarchitektur, Bern


Tragkonstruktion
Lorenz Kocher, Chur


HLKSE-Planung: 
Wirkungsgrad Ingenieure, Luzern mit PZM, Zürich (Subplaner für Elektro und PV)


Bauphysik und Nachhaltigkeit: 
EK Energiekonzepte, Zürich


Holz-Metallfenster: 4B, Hochdorf


Transformation: 2019–2024


Label: GEAK B

Verwandte Beiträge