Hei­mat im Heim

Projektwettbewerb Neubau Pflegewohnhaus Mettenweg, Stans

Ein Pflegeheim ohne Pflegeheimarchitektur, so lautete die Aufgabenstellung für den Neubau des Pflegewohnhauses Mettenweg in Stans. Dass diese Forderung nur bedingt zu lösen war, zeigt das Siegerprojekt von Bob Gysin Partner Architekten und Hager Partner.

Publikationsdatum
29-11-2018
Revision
29-11-2018
Tina Cieslik
Head of Multimedia | espazium digital lab; Korrespondentin Architektur/Innenarchitektur TEC21

Betagte, Menschen mit psychischen Beeinträchtigungen oder Suchtkranke – das Pflegeheim Mettenweg im nidwalderischen Stans beherbergt ganz unterschiedliche Bewohner. Das war schon immer so: 1867 kaufte die Gemeinde das «Trachslerische Haus», ein Patrizierwohnhaus aus dem 16. Jahrhundert, und funktionierte es zum Armenhaus um – wie damals üblich, gesellschaftskonform am Ortsrand platziert. 1903 wurde das Ensemble, das auch den Landwirt­­schaftsbetrieb «Milchbrunnen» umfasste, um ein Waisenhaus ergänzt, später zog hier das «Centro Italiano» ein.

Nun aber sind diese beiden Wohnhäuser des Ensembles in die Jahre ge­kommen. Schon 2011 wurde die Betriebsbewilligung durch die Gesundheits- und Sozialdirektion nur unter Vorbehalt erteilt. Fehlende Bettenlifte oder Etagenduschen sind heute nicht mehr zeitgemäss.

Statt einer Modernisierung  der bestehenden Liegenschaften fasste die Gemeinde einen Neubau für 45 Bewohnerinnen und Bewohner ins Auge, aufgeteilt auf acht Wohngruppen. Er soll auf der Parzelle zwischen dem Franzosengaden, einem ehemaligen Holzschopf aus der Mitte des 19. Jahrhunderts, und der Tagesstätte zu stehen kommen. Das bisherige «Wohnhaus Centro» soll zukünftig Plätze für betreutes Wohnen bieten, für das ehemalige Trachslerische Haus, das heutige «Wohnhaus Mettenweg», sind preisgünstige Wohnungen angedacht.

Lange Wartezeit

Der Spatenstich für den Neubau ist allerdings erst für das Frühjahr 2021 geplant, die Eröffnung für 2022 vorgesehen. Der lange Vorlauf ist dem Finanzierungsmodell geschuldet: Der Kanton wird sich mit einem zinslosen Darlehen an den anvisierten Baukosten von 21.5 Mio. Franken beteiligen, wofür allerdings eine Baubewilligung bis Ende 2019 vorliegen muss. Da aber zunächst das Wohnhaus Centro umgebaut werden soll, müssen die Planungen für den ­Neubau bereits jetzt beginnen.

Unmöglicher Spagat

Die historische Bausubstanz des ­Bestands war Fluch und Segen zugleich: Zwar ist der Komfort nicht mehr zeitgemäss, die Struktur des Altbaus sorgte aber auch dafür, dass keine kühle, auf Hygiene und Effi­zienz getrimmte Heimatmosphäre herrschte. Entsprechend beliebt ist die Einrichtung in der Region.

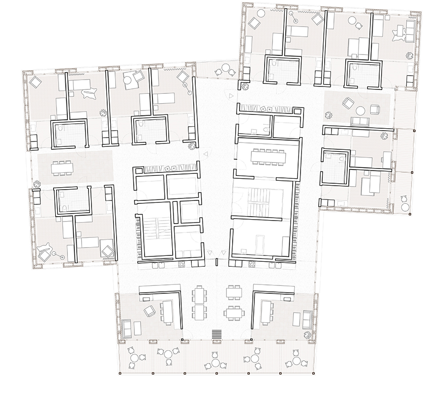
Diese architektonische Qualität wollten die Auftraggeber im Neubau unbedingt beibehalten. Tatsächlich ist das aber nur teilweise möglich: Die nötige Infrastruktur mit Pflegebad, Waschküche oder ­Stationszimmer unterscheidet den Heim- von einem «normalen» Wohnungsgrundriss, auch wenn die ­Betriebsräume wie beim Siegerprojekt «Tilia» dezent im Gebäudekern angeordnet sind. Letztendlich ist es wohl eine  Frage der Defini­tion: Das klassische Heim mit den langen Gängen und dem grossen Speisesaal hat schon seit einiger Zeit ausgedient, stattdessen ist die Anordnung in Wohngruppen üblich und hat sich bewährt. Im Fall des Pflegeheims Mettenweg ist sie schon allein wegen der hetero­genen Bewohnerschaft sinnvoll.

Ähnlicher Ansatz, unterschiedliche Umsetzung

62 Teams aus Architekten und ­Landschaftsarchitekten hatten sich um die Teilnahme beworben, zehn durften ihre Projekte einreichen. Die ersten drei der vier rangierten Entwürfe unterscheiden sich weniger in der kompakten Volumetrie und der innenräumlichen Anordnung – Zimmer entlang der Fassaden, Betriebsräume im Zentrum – als in der Fassaden- und Aussenraum­gestaltung.

Der viertrangierte Entwurf «Stubete» des Nachwuchsteams Huber Waser Mühlebach mit Fahrni Landschaftsarchitekten schlägt dagegen ein L-förmiges Volumen aus zwei rechteckigen Häusern vor, die autark konzipiert sind, sich aber ­berühren und an dieser Stelle auch miteinander verbunden sind.

Mehr als aufgeräumt

Der Siegerentwurf «Tilia» von Bob Gysin Partner Architekten und ­Hager Partner meistert die Pflicht und brilliert in der Kür: Leichte ­Drehungen in der Fassade ermög­lichen differenzierte öffentliche ­Innenräume mit Rückzugsnischen sowie zusätzliche Balkone, die das Tageslicht ins Innere bringen, ­während die eigentlichen Zimmer logisch entlang der Fassade auf­gereiht sind. Pro Geschoss sind jeweils zwei Wohngruppen à sechs Personen untergebracht, je zwei ­Bewohnerinnen oder Bewohner teilen sich ein Badezimmer. Die öffentlichen Bereiche sind als Wohn­küchen und -stuben gestaltet und vermeiden so die Korridoratmo­sphäre einer Erschliessungszone. Bei Bedarf können sie geschossweise verbunden werden. Die Schrägen haben noch einen weiteren ­Vorteil:  Die maximale Distanz zu den im Kern platzierten Fluchttreppen bleibt so jeweils unter 20 m, ­sodass  auf Fluchtkorridore verzichtet werden kann.

Neben der gelungenen innenräumlichen Disposition überzeugt auch die schöne Aussenraumgestaltung: Ein Kleintiergehege und ein Grillplatz bieten eine hohe Aufenthaltsqualität. Die leichte ­Einbuchtung an der Westfassade ak­zentuiert den Haupteingang und lässt gleichzeitig Raum für einen eigentlichen Dorfplatz im Zentrum des Ensembles – inklusive Dorfbrunnen. Die notwendigen Park­plätze sind im Untergeschoss des Baus angeordnet.

Heim oder daheim?

«Eine Pflegeheimatmosphäre ist zwingend zu vermeiden», wünschte die Gemeinde im Wettbewerbsprogramm. Im Rahmen der Möglichkeiten ist das den Planern gelungen. Man kann sich gut vorstellen, dass das Heim zu einer echten Heimat für die zukünftigen Bewohnerinnen und Bewohner werden könnte – sollte es dereinst dann auch tatsächlich gebaut sein.

Weitere Pläne und Bilder finden Sie in der Rubrik Wettbewerbe.

Auszeichnungen


1. Rang, 1. Preis: «Tilia»
Bob Gysin + Partner BGP Architekten, Zürich; Hager Partner, Zürich


2. Rang, 2. Preis: «dreiklang»
ARGE Lengacher Emmenegger Partner, blgp architekten, Luzern; Christoph Wey Landschaftsarchitekten, Luzern


3. Rang, 3. Preis: «Bei den Linden»
Lussi + Partner, Luzern; koepflipartner Landschafts­architekten, Luzern


4. Rang, 4. Preis: «Stubete»
Huber Waser Mühlebach, Luzern (Nachwuchsteam); Fahrni Landschaftsarchitekten, Luzern


FachJury
 

Hans Cometti, Architekt, Luzern (Vorsitz)

Ivo Lütolf, Architekt, Luzern

Franz Bucher, Architekt, Luzern

Sandra Remund, Architektin, Luzern

Stefan Rotzler, Landschaftsarchitekt, Zürich
 

SachJury
 

Alfred Bossard, Regierungsrat und Finanzdirektor Kanton Nidwalden

Martin Mathis, Gemeinderat Gemeinde Stans, Architekt

Markus Kayser, Leiter Wohnhaus Mettenweg

Markus Spillmann, Dipl. Sozialarbeit FH, MAS Betriebsökonomie

Weitere Teilnehmer
 

Liechti Graf Zumsteg, Brugg; David Bosshard Landschaftsarchitekten, Bern


Ernst Niklaus Fausch Partner, Zürich, Raymond Vogel Landschaften, Zürich


Itten + Brechbühl, Bern; Weber + Brönnimann, Bern


atelier ww Architekten, Zürich; Cadrage Landschafts­architekten, Zürich


ro.ma.roeoesli & maeder, Luzern; Ganz Landschafts­architekten, Zürich


camponovo baumgartner architekten (Nachwuchsteam); Caroline Riede, Landschaftsarchitektin, beide Zürich

Verwandte Beiträge