Die öko­no­mi­sche Lo­gik ge­winnt

Studienauftrag Instandsetzung / Erweiterung Hauptsitz Energie 360°, Zürich Altstetten

Das Zürcher Energieunternehmen Energie 360° will seinen Geschäftssitz ausbauen, Reduktion des ökologischen Fussabdrucks inklusive. Die eingeladenen Gesamtplanerteams entwarfen äusserst unterschiedliche Varianten. Progressive Ideen fanden bei der Jury keinen Zuspruch.

Publikationsdatum
07-02-2019
Revision
07-02-2019
Paul Knüsel
Fach- und Wissenschaftsjournalist bei Faktor Journalisten

Ein kurzer Reminder für alle Schülerinnen und Schüler, die freitags für den Klimaschutz demonstrieren: Die Stadt Zürich ist sich der laut vorgetragenen Anliegen bereits bewusst. Seit 2006 setzt die Kommunalbehörde die Ziele der 2000-Watt-Gesellschaft um und will den nächsten Generationen ein weitgehend CO2-freies Wohnen, Lernen und Arbeiten ermöglichen. Der Anfangserfolg lässt trotzdem auf sich warten: Die Treibhausgasbilanz einer Stadtzürcherin, eines Stadtzürchers ist erst um 10 % geringer geworden. Zwar ist der Primär­energieaufwand in den vergangenen 13 Jahren um fast ein Drittel gesunken, aber noch immer werden in Zürich zu viele fossile Energie­träger konsumiert.

Für das Beheizen der 55 000 Gebäude auf Stadtboden wird am häufigsten Erdgas genutzt. Was wäre da wirkungsvoller, als den Ausbau der erneuerbaren Energie im Immobiliensektor weiter zu fördern? Die geplante Erweiterung des Hauptsitzes von Energie 360° würde dazu eine symbolhafte Gelegenheit bieten. Das Unternehmen ist fast vollständig im Besitz der Stadt und verantwortlich für die Erdgasversorgung. Seit wenigen Jahren investiert man in ökologische Wärmenetze inner- und ausserhalb Zürichs. Nun sollen die Zentrale räumlich erweitert und die Zahl der Arbeitsplätze fast ver­doppelt werden.

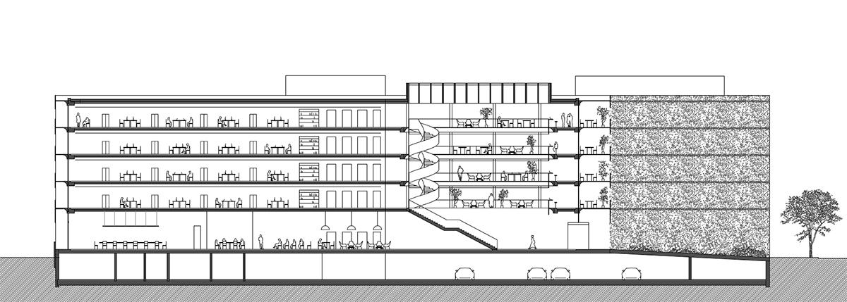
Der bestehende Bürobau von 2003 liegt beim S-Bahnhof Zürich Altstetten, mit einem Werkhof im Erdgeschoss und vier Büroetagen darüber (Architektur: muellerueli.architekten, Basel). Architektur und Energiekonzept des Minergie-Objekts wirken bis heute zeitgemäss und solide. Erdgas erzeugt die Heizwärme, Sonnenkollektoren liefern CO2-freie Energie für das Warmwasser.

Zur Erweiterung schrieb die Stadt Zürich einen selektiven Stu­dienauftrag aus. Eine Vorgabe war die Zertifizierung gemäss Minergie-P-Eco. Das Feld der 38 Bewerbungen aus Architekten und Generalplanern reduzierte man auf fünf Teams; im vergangenen Herbst wurde der Wettbewerb entschieden. Hat man nun die Chance gepackt, ein für die Klimazukunft wegweisendes Projekt auszuwählen?

Kontrastreiche Entwürfe

Bei der Auswahl konnte die Jury aus dem Vollen schöpfen. Die Bandbreite der Umbauideen reichte von robuster Lowtech-Strategie bis zum technoiden Plusenergiebau. Sowohl Eingriffstiefe als auch Architektursprache sind kontrastreich und anschaulich ausformuliert.

Am Ende entschied man sich für den Vorschlag, der die Mitte bereits im Namen sucht, und ­empfahl das Projekt «Balance» zur Weiter­bearbeitung. Die heute geschlossene Westfassade wird darin zur transparenten Eingangsfront umfunk­tioniert. Dazu stellen die ­Archi­tekten dem Bestand eine über­höhte Glas­vitrine voran. Neben der geglückten Adressbildung lobt die Jury vor allem die «präzise und kompakte» Intervention und hebt die Flächen­effizienz hervor. Dass sich Neu und Alt im Innern zum ­offenen ­Ganzen mit Begegnungsorten, flexiblen ­Arbeitsräumen oder Coworking-Spaces ­verbinden sollen, war Teil des ­funktionalen Auftragsprogramms. Dabei galt es, die Anzahl der Arbeitsplätze beinahe zu verdoppeln. Aus den fünf Entwürfen wurde derjenige Vorschlag ­aus­erkoren, der die erwünschte ­Verwandlung mit höchster ökonomischer Logik verbindet.

Die Krux: der Glasanteil

Aber wie werden die ökologischen Anforderungen erfüllt? Auch hier gab man der pragmatischen Lösung den Vorzug; Effizienz und Kompaktheit waren die ausschlaggebenden Kriterien. Ein Makel ist allerdings der hohe Glasanteil; die Büros hinter der Westfassade sind vor der Sonne zu wenig gut geschützt. Die Jury verlangt daher eine Überarbeitung des sommerlichen Wärmeschutzes. Denn auch das ist über den Klimawandel bereits bekannt: Die Städte heizen sich saisonal stärker auf und erhöhen den Kühlbedarf in Büro­häusern, wenn keine konstruktive Vorsorge geleistet wird. Es ist zu befürchten, dass der Konsum von elektrischer Energie zum Kühlen steigt, was den Erfolg im Wärmeschutz beeinträchtigen kann.

Das Projekt «Kon-Tiki» verfolgt eine vergleichbare Erweiterungsstrategie. Doch die zusätzliche Fassadenschicht ist hier eine massive, thermisch ausgleichendere Konstruktion. Dieses energetische Plus führt laut Juryurteil aber zu einem unverständlichen Bruch in der Gebäudearchitektur. Bestand und Anbau verbinden sich tektonisch nicht.

Die energetische und architektonische Metamorphose wagen dagegen «Piano nobile» und «Powerplant»: Sie stecken Altes und Neues in eine vollständig verwandelte ­Solararchitektur. Die beiden Hüllen fallen jedoch gegensätzlich aus: Im ersten Fall ist das Gebäude in dunkle, geneigte PV-Bänder eingefasst, die von oben nach unten drücken. Im zweiten Fall erzeugen bewegliche und vertikal aufgerichtete Solarpaneele eine fliegende Ästhetik.

Das Solarthema etwas dezenter aufgegriffen, aber dafür geschickt mit städtebaulichen Anpassungen verknüpft hat das Projekt «Inclusion». Dem Bestand wird ein abgewinkelter Zwillingsflügel angesetzt. Dessen verglaste Hülle erlaubt die Solarstromproduktion; ihre Bänderung setzt zudem den bisherigen Ausdruck fort. Das Plus der neuen Gebäudeform: Der Haupteingang befindet sich neu im geschützten Scheitel und wendet sich von der viel befahrenen Europabrücke ab. Die Jury – ohne Energiefachperson – vermisste auch hier die Kompaktheit und eine ökonomisch effiziente Organisation respektive befürchtete einen zu grossen Umbauaufwand.

Was heisst das nun für ­Zürichs Klimabilanz? Man geht auch bei der Wahl der Energieversorgung pragmatisch vor: Nicht das Gebäude selbst muss die Energiewende lösen, sondern sich als sparsamer Konsument im urbanen Umfeld ökologisch vernetzen. Denn zwar schlagen alle Projekte vor, einen Anteil an Solarstrom selbst zu produzieren. Doch die Energie zum Heizen und Kühlen soll dereinst nicht mit Erdgas erzeugt werden, sondern mithilfe des darunter liegenden Grundwasserstroms. Dessen Energie wird bereits gefasst und in einem Quartiernetz für die Liegenschaften rund um den Bahnhof Altstetten bereitgestellt. Diesen noch jungen Verbund betreibt allerdings nicht Energie 360°; zuständig dafür ist ein anderes Energieunternehmen der Stadt – der Stromversorger ewz.

Weitere Pläne und Bilder finden Sie in der Rubrik Wettbewerbe.

Weiterbearbeitung


«Balance»: ARGE architekturbüro bosshard und partner, Zürich, mit jessenvol­lenweider architektur, Basel; Wohnbedarf wb, Zürich / Basel; Dr. Lüchinger + Meyer Bauingenieure, Zürich; Hefti.Hess.Martignoni, Zürich; Waldhauser + Hermann, Münchenstein; Stauffer Rösch Landschaftsarchitekten, Basel


Weitere Teilnehmer


«Kon-Tiki»: Nissen Wentzlaff Archi­tekten, Basel; WMM Ingenieure, Münchenstein; Amstein + Walthert, Zürich; pg landschaften, Sissach

«Piano Nobile»: Berrel Berrel Kräutler Architekten, Zürich; Ulaga Partner, Basel; Amstein + Walthert, Zürich, Vitra, Birsfelden; ASP Landschafts­architekten, Zürich

«Powerplant»: ARGE Corinna Menn, Chur, mit Mark Ammann Architekten, Zürich; GMS Partner, Zürich-Flug­hafen; ingegneri pedrazzini guidotti, Lugano; Bühler + Scherler, St. Gallen; Beag Engineering, Winterthur; Büronauten, Zürich; Albiez de Tomasi Landschaftsarchitekten, Zürich

«Inclusion»: Penzel Valier, Zürich; Hefti.Hess.Martignoni, Zürich; Gruner Gruneko, Basel; Maurus Schifferli Landschaftsarchitekten, Bern

FachJury
 

Ursula Müller, Amt für Hochbauten Zürich (Vorsitz)
 

Oliver Dufner, Architekt, Baden
 

Michael Geschwentner, Architekt, Zürich
 

Sabrina Contratto Ménard, Architektin, Zürich
 

Corina Schneider, Amt für Städtebau Zürich (Ersatz)

Verwandte Beiträge