Flug­ha­fen Tem­pel­hof: Auf neu­en We­gen durch die Ge­schich­te

Mit dem Flughafen Tempelhof hat Berlin ein 300 ha grosses Gelände in der Stadt geerbt. Nun wartet das Flughafengebäude auf eine sinnvolle Belebung. Der Kopfbau ganz im Westen beherbergt eine Ausstellung zur Geschichte des Orts. Die Erschliessung des gleichermassen baufälligen wie ikonischen Baus lösten :mlzd und Dr. Lüchinger + Meyer Bauingenieure mit einem Kniff.

Publikationsdatum
20-11-2023

Zunächst einige historische Fakten, die die besondere bauliche Situation erklären: Das monumentale Flughafengebäude, das aus der Luft wie ein Adler aussieht, wurde gegen Ende des Zweiten Weltkriegs errichtet. Parallel zur nahenden Kapitulation des Naziregimes gingen dabei allerdings die Baustoffe zur Neige. Von Ost nach West nahm die Qualität und Quantität der verwendeten Materialien ab. Der Ausbau der 13 grossen Treppenhäuser, die wie Reiter in der halbkreisförmigen Phalanx stecken, kam zum Erliegen.

Nach Ende des Krieges übernahmen die amerikanischen Alliierten den Flughafen – von hier aus organisierten sie die Ausreise aus der DDR und anschliessend die Luftbrücke. Mit minimalem Aufwand machten sie sich die Erschliessungen und Räume nutzbar. Nach Mauerfall und Einstellung des Flugbetriebs im Jahr 2008 eroberte sich die Stadt das Gelände zurück. Das innerstädtisch gelegene Flugfeld dient seither als Labor für die unterschiedlichsten Projekte und ist immer wieder Gegenstand politischer Diskussionen im Zusammenhang mit der akuten Wohnungsnot in Berlin.

Unbestritten ist das Bedürfnis, die wechselvolle Geschichte vor Ort zugänglich zu machen. Der Bausenat unter der damaligen Bausenatorin Regula Lüscher schrieb 2016 einen eingeladenen Wettbewerb für einen Veranstaltungs- und Ausstellungsbereich im obersten Stockwerk des westlichsten Gebäudeteils aus, den das Architekturbüro :mlzd aus Biel für sich entscheiden konnte.

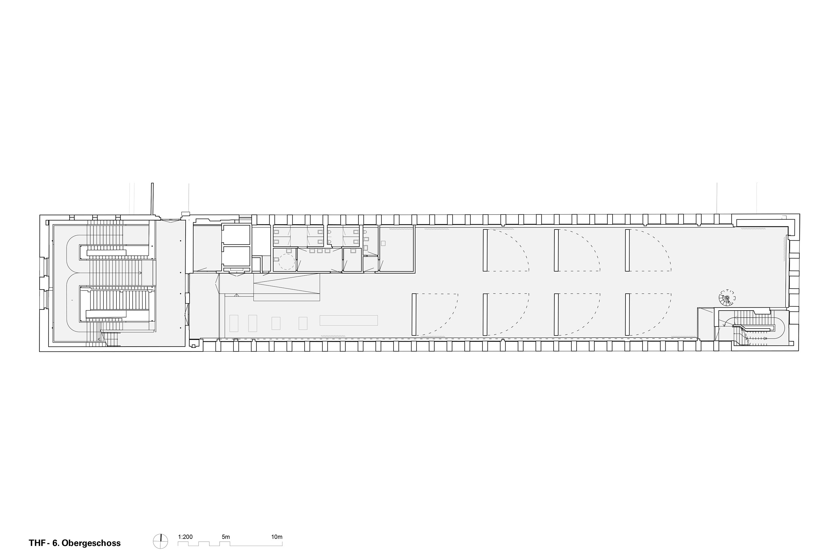
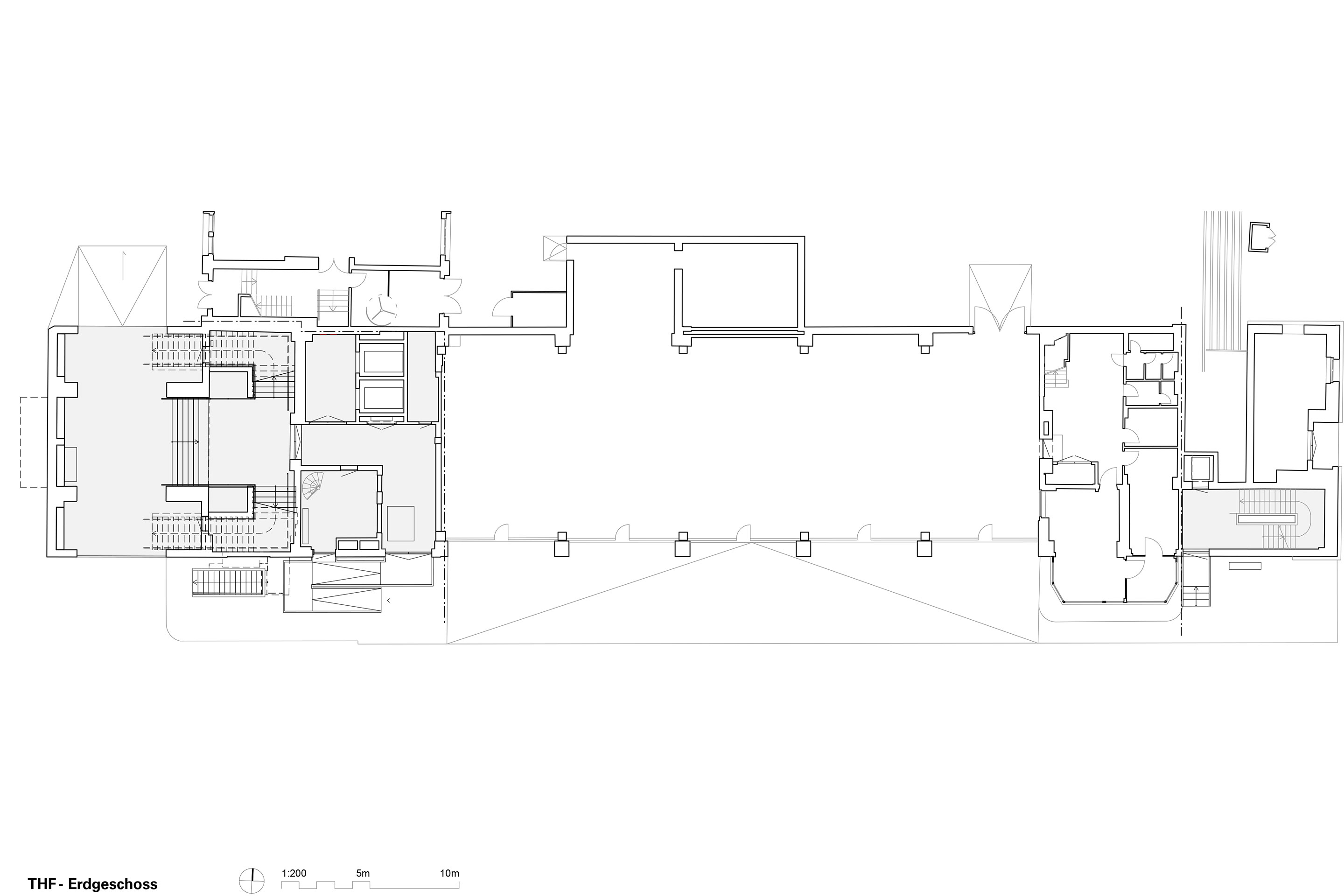
Zu der Ausstellungsetage gehört der Aufgang durch eines der unfertigen Treppenhäuser und die Dachterrasse, auf der sich der ehemalige Tower befindet. Im Verlauf der Bearbeitung kam noch die Sanierung einzelner Büroetagen hinzu. Die doppelgeschossige Feuerwehrhalle im Erdgeschoss bleibt unberührt – hier ist die zukünftige Nutzung ungeklärt. Auf diese Weise kam der u-förmige Perimeter zustande, den die Architekten bearbeiteten.

Spektakulär ist vor allem der Umgang mit dem bestehenden Treppenhaus, den sie zusammen mit dem Bauingenieurbüro Dr. Lüchinger + Meyer planten. Ungeachtet der baulichen Mängel unterliegt das gesamte Gebäude dem höchsten Denkmalschutz und verlangt nach sensiblem Vorgehen.

Überraschungen in der Bausubstanz

Anders, als die steinerne Aussenhaut vermuten lässt, entpuppte sich das Traggerüst als filigrane Stahlkonstruktion. Nur der Treppenturm ist aus Beton und Mauerwerk gebaut. Aber auch dieser stellte sich als nicht mehr belastbar heraus, zumal die Anforderungen an ein öffentlich genutztes Bauteil höher liegen. Eine weitere Überraschung war der Beginn der Treppenläufe erst ab dem ersten Obergeschoss: Die Besuchenden sollten über eine aussenliegende Brücke direkt in die oberen Räume gelangen. Das Erdgeschoss war der Zulieferung der Transportflugzeuge durch Lastwagen und Eisenbahn vorbehalten: Schienen führten durch seitliche Tore der ehemaligen Eisenbahndurchfahrt.

Dem Entwurf von :mlzd liegt die Maxime zugrunde, so viel bauliche Substanz wie möglich zu erhalten und zu zeigen. Das zweite bestimmende Element war die Veränderung des statischen Systems: Da der Bestand den Anforderungen insgesamt nicht genügte, galt es, ihn zu ertüchtigen und jegliche neue Baulast sowie die Nutzlast direkt abzutragen. Zwischen diesen beiden Ansprüchen entstand eine aussergewöhnliche Architektur, die sich vor allem in dem raffinierten Treppenhaus zeigt.

Räumliches Rätsel

Die Eingangshalle bleibt Teil des Aussenraums. Ein neu eingestellter Treppenlauf führt ins erste Obergeschoss. Dort, wo eigentlich die Brücke für die Besuchenden andocken sollte, haben die Architekten ein begehbares Schaufenster eingefügt – es ist die einzige von aussen sichtbare Intervention. Hier beginnt die alte dreiläufige Betontreppe, die weder abgerissen noch ertüchtigt werden konnte. Die neue Treppe windet sich freitragend als Stahlkonstruktion um die musealen Treppenläufe herum, führt über sie hinweg und wirkt zusammen mit dem Bestand wie ein Vexierbild. Rohbauwände, von den Alliierten nutzbar gemachte Bauteile und die schwarze Stahltreppe bilden die bauzeitlichen und politischen Etappen ab.

Die gesamte Stahlkonstruktion hängt über verblüffend zarten Zugstangen am neuen Dach und berührt den Bestand nicht. Die enorme Last wird über einen Stahlkranz abgetragen, der auf zwei bestehenden Wänden aufgelagert ist. Das alte Dach drohte einzustürzen und konnte daher durch ein Stahl-Glas-Oberlicht ersetzt werden. Pat Tanner, Projektarchitekt von :mlzd, verdeutlicht die komplizierte Logistik an einem Detail: «Für das Einbringen der Stahlträger waren manchmal nur wenige Zentimeter Platz. An einer Stelle haben wir noch schnell eine Tür in der Seitenwand geöffnet, die sonst für immer hätte geschlossen bleiben müssen. So konnte ein weiterer Einblick in den Bestand erhalten werden.»

Um die Stahlstruktur des Gebäudes zu ertüchtigen, hätte sie an rund 700 Knoten verstärkt werden müssen. Stattdessen entschieden sich die Planenden, ein zusätzliches Stahlgerüst einzufügen, sodass die Spannweiten der bestehenden Struktur verkürzt werden konnten, um das System zu entlasten.

In der Ausstellungsetage selbst zeichnen die mobilen Wände die frühere Zellenstruktur der Büros nach. Zurzeit ist mithilfe von Fotos, Plänen und Berichten die Geschichte des Orts bis zu gewagten Zukunftsvisionen nachzuvollziehen. Dass die Mittel für die Ausstellung begrenzt sind, zeigt sich in der kargen Ausstattung, für die auch gebrauchte Elemente herhalten – was an sich lobenswert ist, aber dem Gesamteindruck nicht guttut.

Besondere Räume verdienen besonderen Inhalt

Am anderen Ende der Ausstellungsebene, von wo sich das Flugfeld überschauen lässt, gelangt man über eine ertüchtigte Spindeltreppe hinauf in den Tower. Das verblüffend kleine Glashaus wartet noch auf einen gastronomischen Betrieb. Bereits begehbar und auch barrierefrei zu erreichen ist die angeschlossene Dachterrasse. Die gesamte Fläche ist mit Holzdielen belegt – einem Material, das im Gebäude sonst nicht anzutreffen ist. Es symbolisiert die neue, ortsuntypische Nutzung. Vom rückwärtig gelegenen Lift bis zum Tower steigt der Boden an. Zu den Seiten treppt er sich ab, sodass das aussenliegende Geländer aus dem Sichtfeld rückt und sich das 360-Grad-Panorama ungestört eröffnet.

Mit der Gestaltung des Treppenhauses, das die vergangenen Nutzungen erlebbar macht, und mit der Öffnung der Dachterrasse sind zwei beeindruckende Räume entstanden. Das eigentliche Zentrum des Geschehens, der Ausstellungsraum, bedarf noch eines tragfähigen Inhalts, um in diesem Kontinuum seine eigene Rolle zu finden. 

Verwandte Beiträge