Old­ti­mer, auf­po­liert

Etwas Politur, kleine Ausbesserungen und eine energetische Ertüchtigung reichten, um die Aluminium­fassade eines Büro­hauses zu sanieren. Ein wegwei­sendes Re-Use-Projekt – günstiger, ökologischer, hochwertiger und identitätsstiftender als jeder Ersatz.

Publikationsdatum
11-08-2023

Wir stehen an der Dufourstrasse in Basel und betrachten das Bürohaus der Basler Kantonalbank BKB auf der gegenüberliegenden Seite. Zwischen zwei Brandwänden ragt das Gebäude sechs Geschosse in die Höhe und präsentiert sich mit einer schillernden Fassade, die in ihren gestalterischen Grundzügen seit 1966 unverändert geblieben ist. Dass das Haus sein Gesicht behalten durfte und in neuem Glanz erstrahlt, ist nicht selbstverständlich. Der Glücksfall verdankt sich dem Verständnis des Architekten David Vaner für den Wert des ursprünglich verwendeten Materials und die bauliche Qualität seiner Verarbeitung, der Offenheit der Bauherrschaft und nicht zuletzt auch der Einbeziehung qualifizierter Handwerksleute. Bei flüchtiger Betrachtung scheint das Äussere des Gebäudes unverändert, doch hier verbirgt sich ein Musterbeispiel der Kreislaufwirtschaft.

Design for Disassembly, avant la lettre

Das 1966 von Vischer Architekten erbaute Bürohaus erhielt nach nur 30 Jahren eine neue, jedoch identische Fassade. Weitere 25 Jahre später sollte diese aufgrund des unzureichenden energietechnischen Wärmeschutzes erneut ersetzt werden. Bei der ersten Begehung stellte Architekt Vaner jedoch fest, dass die hochwertige Vorhangfassade in erster Linie verschmutzt war. Zwar waren energieertüchtigende Massnahmen und das Auswechseln einzelner Teile notwendig, ein vollständiger Ersatz schien ihm jedoch nicht zwingend. Die Erstellung eines Fassadenmockups im Innenhof sowie Variantenstudien – von einer oberflächlichen Pflege der Fassade über eine energetische Ertüchtigung bis zu einem Komplettersatz – bestätigten diese Vermutung. Nicht zuletzt zeigte sich, dass eine Ertüchtigung der bestehenden Fassade gegenüber ihrem vollständigen Ersatz eine Kostenersparnis von über einer halben Million Franken ermöglichen würde.

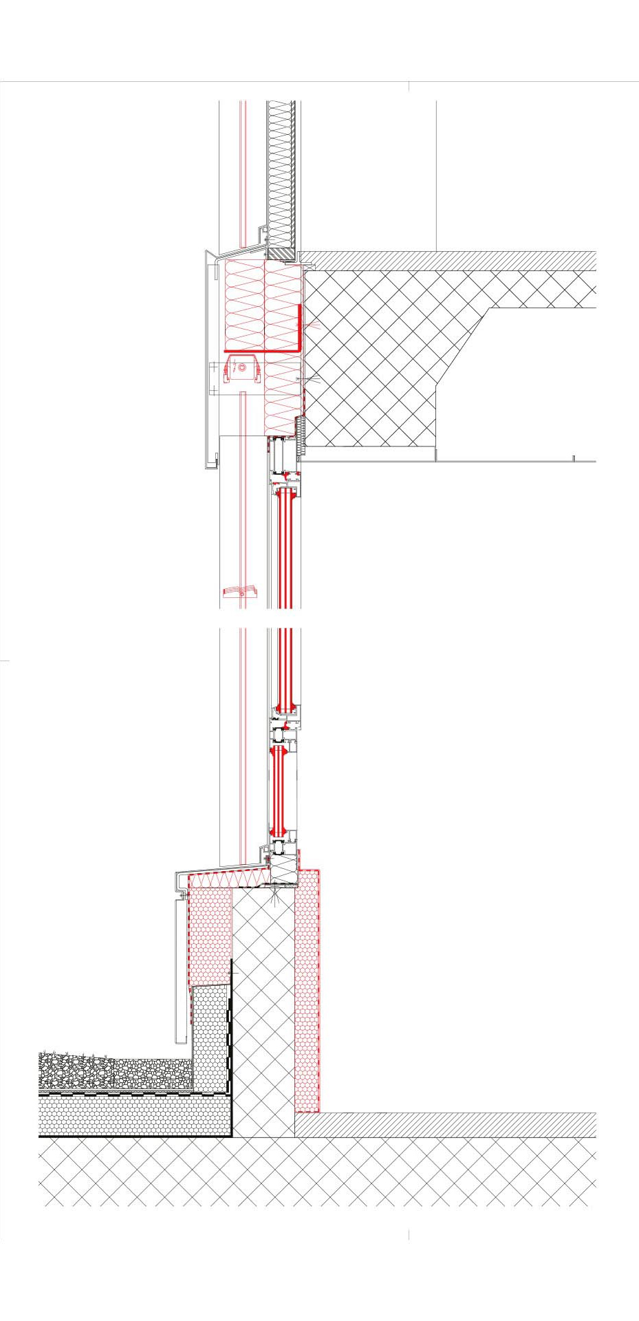
Laut Angaben der Industrie waren die Fassadenbauteile am Ende ihres Lebenszyklus angekommen. Diese prognostizierte Lebensdauer beruht jedoch auf statistischen Werten. Im konkreten Fall mag sie für einzelne Elemente zutreffen, für andere jedoch nicht; alles auszuwechseln, ist nicht immer notwendig. Das BKB-Bürogebäude verfügt über eine vorgehängte Pfosten-Riegel-Fassade mit einer ausgeklügelten, bemerkenswerten Konstruktion: Die einzelnen Elemente sind geschossweise an den Deckenstirnen befestigt und lassen sich von oben nach unten aushaken, sodass die De- und Remontage problemlos möglich ist. Zudem wurde bei der konstruktiven Verarbeitung auf Silikonfugen oder Verklebungen zwischen den Elementen verzichtet. Entlang der gesamten Fassade erfolgt die Ableitung des Regenwassers über elegante Knicke in den Lisenen und über Rinnen, die hinter den Brüstungsblechen versteckt sind.

Einmal durch die Waschstrasse

Die qualitativ hochwertige Fassade aus 3–4 mm starken, mit einer besonders dicken Eloxierschicht versehenen Aluminiumblechen vergleicht Architekt David Vaner mit einem Oldtimer: Ein solch altes und eigentlich unzeitgemässes Fahrzeug wird für seinen Charakter geschätzt und nostalgisch geliebt, gepflegt und repariert, ungeachtet der Kosten. An Verschrottung oder Ersatz wäre niemals zu denken. Also entwarfen die Architekten keine neue Fassade, sondern einen Erhaltungsprozess.

Zunächst errichtete man in der hauseigenen Tiefgarage eine Waschstrasse. Die eloxierten Aluminiumelemente wurden demontiert und grösstenteils in den bestehenden Personenliften durch das Haus transportiert, was zusätzlich Kosten und Emissionen einsparte. Die 73 mm breiten Fensterprofile aus der Sanierung 1994 ermöglichten den Ersatz der Doppelverglasung durch eine Dreifachverglasung mit schmaleren Dichtungen. Ein bestehender Leerraum hinter den Fassadenelementen aus Aluminium erlaubte die Aufdopplung der Dämmstärken im Bereich der Storenkästen und Pfosten. Die gereinigten Elemente wurden wieder an den Ortbetonstützen des Skelettbaus verankert. Die Fassadenreihe eines Stockwerks tauschte man jeweils innerhalb einer Woche aus. Insgesamt mussten lediglich zwei der 500 eloxierten Paneele ersetzt werden, die übrigen wurden schlichtweg mit Wasser gewaschen und wie Silberbesteck mit Polierpaste neu aufpoliert.

Kollektive Gesamtleistung

Dieses Beispiel zeigt auch, dass die Kreislaufwirtschaft nicht nur die Umwälzung der Stoffströme reduziert, sondern auch das regionale Handwerk fördert. Die Notwendigkeit, intensiv vor Ort zu arbeiten und einen grossen handwerklichen Wissens- und Erfahrungsschatz zu nutzen, entschied im Ausschreibungsprozess zugunsten lokaler Betriebe. So fiel die Wahl unter sechs Fassadenexperten auf die Firma Gerber-Vogt aus Allschwil. In gemeinsamen Versuchen testeten die Beteiligten verschiedene Polituren, entwickelten Werkzeuge und lernten voneinander. Eine Stärke des Projekts liegt im Verständnis von Architektur als kollektiver Gesamtleistung – und nicht als Selbstverwirklichung eines Architekten-Egos. Der auf den ersten Blick unspektakuläre Eingriff verdient Beachtung und Nachahmung. Anstatt wie üblich ein Endprodukt anzustreben, liegt die hohe Leistung in der Vordenkerrolle, im Entwurf eines Ablaufs, in der Herleitung und Annäherung an einen neuen Zustand. Das Projekt ist wegweisend für eine verantwortungsvolle Architekturpraxis des 21. Jahrhunderts. Zum reinen Gestaltungswillen kommen ökologische und soziale Verantwortung hinzu. Es geht um ein Umdenken oder vielmehr ein Rückbesinnen auf Pflege, Werterhalt und das Sorgetragen für aufwendig und energie-intensiv hergestellter Bauten.

Dieser Artikel ist erschienen in «Fassaden | Façades | Facciate 2023 – Nachhaltige Ansätze».

Weitere Beiträge zum Thema finden Sie in unserem digitalen Dossier.

Fassadensanierung Bürogebäude Dufourstrasse 38, Basel

 

Bauherrschaft
Basler Kantonalbank BKB, Basel

 

Bauherrenvertretung
ObjektWerkstatt, Dornach

 

Architektur
David Vaner Architektur, Basel

 

Fassadenplanung
Christoph Etter Fassadenplanungen, Basel

 

Fassadenbau
Gerber-Vogt, Allschwil

 

Planungsbüro für das Bauen im Kreislauf
Zirkular, Basel

 

Bauphysik, Akustik, Energie
Gartenmann Engineering, Zürich

 

HLKS-Planung
HeiVi, Basel

 

Gebäudeautomation
Hälg Group, Basel

 

Facts & Figures

 

Planung
2019–2021

 

Ausführung
März–November 2023

 

Geschossfläche GF (SIA 416)
5449 m2

 

Fassadenfläche
1101 m2, davon Glasanteil: 378 m2

 

Volumen (SIA 416)
12 355 m3

 

Baukosten Aluminiumfassade
950 000 CHF

 

Baukosten Dach und Solaranlage
350 000 CHF

 

Fassadenmaterial
Aluminium eloxiert, Aluminium pulverbeschichtet

 

PV-Anlage auf dem Dach
101 Solarmodule Megasol M430-HC108-w BF GG U30b, ­ Peakleistung: ca. 44.72 kW, ­Ertragsschätzung: 40 500 kWh/Jahr

Verwandte Beiträge