Auf­ge­wer­tet und den­noch be­zahl­bar

Gesamterneuerung dreier Wohnbauten der Stiftung PWG

Die Stiftung PWG hat drei Wohnhäuser in Zürich gesamterneuert. Trotz Umbau bleiben die Mieten erschwinglich.

Publikationsdatum
21-12-2017
Revision
21-12-2017

Schon seit 1990 arbeitet die PWG im Auftrag der günstigen Mieten. Nun hat die Stiftung drei Wohnhäuser in Zürich gesamterneuert, zwei davon im bewohnten Zustand. Eine solche Erneuerung fordert Bauarbeiter und Mieterschaft mehr als ein gewöhnlicher Umbau. «Ein bewohntes Haus stellt viel höhere Ansprüche an die Planung und erfordert ge­genseitige Rücksichtnahme», sagt PWG-Projektleiter Jürg Grob. Die Stiftung PWG versucht, Gesamt­erneuerungen so lang wie möglich hinauszuschieben und, wenn möglich, im bewohnten Zustand durchzuführen. So müssen die Mieter nicht auf ­Wohnungssuche gehen und können in ihrem angestammten Quartier bleiben. Wenn grosse Eingriffe an der Tragstruktur nötig sind, zum Beispiel zur Verbesserung der Erdbebensicherheit, ist der Mieterschaft ein Verbleib aber manchmal nicht zuzumuten. «In solchen Fällen bieten wir den Mietern nach Möglichkeit eine Ersatzwohnung an», sagt PWG-Geschäftsführer Jürg Steiner. 

Quellenstrasse 6: lebendiges Quartier

Die Liegenschaft Quellenstrasse 6 aus dem Baujahr 1891 gehört seit 1994 in den Gebäudepark der PWG. Der L-förmige Baukörper bildet den Abschluss eines Blockrands. Viele Bauteile stammen noch aus der Bauzeit und wurden nur minimal unterhalten oder im Lauf der Jahre ersetzt. Der technische Zustand des Gebäudes war heterogen und sollte mit einer Gesamtsanierung wieder auf ein einheitliches Niveau gebracht werden. Im Vorfeld wurde das Gebäude auf seine Erdbebentauglichkeit überprüft. Die Ertüchtigung der Erdbebensicherheit musste auch in den Wohnzimmern umgesetzt werden, und auch der teilweise schlechte Zustand der Tragstruktur erforderte bauliche Massnahmen. Eine Sanierung im bewohnten Zustand kam deshalb nicht infrage. Das Restaurant «Tibetasia», das schon vor zehn Jahren umgebaut wurde, konnte während der Arbeiten bis auf einen kleinen Unterbruch geöffnet bleiben. Die Gebäudehülle wurde gedämmt, die bestehende Zentralheizung erneuert und eine zentrale Warmwasserversorgung eingebaut. An der Wärmeverteilung wurden die alten Gussradiatoren wo möglich belassen.
 

Am Bau Beteilgte
 

Bauherrschaft
Stiftung PWG, Zürich


Architektur
Vollenweider Baurealisation, Zürich


Tragwerksplanung
Heyer Kaufmann Partner, Zürich


Bauleitung
Vollenweider Baurealisation, Zürich


Bauzeit
März bis Dezember 2016


Bausumme
Ca. 2.9 Mio. Fr.

 

Bertastrasse 73:  klein, aber fein

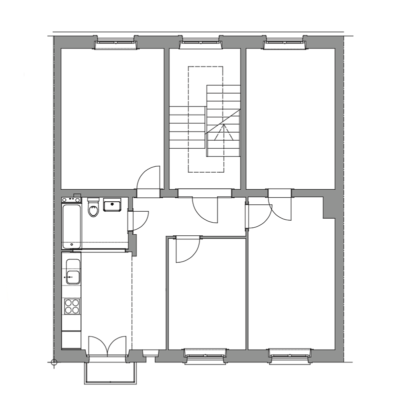
Das Gebäude aus dem Jahr 1923 gehört seit 2003 zur PWG. Der Einspänner mit fünf Wohnungen befindet sich beim Aemtler-Schulhaus zwischen Ida- und Goldbrunnenplatz. Bis auf eine Wohnung verfügen alle über einen kleinen Balkon, der, so wie die meisten anderen Bauteile, noch die ursprüngliche Bausubstanz darstellt. Die Umbauarbeiten beinhalteten den Ersatz aller sanitären und elektrischen Installationen. Die alten Zimmeröfen und die Durchlauferhitzer wurden durch eine Zentralheizung ersetzt. Während der Bauarbeiten waren drei Wohnungen bewohnt; für die Zeit der grössten Umbauten konnten die Mieter auf leere Wohnungen ausweichen. Jede Wohnung verfügte über ein separates WC, das aufgehoben und der Fläche der Küche zugeschlagen wurde. Dafür waren ein Wand­abbruch und das Einziehen von ­Unterzügen an der Decke nötig. Die Fassade des Hauses ist immer noch in sehr gutem Zustand, daher war eine Dämmung nicht erforderlich. Das Haus aus dem Inventar der Denkmalpflege wurde aussen nur neu gestrichen – die Fenster (2-IV) wurden bereits in einer früheren Phase ersetzt, und die hofseitigen Küchenbalkone wurden nicht vergrössert. So war es auch möglich, den Mietzins niedrig  zu halten.

Am Bau Beteiligte
 

Bauherrschaft
Stiftung PWG, Zürich


Architektur
Paul Meier, Zürich


Tragwerksplanung
Bonomo Engineer, Rüdlingen SH


Bauleitung
Paul Meier, Zürich


Bauzeit
Mai bis Dezember 2016


Bausumme
930 000 Fr.

 

Calandastrasse 6: Grandezza in Altstetten

Das 1953 erbaute Wohnhaus liegt mitten in Altstetten und bildet den Abschluss einer Reihe von drei fast baugleichen Häusern. Seit 2006 gehören die elf Wohnungen mit Balkonen in das Portfolio der PWG. Die Grundrisse sind sehr kompakt –das zeigt sich vor allem an den eng bemessenen Küchen und Badezimmern. Bei der Sanierung wurden die Grundrisse nicht verändert, die engen Platzverhältnisse in Bad und Küche wurden mit geschickter Möb­lierung kompensiert. In den übri­gen Wohnräumen waren ursprünglich – bis auf den Fenster­ersatz – keine grösseren Arbeiten geplant. Als aber im Fensterkitt Asbest gefunden wurde, führte dessen Beseitigung zu grösseren Beeinträchtigungen für die Bewohner. Die Aufstockung einer eingeschossigen Garage ermöglichte es, zusätzlichen Wohnraum zu schaffen. Der mit Faserzement verkleidete Holzbau verzahnt sich mit den Nasszellen in das bestehende Gebäude und ist über raumhohe Fenster belichtet. Der neu gewonnene Wohnraum verfügt über einen Aussensitzplatz. Das Gebäude wurde gedämmt und die Wärmeversorgung nach wie vor über Fernwärme aus der Nachbarliegenschaft gewährleistet – hierfür war der Einbau eines Wärmezählers erforderlich.

Am Bau Beteiligte
 

Bauherrschaft
Stiftung PWG, Zürich


Architektur
Markus Jandl Architekten, Zürich


Tragwerksplanung
Heyer Kaufmann Partner, Zürich


Bauleitung
Jaun Baumanagement, Zürich


Bauzeit
Mai 2016 bis Januar 2017


Bausumme
Ca. 2.97 Mio. Fr.

Verwandte Beiträge