Vir­tu­os er­höht

Schlotterbeck-Areal: die Tragkonstruktion

In und auf den Bestandsbauten des Schlotterbeck-Areals in ­Zürich sind 104 zusätzliche Wohnungen entstanden. Mit differenzierten Eingriffen gelang es Dr. Lüchinger + Meyer Bauingenieuren, die spektakulären Aufstockungen mit dem bestehenden statischen System zu vereinbaren.

Publikationsdatum
07-12-2017
Revision
07-12-2017
Thomas Ekwall
MSc. EPFL Bau-Ing., MAS ETHZ Arch., Korrespondent TEC21

Das Schlotterbeck-Areal in Zürich wurde nach einem Entwurf von giuliani hönger Architekten und Dr. Lüchinger + Meyer Bauingenieure umgenutzt, umgebaut, aufgestockt und verdichtet (vgl. «Verdichtete Romantik»). Die Transformation der bestehenden, denkmalgeschützten Bauten erforderte von den Ingenieuren unterschiedliche Herangehensweisen. Die Erhöhung des ehemaligen Citroën-Werkstattgebäudes, um ein Stockwerk und die Nachrüstung von drei Treppenhäusern mögen noch als konventionelle Gebäudeanpassungen verstanden werden. Die Aufstockung um weitere drei Etagen an der Südseite und eine Vergrösserung des Untergeschosses bedeuteten aber eine derart erhebliche Umgestaltung des Gebäudes, dass weitreichendere Eingriffe in die Tragstruktur nötig waren. Regelrecht verzahnt wurden hier neue und alte Bausubstanz, um die erhöhten Lasten in die verstärkten Fundamente einzubringen.

Ein identitätsstiftender Neubau für das Areal entstand dagegen mit dem zylindrischen Wohnturm. Es scheint, als bildeten seine neun neuen Stockwerke mit der denkmalgeschützten Rampenanlage unter sich eine Einheit; strukturell jedoch ist der neue Turm grösstenteils von dieser ehemaligen Auffahrt zur Werkstatt entkoppelt.

Rampe windet sich um Turmschaft

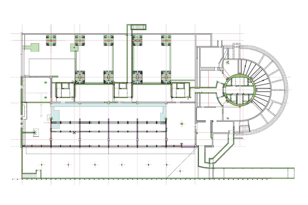
Einen Durchmesser von rund 27 m weist der neue Turm auf den Wohnebenen auf. Der tragende Turmschaft mit einem Durchmesser von etwa 12 m führt präzise durch das Auge der doppelhelixförmigen, denkmalgeschützten Rampe auf den mächtigen neuen Fundamentkörper, der unterhalb des Bestands angeordnet wurde. Mit einer Dicke von 2.8 m und einem Durchmesser von 18.4 m gewährleistet dieser den Lastabtrag auf die 140 im Niederdruck-Injektionsverfahren erstellten Mikropfähle. Sie binden in die unter den setzungsempfindlichen Seeablagerungen anstehenden Moräne- und Schotterschichten ein.

Der gewählte Lastabtrag des Wohnzylinders über den Schaft und das separate Turmfundament ermöglichte die Schonung der Rampe aus den 1960er-­Jahren. Die bestehenden inneren Stützen der Anlage mussten jedoch abgefangen und in die neue Fundation integriert werden. Hierfür wurde eine Stahljochkon­struktion entwickelt, die die einzelnen Stützenlasten von bis zu 1200 kN bereits an der Unterkante der Unter­geschossdecke aufnahm. Am Fusspunkt der stempelartig ausgeführten Bauteile wurden die Lasten über Hydraulikpressen und Biegebalken in je vier Mikro­pfähle eingeleitet, die im Lauf der Aushubarbeiten sukzessive mittels angeschweissten Stahlwinkelprofilen gegen Knicken stabilisiert wurden.

Raffiniertes Scheibentragwerk des Turms

Die radialsymmetrische Form der Aufstockung wird für statische Zwecke ausgenutzt, was insbesondere im oberen Wohnbereich ersichtlich wird. Die im Grundriss annähernd kreisförmigen Geschossdecken sind durch radial verlaufende Wandscheiben gestützt bzw. an diesen aufgehängt. Diese auskragenden, auf der äusseren Turmschaftwand aufgelegten Wände werden durch radial wirkende Schubkräfte in die Deckenebene einge­spannt. Da die Wände zweier benachbarter Geschosse zur Maximierung der Spannweiten geschossweise um rund 36° versetzt sind, werden die Decken Scheibenbeanspruchungen unterworfen und schliessen die Schubkräfte der darüber- bzw. darunterliegenden Wände kurz.

Dieses Prinzip liess sich im obersten und untersten Geschoss nicht umsetzen. Oben wurde die mit einem kräftigen Randüberzug versehene Decke konzentrisch vorgespannt, um die hohen Ringzugkräfte aufzunehmen. Am unteren Ende des Wohnzylinders war die doppelte Anzahl Wände erforderlich, um die Decken ausreichend zu lagern. An dieser Stelle leisten die Radialwände einen wertvollen Beitrag zur Tragwirkung des Turms, indem die horizontal wirkenden Wandschubkräfte die Vertikal­lasten der äusseren zylindrischen Kernwand in die innere umlenken. Dank der Geometrie gleichen sich die Horizontalkräfte innerhalb des Systems von selbst aus.

Fundamente zeigen Zähne

Im bestehenden rechteckigen Werkstattgebäude erfolgte die Lastabtragung grösstenteils über Pilzstützen aus Stahlbeton. Durch die Aufstockung um eine Etage und die umnutzungsbedingten Zusatzlasten war die Trag­sicherheit der Stützenfundamente nicht mehr gewährleistet. Die südliche Gebäudeerhöhung um insgesamt  vier Etagen bedingte sogar ein alternatives Tragsystem. Da sich zudem das erweiterte Untergeschoss nun bis unmittelbar an die Gründungskörper erstreckte, galt es, diese zu verstärken, zum Teil auch mit unkonventio­nellen Methoden.

Im Bereich ohne Untergeschoss wurden die Pilzstützen bis zur Unterkante der Bodenplatte aufbetoniert. Dadurch erhöhen sich die Biege- und Durchstanzwiderstände der bestehenden Einzelfundamente, und die Lasten werden unmittelbar abgefangen. Neue Mikro­pfähle durchdringen die bestehenden Fundamente und leiten ihre Lasten tiefer in den Baugrund ein.

Die effektive Übertragung der Stützenlasten in die nachträgliche Verstärkung gelang durch aus dem Brückenbau abgeleitete Konstruktionsdetails: Mittels Hochdruckwasserabtrag wurden umlaufende Schlitze in die Stützenquerschnitte gefräst. Diese Schubzähne gewährleisten die Kraftübertragung in die flankierende Fundamentverstärkung und in der Folge die Ein­leitung der Vertikallasten über Betondruckstreben in die Mikropfähle. Die resultierenden horizontalen Kraftkomponenten wurden mit Spannstangen kurzgeschlossen. Die anschliessend erstellten, wandartigen Unterfangungen bildeten in Verbindung mit der neuen Bodenplatte des Erdgeschosses einen kastenartigen Baukörper. Während der Aushubarbeiten sicherte dieser die horizontale Lage von je vier Einzelfundamenten.

Die Technik der Verzahnung und Verstärkung kam auch bei den bestehenden Stützen im Untergeschoss zum Einsatz, die von neuen Betonwänden flankiert ­werden. Anstelle der Vorspannung schliesst hier die Bodenplatte die horizontalen Kräfte kurz. Damit auch bestehende Wände die Vertikallasten der darüberstehenden Stützen auf die beidseits der Einzelfundamente angeordneten Mikropfähle abtragen können, wurden sie am Wandfuss mit zwei Steckträgern versehen. Der Kurzschluss der aus der Spreizung resultierenden Horizontalkräfte erfolgte hier über Zugglieder mit Vierkant-Vollprofil.

Alte Fassade des Werkstattgebäudes

Die filigrane, denkmalgeschützte Betonsprossenfas­sade wurde im Zuge des Umbaus mit Stahlträgern abgefangen. Da nur äusserst geringe Setzungen erlaubt ­waren, setzte man zwischen Decke und Oberflansch ­Flachpressen ein, um die Träger vorzubelasten. Die übrigen Bereiche der Untergeschossdecke wurden ebenfalls mittels aufgepressten Stahlträgern abgefangen, die die Lasten in neue Querwände abtragen. Dadurch konnten die einachsig tragenden Bestandsdecken des Untergeschosses trotz nutzungsbedingtem Rückbau der Längswände – das Untergeschoss wird künftig eine Tiefgarage – grösstenteils erhalten werden.

Durchbrüche und Verstärkungen

Während die Bautätigkeiten im Untergeschoss von Abfangungen geprägt waren, stand bei den Arbeiten im Erdgeschoss und in den Obergeschossen eine Vielzahl Deckendurchbrüche und -verstärkungen an. Je nach Gefährdungsbild wurden verschiedene Massnahmen ergriffen: Auf den mittels Höchstdruckwasserstrahlen aufgerauten Decken wurde eine schlaff bewehrte, verdübelte Aufbetonschicht aufgebracht, die mit den bestehenden Decken im Verbund wirkt. Die Applikation zusätzlicher Stahllamellen auf der Deckenunterseite im Feldbereich erzielte eine Erhöhung des Biegewiderstands. Örtlich kam eine Durchstanzbewehrung zum Einsatz.

Neue Scheiben und Stützen im Aufbau Süd

Die südliche viergeschossige Aufstockung des Werkstattgebäudes hätte das bestehende Tragwerk überbeansprucht. Für diesen Baukörper wurde daher ein alternatives Scheibentragsystem entwickelt, das die Kräfte über wenige Punkte separat bis in die Fundation abträgt. Für die Südfassade waren im Zuge der Umnutzung grosszügige Öffnungen geplant. Die bestehenden Bauteile wiesen bereits ausgeprägte Korrosionsschäden auf, sodass die Fassade rückgebaut und durch eine rahmenartige Betonkonstruktion ersetzt wurde.

Das neue Tragwerk wurde auf die Zusatzlasten des Aufbaus Süd ausgelegt. Für den Abtrag der Vertikal­lasten ordnete man neben dem erforderlichen neuen Erschliessungskern zwei senkrecht an die Südfassade anschliessende Wandscheiben und vier durchlaufende Stützen an. Um die gesamten Lasten diesen wenigen vertikalen Traggliedern zuzuführen, bilden die Wohnungstrennwände im Aufbau Süd ein räumliches Scheibentragsystem. An der Ost- und Westseite des Aufbaus bildete man tragende, zur Begrenzung der Verformung vorgespannte Brüstungen aus. Entlang der Nordfassade wurde eine rahmenartig gestaltete Abfangscheibe platziert.

Die aus den im Grundriss abgewinkelten Wandscheiben resultierenden Horizontalkräfte sind über die Geschossdecken kurzgeschlossen. Zur Aufnahme der entsprechenden Zugkräfte ist die Decke über dem 6. Obergeschoss in Längsrichtung mit einer Vorspannung versehen.

Die das Werkstattgebäude durchdringenden, zur Fundation geführten Stützen werden auf Höhe der Decken nur in Horizontalrichtung gegen Knicken gehalten. Eine verschiebliche Lagerung verhindert die Übertragung von Vertikalkräften aus den bestehenden Decken. Eine Durchstanzbeanspruchung der bestehenden Decken konnte somit wirksam verhindert werden.

Dialog der Generationen

Im Planungsteam wurde ein gangbarer Weg zwischen den erhöhten Bedürfnissen an das bestehende Bauwerk und dem schonenden Umgang mit seiner Substanz gefunden. Ebenso wichtig war der «virtuelle Dialog» mit dem damaligen Ingenieurbüro Schubert & Schwarzenbach, der auf dem Studium der nachgelassenen Schalungs- und Bewehrungspläne basierte. Ohne die sorgfältige Auseinandersetzung mit diesen Zeitdokumenten und den damals gültigen Normen wäre ein solcher Eingriff in den Bestand kaum realisierbar gewesen.
 

Magazine

Verwandte Beiträge