Den­si­fier dans la ver­du­re

Dans la zone du St. Albanteich, à Bâle, des extensions ont été réalisées sur quatre immeubles afin de densifier le site. L’environnement aux allures de parc et la précieuse structure urbaine ont ainsi pu être préservés.

Data di pubblicazione
08-12-2023

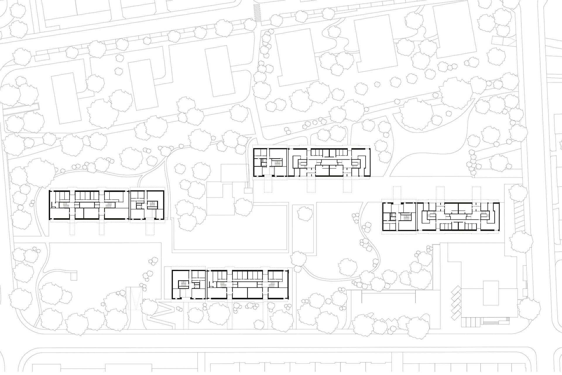
La zone résidentielle du St. Albanteich se trouve dans le quartier de Breite, à Bâle, sur le site d’une ancienne usine de rubans. Elle a vu le jour en 1960 et comprend aujourd’hui encore quatre tours d’habitation de 17 étages chacune et six immeubles de deux étages. Elle comptait jusqu’à récemment 574 appartements et accueillait en outre un magasin d’alimentation et un jardin d’enfants. De vastes espaces verts et le canal de St. Alban, qui donne son nom à l’ensemble, confèrent au site un caractère de parc.

Une extension minutieuse

En 2010, les trois propriétaires institutionnels de la zone se sont mis d’accord pour envisager une densification du site. Morger Partner Architekten de Bâle a été chargé de réaliser une étude de faisabilité afin de trouver des solutions pour développer l’existant tout en préservant les qualités des structures et des espaces verts. Le processus de conception a abouti à la variante suivante: l’ajout de quatre tours d’habitation contre le mur coupe-feu des immeubles existants. Cette approche permet d’utiliser la surface du site de manière plus efficace sans pour autant nuire à la structure urbaine.

L’avant-projet et le plan d’aménagement ont été élaborés entre 2012 et 2015. La réalisation a commencé en 2018; quatre ans plus tard, les travaux étaient terminés. Durant toute la période du chantier, les résidents ont pu rester dans leur logement. Grâce à la séparation des bâtiments, les émissions liées à la construction sont restées dans des limites acceptables.

Indépendants et pourtant unis

Le plan type des nouvelles tours comprend un appartement de 3.5 pièces et un appartement de 4.5 pièces, qui sont chacun a minima bi-orientés. Leurs balcons d’angle s’ouvrent vers le sud. Les bâtiments existants sont en revanche orientés est-ouest. Un étage en attique en retrait, offrant une vue spectaculaire sur le paysage du parc et la région bâloise, surmonte les nouvelles tours.

En raison des règles imposées par le droit de la construction, notamment en ce qui concerne la hauteur minimale sous plafond, les nouveaux édifices ne comprennent que 16 étages, soit un de moins que les tours existantes. Le principal défi était donc de développer à partir de là une image d’ensemble cohérente entre les nouveaux et les anciens bâtiments. Pour ce faire, les extensions reprennent l’image de la façade existante, caractérisée par les bandeaux des allèges, et la réinterprètent. Le décalage dans la structure horizontale est néanmoins visible, ce qui confère une certaine autonomie à l’extension. Les vitrages des allèges ainsi que les stores apportent de nouvelles touches de couleur, tout en s’intégrant harmonieusement dans les façades métalliques blanches des bâtiments d’origine. Le joint de séparation vertical visible, qui a dû être réalisé entre le nouveau et l’ancien bâtiment pour des raisons de sécurité sismique, ne nuit guère à l’effet d’ensemble. Il garantit aussi que les constructions ne s’influencent pas mutuellement sur le plan statique.

Préservation de l’apparence

En revanche, les immeubles de deux étages des années 1960 n’existent plus. Afin de créer davantage d’unités d’habitation de surfaces plus importantes, le maître d’ouvrage a opté pour la variante de remplacement proposée par l’architecte: les six corps de bâtiment ont chacun laissé place à un bâtiment de trois étages. Pour des raisons statiques et d’absence de flexibilité de la structure, une surélévation n’était pas envisageable.

Lors du développement des nouvelles façades, les architectes ont toutefois accordé une grande importance à l’effet d’ensemble. Ils ont repris la caractéristique de conception prépondérante des hautes façades à bandes et ont ainsi préservé l’aspect d’origine.

Concentration sur la durabilité

D’autres aspects liés à la durabilité ont joué un rôle important dans la planification et la réalisation du développement du site vers l’intérieur. Le projet devait être conforme au Standard de Construction Durable Suisse (SNBS) et donc passer par une procédure de certification. Ce standard de construction est considéré comme un étalon pour l’évaluation du processus de planification et de réalisation en ce qui concerne les trois dimensions de la durabilité : société, économie et environnement. Les espaces extérieurs qui favorisent les contacts entre les habitants sont par exemple importants sur le plan social, tout comme les qualités d’aménagement et d’urbanisme. Ces dernières sont respectées dans la mesure où le paysage du parc est resté en grande partie non artificialisé. D’un point de vue économique, l’accent a été mis sur l’optimisation des coûts du cycle de vie et la contribution à l’économie régionale. Parmi les critères écologiques, il fallait respecter des directives concernant le recours aux énergies renouvelables, utiliser des matériaux de construction efficients et préserver les espaces naturels ainsi que la biodiversité des environs.

Photovoltaïque et e-mobilité

La zone d’habitation autour du St. Albanteich est raccordée au réseau de chauffage urbain de la ville; la chaleur utilisée pour le chauffage et l’eau sanitaire est distribuée dans les différents bâtiments via une centrale. L’électricité consommée par les 720 foyers provient à 100 % de sources renouvelables. Une partie de cette énergie est produite directement sur place: les toitures des nouveaux bâtiments et des bâtiments existants sont mises à disposition pour des installations photovoltaïques. Le rendement annuel prévu de 130 000 kWh d’électricité solaire est à mettre en parallèle avec la consommation supplémentaire attendue. Les parkings pour le trafic individuel motorisé devaient être préparés au passage à la mobilité électrique. Les installations de base pour la recharge des voitures électriques sont réalisées; en cas de demande de la part des habitants, les places de parking en question peuvent être alimentées facilement et rapidement en électricité solaire.

Lotissement du St. Albanteich, Bâle

 

Utilisation
habitat (commerce, formation)

 

Maître d’ouvrage
Allianz Suisse Société d’Assurances, Wallisellen ; assetimmo Fondation de Placements Immobiliers, Zurich ; De Bary & Co., Bâle

 

Architectes
Morger Partner Architekten, Bâle

 

Architecture du paysage
Westpol, Bâle

 

Gestion de la construction
S+B Bau­management, Olten

 

Ingénieur civil
wlw Bauingenieure, Zurich

 

Physique du bâtiment
Zeugin Bauberatungen, Münsingen

 

Ingénierie électrique
Hefti. Hess. Martignoni., Aarau

 

Ingénieur CVCRS
Balplan, Olten

 

Installations sanitaires
Aeschlimann Engineering, Olten

 

Standard de construction
SNBS Bâtiment

 

Année de construction
1960

 

Extension
2018-2022

Avec le soutien de SuisseEnergie et de Wüest Partner, les numéros spéciaux suivants ont été publiés par espazium - les éditions pour la culture du bâti:

 

1/2018 «Immobilier et énergie: stratégies pour l'immobilier – orientation pour les investisseurs institutionnels».

 

2/2019 «Immobilier et énergie: stratégies de mise en réseau».

 

3/2020 «Immobilier et énergie: stratégies de la transformation».

 

4/2021 «Immobilier et énergie: sur des routes communes avec l'électromobilité».

 

5/2022 «Immobilier et énergie: stratégies d'autoconsommation».

 

6/2022 «Immobilier et énergie: reconnaître la valeur de l’existant».

Les articles peuvent être consultés dans notre dossier numérique «Immobilier et énergie».

Articoli correlati