Sehr zi­vi­li­siert

Wie bauen auf dem Gelände eines Militärflugplatzes? op-arch setzen weder auf martialische Dynamik noch auf den banalen Funktionsbau. Ihre Operationszentrale für die Luftwaffe in Payerne im Auftrag von armasuisse Immobilien ist ikonisch, aber zurückhaltend und besticht mit einer technischen Eigenentwicklung.

Data di pubblicazione
09-06-2022

Kaum ein Thema hat die Schweiz in den vergangenen Jahren so polarisiert wie die Beschaffung neuer Kampfjets. Auch wenn die Luftwaffe angesichts des Ukrai­ne-Kriegs inzwischen selbst im linken Lager an Akzeptanz gewinnt: Geht es um die Ausgaben für neue Flugzeuge, so ist die Eidgenossenschaft ein gespaltenes Land. Ganz abgesehen davon, dass die regelmässigen Übungsflüge immer wieder zu Diskussionen über Lärmbelastungen führen.

Technikbegeisterte wiederum zieht es zu den Militärflugplätzen, um dort die donnernden Starts der Kampfjets zu verfolgen. Zum Beispiel zum Flugplatz Payerne, der seit 1925 in Betrieb ist und heute mit seinen mit F/A-18-Kampfflugzeugen ausgerüsteten Fliegerstaffeln als der wichtigste Luftwaffenstützpunkt in der Schweiz gilt.

2010 gewann das Büro op-arch aus Zürich den Projektwettbewerb für den Neubau eines «complexe des opérations» für die Luftwaffenbasis. Ziel war es, die bisher über den Flugplatz verstreuten Einrichtungen zur Luftraumüberwachung, die Schulungs- und Büro­räume, die Pilotenunterkünfte sowie den Kontrollturm in einem Neubau zu bündeln.

Der alte Tower aus dem Jahr 1970, der gemäss aktuellen Regularien zu nah an der Piste stand, wurde ebenso abgerissen wie eine Reihe von Baracken. 2020 wurde die Operationszentrale über­geben; das Boarding House, ebenfalls Teil des Studienauftrags, blieb aus Kostengründen unrealisiert, doch immerhin konnten die Architekten den Neubau der Heizzentrale nutzen, um hier einen Clubraum zu installieren.

Zurückhaltende Eleganz

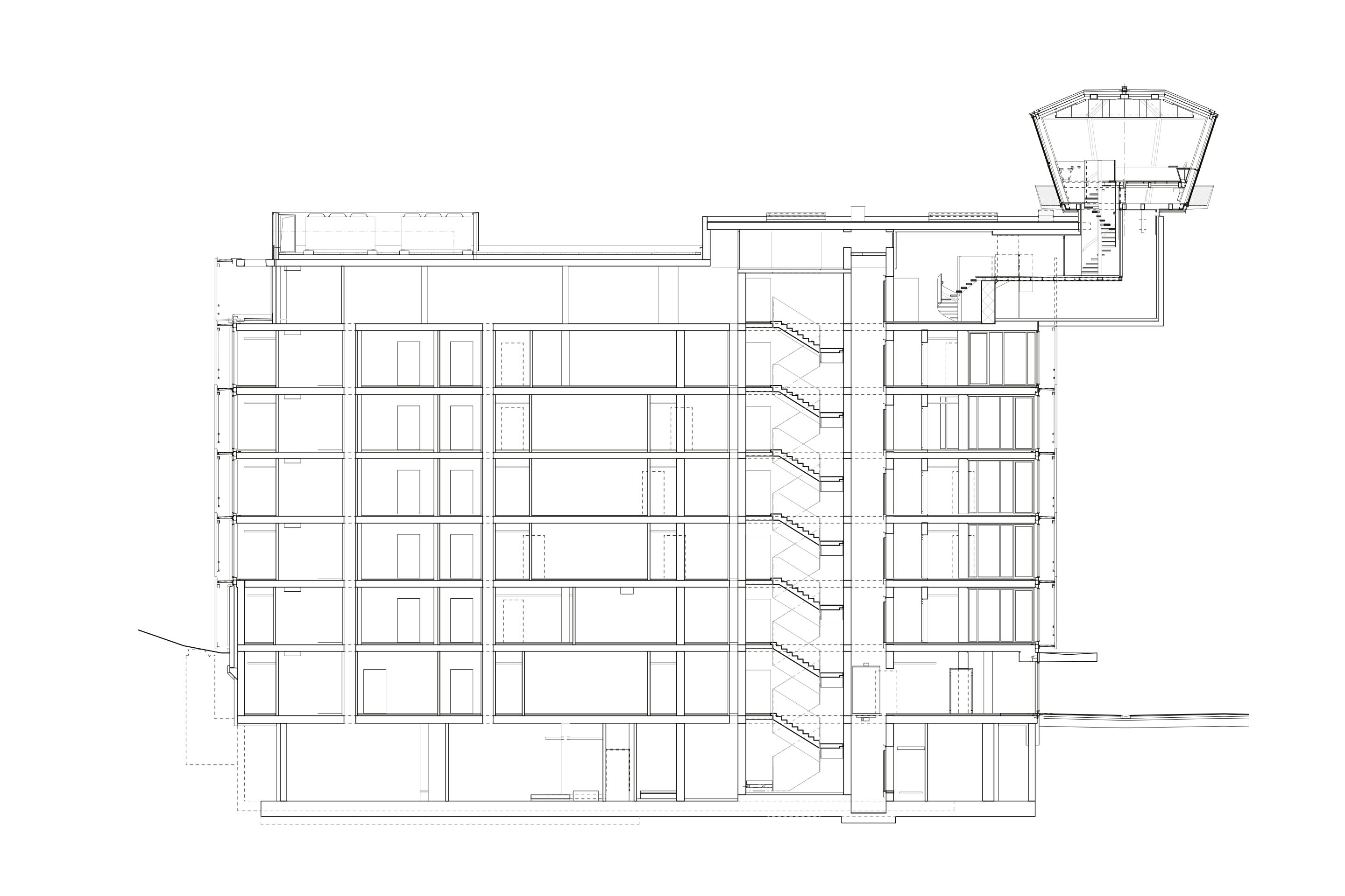
Nahe dem Zufahrtstor zum Militärflugplatz gelegen, ist der insgesamt 32 m hohe Neubau, der im 24/7-Dienst betrieben wird, mit dem markant auskragenden Toweraufsatz schon von Weitem sichtbar. Es handelt sich um ein orthogonales siebengeschossiges Volumen, das rückwärtig leicht in den Hangfuss des Hügels eingeschoben ist; die leichte Drehung gegenüber der Zufahrtsstrasse und den umliegenden Bauten erklärt sich durch die Ausrichtung des Gebäudes parallel zur Piste.

Eine filigrane und raumhaltige Metallfassade umkleidet das kubische Volumen oberhalb des leicht zurückgesetzten Erdgeschosses: zuäusserst die hellen vertikalen Führungsschienen der Sonnenstoren, dahinter zurücktretend die dunklen Horizontalen der Ge­schoss­platten und Absturzsicherungen und schliesslich die wiederum vertikal unterteilten Profile der Fensterbänder. Für einen durch reine Funktionsbauten geprägten Militärstandort entsteht so eine ganz ungewöhn­liche Eleganz, die an die spätmodernen Bauten der 1950er- und 1960er-Jahre von Egon Eiermann erinnert – an den Deutschen Pavillon der Brüsseler Weltausstellung von 1958, die Botschaft in Washington oder das Abgeordnetenhochhaus in Bonn.

Dass es sich dennoch nicht um einen Stahlbau handelt, verdeutlichen die drei Betonelemente, die, hinsichtlich ihrer Grösse von unten nach oben hin zunehmend, die Stirnseite prägen: das schmale Vordach über dem Haupteingang, der Balkon für die Flugsicherung auf der Höhe des fünften Obergeschosses und schliesslich das zweigeschossige Volumen, das das oberste Geschoss durchbricht, mit ganz grosser Geste nach vorn auskragt und die Kanzel für die Flugüberwachung trägt. Mit dem Erschliessungskern verbunden, fungieren die zu einer kastenförmigen Struktur verbundenen Wandscheiben als Kragarm. Die konisch ausgebildete achteckige und fast kristallin wirkende Towerkanzel wurde als komplette Stahlkonstruktion präfabriziert und schliesslich mit dem Kran in Position gebracht.

Zu viel Wärme in der Kanzel

Die Verglasung von Kanzeln stellt ein besonderes Problem dar. Es bedarf einer 360-Grad-Sicht mit grossem Sichtwinkel nach oben und unten, mithin einer kompletten Verglasung – und das bei einem relativ geringen Volumen. Das führt etwa im Tower in Genf-Cointrin im Sommer zu bis zu 40  ºC Innentemperatur. Die Verglasung der Towerkanzel in Payerne ist eine Eigenent­wicklung der Architekten. Zur Anwendung kam elektro­chromes Glas, das stufenweise abgetönt werden kann. Damit lässt sich der Lichteinlass von 60% bis auf 1% reduzieren; Lichtsensoren sorgen dafür, die Durchsicht zu optimieren und zugleich den Energiedurchlass zu vermindern. Unterstützend wird ein Teil der Zuluft im Tower entlang der Glasscheiben von unten nach oben geströmt, dabei kühlt sie die Scheiben, wird in der ­Decke wieder abgezogen und über die Fassadenhohlprofile der Kanzel in die darunterliegende Lüftungszentrale im Betonkrag­arm geleitet.

Durch die Luftführung in den Hohlprofilen entfällt ein Abluftschacht, der die Rundumsicht einschränken würde. Der andere Teil der Zuluft wird über Quelllüfter mit sehr tiefer Luftgeschwindigkeit mit idealer Temperatur im Innern der Kanzel über den ­Boden abgegeben und ebenfalls über die Decke wieder abgezogen. So entstehen keine Zuglufterscheinungen – und die Raumtemperaturen bewegen sich im optimalen Bereich über alle Jahreszeiten. Dies alles ohne zusätzliche Kühlgeräte, nur mithilfe der Kälte- und Wärmeerzeugung über die Wärmepumpe und Erdsonden des Gebäudes.

Konstruktive Eleganz

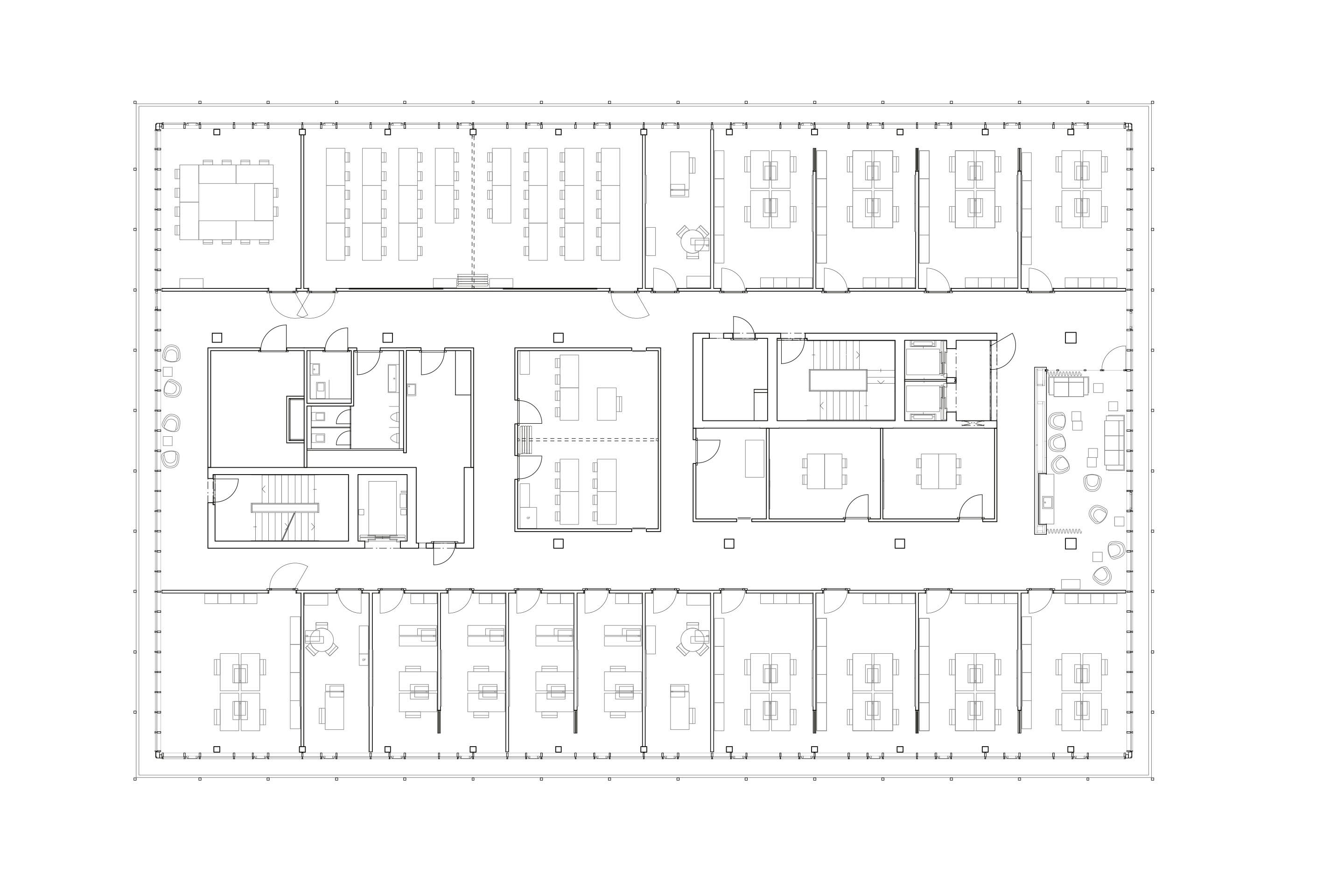
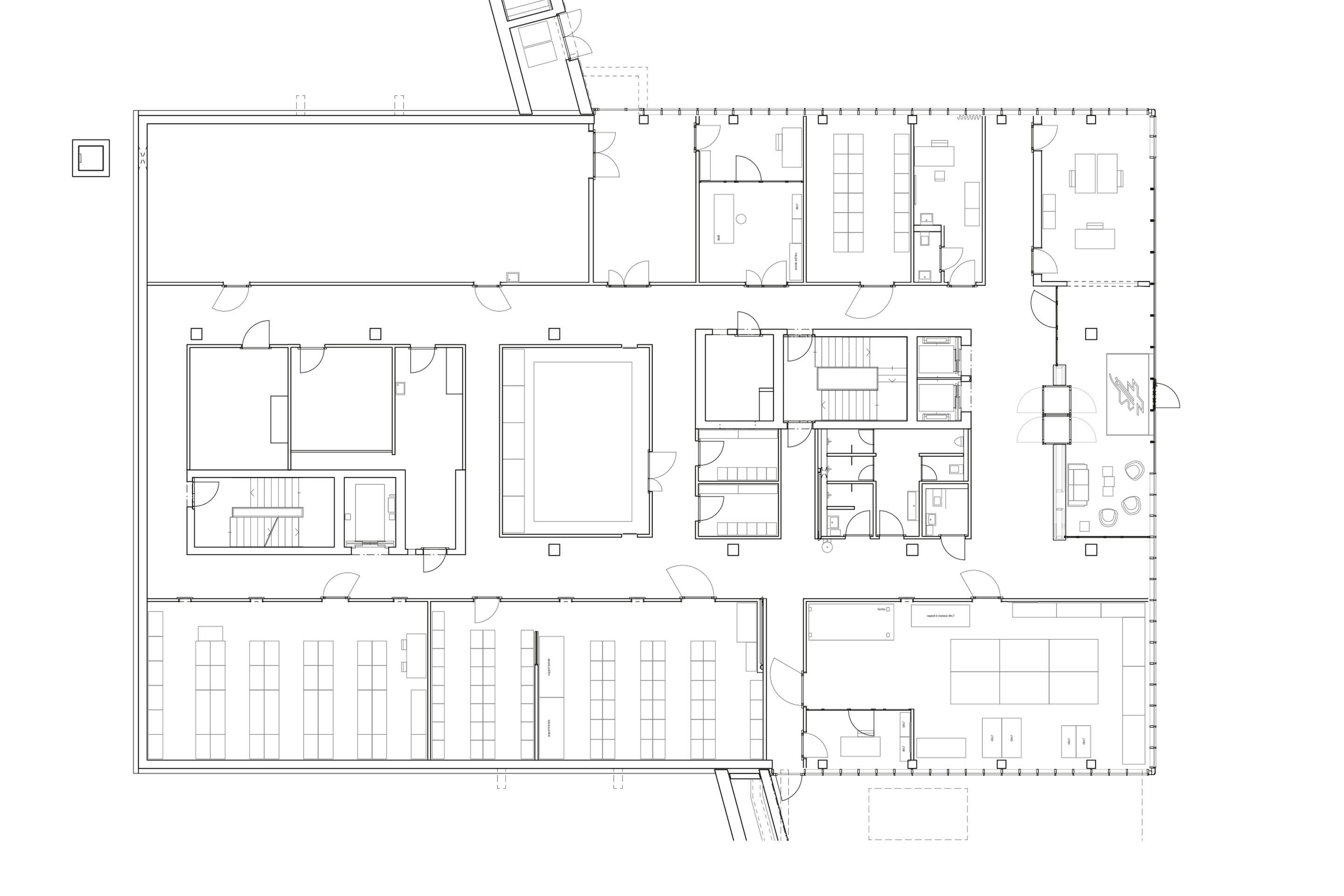
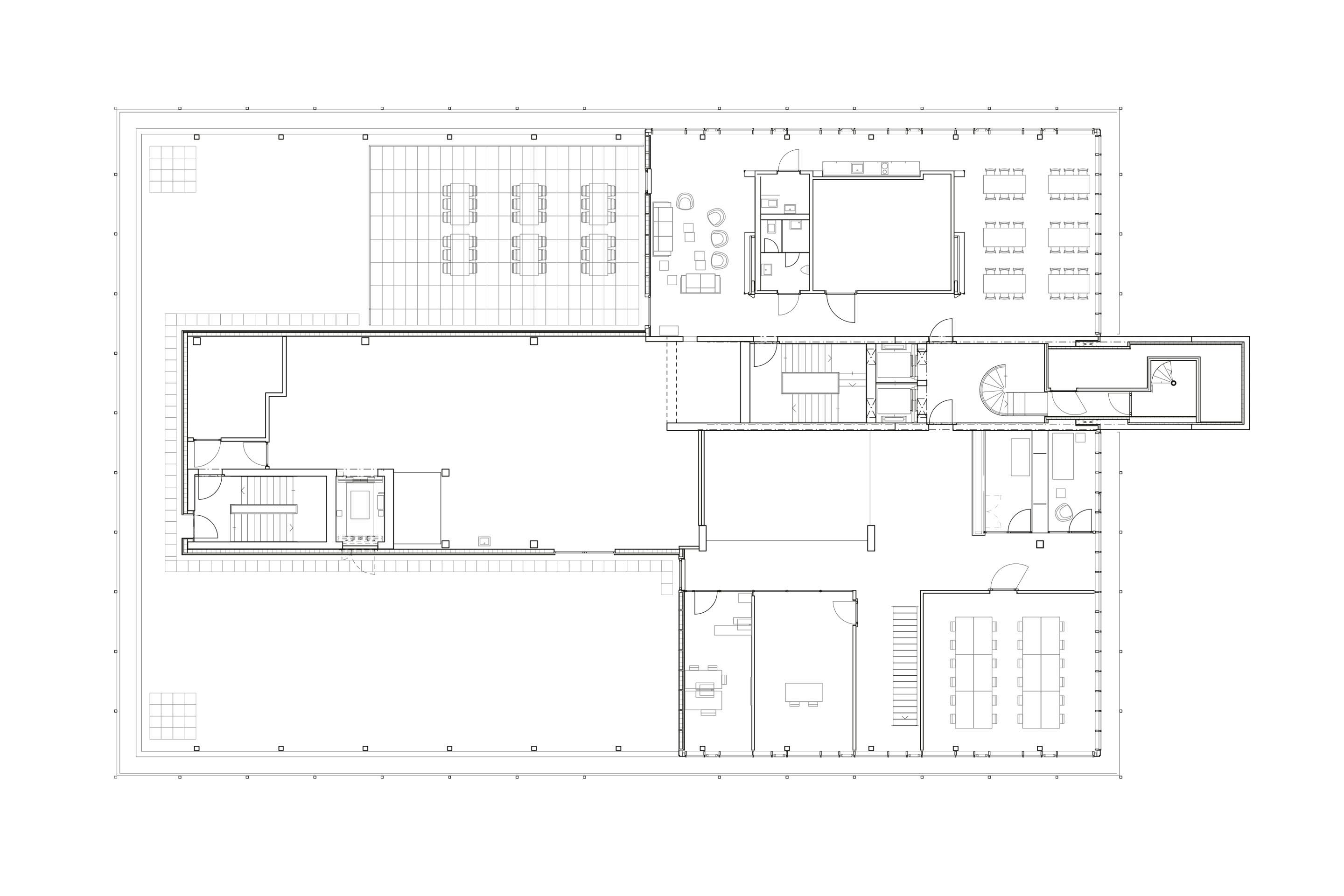
Innen achteten die Architekten darauf, die unterschiedlichen Materialien sichtbar zu belassen, sodass Primärstruktur, Innenausbau und Gebäudetechnik stets ablesbar bleiben. Der Beton des Rohbaus ist an Wänden und Decken unverkleidet, der Estrich des Fussbodens besteht aus geschliffenem Anhydrit. Dazu tritt Holz – für Raumteiler, Innentüren und Akustikverkleidungen – und natürlich das Mobiliar. In den Gängen sind die Gebäudetechnikleitungen an den Decken durch Aluminiummembranen verkleidet, in die auch Beleuchtung und Beschilderung integriert wurden. Immer wieder beeindrucken einzelne Details, so etwa die von einer Stahlwange gefasste Spindeltreppe, die hinaufführt zur Kontrollkanzel oberhalb der Auskragung – aber auch die Kunstwerke von Blanca Blarer in den Fluren.

Keine Anbiederung

Man darf die Operationszentrale durchaus als ikonisches Gebäude des Militärflugplatzes von Payerne verstehen. Das Volumen buhlt nicht um Aufmerksamkeit, eher könnte man von einer selbstsicheren Zurückhaltung sprechen. Im Kontext der militärischen Logik der Umgebung verweigern sich op-arch der Anbiederung: Ihr Bau zeigt sich weder militärisch-kraftstrotzend noch futuristisch-dynamisch, aber auch nicht rein funktional oder gar banal wie manches in der Umgebung.

Die Balance zwischen einer zurückhaltenden und filigranen, strukturell gegliederten Fassade und den plastisch hervortretenden Betonkörpern ist gelungen, und im Innern überzeugt der Mix verschiedener Materialien. Da es sich um ein staatliches Gebäude handelt, ist auch die Frage des Repräsentativen ein Thema – die Eiermann-­Referenzen stehen beispielhaft für ein freies und offenes Verständnis des demokratischen Staatswesens. Also im besten Sinn zivilisiert, ja zivil – dieser «complexe des opérations» stünde auch einem Verkehrsflughafen gut zu Gesicht.

Die ausführliche Version dieses Artikels ist erschienen in TEC21 19/2022 «Unter den Wolken».

Neubau «complexe des opérations», Militärflugplatz Payerne

 

Bauherrschaft
armasuisse Immobilien

 

Architektur
op-arch Oester Pfenninger Ulrich Weiz, Zürich

 

Tragkonstruktion
HallerIngenieure, Baar

 

Kosten und Bauleitung
Spörri Graf Partner APP, Bern

 

Landschaftsarchitektur
mavo, Zürich

 

Fassadenplanung
Stäger + Nägeli, Zürich

 

Gebäudetechnik
Amstein + Walthert, Genf; R + B engineering, Bern; Todt Gmür + Partner, Schlieren

 

Bauphysik
bakus Bauphysik & Akustik, Zürich

 

Holzfeuerung
Schmid energy solutions, Eschlikon

Magazine

Articoli correlati