Ré­si­den­ce l’Adret, for­ma­li­ser l’in­for­mel

La résidence pour seniors et étudiants l’Adret, à Lancy (GE), est un projet abouti à maints égards: forme urbaine efficace, typologies de logements fonctionnelles et exécution rigoureuse. Mais la plus grande réussite du projet se joue à d’autres niveaux. Dans un cadre très normé, le bureau Tribu Architecture parvient à créer les conditions d’une cohabitation vertueuse entre ces deux tranches d’âges.

Data di pubblicazione
23-05-2022

À l’articulation de Lancy, Carouge et Genève, le quartier de l’Adret est en plein renouveau, bénéficiant notamment de l’influence de la nouvelle gare CEVA Lancy-Pont-Rouge, étape du Léman Express. Dans ce cadre dynamique, les transformations en cours sont nombreuses, avec notamment de nouveaux bureaux, activités, commerces, espaces publics, mais aussi plus de 600 logements neufs.

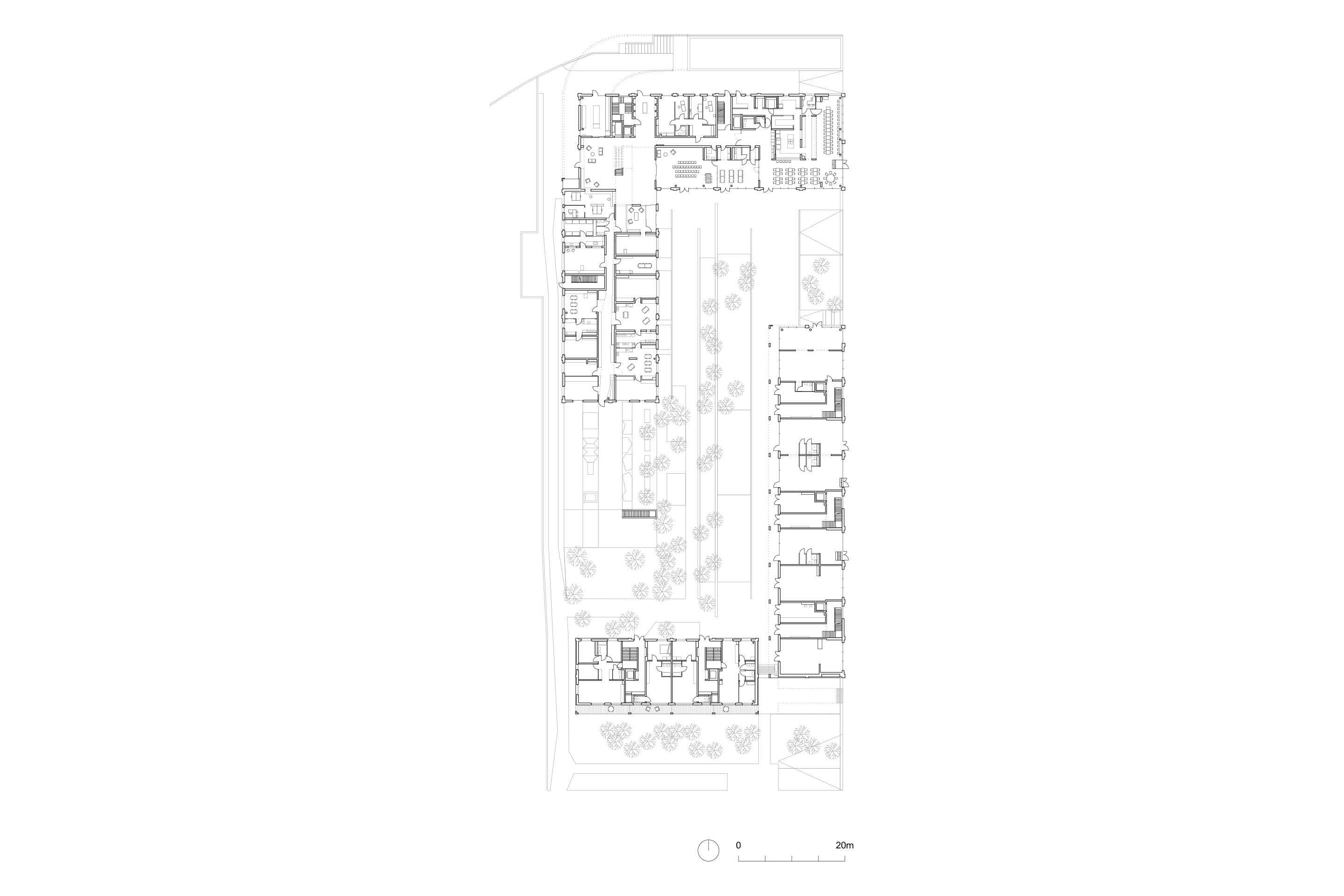
Au milieu des grues, dans la minéralité d’un périmètre encore en construction, se dresse déjà la résidence l’Adret. Depuis l’extérieur, l’édifice est discret: une façade en béton préfabriqué de teinte claire, au procédé constructif simple et lisible et aux proportions habituelles pour l’œil du citadin. Implanté entre les voies ferrées et la passante route du Grand-Lancy, le projet est intégré dans un îlot ouvert doté d’une place centrale calme entre deux L inversés: au nord, la résidence, au sud, des logements d’utilité publique.

Si la mise en œuvre est sobre et efficace, de l’implantation du bâti à sa matérialité, c’est en pénétrant dans le bâtiment que son fonctionnement innovant se révèle progressivement. Il y a deux ans, l’Adret a en effet été investie par ses habitants: un groupe d’étudiants cohabitant avec une majorité de seniors. À la différence d’un EMS, les personnes âgées sont autonomes et vivent en appartements, bénéficiant toutefois d’une palette de services quotidiens. Ceux-ci incluent une infirmerie, un restaurant, une épicerie, mais aussi une gérance attentive, et surtout, ils peuvent être aidés par des étudiants investis, dont le loyer demeure modéré en échange de services rendus aux aînés. Une crèche prend également place au rez.

Afin d’inciter la rencontre entre ces deux tranches d’âges, les architectes du bureau Tribu ont développé une série d’espaces supplémentaires plus ou moins aménagés. Ces recoins, pièces en plus et appendices, permettent au domestique de déborder des appartements, et d’être partagé.

Un carrefour vertical

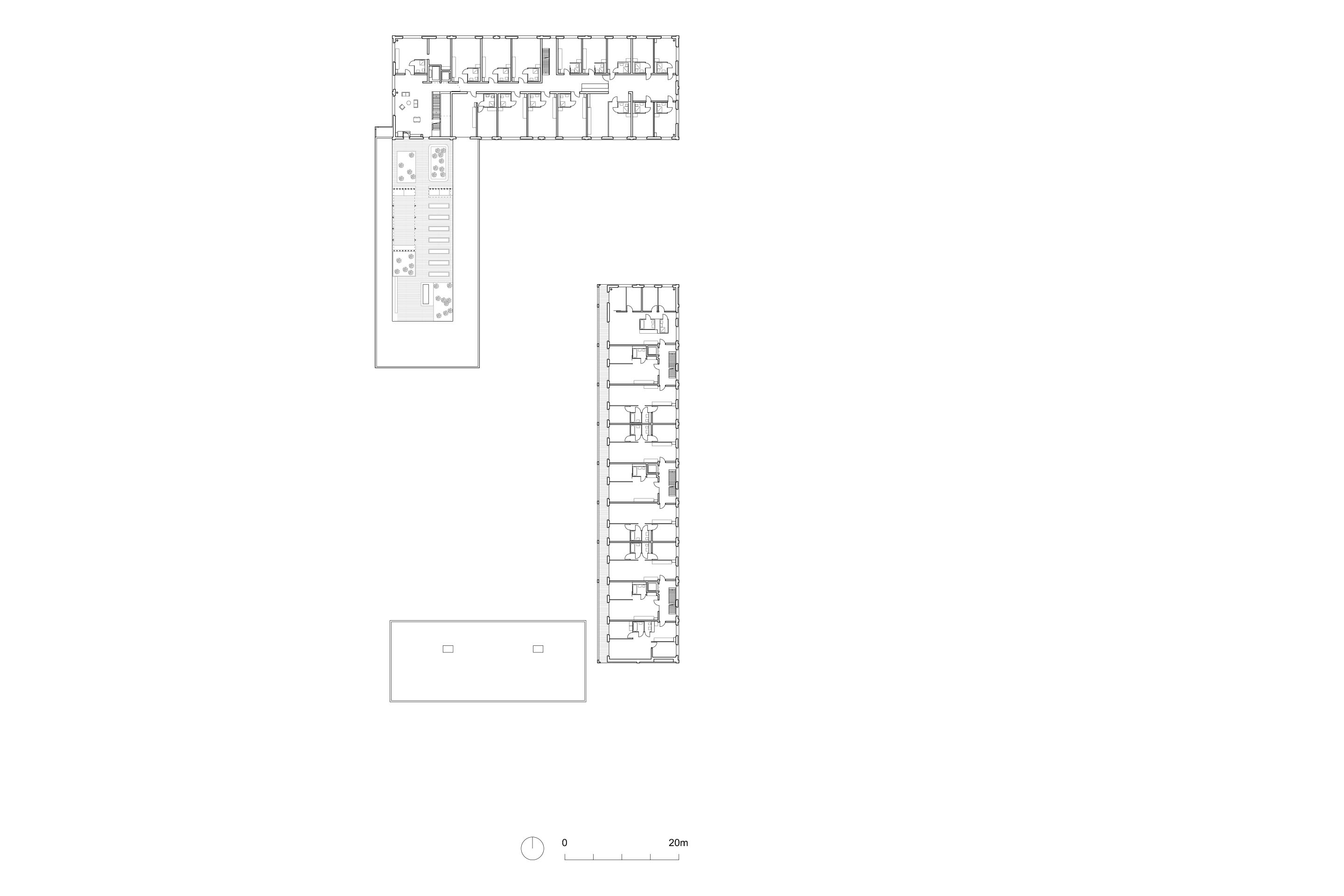
Situé au coin du plan en L, le lobby de l’immeuble se présente comme un point de croisements multiples, et devient un lieu de passage presque inévitable pour tous les résidents, favorisant les rencontres et les discussions à la volée. En plein centre de ce hall, l’escalier principal flotte dans une trémie surdimensionnée et ouverte du rez-de-chaussée à la toiture. Il fonctionne comme un espace public déplié verticalement, en accordéon: on y croise l’ensemble des habitants dans leurs diverses occupations, on y perçoit l’écho des pas et des conversations, on y ressent le pouls de la résidence comme dans une petite rue.

Ce sentiment d’urbanité est accentué par le traitement matériel. L’escalier central et ses paliers offrent plus de rugosité que le reste des circulations et des espaces collectifs. Les marches et la paillasse, d’un béton au grain grumeleux, évoquent le langage des aménagements extérieurs, quand le garde-corps en bois brut épais renvoie davantage à l’univers sensoriel du mobilier urbain qu’à celui de la domesticité. Les paliers, projetés vers la ville par de hautes baies vitrées, baignent la trémie de lumière naturelle et renforcent encore ce lien au dehors. Le noyau du bâtiment opère ainsi une transition graduelle entre la ville proprement dite et les logements.

Couloirs et appendices

En traversant les couloirs, on se rapproche petit à petit des codes de l’espace domestique. Le béton lissé des murs et plafonds cohabite avec un plancher chaud et de larges menuiseries en chêne, marquant clairement une nouvelle séquence spatiale, plus intime. Chaque porte d’entrée jouxte une bande verticale de verre opaque, liant le domestique au collectif, permettant aux habitants de percevoir en filigrane les mouvements extérieurs. Inversement, le domestique investit l’espace de circulation devant chaque entrée par des cubes de bois – entre l’assise et la boîte – recevant les chaussures, les parapluies voire des bibelots, comme un fragment de hall d’entrée déplacé à l’extérieur; un mouvement d’investissement des communs qui peut sembler symbolique, mais qui s’inscrit dans une démarche plus large.

Ainsi, les espaces d’entre-deux sont développés par une série d’«appendices» agrandissant les circulations. Ceux-ci peuvent conduire jusqu’à une véritable pièce supplémentaire, ouverte d’une part sur le large couloir, et d’autre part sur la ville. Les programmes de ces espaces additionnels sont plus ou moins définis. Parfois, le couloir enfle à peine, pour recevoir quelques appareils de sport disposés face à une baie vitrée. Puis c’est une bibliothèque bien garnie, avec sa grande table, ses chaises et canapés. Enfin, c’est un salon télé, où l’on joue au Scrabble, où l’on suit un match de tennis.

Si quelques ajustements ont été nécessaires pour s’approprier les lieux par rapport aux plans des architectes – un rideau ici, un meuble ou une télévision là-bas, des livres sur les étagères… – l’ensemble de ces espaces fonctionne comme prévu: c’est-à-dire mieux que prévu. Les dispositions architectoniques de ces espaces interstitiels ne rendent pas seulement possible l’engagement des habitants, elles le suggèrent. En effet, au-delà de la qualité des lieux, dont les finitions en font bien plus que des espaces résiduels, c’est aussi le nombre de ces recoins à chaque étage qui les rend accessibles. On ouvre sa porte d’entrée pour tomber directement dans le salon commun, on croise la bibliothèque au détour d’un couloir… Nul besoin d’aller chercher ce qu’on a sous les yeux.

Un lancement confiné

Les circonstances ont, il est vrai, aidé au démarrage. À la livraison du bâtiment, alors que les premiers occupants s’installent tout juste (une majorité de personnes âgées et un groupe d’étudiants), la pandémie atteint la Suisse et confine les habitants fraîchement débarqués. D’après leurs témoignages, les espaces partagés internes au bâtiment revêtent alors un caractère salvateur: celui d’un dehors à l’intérieur, où travailler, se promener, lire, discuter… Les liens se tissent, les tartes aux pommes et soupes des aînés s’échangent naturellement avec les étudiants contre des coups de main en informatique ou les quelques courses hebdomadaires. Ces services étaient bien sûr déjà prévus contractuellement dans le fonctionnement de la résidence, mais deviennent plus naturels: avec l’expérience du confinement, une proximité s’est créée, et a empli l’espace qui lui était destiné.

Dans la continuité de cet épisode rassembleur, il est à noter que la régie s’affaire à maintenir la cohésion collective, par l’initiation de projets communs et par une attention active à tous les habitants. Un stand de crêpes a par exemple été tenu sur le marché de Noël de Lancy, réservé à l’initiative de la régie, puis alimenté et animé à tour de rôle par les résidents volontaires. Or, si ce type de projet est porté par tous et toutes, une étincelle peut être nécessaire pour l’enclencher et dépasser l’inertie collective. Il en va de même pour les espaces informels, (si l’on peut dire, finalement, tant ceux-ci sont souhaités), dont la régie encourage et facilite l’usage.

Dépasser les standards

Cette sensation de voisinage prend aussi place au sommet du bâtiment, dans le seul espace extérieur réservé aux résidents. Au sixième niveau, le toit-terrasse prend des airs de cour commune surélevée. Dans ses proportions, ses accès, ses usages, sa situation, il en possède tous les attributs. Il n’y manquerait qu’une fontaine ou une végétation plus présente pour atténuer l’aridité du platelage. C’est effectivement une des limites que l’on peut percevoir sur cette terrasse, tout comme dans les différents espaces collectifs intégrés aux étages. Malgré une évidente recherche de convivialité, la rigueur de certains revêtements et du mobilier ramène aux limites des budgets alloués à ces espaces supplémentaires – ceux-ci n’étant pas valorisés directement par un loyer, à la différence des appartements. S’ajoute à ce facteur la forte normativité du programme dont les règlements de sécurité incendie, par exemple, contraignent la palette de matériaux possibles.

Néanmoins, malgré ces standards difficiles à contourner, les volontés d’expérimenter et de rassembler sont nombreuses. On pourra citer en exemple les appartements communautaires pour personnes âgées, dont les chambres sont arrangées en grappes autour d’un salon et d’une cuisine partagés; ou encore le positionnement de la laverie, attenante au lobby et baignée de lumière, devenant un véritable lieu de séjour. Ces initiatives permettent de compenser des typologies d’appartements aux proportions plutôt exiguës (une majorité de studios de 21 m2 et d’appartements 2 pièces de 32 m2). Celles-ci témoignent autant de la standardisation du programme et de la pression foncière de Genève, que du besoin d’espaces autres, comme les pièces communes placées à chaque étage.

Un équilibre collectif

Finalement, il semble difficile de déterminer avec précision la recette du succès de la résidence l’Adret, dont le parti programmatique initial pouvait sembler si délicat. En effet, les expériences de mixité intergénérationnelle avec contraintes et services imposés se sont soldées par plus ou moins de réussite ces dernières années.

S’il paraissait crucial de marquer avec précision le rôle de chacun, les aînés demeurant autonomes et les étudiants ne remplaçant pas les soignants, la mise en espace du projet devait aussi permettre les échanges. C’est bien là que les solutions spatiales s’avèrent décisives: afin de générer une amplitude rendant possible cette cohabitation mutuellement profitable entre les habitants, et non une simple juxtaposition de publics différents. L’Adret témoigne ainsi, sans prodiguer de solutions toutes faites, que les réponses architecturales font partie intégrante du débat sur le vieillissement de la population, les difficultés des étudiants à se loger et l’adaptation nécessaire des formes d’habitat.

Lancy Adret lot A, logements mixtes et activités (GE)

 

Maître d’ouvrage
FCLPA, FCIL

 

Architecture
Tribu architecture

 

Ingénierie civile
Perreten & Milleret

 

Ingénierie CVSE
CSD ingénieurs

 

Architecture du paysage
Interval paysage

 

Façade
Prelco

 

Concours
2014

 

Réalisation
2017-2020

 

Surface brute
20 378 m2

 

Coût HT CFC2
57,7 mio CHF

Magazine

Articoli correlati