Den Klang des The­mas va­riie­ren

Der Umbau des Sigristenhauses in Boswil von Gian Salis ist die konsequente und zeitgenös­si­sche Weiterführung einer Tradition im ökonomischen Umgang mit Baumaterial. Wo einst Bauern wohnten und arbeiteten, musizie­ren nun Künstler.

Data di pubblicazione
15-10-2021

Der Zauber liegt im Ort. Das Ensemble aus ehemaliger Kirche, Pfarr- und Sigristenhaus, das der Stiftung Künstlerhaus ­Boswil gehört, steht auf einer Anhöhe im aargauischen Boswil. Musikklänge ziehen über die teils flache, teils hüglige Landschaft mit Höfen und grossen Linden. Nach dem Foyer der alten Kirche hat Gian Salis, der 2014 die Wettbewerbe für beide Pro­jekte gewann, nun die Renovation des ­ehemaligen Sigristenhauses fertiggestellt.

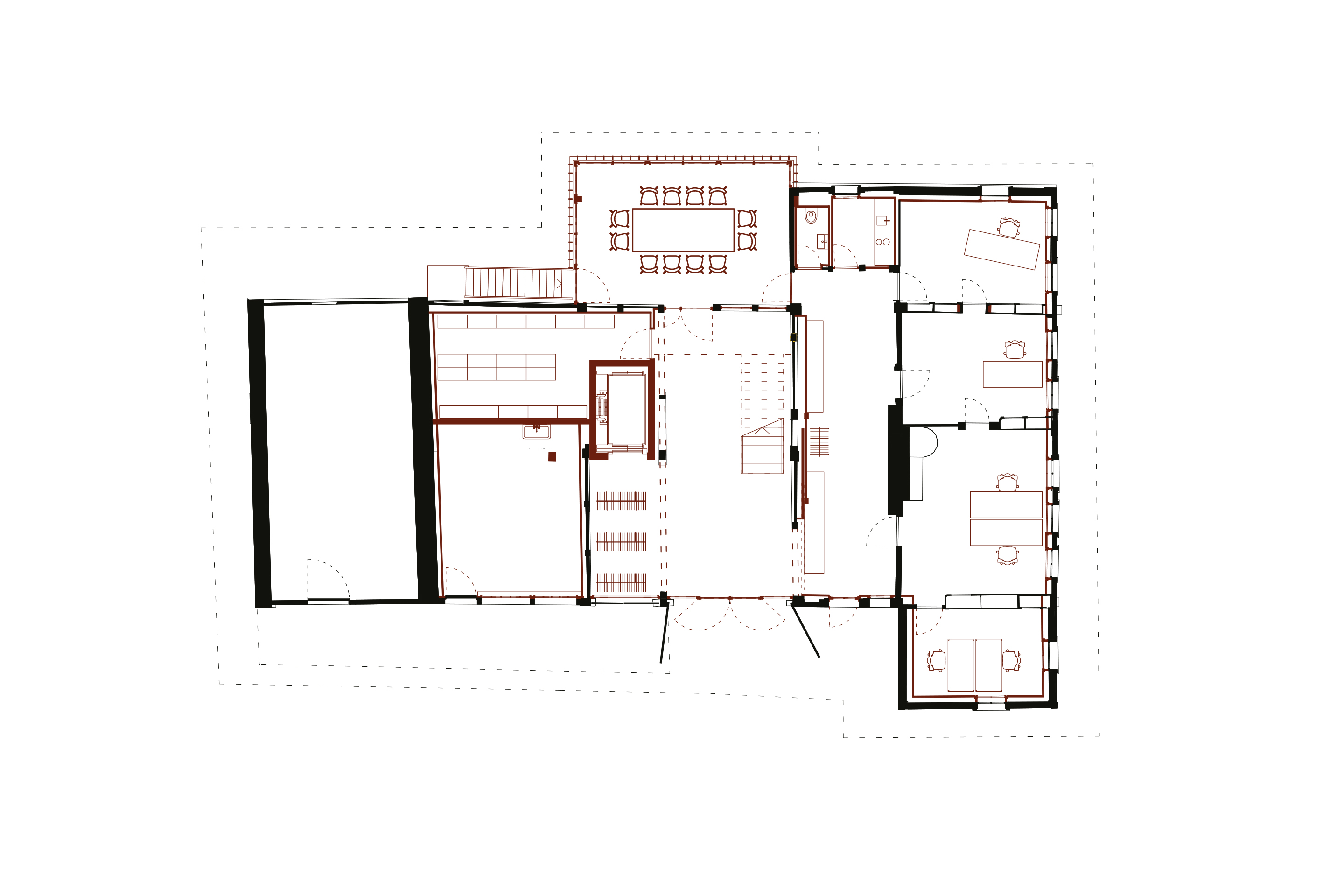
Im denkmalgeschützten Bau, ursprünglich ein Bauernhof aus dem ausgehenden 17. Jahrhundert, brachte er zwei Proberäume, ­Unterkünfte für Künstler, Büros und Sitzungszimmer unter. Der Zustand vor der Renovation ist nur eine Momentaufnahme aus einer langen Reihe von Umbauten und Veränderungen, die im Lauf der Jahrhunderte stattfanden. Vieles davon ist ersichtlich oder den Spuren nach erahnbar – wie das Vollwalmdach, das bis 1876 noch mit Stroh eingedeckt war  –, und noch mehr liegt verborgen.

Die alte Grundstruktur stellte eine Herausforderung dar, denn der kleinräumig gegliederte Bau mit sehr geringen Raum­höhen und den fehlenden Fundamenten war nicht nur in die Jahre gekommen, sondern stand stellenweise vor dem Zerfall. Das Gebäude musste deshalb auf neue Fundamente gestellt werden. Im Erdgeschoss, unter anderem in der Treppenhalle und in den alten Täferstuben, wo sich heute die Büros befinden, hat man, um Raumhöhe zu gewinnen, den Boden abgegraben.

Weitere Artikel zum Thema Holz finden Sie in unserem digitalen Dossier.

An den Wohntrakt angebaut liegen das ehemalige Tenn und ein Stall in einer Hochstudkonstruktion – einer archaischen, für den Aargau typischen Firstständerbauweise. Dabei sind an mittelständigen Hauptpfosten die Dachträger sozusagen aufgehängt und nicht steif verankert wie bei einem konventionellen Dach. Diese bewegliche Konstruktion hat Vorteile, so konnte bei einem früheren Umbau die Dachtraufe über dem Wohntrakt mittels Aufständerung angehoben werden, was bis heute zu der überraschenden Dachform mit einer Welle führte. Gleichartig wurden im Vordachbereich die neuen, das Dach verstärkenden Sparren auf die alten Pfetten aufgeständert. Das Ergebnis ist eine feine Textur mit den alten, vom Regen verwaschenen Ziegeln, die von unten ohne eine einzige Durchdringung textil und zeltartig wirken.

Ausdrucksstarke Dimensionen

Doch nicht nur bei der Grundstruktur, sondern auch im Innern hat Gian Salis das Prinzip des Baus beibehalten – wonach die Altbausub­stanz über die Jahrhunderte ­immer wieder mit einfachsten Mitteln ­neuen Begebenheiten und Ansprüchen an­gepasst wurde. Mit dem Holz aus alten Bauteilen gingen er und der Zimmermann Andreas Treier von Schäfer Holzbautechnik umsichtig um: Wo man sie in anderen Fällen entsorgt hätte, nahmen sie sich die Mühe, die Bretter – es sind schöne Stücke darunter – sorgfältig zu demontieren, zu sortieren, zu nummerieren und zu dokumentieren, um sie im Innenausbau wiederzuverwenden. So fanden einige Teile der alten Böden für neue Wände Verwendung. Im Eingangsfoyer sind an den Wandbohlen seitlich der Treppe Helligkeitsunterschiede auszumachen, die von Tragbalken stammen, auf denen diese Bretter einst lagen.

Zwei Stile, eine Sprache

Eine Herausforderung bestand auch dar­in, in die kleinräumliche Grundstruktur Licht zu bringen. In räumlichen Dimensionen gesehen, wurden die alten Zimmer wo möglich erhalten und wo nötig mit neuen, offeneren Elementen ergänzt. Dadurch entstanden zwei Stile: Wie die Gästezimmer im ersten Obergeschoss sind die Stuben mit den traditionellen Fenstern, in denen sich die Büros befinden, klein und fast ganz mit altem Täfer ausgekleidet. Die Arbeitsräume sehen trotz neuer Dämmung nicht so aus, als hätte sich viel verändert. Wie überall im Haus öffnet man hier die Fenster, wenn es warm wird; von überbordender Gebäudetechnik ist nicht viel auszumachen.

Ein Gegenstück dazu bildet rückseitig  ein moderner Anbau mit dem Sitzungszimmer, dessen Fenster einen panoramaartigen Blick auf die bäuerliche Umgebung freigibt. Ebenso wirkt der hohe Proberaum unter dem steilen Dach durch die verglaste Aussenfassade licht und offen. Alle diese neuen, detailpräzisen Räume wurden auf Wunsch der Denkmalpflege aussen mit ­feinen Holzlamellen überlagert, sodass das Bauvolumen im Dorf ablesbar bleibt.

Das Holz – je nachdem das alte oder das neue – verbindet die Stile zu einer Sprache. Zentrales räumliches Element des Baus ist die grosse, millimetergenau in die Holzstruktur eingepasste Metalltreppe in der Eingangshalle. Sie führt vom verglasten Eingang neben der Rezeption über die Etage mit den Gästezimmern nach oben zu den Probesälen. Eine Stelle im Dach mit alten Glasziegeln, die in unterschiedlichen Tönen schimmern, lässt je nach Tageszeit Sonnenstrahlen in den Raum fallen und verleiht ihm zusätzliche Aufenthaltsqualität.

Dass der Zauber im Boswiler Künstlerhaus nicht verschwunden ist wie an­der­orts, wo allzu umfassende architektonische Eingriffe das Alte überdecken und mit übertriebenem Perfektionsanspruch und Technikaufwand an das Neue angleichen, ist dem Architekten, der Bauherrschaft und wohl auch dem begrenzten Budget zu verdanken. Die Anpassungen fügen sich in eine Reihe von unzähligen Umbauten und Eingriffen, die das Haus im Lauf der Zeit ­erlebt hat, und zeugen gleichzeitig vom Spielraum für zeitgenössische Gestaltung und die Erfüllung neuer Bedürfnisse.

Dieser Artikel ist erschienen im Sonderheft «Stadt aus Holz – Büros, Werkhöfe, Ateliers und andere Arbeitsorte». Weitere Artikel zum Thema Holz finden Sie in unserem digitalen Dossier.

Am Bau Beteiligte

 

Bauherrschaft: Stiftung Künstlerhaus, Boswil

 

Architektur: Gian Salis Architekt, Zürich

 

Statik Holz: Makiol Wiederkehr, Beinwil a. S.

 

Landschaft: Jane Bihr-de Salis, Kallern

 

Holzkonstruktion: Schäfer Holzbau Technik, Aarau

 

Decken: Lignatur, Waldstadt
 

 

Gebäude

 

Geschossfläche brutto (SIA 416): 956 m2

 

Volumen (SIA 416): 2972 m3
    
 

Holz und Konstruktion

 

Vor Ort Abbund, einpassen in Bestand

 

Pfetten: Rot-/Weisstanne 11 m3 (Schweiz)

 

Sparren: Weisstanne / Vollholz 35 m3 (Schweiz)

 

Ständerholz: Rot-/Weisstanne 46 m3 (Schweiz)
 

 

Daten und Kosten

 

Bauzeit: Juni 2019–März 2021

 

Rohbau Zimmermann: Oktober 2019–Juni 2020

 

Total (BKP 1–9): 5.3 Mio CHF inkl. MwSt. inkl. Zimmermann innere Holzbekleidungen ca. 1 Mio CHF

Etichette

Articoli correlati