Spa­zio al­la scuo­la, spa­zi per la scuo­la!

Un dialogo tra Francesca Belloni e Pietro Vitali

In continuità con quanto trattato in Archi 2/2022, interamente dedicato all’Architettura scolastica in Ticino, si propone una riflessione sul rapporto tra architettura e pedagogia, in dialogo con Pietro Vitali, responsabile dell’unità di ricerca «Spazi dell’amministrazione cantonale e della scuola nel Canton Ticino» a partire dallo studio condotto dai ricercatori della SUPSI sull’organizzazione delle scuole medie e medie superiori del Canton Ticino.

Data di pubblicazione
27-04-2023
Francesca Belloni
arch. PhD professore, ricercatore ABC POLIMI, redattrice espazium quaderni
Pietro Vitali
Architetto dipl. ETH, responsabile del corso di laurea in Architettura d'interni della SUPSI

Francesca Belloni: Lo studio a cui si fa riferimento (Claudia Carpinelli, Pietro Vitali, Standard logistici dell’amministrazione cantonale. Secondo modulo: architettura scolastica, SUPSI, Canobbio 2020) è interessante come punto di partenza per un ragionamento che riporti l’attenzione sul ruolo dell’architettura e sulle sue specificità, individuando alcune costanti che, al di là delle condizioni locali, caratterizzano il progetto degli edifici scolastici all’interno del dibattito in corso.

Sebbene stilare un elenco sia difficile, si potrebbe innanzitutto partire dalla relazione tra architettura e pedagogia che, dal Movimento Moderno in avanti, ha rappresentato un elemento rilevante per lo sviluppo di entrambe le discipline. Non si può infatti dimenticare come, tra Ottocento e Novecento, i più importanti pedagogisti – da Pestalozzi a Steiner, da Montessori a Freinet, solo per citarne alcuni tra i più noti – abbiano sentito la necessità di commisurare il loro portato educativo con ricadute di carattere spaziale, dimostrando quanto l’articolazione dello spazio sia il principale strumento per tradurre visioni innovative e radicali in pratiche educative. Esemplare in tal senso è la vicenda della glass-walled classroom presentata da Maria Montessori nel 1915 alla Panama Pacific International Exposition in San Francisco: mettendo in scena lo spettacolo dell’educazione, la Montessori traduce in termini spaziali l’ambiente di apprendimento plasmato in funzione del suo modello educativo e ne mostra al pubblico le potenzialità.

Pietro Vitali: Ogni riflessione attorno all’architettura delle scuole rimanda necessariamente all’identificazione di due poli entro i quali essa si colloca. Uno di questi è il modello pedagogico che l’edificio traduce in architettura: una sorta di matrice teorica che necessita, per realizzarsi, di aule, corridoi, spazi di studio e di insegnamento, aree di incontro e di svago ecc. Ma evidentemente c’è di più: la relazione fra le funzioni e le attività del modello pedagogico, esplicitate con schemi e diagrammi, è spesso tradotta in soluzioni precise e standardizzate a partire da un principio organizzativo di matrice tipologica.

L’altro polo è costituito dall’architettura stessa. Non è una tautologia: l’architettura è di fatto la condizione indispensabile della scuola ed è in essa che sono nate e si sono sviluppate le pratiche che la definiscono e che hanno portato ai modelli pedagogici sui quali oggi si fonda. Un caso esemplare è quanto avvenuto nella Svizzera italiana dagli anni Cinquanta del secolo scorso, in quella prolifica stagione dell’architettura moderna ticinese, che conobbe nei progetti dell’edilizia scolastica uno dei più interessanti ambiti di dibattito e innovazione. In quel contesto nacque un importante strumento a supporto dei progettisti: le Schede dell’edilizia scolastica, una serie di compendi che descrivono come vadano progettati i vari ordini di scuola. Di fatto quelle schede traevano, sì, spunto dai principi pedagogici che la scuola pubblica intendeva adottare, ma erano in grande parte frutto dell’esperienza progettuale che era maturata e stava maturando in quegli anni.

Col tempo tali schede, pur venendo regolarmente aggiornate, e forse proprio anche per questa ragione, hanno finito per assumere un carattere sempre più prescrittivo e vincolante, sottraendo di fatto all’architettura quel ruolo, tanto prezioso, di ricerca e promozione rispetto all’innovazione pedagogica.

FB: Considerato all’interno di questo quadro di riferimento, il rapporto tra architettura e pedagogia offrirebbe il gancio per leggere l’architettura e il processo che si produce attraverso il progetto non nel senso di una meccanica traduzione spaziale di specifiche istanze pedagogiche o determinati modelli didattici, ma come momento di costruzione del processo educativo.

In tal senso, ritornando alla ricerca di alcune costanti, potremmo sottolineare come sia possibile individuare due ambiti o meglio due diverse scale di organizzazione spaziale. Quella della classe intesa come «casa dei bambini» – concetto rispetto al quale l’esperienza di Maria Montessori è certamente significativa – e quella della scuola intesa come piccola città, in un certo modo rifacendosi a quanto affermato da Leon Battista Alberti nel De re aedificatoria secondo cui «la città è come una grande casa, e la casa a sua volta una piccola città». Questa interrelazione di scale di riferimento spaziale è sicuramente un tema decisivo e di rilevante impatto sulla ricerca tipologica in tema di scuole.

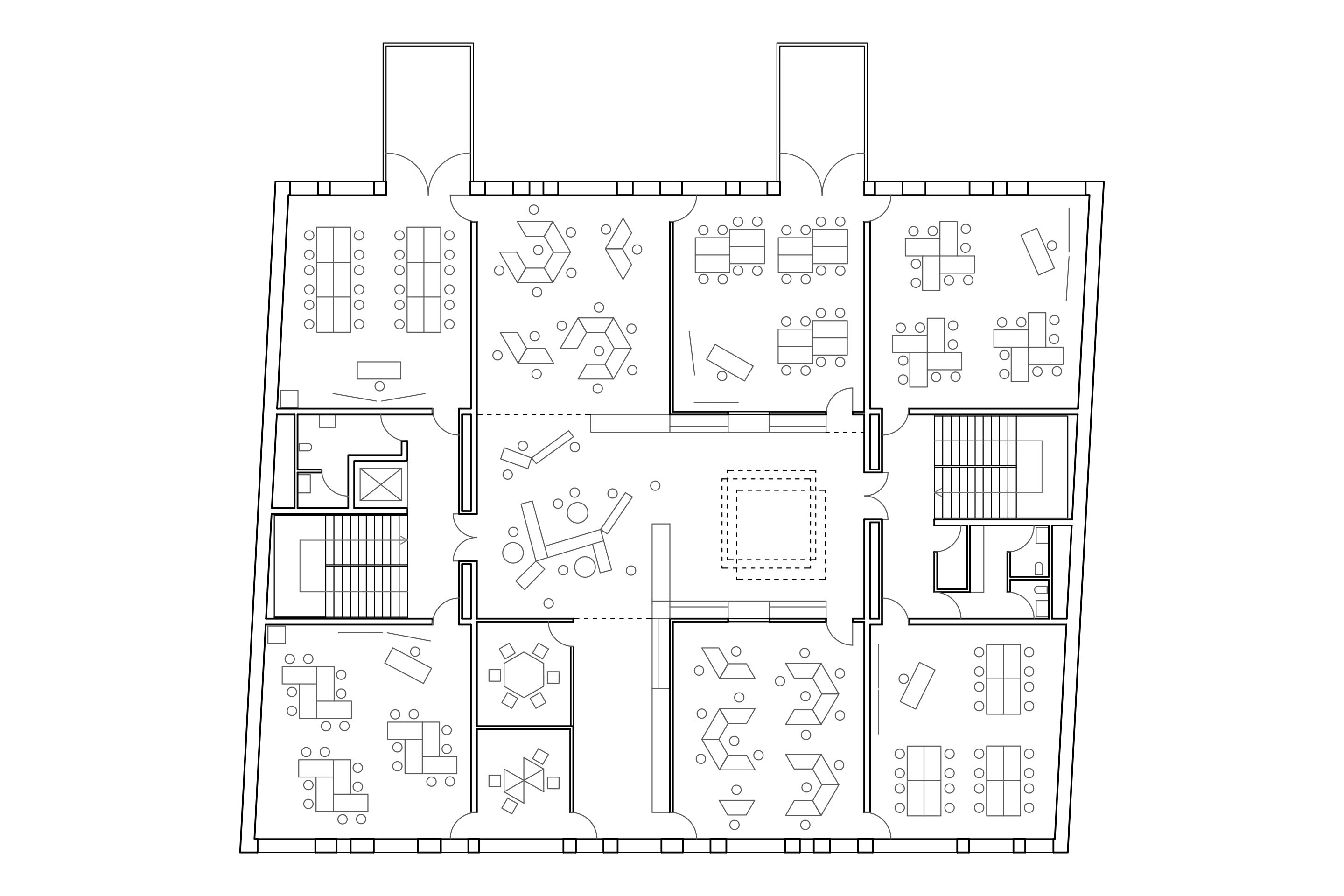
PV: Vale sicuramente la pena ripartire da queste analogie tra scuola e villaggio, o tra aula e casa, per ricondurre la riflessione a quanto emerso dallo studio sugli spazi di scuole medie e medie superiori del Cantone Ticino. L’attenzione è stata infatti rivolta in buona misura all’indagine sugli spazi che possono efficacemente definire l’intenzione di dare agli allievi un luogo di studio che rifletta il loro rapporto con la società in funzione dell’età. Fra le soluzioni e le proposte più significative sviluppate e realizzate negli anni recenti in tale ottica, sia a livello architettonico, sia a livello pedagogico, emergono due modelli spaziali di particolare interesse: l’aula di classe e l’atrio diffuso.

L’aula di classe per i bambini più piccoli, dove l’analogia con la casa implica un contesto di relazioni sociali relativamente ristretto: un gruppo di bambini che cominciano, grazie all’esperienza della scuola, a costruire una rete sociale al di fuori del proprio contesto familiare.

Nell’avvicinarsi all’età adulta, il contesto sociale dei ragazzi si articola e progressivamente si allarga all’intera comunità della scuola, una sorta di villaggio, che nei suoi spazi pubblici e comuni permette a ognuno di realizzarsi abitandolo secondo modalità articolate. È proprio per dare spazio a questa dinamica che le aree di circolazione e di collegamento fra le aule non sono più corridoi, ma diventano veri e propri atri, di dimensioni e caratteristiche diverse, pensati per accogliere funzioni e attività di studio, di incontro e di svago; sono ciò che abbiamo chiamato atri diffusi.

L’analisi delle diverse sedi scolastiche svolta nell’ambito del nostro studio mostra come la ricerca e l’elaborazione di soluzioni tipologiche e architettoniche non può certamente ridursi all’applicazione astratta di questi modelli. È piuttosto vero il contrario: la specificità del progetto e lo spazio lasciato all’architetto in questa ricerca è fattore decisivo di qualità.

L’aula di classe è chiamata non solo ad accogliere una serie diversificata di attività, con varie possibilità di disporre banchi, sedie e arredi in generale, ma anche e soprattutto a ogni allievo di abitarla. Quindi non solo le diverse, e già ben note, variazioni sulla disposizione dei banchi, ma anche luoghi dove ogni allievo possa lasciare il proprio materiale e i propri effetti personali o piccoli spazi per appartarsi. Tale concezione dell’aula di classe porta a diverse possibili declinazioni: pensiamo alle anticamere condivise che Arne Jacobsen aveva progettato per la scuola elementare di Rødovre, oppure, in tempi più recenti, a quei vani aggiuntivi disposti fra due aule di classe nella scuola elementare di Engelberg, progettata da Ursula Hürzeler e Shadi Rahbaran. Un’interessante via di mezzo fra queste due varianti la troviamo nella scuola progettata dagli architetti Studer Simeon Bettler in Albis­riederplatz a Zurigo: un’aula di classe a L, che consente, grazie a questa articolazione spaziale, di organizzare le attività in modo differenziato, assecondando le necessità di ogni allievo.

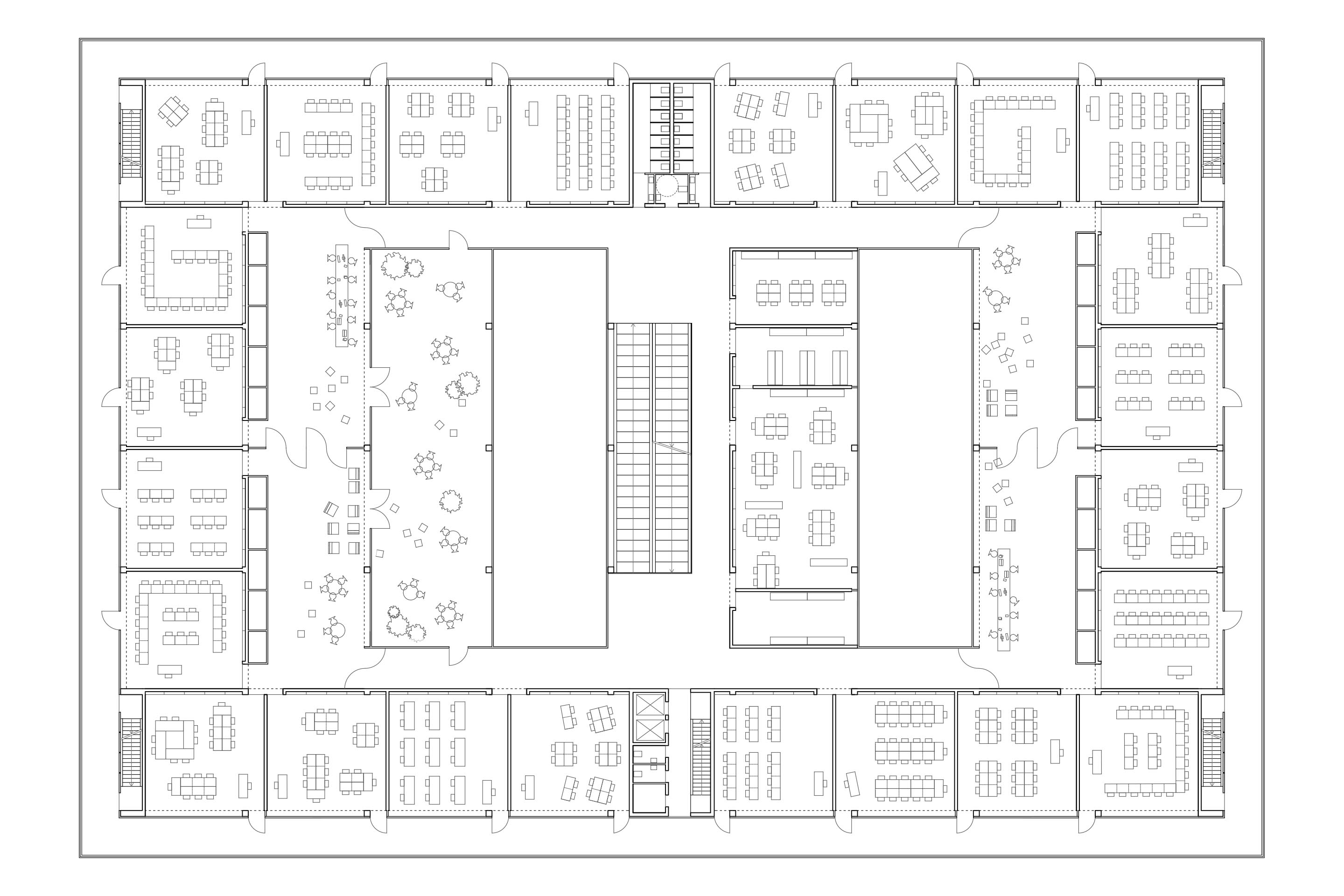
Più difficile è identificare delle categorie per l’atrio diffuso. Le variazioni fra le soluzioni adottate per questa unità spaziale vanno da un più o meno generoso allargamento del corridoio che distribuisce le aule e gli altri spazi della scuola, generando in tal modo delle aree dove è possibile sostare, studiare o svagarsi, come nel progetto di Christian Kerez per la scuola di Leutschenbach a Zurigo, a una più ampia e libera concezione della pianta. Un’applicazione molto chiara di questo modello è il liceo di Ørestadt, costruito a Copenaghen nel 2009 dallo studio 3XN, che disloca in un grande spazio aperto le diverse aule chiuse della scuola. La qualità di questo impianto risiede nelle qualità spaziali del grande atrio che oltre a dar sede alle diverse attività della scuola, mira a dar forma a un paesaggio interno vario e stimolante.

FB: A partire dalla descrizione dei due principali elementi costitutivi della scuola «futura» da voi individuati – l’aula di classe e l’atrio diffuso – mi paiono di particolare interesse alcune considerazioni. La prima nasce dalla scontata, ma doverosa constatazione che l’architettura si costruisce sempre a partire dalle architetture; è interessante infatti notare come il rapporto di reciproca dipendenza tra tipo e sistema sociale si espliciti con riferimenti diretti a edifici piuttosto che a schemi o a diagrammi funzionali che, qualora impiegati per illustrare possibili alternative distributive o organizzative, risultano certamente efficaci, tuttavia privi di sostanza architettonica. Il vostro studio riafferma inoltre che solo attraverso il progetto si apre una reale possibilità di sperimentazione e di confronto tra organizzazioni spaziali differenti e che il progetto non può ridursi a una traduzione letterale di schemi o norme.

Entrando nel merito dei risultati del vostro studio, è significativo sottolineare come, a partire da condizioni e presupposti per certi versi molto diversi, in Italia, i ricercatori di Indire si sono mossi su terreni simili ai vostri, giungendo a risultati comparabili. Nel tentativo di identificare l’am­biente di apprendimento più efficace per gli studenti del nuovo millennio, hanno infatti coniato la formula “1+4 spazi educativi per una nuova generazione di scuole”, secondo la quale «“1” è lo spazio di gruppo, l’ambiente di apprendimento polifunzionale del gruppo-classe, l’evoluzione dell’aula tradizionale che si apre alla scuola e al mondo. Un ambiente a spazi flessibili in continuità con gli altri ambienti della scuola. “4” sono gli spazi della scuola complementari, e non più subordinati, agli ambienti della didattica quotidiana. Sono l’Agorà, lo spazio informale, l’area individuale e l’area per l’esplorazione». Un’aula di classe completamente rivista rispetto all’assetto tradizionale, in stretto rapporto con quattro aree complementari, tra loro spazialmente diversificate, in grado di ospitare lo svolgersi di attività tra loro altrettanto differenziate. A questo si aggiunge il tentativo di ridurre o abolire la distribuzione, per lo meno nella forma del corridoio tradizionale, sovente sostituito da una circolazione continua tra vani, secondo una reinterpretazione spaziale del corridore di vasariana memoria che nell’enfilade barocca ha visto il suo massimo splendore. Ne è un esempio la scuola elementare di Engelberg, che citavi tu stesso, ma anche i progetti dello studio Thomas Fischer Architekt per la scuola secondaria di Laufen o per il complesso scolastico Freilager a Zürich-Albisrieden dove la volontà di eliminare qualsiasi spazio di distribuzione dà origine a una pianta compatta organizzata a matrice, un ininterrotto piano sequenza architettonico, un flusso spaziale senza apparente gerarchia.

Questa ultima configurazione spaziale – tra l’altro caratteristica di un certo numero di recenti realizzazioni – ci permette di introdurre un’altra questione che apparentemente afferisce a un piano differente, ma che in realtà condiziona molto il progetto. Mi riferisco, in termini volumetrici, alla compattezza e, in termini planimetrici e distributivi, al rapporto tra superficie di circolazione, superficie di piano e superficie utile. Considerazioni in merito a tali fattori sono infatti le ragioni della sempre maggior diffusione anche di un altro genere di impianto, quello del blocco compatto e isolato organizzato attorno a un nucleo centrale di distribuzione, che diventa al contempo una sorta di grande hofe collettiva coperta: la proposta per la Modulare Grundschulen a Berlino o il progetto per la scuola Anna-Freud a Berlino di Bruno Fioretti Marquez, così come il progetto per quattro scuole elementari modulari a Monaco di Wulf Architekten ne sono esempi.

PV: L’adozione dell’aula di classe e dell’atrio diffuso, per l’estensione di quest’ultimo o per la grande superficie necessaria alla realizzazione delle aule di classe così come descritte, sembrerebbe portare inevitabilmente a un elevato consumo di spazio. L’analisi delle superfici fatta confrontando diverse scuole porta tuttavia alla conclusione opposta. Dopo aver stabilito due criteri chiave per questa analisi, ovvero la superficie pro-capite in classe e la superficie pro-capite nella scuola, emerge che i rapporti migliori vengono registrati nelle scuole che adottano questi modelli. Da un’osservazione delle planimetrie, questo rapporto va ricondotto dal punto di vista architettonico-tipologico alla pressoché totale assenza di corridoi che questi modelli consentono. Sotto il profilo pedagogico e organizzativo, la possibilità di concentrare molte attività nei due flessibili ambienti di riferimento – l’aula di classe e l’atrio diffuso – permette inoltre di usare più razionalmente e con più profitto tutti gli spazi della scuola.

Potremmo dire che l’adozione di modelli tipologici e organizzativi innovativi trova in alcuni edifici una traduzione particolarmente chiara e comprensibile. Ne sono un esempio lo stesso liceo di Ørestadt per l’atrio diffuso, la tedesca Hessenwaldschule di Wulf Architekten per il modello delle scuole organizzate in clusters o ancora la Richmond High School di Hayball in Australia che traduce in modo molto fedele gli innovativi principi pedagogici dello stato di Victoria. Nella letteratura specializzata si rimanda spesso a questi e altri casi che abbiamo trattato e analizzato anche nel nostro studio. Se riportiamo la nostra attenzione alle qualità intrinseche dell’architettura e dei suoi spazi, riconoscendo in queste qualità uno dei fattori centrali e imprescindibili della buona scuola, dobbiamo anche riconoscere al progetto e alla sua qualità quel ruolo insostituibile di sintesi che una traduzione più o meno meccanica o diligente di modelli e tipi, da sola, non garantisce. Ci ritroviamo comunque sempre e ancora di fronte alla necessità, ogni volta, di ricorrere al progetto, inteso come strumento, come metodo critico di analisi e di sviluppo non solo delle pratiche dei tipi e dei modelli, ma sempre e ancora dell’architettura e degli spazi.

FB: Per concludere vorrei riportare l’attenzione proprio a quello a cui tu accenni e provare a esplicitarlo attraverso un esempio. Mi pare infatti sia sempre necessario distinguere tra buone pratiche e progetti esemplari. Considerando i risultati della vostra ricerca o di quella di Indire e confrontandoli con molti degli esempi citati quello che tu chiami atrio diffuso, sul modello del liceo di Ørestadt, diventa il fulcro attorno a cui la scuola si riconosce e si organizza, consentendo a ciascuno di sentirsi partecipe della comunità scolastica secondo le proprie personali necessità e inclinazioni. Un genere di spazio che tuttavia non è un’invenzione recente, ma che ritrova i suoi antenati nella tradizione dell’architettura e rimanda ai tipi consolidati, caratteristici degli edifici collettivi, in particolare del nord Europa. Torna alla memoria l’Autobiografia scientifica di Aldo Rossi e la descrizione «della grande Lichthof dell’Università di Zurigo, […] che è sempre piena di studenti al piano terra e negli ordini successivi. E che vedevo come un bazaar, pieno di vita, un edificio pubblico o termale dell’antichità, ciò che dovrebbe essere un’università».

Pare ancora una volta questa la ragione dell’architettura della scuola, anche di quelle del terzo millennio; quella di costruire una “scena fissa” il più possibile capace di adattarsi ai cambiamenti – anche a quelli non previsti o non prevedibili – rimanendo tuttavia sempre uguale a se stessa.

Sul lungo periodo, è questo il significato più profondo di sostenibilità: la capacità dello spazio e della sua interpretazione formale di accogliere il cambiamento, di costruire uno scenario duraturo e, al variare delle condizioni al contorno, di rappresentare il punto di riferimento culturale e sociale di una comunità.

-> Standard logistici dell’Amministrazione cantonale – Secondo modulo: architettura scolastica

Articoli correlati