La po­li­ti­ca re­si­den­zia­le di Gi­ne­vra per i pros­si­mi vent’an­ni

Il 20 febbraio scorso, il Consiglio di Stato del Cantone di Ginevra ha presentato il Piano regolatore cantonale «Ginevra 2030». Questo documento di riferimento definisce le linee guida e le condizioni per la gestione del territorio cantonale nei prossimi vent’anni.

Data di pubblicazione
24-06-2013
Revision
19-10-2015

La politica abitativa è ovviamente uno degli assi portanti del testo. Tuttavia l’azione intrapresa dal governo non si limita alla grande scala del piano regolatore; essa avrà conseguenze anche sull’elaborazione dei piani localizzati di quartiere (plq) e stimola nel frattempo una riflessione critica sull’insieme dei regolamenti e disposizioni relative alla costruzione di alloggi, quali la normativa sull’accesso alla proprietà in zona di sviluppo o l’incoraggiamento alla compartecipazione dei comuni nella costruzione di complessi residenziali.

L’estrema densità delle leggi e dei regolamenti che disciplinano la costruzione non ha impedito l’emergere di progetti di qualità. Ciò dimostra che, se l’arsenale delle normative ginevrino merita di essere sottoposto a un esame critico, gli attori e i progettisti hanno anch’essi il dovere di rimettersi in gioco.

Con il piano regolatore cantonale 2030, gli amministratori si assumono una triplice responsabilità nei confronti delle generazioni future. Si tratta di dar loro la possibilità di:
–- alloggiare in abitazioni di qualità affittate a prezzi onesti;
–- risiedere e lavorare in un agglomerato in grado di garantire una buona qualità di vita e spazi pubblici generosi;
–- vivere in un cantone le cui caratteristiche paesaggistiche, naturali, architettoniche e agricole siano preservate.

100.000 ginevrini hanno oggi meno di vent’anni. È proprio per loro che il Consiglio di Stato ha concepito il Piano regolatore cantonale il cui scopo è di permettere la costruzione di alloggi sufficienti, preservando le qualità del paesaggio e limitando il consumo di terreni agricoli. Lo strumento del piano regolatore risponde all’ambizione – sancita dalla nuova costituzione – di vivere in un «agglomerato compatto, multipolare e verde». Esso mira ad aumentare la densità dei centri abitati, in particolare nei pressi degli assi di trasporto, e presta grande attenzione alla qualità degli spazi pubblici. Il piano regolatore 2001-2015 aveva sottovalutato le esigenze abitative all’interno del cantone, contribuendo così ad aggravare la carenza di alloggi.

Il piano «Ginevra 2030» – che offre un potenziale di 50.000 future abitazioni edificate nel pieno rispetto del territorio – vuole colmare il ritardo e rispondere alle necessità dei ginevrini. Si è pensato in particolare alle giovani famiglie che oggi sono troppo spesso costrette a stabilirsi nella vicina Francia o nel Vaud data l’impossibilità di trovare alloggi a prezzi accessibili nel nostro territorio. Ginevra accoglie ogni giorno circa 100.000 pendolari, il che significa che circa un terzo dei posti di lavoro è occupato da persone che non possono o non hanno mai potuto permettersi di risiedere all’interno del cantone! Il costo di questi spostamenti è esorbitante; il lavoro pendolare è causa di perdite fiscali, di sovraccarico degli assi di traffico, di diminuzione della qualità della vita e di disgregazione sociale. L’attuale carenza di alloggi ha conseguenze anche sul tasso di fertilità: solo 1,4 figli per donna a Ginevra, contro 1,9 nella limitrofa regione francese e 1,75 nel distretto di Nyon.

Affinché la proposta potesse svilupparsi su una base solida, era necessario ampliare la platea dei destinatari del nuovo piano regolatore e consentire a ciascun cittadino di comprenderne le visioni e gli obiettivi. L’opuscolo di cinquanta pagine che accompagna il documento ufficiale ripercorre dunque la storia dell’urbanistica ginevrina e fissa gli indirizzi di massima del progetto. Infatti per decidere come si vuole collettivamente sviluppare il territorio è necessario prima di tutto sapere come si è formato.

Agire su scala intermedia

A partire dal documento che definisce la pianificazione del territorio cantonale su grande scala, François Longchamp – consigliere di Stato responsabile del Dipartimento di Urbanistica dal giugno 2012 – ha voluto incoraggiare una riflessione approfondita sullo strumento del piano localizzato di quartiere (PLQ) che determina la forma urbana a una scala intermedia.

Istituito dalla Legge generale sulle aree di sviluppo che risale al 1957, il plq stabilisce il perimetro di impianto, il profilo e la destinazione d’uso di edifici e spazi liberi, passeggiate, parchi giochi e lotti riservati alle infrastrutture pubbliche; contiene disposizioni riguardanti la vegetazione da salvaguardare o creare, i parcheggi, le vie di comunicazione, gli impianti e le reti di fluidi. Questo strumento, ormai gravato da una considerevole giurisprudenza, ha certamente contribuito a generare una banalizzazione della produzione architettonica; rimpiazzando la sommaria definizione di un perimetro con l’ostinata predeterminazione delle volumetrie e delle superfici costruite, esso tarpa le ali ai progettisti prima ancora che questi possano iniziare a esplorare le potenzialità di un sito. L’intralcio posto alla riflessione spaziale e contestuale dà origine a una morfologia urbana spesso mediocremente bidimensionale. Nel tentativo di porre rimedio a questa deriva è stato dato incarico a un gruppo di lavoro – formato da rappresentanti dell’amministrazione, membri delle associazioni di progettisti, costruttori e promotori immobiliari – di portare a termine, sotto la guida di un’equipe di urbanisti, un’analisi completa di questo strumento e quindi di proporre una bozza di riforma entro la fine di giugno di quest’anno

Leggi e regolamenti

Diverse leggi e regolamenti, a volte accompagnati da direttive che giungono fino a imporre i materiali da costruzione, inquadrano la produzione di alloggi a Ginevra. Le prime normative risalgono al boom economico del dopoguerra, epoca in cui la città doveva gestire 6500 nuovi residenti l’anno e veniva inaugurato il programma degli alloggi ad affitto moderato (hlm). Tali normative hanno permesso la realizzazione di grandi complessi residenziali, in particolare a Lignon, Meyrin e Onex. Ma la vigorosa crescita economica ha rapidamente accresciuto anche il timore che gli alloggi costruiti non corrispondessero più ai bisogni preminenti della popolazione. La Legge generale sull’alloggio e la protezione degli inquilini (lgl), entrata in vigore nel 1978, ha istituito il controllo degli affitti di tutte le unità abitative realizzate direttamente dallo Stato o con il suo contributo. Il regolamento esecutivo specifica la superficie minima netta di ogni alloggio a seconda del numero di locali che lo compongono e quella degli spazi individuali e comunitari.

Nel 1962 la carenza di abitazioni, fenomeno ricorrente a Ginevra, aveva già dato origine a una legge che limitava la demolizione e la conversione di edifici residenziali. Nel 1983 la prima normativa è stata notevolmente migliorata grazie all’adozione – in seguito a un’iniziativa popolare – della Legge sulle demolizioni, modifiche e ristrutturazioni delle case d’abitazione (ldtr), una peculiarità ginevrina. Nella sua formulazione si precisa che essa «mira a salvaguardare l’habitat, le sue attuali caratteristiche e le condizioni di vita esistenti» e che, a tal fine, prevede «restrizioni alla demolizione, trasformazione e cambio di destinazione d’uso delle abitazioni; incoraggia lavori di manutenzione ragionevoli e proporzionati; pone limiti all’alienazione di alloggi destinati all’affitto; punisce con l’esproprio temporaneo i proprietari di appartamenti lasciati vuoti senza legittimo motivo».

Questa legge, introdotta per stabilizzare il numero delle abitazioni disponibili e calmierare gli affitti in maniera che essi «corrispondano alle esigenze della popolazione», impone la definizione di piani finanziari controllati dall’Ufficio alloggi per ogni nuovo complesso residenziale. Nel corso degli ultimi anni la Legge sull’energia e le normative riguardanti l’inquinamento acustico, i rischi di incendio ecc. hanno introdotto ulteriori vincoli costruttivi.

I progetti

Certo, questa somma di costrizioni che stabilisce con precisione l’impianto, il programma e i costi di ogni futuro complesso residenziale, limita considerevolmente i margini di manovra nell’elaborazione progettuale. Ma costituisce anche una comoda scusa per coloro i quali si limitano ad adeguarsi a delle direttive mediocri. L’affastellarsi di testi e prescrizioni amministrative di cui pochi sanno gestire le complicazioni ha inoltre l’effetto di innalzare delle barriere virtuali che inaridiscono il settore.

La diversità tipologica e morfologica non è tuttavia scomparsa dal paesaggio urbano di Ginevra. Se guardiamo a una serie di complessi residenziali consegnati di recente o sul punto di esserlo – proposte le cui tipologie vanno dalla barra alla torre, dal fabbricato a ballatoio all’edificio con cortile – essa pare addirittura dar prova di una piacevole vitalità.

Philippe Meier e Ariane Poncet
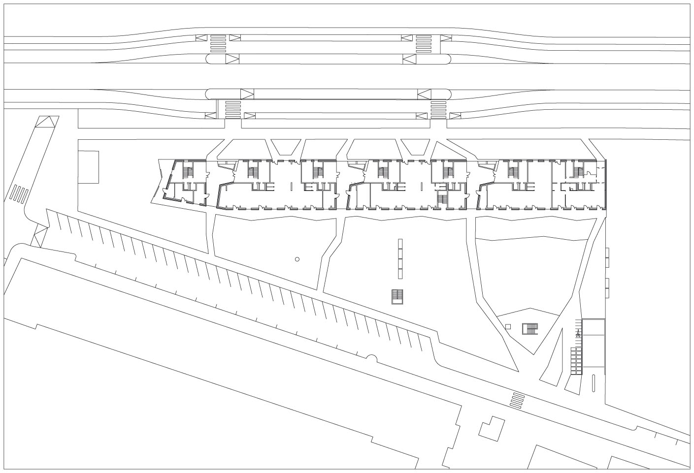
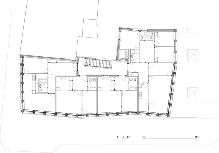
Tra rue Lyotard e la strada per Meyrin, in risposta alla tipologia tradizionale della barra imposta dal piano localizzato di quartiere, gli architetti Philippe Meier e Ariane Poncet hanno optato per un trattamento plastico del ritmo della facciata, disponendo a sud dei balconi continui che si piegano leggermente a fisarmonica creando così degli effetti di ombreggiatura. Un rimando al progetto di Miremont-Le Crêt di Marc-Joseph Saugey (1955), sul quale Philippe Meier ha appena pubblicato una monografia. Edificato dalla Fondazione HBM Jean Dutoit, il fabbricato comprende centoventi alloggi articolati intorno a sette vani scala, rischiarati dalla luce naturale, che servono – a ciascun piano – due abitazioni su due arie e un appartamento esposto a sud.

Hyéronime Lacroix e Simon Chessex
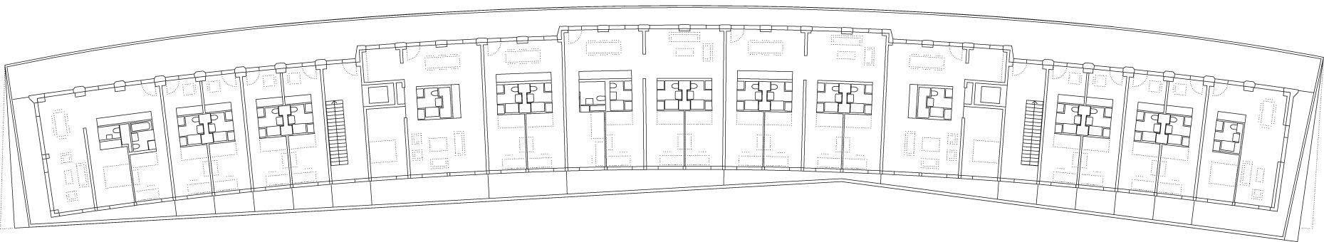
Nel loro progetto di centotrentacinque unità abitative per studenti dell’Istituto di Alti Studi Internazionali, gli architetti Hyéronime Lacroix e Simon Chessex adottano una strategia affine: il blocco dell’edificio si curva leggermente e viene circondato da una terrazza continua. Questa funge da balcone sulla facciata est e da ballatoio su quella ovest, che domina lo snodo ferroviario di Cornavin. Il plastico gioco di variazioni nell’altezza dei parapetti consente di proteggere i residenti dal rumore dei treni.

Jean-Paul Jaccaud
Jean-Paul Jaccaud, in collaborazione con Sergison & Bates, risolve in modo elegante l’articolazione tra il tessuto urbano settecentesco e il moderno complesso del Mont Blanc, opera dell’architetto Marc-Joseph Saugey. Combinando sapientemente servizi – un asilo –, alloggi sociali e abitazioni ad affitto libero, il progetto riesce a garantire il successo finanziario dell’operazione, e a bilanciare le caratteristiche dei vari appartamenti, raggruppati in questo caso in un fabbricato a ballatoio.

Studio Bonnet
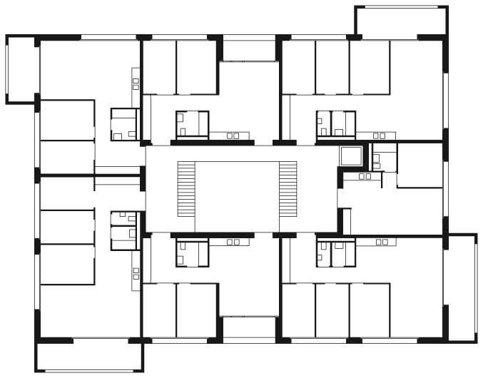
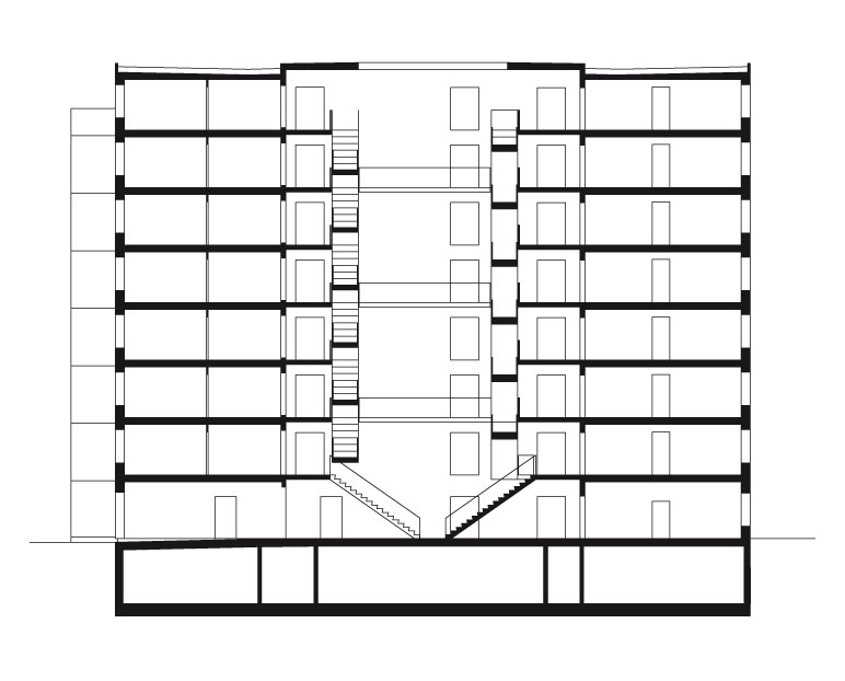
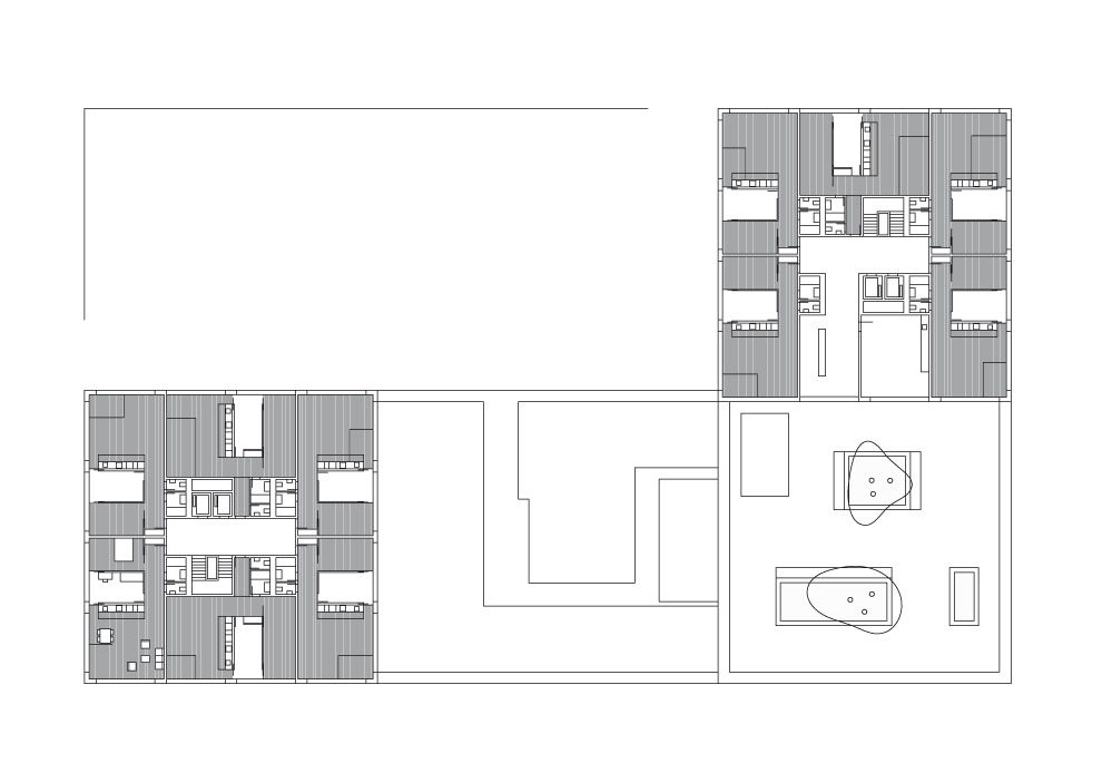
Alla distribuzione tramite ballatoio si ispira anche l’inedita tipologia proposta dallo studio Bonnet in un complesso di tre immobili residenziali realizzati sul pianoro di Vessy. La figura formata da due edifici a ballatoio riuniti serve a organizzare l’accesso agli appartamenti tramite piattaforme dalle ampie aperture che ne consentono l’illuminazione naturale zenitale. Tale configurazione consente molteplici percorsi e fornisce al contempo un’area esterna sospesa a ciascun piano. I tagli nel corpo degli fabbricati aprono viste oblique sul paesaggio e sul vicinato.

Andrea Bassi e Roberto Carella
Nel quartiere della Chapelle, Andrea Bassi e Roberto Carella propongono fabbricati con cortile (attualmente in costruzione), in cui due scale a una rampa servono pianerottoli piuttosto ampi e sono disposte ai lati di un vuoto che non pone alcun ostacolo alla luce naturale.

LRS architectes
Laurent Lin, Alain Robbe e Rolf Seiler (lrs architectes) – vincitori del concorso per l’urbanizzazione del quartiere Gordon Bennett a Vernier – hanno disposto cinque edifici con cortile, uno destinato alle attività e gli altri quattro all’abitazione, ai lati di un viale di distribuzione. Le costruzioni, di dimensioni variabili e sfalsate tra loro, creano spazi intermedi definiti su tre lati da un corpo di fabbrica la cui facciata è guarnita da una serie di balconi continui.

Ciascun immobile è abbastanza grande da ospitare al centro un vasto spazio semipubblico. Allo scopo di creare una varietà tipologica, a ciascuno degli studi classificati al secondo e terzo posto del concorso (Group8 e 3BM3) è stato affidato lo sviluppo di un edificio. Le opere esterne, generalmente trascurate nelle operazioni di edilizia popolare, hanno in questo caso goduto delle speciali attenzioni di Julien Descombes e Marco Rampini (ADR) e il loro lavoro ha contribuito in modo significativo al buon esito dell’operazione.

CLR architectes
Il progetto vincitore del recente concorso della Marbrerie a Carouge, opera degli architetti Damien Chevalley, Patrick Longchamp e Gilbert Russbach (CLR), propone due torri comprendenti vari servizi, abitazioni di utilità pubblica (70%) e ad affitto libero (30%). L’alta qualità di questo intervento risiede nella raffinatezza con cui viene gestito il suo inserimento all’interno di un quartiere occupato da piccole imprese: un giardino pubblico e due terrazze sospese creano una progressiva transizione tra spazio pubblico e abitazioni.

Questa breve selezione rivela la rimarchevole diversità e qualità della produzione residenziale ginevrina degli ultimi due anni. Su questi esempi dovrebbero modellarsi le pratiche normative; eguagliarne il livello dovrebbe essere l’obiettivo minimo delle operazioni di rilievo previste negli anni a venire, sia all’Etang che nel quartiere della Caserma des Vernets, a Les Cherpines come a Bernex-Nord.

Magazine

Articoli correlati